Sie suchen eine Immobilie die Ihren individuellen Ansprüchen an Lage und Ausstattung gerecht wird und Ihnen vielseitige Nutzungsmöglichkeiten bietet? Sie sind fündig geworden!
In ruhiger und dennoch zentraler Lage von Darmstadt, im beliebten Ortsteil Eberstadt, wartet dieses gut ausgestattete Objekt mit einer Eigentumswohnung, mehreren PKW Stellplätzen und einer gewerblich oder privat nutzbaren Halle mit großem Keller auf Sie. Eventuell haben Sie den Wunsch Wohnen und Arbeiten zu verbinden? Das ist hier perfekt machbar!
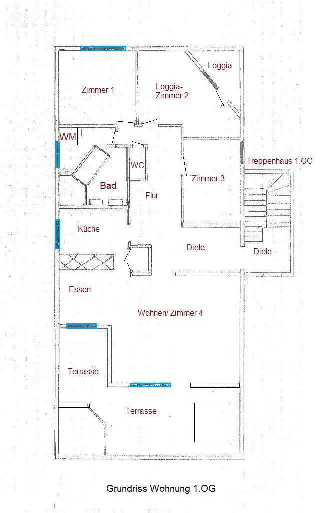
Das im Jahre 1964 in klassischer Massivbauweise errichtete Werkstattgebäude wurde 1976 um eine großzügige Wohnung (Penthouse-charakter) erweitert. Das Gebäude befindet sich in ordentlichem Zustand und ist nur wenige Schritte von guten Einkaufsmöglichkeiten, Schulen, Kindergärten, Restaurants und Ärzten entfernt. Die gepflegte Wohnung, besticht durch ca. 145 m² großzügig und sinnvoll aufgeteilte Fläche mit geräumigem Wohn-Essbereich, einem großen Dusch- und Wannenbad mit Doppelwaschtisch und einer großen Einbauküche mit Vorratsraum, die bereits im Kaufpreis enthalten ist. Die große Sommerterrasse (Süd-West Ausrichtung) sowie eine zweite überdachte Loggia (Nord-Osten) bieten Ihnen viele Möglichkeiten und laden nicht nur im Sommer zum Verweilen ein. Praktische Einbauschränke (Küche) und eine Sonnenmarkise auf der Terrasse sind weitere Ausstattungsdetails dieser schönen 4 Zimmer Wohnung. Drei Stellplätze vor der Halle direkt am WEG geteilten Haus und mehrere geräumige Kellerräume runden dieses Angebot ab. In der Halle kann ein Unternehmen Platz finden oder, nach einer zu genehmigenden Nutzungsänderung, weiterer Wohnraum (mit Loftcharakter) entstehen. Hinter und vor dem Haus befinden sich kleine Gartenflächen und Grünbereiche mit mehreren Unterstellmöglichkeiten. Die Immobilie wird mit Fernwärme beheizt (Wärmeverteiler erneuert). Die Abwassertechnik, die Dacheindeckung und die Fenster wurden in den letzten Jahre saniert oder erneuert.
Der Kaufpreis der Wohnung und der Halle mit Lager und Grube beträgt 790.000.-€ inklusive dreier Stellplätze, Einbauküche, Kellerraum und guter Allgemeinausstattung.
Wir haben Ihr Interesse geweckt? Gerne sind wir bei Fragen oder dem Wunsch einer Besichtigung für Sie da!
### HIER IST VIELES MÖGLICH! WOHN- UND GESCHÄFTSHAUS IN ZENTRALER, RUHIGER LAGE VON EBERSTADT ###
64297 Darmstadt
Die vollständige Adresse der Immobilie erhalten Sie vom Anbieter.
Auf Karte anzeigen
Die vollständige Adresse der Immobilie erhalten Sie vom Anbieter.
Finanzierungszertifikat
In nur zwei Minuten zu Ihrem persönlichen Finanzierungszertifkat.
Infos
| Haustyp | Besondere Immobilie |
|---|---|
| Etagenzahl | 2 |
| Wohnfläche ca. | 145 m2 |
| Nutzfläche | 320 m2 |
| Grundstücksfläche | 374 m2 |
| Bezugsfrei ab | nach Vereinbarung |
| Zimmer | 5 |
| Schlafzimmer | 3 |
| Badezimmer | 2 |
| Garage/Stellplatz | Außenstellplatz |
| Anzahl Garage/Stellplatz | 5 |
Kosten
| Kaufpreis |
790.000 € |
|---|---|
| Provision |
5,95 Die Kosten bis zum Vertragsabschluss und die Provision sind vom Käufer zu zahlen. Daten und Angaben zu diesem Angebot erhielten wir von den Eigentümern und übernehmen für die Richtigkeit keine Haftung. Unsere Allgemeinen Geschäftsbedingungen (AGBs), welche Sie unter www.schaefer-schmidt-immobilien.de, abrufen oder vorab übermittelt werden können, erkennen Sie mit Ihrer Anfrage in vollem Umfang an. |
Finanzierungsrechner:
Kaufpreis:
600.000 €
Eigenkapital:
600.000 €
Monatliche Rate
0 €
Effektiver Jahreszins
0 %
Sollzinsbindung
10 Jahre
Bausubstanz & Energieausweis
| Baujahr | 1976 |
|---|---|
| Letzte Sanierung | 2020 |
| Bauphase | Haus fertig gestellt |
| Objektzustand | Modernisiert |
| Qualität der Austattung | Normal |
| Heizungsart | Fernwärme |
| Energieausweis | liegt zur Besichtigung vor |
Beschreibung des Objekts
Ausstattung
+ Baujahr 1964/1976
+ Gesamtgrundstücksfläche 898 m², davon der WEG Anteilt der hinteren Einheit. (ca. 374m²) 5/12 Anteil
+ Wohnfläche ca. 145 m², mit Loggia
+ großer Kellerraum ca. 100 m²
+ 3 Stellplätze vor dem Haus, 4-6 in der Halle (Grube)
+ Sonnenloggia und Terrasse
+ 4 Zimmer in der Wohnung
+ Halle, Keller und Wohnung ca.460 m² (inkl. Nutzfl.) Wohn-/Nutzfläche
+ gute Allgemein Ausstattung
+ großes Bad mit Wanne und offener Dusche
+ Einbauküche mit Tresenbar, viel Platz
+ kleine Wohneinheit mit nur zwei Eigentümerparteien
+ gute Infrastruktur, beste Innenstadtlage in Eberstadt
+ Objekt wird frei nach Vereinbarung
+ sehr gut vermietbar
+ viele Nutzungsmöglichkeiten (KFZ Aufbereiter, Schlosserei, Onlinehandel, Vertrieb mit Lager uvm.)
+ Oben Wohnen und unten Arbeiten….!
Wo findet man denn noch sowas !!!
Lage
SCHÄFER & SCHMIDT Immobilien - Ihr Profi-Makler für Darmstadt, Eberstadt und die Region Bergstrasse und Darmstadt-Dieburg
Lieber gleich zum Fachmann und teure Fehler vermeiden !!!
Sonstige Angaben
Bitte haben Sie Verständnis dafür, dass wir aus maklerrechtlichen Gründen, nur Anfragen bearbeiten, die Ihre vollständige Adresse, Ihren Namen, eine E-Mailadresse und Ihre Telefonnummer beinhalten.
Grundriss
Grundriss 1.OG
>
>
Grundriss Halle EG
>
>
Grundriss UG
>
>
Adresse
64297 Darmstadt
Interessante Orte
Preis- und Lageinformationen
Preistrend für Bestandsimmobilien in Eberstadt