Willkommen in einem Zuhause, das seinesgleichen sucht! Dieses freistehende Zweifamilienhaus in Idstein-Walsdorf vereint traditionelle Bausubstanz, großzügige Raumstrukturen und zeitgemäßen Komfort auf höchstem Niveau. Ursprünglich 1959 in massiver Bauweise errichtet und 1971 erweitert, wurde das Haus 1993 um ein modernes Obergeschoss mit integrativem Spitzboden ergänzt – eine gelungene Symbiose aus klassischer Architektur und moderner Wohnkultur.
Das Anwesen steht auf einem großzügigen, rund 948 m² großen Grundstück, das liebevoll angelegt ist und vielfältige Nutzungsmöglichkeiten bietet – von Garten- und Spielflächen bis hin zu Rückzugsorten zum Entspannen. Für Ihre Fahrzeuge stehen insgesamt 4 Stellplätze direkt am Haus zur Verfügung, die Komfort und Alltagstauglichkeit zusätzlich unterstreichen.
Raumaufteilung
Die Aufteilung ist großzügig, durchdacht und flexibel nutzbar – ideal für Familien, Mehrgenerationen oder Arbeiten von zu Hause aus.
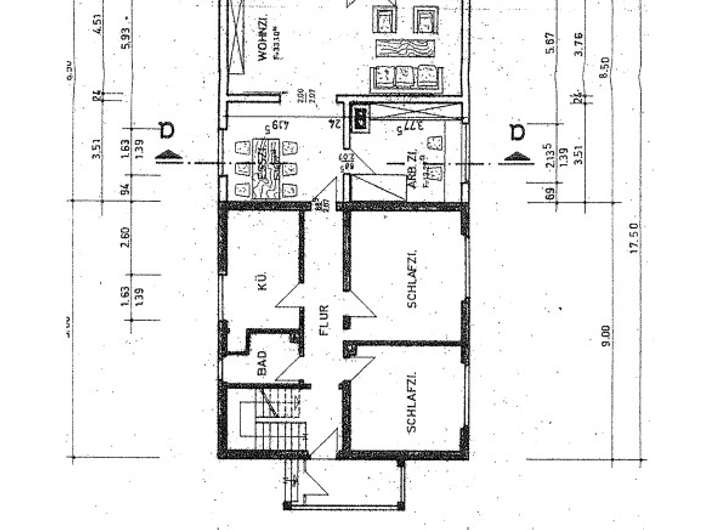
Erdgeschoss (ca. 119 m²): Ein weitläufiges Wohnzimmer mit großflächigen Fenstern, Balkonzugang und Kamin bildet das Herzstück. Daran schließen sich das Esszimmer, drei vielseitig nutzbare Zimmer (Schlaf , Kinder oder Arbeitszimmer), eine praktisch geschnittene Küche und ein Tageslichtbad mit Wanne und Dusche an. Vom Wohnzimmer gelangt man auf den sonnigen Balkon mit Blick ins Grüne.
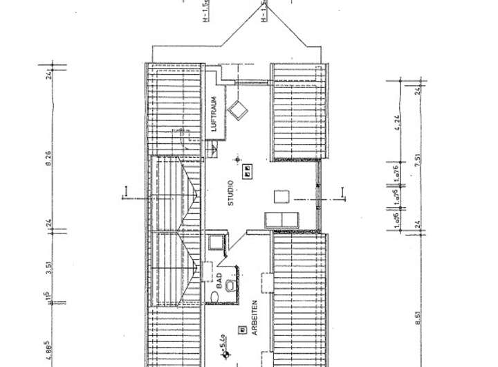
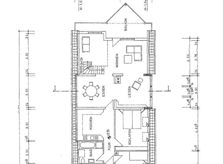
Obergeschoss & Spitzboden – Maisonette (ca. 168 m² p): Das Obergeschoss bildet zusammen mit dem Spitzboden eine anspruchsvolle Maisonette-Wohnung. Es verfügt über ein großzügiges Wohnzimmer mit Kamin und Balkon, ein Schlafzimmer mit einem zweiten, privaten Balkon, eine stilvolle Einbauküche und ein helles Bad mit Dusche und Eckwanne. Über eine Treppe im Wohnzimmer erreichen Sie den ausgebauten Spitzboden: ein lichtdurchflutetes Studio, ein weiteres Zimmer sowie ein separates Duschbad. Die elegante runde Gaube durchflutet die Räume mit zusätzlichem Tageslicht und verleiht dem Ensemble eine besondere Architektur.
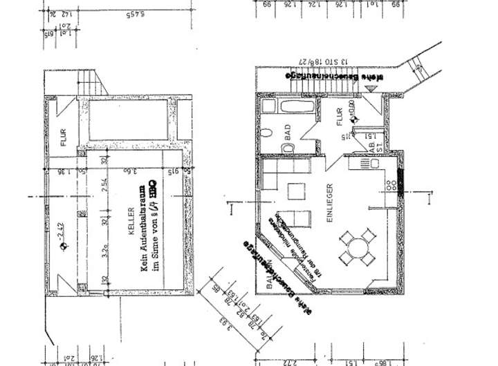
Kellergeschoss (ca. 61 m²): Hier befindet sich eine abgeschlossene Einliegerwohnung mit Wohn-/Schlafzimmer, Küche, Tageslichtbad und Zugang zu einer Terrasse. Sie eignet sich ideal zur Vermietung oder als unabhängige Einheit für Angehörige. Zusätzlich gibt es mehrere Abstell- und Lagerräume, einen Hobbyraum, einen Hauswirtschaftsraum und den Heizungsraum.
Nebengebäude (ca. 56 m² auf zwei Ebenen): Das separate Nebengebäude beherbergt zwei eigenständige Wohnungen mit Wohn-/Essbereich, Kochecke und Bad, die derzeit lukrativ vermietet sind. Diese Einheiten bieten sich alternativ als Gästehaus, Büro, Atelier oder Hobbyfläche an. Unter dem Nebengebäude befindet sich zusätzlicher Kellerraum für Lagerzwecke.
Miete & Potenzial
Die Immobilie war in der Vergangenheit vollständig vermietet, was die Nachfrage und Renditemöglichkeiten unterstreicht.
Aktuell sind 3 von 5 Wohneinheiten bewohnt: die beiden Wohnungen im Nebengebäude sowie das Erdgeschoss (EG).
• Obergeschoss & Maisonette: ist frei und steht sofort zur Verfügung – ideal für Eigennutzer, Großfamilien oder anspruchsvolle Mieter.
• Kellergeschoss (Einliegerwohnung): ebenfalls frei – bestens geeignet zur Vermietung, als Gästebereich oder als separates Büro.
• Erdgeschoss: ist momentan noch vermietet, kann jedoch kurzfristig ausziehen.
Dieses Ensemble ermöglicht Ihnen also, sofort einzuziehen oder mehrere Einheiten neu zu vermieten. Die bereits vermieteten Wohnungen im Nebengebäude sichern Ihnen laufende Einnahmen, sodass Sie eine perfekte Balance aus Eigennutzung und Kapitalanlage finden.
Raumwunder in Idstein-Walsdorf – Zweifamilienhaus mit Einliegerwohnung & Nebengebäude
65510 Idstein
Die vollständige Adresse der Immobilie erhalten Sie vom Anbieter.
Auf Karte anzeigen
Die vollständige Adresse der Immobilie erhalten Sie vom Anbieter.
Finanzierungszertifikat
In nur zwei Minuten zu Ihrem persönlichen Finanzierungszertifkat.
Infos
| Haustyp | Mehrfamilienhaus |
|---|---|
| Etagenzahl | 1 |
| Wohnfläche ca. | 403 m2 |
| Nutzfläche | 555 m2 |
| Grundstücksfläche | 948 m2 |
| Zimmer | 15 |
| Schlafzimmer | 13 |
| Badezimmer | 6 |
| Anzahl Garage/Stellplatz | 4 |
Kosten
| Kaufpreis |
799.000 € |
|---|---|
| Provision |
5,95 % 5,95 % Käuferprovision inkl. MwSt., verdient und fällig mit Beurkundung des notariellen Kaufvertrages. |
| Mieteinnahmen | 4.000 € |
Finanzierungsrechner:
Kaufpreis:
600.000 €
Eigenkapital:
600.000 €
Monatliche Rate
0 €
Effektiver Jahreszins
0 %
Sollzinsbindung
10 Jahre
Bausubstanz & Energieausweis
| Baujahr | 1959 |
|---|---|
| Letzte Sanierung | 1993 |
| Objektzustand | Gepflegt |
| Qualität der Austattung | Normal |
| Heizungsart | Zentralheizung |
| Wesentliche Energieträger | Gas |
| Energieausweis | liegt vor |
| Energieausweistyp | Bedarfsausweis |
| Energieverbrauchskennwert | 95,7 kWh/(m²*a) |
| Energieeffizienzklasse | C |
95,7
kWh/(m²*a)
Energieeffizienzklasse C
- A+
- A
- B
- C
- D
- E
- F
- G
- H
- 0
- 25
- 50
- 75
- 100
- 125
- 150
- 175
- 200
- 225
- >250
Beschreibung des Objekts
Ausstattung
• Großes Grundstück von ca. 948 m²
• Freistehendes Zweifamilienhaus mit Vollkeller
• Rund 404 m² Wohnfläche (Haus + Nebengebäude)
• 15 Zimmer verteilt auf Haupt- und Nebengebäude
• Zwei Kamine (EG und OG)
• Maisonette-Einheit im Obergeschoss
• 3 Balkone und 1 Terrasse
• Elegante runde Gaube im ausgebauten Spitzboden
• Separate Einliegerwohnung im Kellergeschoss
• Nebengebäude mit zwei vermieteten Wohneinheiten
• Gas-Zentralheizung
• Isolierverglaste teils Kunststofffenster mit Rollläden
• 4 PKW-Stellplätze auf dem Grundstück
Lage
Walsdorf ist der nördlichste Stadtteil der Hochschulstadt Idstein und liegt eingebettet im Taunus. Die Lage verbindet ländliche Ruhe mit einer hervorragenden Anbindung an die Metropolregion Rhein-Main: Östlich des Ortes verläuft die Bundesstraße 8, westlich die Autobahn A3, über die Sie Wiesbaden und Frankfurt schnell erreichen. Durch das Dorf führt die Landesstraße 3026, und Radfahrer freuen sich über den Hessischen Radfernweg R8. Der öffentliche Nahverkehr wird durch die Buslinien 226 und 230 sichergestellt, die Verbindungen nach Idstein, Bad Camberg und in die umliegenden Orte bieten. Walsdorf besitzt einen eigenen städtischen Kindergarten, ein Dorfgemeinschaftshaus und einige Einkaufsmöglichkeiten für den täglichen Bedarf. Weiterführende Schulen befinden sich im nahegelegenen Idstein und in Wallrabenstein. Ärzte, Apotheken, Supermärkte und ein breites gastronomisches Angebot finden Sie ebenfalls in Idstein, das nur wenige Autominuten entfernt liegt. Freizeitliebhaber genießen Wanderungen und Radtouren im Taunus, einen Ausflug ins Erlebnisbad „Tournesol“ oder in die historische Idsteiner Altstadt mit ihren Fachwerkhäusern. Die Mischung aus idyllischer Umgebung, guter Infrastruktur und schnellen Verbindungen in die Großstädte macht diese Lage besonders attraktiv.
Sonstige Angaben
GELDWÄSCHE:
Als Immobilienmaklerunternehmen ist die Main Immobilien Compass nach § 2 Abs. 1 Nr. 14 und § 11 Abs. 1, 2 Geldwäschegesetz (GwG) dazu verpflichtet, bei der Begründung einer Geschäftsbeziehung die Identität des Vertragspartners festzustellen und zu überprüfen, bzw. sobald ein ernsthaftes Interesse an der Durchführung des Immobilienkaufvertrages besteht. Hierzu ist es erforderlich, dass wir nach § 11 Abs. 4 GwG die relevanten Daten Ihres Personalausweises festhalten (wenn Sie als natürliche Person handeln) – beispielsweise mittels einer Kopie. Bei einer juristischen Person benötigen wir eine Kopie des Handelsregisterauszugs, aus welchem der wirtschaftlich Berechtigte hervorgeht. Das Geldwäschegesetz sieht vor, dass der Makler die Kopien bzw. Unterlagen fünf Jahre aufbewahren muss. Als unser Vertragspartner haben Sie auch eine Mitwirkungspflicht nach § 11 Abs. 6 GwG.
HAFTUNG: Wir weisen darauf hin, dass die von uns weitergegebenen Objektinformationen, Unterlagen, Pläne etc. vom Verkäufer bzw. Vermieter stammen. Eine Haftung für die Richtigkeit oder Vollständigkeit der Angaben übernehmen wir daher nicht. Es obliegt daher unseren Kunden, die darin enthaltenen Objektinformationen und Angaben auf ihre Richtigkeit hin zu überprüfen.
Adresse
65510 Idstein
Interessante Orte
Preis- und Lageinformationen
Preistrend für Bestandsimmobilien in Idstein