VIDEO-RUNDGANG, keine Anmeldung erforderlich: https://player.vimeo.com/video/735819685?h=ffe075d284 (Link in Browser kopieren oder unter "Ergänzende Links" anklicken)
Dieses großzügige Einfamilienhaus bietet insgesamt 265 m² Wohnfläche auf drei Ebenen. Es wurde 1924 errichtet und 1994 umfangreich modernisiert und erweitert. Insgesamt acht Zimmer, zwei davon mit Zugang zum Balkon, sowie vier Bäder, bieten großzügigen Raum zur individuellen Entfaltung.
Betritt man das Haus, gelangt man über den Flur in das Herzstück des Erdgeschosses: den Koch- und Essbereich. Die umfangreiche Einbauküche mit Kochinsel im gehobenen Landhausstil (im Kaufpreis enthalten) ist optimal ausgestattet für leidenschaftliches Kochen. Ein eingebauter Grill, ein Dampfgarer und weitere Extras bieten vielfältige Möglichkeiten. Und wenn es einmal schnell gehen muss, steht auch eine eingebaute Mikrowelle bereit. Der angrenzende Essbereich bietet ausreichend Platz für die Familie und Gäste: Ein Ort, an dem man sich gerne aufhält. Ob beim morgendlichen Kaffee oder abendlichem Beisammensein. Besonders gemütlich wird letzteres durch einen Gaskamin, der zudem den Ess- und Kochbereich alleine heizt. alleine heizt. Die offenen Übergänge zwischen den Räumen sorgen für ein luftiges Raumgefühl und verbinden Funktion mit Wohnlichkeit. Ebenfalls im Erdgeschoss befindet sich das Wohnzimmer (43 m²) mit Erker und Kaminofen. Im Herbst und Winter können hier gemütliche Stunden am Kaminfeuer verbracht werden, im Sommer eröffnet der Wintergarten einen traumhaften Blick auf den gepflegten Garten, der über die Terrasse erreicht werden kann. | Fortsetzung unter 'Ausstattung'
Kein Haus von der Stange, sondern ein Zuhause mit Geschichte – und Raum für Neues
61169 Friedberg (Hessen)
Die vollständige Adresse der Immobilie erhalten Sie vom Anbieter.
Auf Karte anzeigen
Die vollständige Adresse der Immobilie erhalten Sie vom Anbieter.
Finanzierungszertifikat
In nur zwei Minuten zu Ihrem persönlichen Finanzierungszertifkat.
Infos
| Haustyp | Sonstige |
|---|---|
| Wohnfläche ca. | 264 m2 |
| Grundstücksfläche | 445 m2 |
| Bezugsfrei ab | nach Absprache |
| Zimmer | 8 |
| Anzahl Garage/Stellplatz | 2 |
Kosten
| Kaufpreis |
745.000 € |
|---|---|
| Provision |
3,57% des Kaufpreises inkl. MwSt. |
Finanzierungsrechner:
Kaufpreis:
600.000 €
Eigenkapital:
600.000 €
Monatliche Rate
0 €
Effektiver Jahreszins
0 %
Sollzinsbindung
10 Jahre
Bausubstanz & Energieausweis
| Baujahr | 1924 |
|---|---|
| Bauphase | Haus fertig gestellt |
| Objektzustand | Gepflegt |
| Heizungsart | Zentralheizung |
| Wesentliche Energieträger | Gas |
| Energieausweistyp | Bedarfsausweis |
| Energieverbrauchskennwert | 241,1 kWh/(m²*a) |
| Energieeffizienzklasse | G |
241,1
kWh/(m²*a)
Energieeffizienzklasse G
- A+
- A
- B
- C
- D
- E
- F
- G
- H
- 0
- 25
- 50
- 75
- 100
- 125
- 150
- 175
- 200
- 225
- >250
Beschreibung des Objekts
Ausstattung
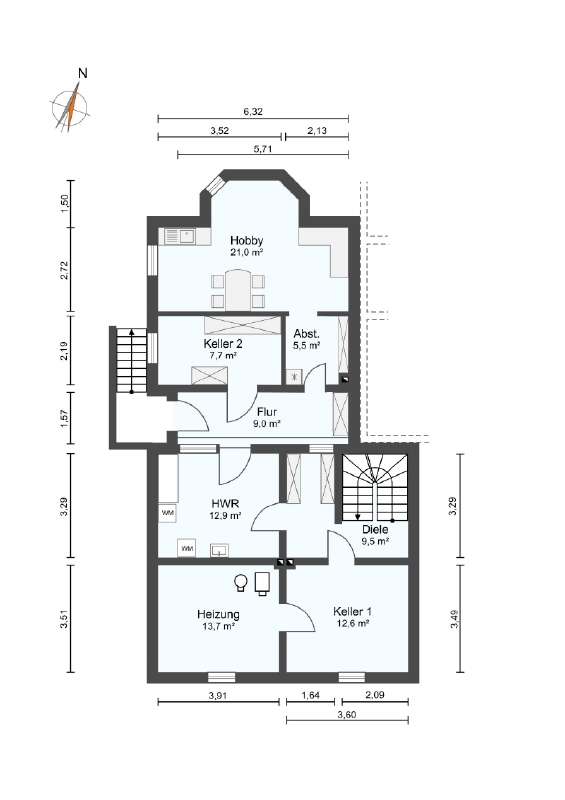
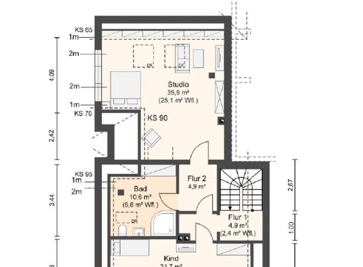
Das erste Obergeschoss ist mit vier Räumen, einem großen und einem Gästebadezimmer ideal für die vielfältigen Wohnbedürfnisse einer Familie. Hier können Büro, Kinder-, Schlaf- oder Gästezimmer entstehen, mit genügend Privatsphäre und Ruhe, aber gleichzeitig mit genügend Nähe, etwa für Kleinkinder, die noch nicht gern alleine schlafen. Das große Bad bietet mit Wanne und Dusche etwas für jede Gemütslage und auch genug Platz für hektische Morgenstunden zu zweit oder mehr. Das zweite Obergeschoss bietet mit zwei großen Zimmern und einem Bad Raum für einen Gästebereich oder den perfekten Rückzugsort für Jugendliche. Das Haus ist komplett unterkellert. Hier ist Platz für Räder, Deko, einen Hauswirtschaftsraum oder sogar einen Fitnessbereich. Der Grundstücksanteil, der diesem Haus zur alleinigen Nutzung als Sondernutzungsrecht zugewiesen ist, beträgt rund 445 m². Das Haus steht nicht unter Denkmalschutz.
Das Haus wurde über viele Jahre von einer fünfköpfigen Familie mit Liebe bewohnt – und das sieht man ihm an. Jetzt ist es bereit für das nächste Kapitel: Die Kinder sind bereits ausgezogen und haben eigene Familien gegründet, und das Haus freut sich auf eine neue Familie, die hier ihren Lebensmittelpunkt findet.
- Massivbauweise
- Gaszentralheizung (Vaillant, 1994)
- Zwischensparrendämmung aus Steinwolle (Rockwool, ca. 20 cm, Anbau 14 cm )
- Raumhöhe (m): UG: 1,87 - 2,21; EG: 2,48 - 2,71; OG: 2,49 - 2,55; DG: bis zu 2,27 - 3,8 (Schrägen)
- Nutzfläche gesamt bzw. Keller: 87,67 m²
- zwei Pkw-Außenstellplätze (hintereinanderliegend)
- Modernisierung (2018): Neueindeckung/-dämmung des Daches, Erneuerung der Küchenelektrogeräte und einiger Fenster im DG
Lage
Das Haus befindet sich in einer ruhigen und gepflegten Wohngegend von Friedberg. Grundschule, Mittel- und Oberstufe liegen in Gehweite. In der unmittelbaren Umgebung befinden sich zudem zwei Spielplätze Auch das Krankenhaus ist, für den Notfall, direkt ums Eck. Kleinere Supermärkte sind gut fußläufig zu erreichen, für einen großen Wocheneinkauf braucht man mit dem Auto weniger als zehn Minuten zu großen Märkten. In Friedberg direkt befindet sich die Technische Hochschule Mittelhessen, die Universitätsstädte Gießen und Frankfurt sind gut mit öffentlichen Verkehrsmitteln zu erreichen.
Sonstige Angaben
- Einbauküche mit hellen Fronten (1994) und Markenelektrogeräten (2018)
- Fußbodenbeläge: Originalholzdielen weiß lackiert, Holzdielen, Parkett, Laminat, Kork, Marmor
- weiße Kunststofffenster mit Zweifachisolierverglasung und innenliegenden Sprossen (1990, 1994)
- weiße Kunststofffenster mit Zweifachisolierverglasung (2018)
- weiße Kunststoffdachflächenfenster mit Zweifachisolierverglasung (Velux, 2018)
- Holzdachflächenfenster mit Zweifachisolierverglasung (Velux, ca. 2000)
- Haustür: weiße Holztür mit dekorativem Glasausschnitt und Oberlicht
- besondere Bauteile: Erker, Gaube, Eingangstreppe
- holzbefeuerter Kaminofen (Grundofen)
- Kachelofen
- Sicherheitstechnik: Rauchmelder, Türsprechanlage, Fenster mit Mehrfachverriegelung
- Terrasse (14,5 m²) mit Nordwestausrichtung
- Balkon in Nordwestausrichtung (5,7 m²)
- Balkon in Ostausrichtung (4,0 m²)
- bezugsfei nach Absprache
SANITÄRE EINRICHTUNGEN
- Duschbad (Erdgeschoss): Fliesen hell terracottafarben, Sanitärobjekte creme
- Dusch- und Wannenbad (Obergeschoss): Fliesen terracottafarben, Sanitärobjekte creme
- Wannenbad (Obergeschoss): Fliesen und Sanitärobjekte beige
- Duschbad (Dachgeschoss): Fliesen türkis und weiß, Sanitärobjekte weiß
- alle Bäder raumhoch gefliest
AUSSENANLAGE
- eingewachsener Vorgarten mit Bäumen, Sträuchern und Bodendeckern
- eingewachsener Garten mit Bäumen, Sträuchern und Rasenfläche
- Bepflanzung: Quitte, Hängebirke, Pflaume, Kirsche, Flieder, Hortensie, Rose, Efeu etc.
- Zuwegung / Hof: Betonpflaster rot
- Einfriedung: Metallzaun, Mauer
Sie sind Immobilienvermittler und stehen in Kontakt mit einem Interessenten, für den diese Immobilie passend sein könnte? Gerne kooperieren wir mit Ihnen. Bitte senden Sie uns hierfür zunächst das Kontaktformular mit dem Hinweis – Kooperationsanfrage - zu, wir nehmen innerhalb eines Werktages Kontakt mit Ihnen auf.
Weitere Dokumente
AGBsGrundriss
Grundriss Kellergeschoss
>
>
Grundriss Erdgeschoss
>
>
Grundriss Obergeschoss
>
>
Grundriss Dachgeschoss
>
>
Adresse
61169 Friedberg (Hessen)
Interessante Orte
Preis- und Lageinformationen
Preistrend für Bestandsimmobilien in Friedberg (Hessen)