Entdecken Sie das ideale Mehrfamilienhaus, das ganz nach Ihren individuellen Wünschen und Vorstellungen projektiert wird. Mit einer großzügigen Wohnfläche von 205,03 m² und insgesamt 6 Zimmern, bietet dieses Haus ausreichend Platz für Ihre Familie und eventuell sogar für die Vermietung weiterer Einheiten. Auf zwei Etagen verteilen sich vier Schlafzimmer, zwei Badezimmer und ein zusätzliches Gäste-WC, sodass Sie und Ihre Gäste höchsten Komfort genießen können. Das Mehrfamilienhaus erfüllt den KFW55 Standard und sorgt für eine hohe Energieeffizienz.
Das Bau-Konzept von allkauf ermöglicht es Ihnen, Ihr neues Zuhause ganz nach Ihren Vorstellungen zu gestalten. Sie haben die Möglichkeit, den Innenausbau selbst zu übernehmen oder auf die professionelle Unterstützung unserer erfahrenen Fachkräfte zurückzugreifen.
Ihr Traum vom Mehrfamilienhaus wird Wirklichkeit!
56357 Obertiefenbach
Die vollständige Adresse der Immobilie erhalten Sie vom Anbieter.
Auf Karte anzeigen
Die vollständige Adresse der Immobilie erhalten Sie vom Anbieter.
Finanzierungszertifikat
In nur zwei Minuten zu Ihrem persönlichen Finanzierungszertifkat.
Infos
| Haustyp | Mehrfamilienhaus |
|---|---|
| Etagenzahl | 2 |
| Wohnfläche ca. | 205 m2 |
| Grundstücksfläche | 723 m2 |
| Zimmer | 6 |
| Schlafzimmer | 4 |
| Badezimmer | 2 |
Kosten
| Kaufpreis |
530.305 € |
|---|
Finanzierungsrechner:
Kaufpreis:
600.000 €
Eigenkapital:
600.000 €
Monatliche Rate
0 €
Effektiver Jahreszins
0 %
Sollzinsbindung
10 Jahre
Bausubstanz & Energieausweis
| Baujahr | 2026 |
|---|---|
| Bauphase | Haus in Planung (projektiert) |
Beschreibung des Objekts
Ausstattung
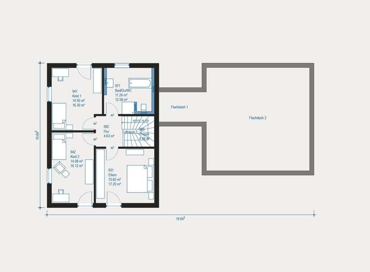
- 6 Zimmer, verteilt auf 2 Etagen
- 4 Schlafzimmer für ausreichend Rückzugsmöglichkeiten
- 2 moderne Badezimmer + zusätzliches Gäste-WC
- KFW55 Standard für hohe Energieeffizienz
- Fußbodenheizung für ein angenehmes Wohnerlebnis
- Echtholztreppe und hochwertige Materialien
- 3-fach verglaste Fenster inklusive Rollläden mit Aluminiumlamellen
- Be- und Entlüftungsanlage für optimales Raumklima
- Lichte Raumhöhe von 2,75 m
- TOXPROOF Gütesiegel für schadstoffgeprüfte Materialien
- Just-in-Time-Lieferungen und Bemusterung im eigenen Zentrum
- Hoher Wohnkomfort garantiert.
Lage
Das Mehrfamilienhaus befindet sich in einer ruhigen und familienfreundlichen Lage in Niederwallmenach, einem attraktiven Wohngebiet. Die Umgebung bietet eine gute Anbindung an die Infrastruktur, darunter Schulen, Einkaufsmöglichkeiten und öffentliche Verkehrsmittel. Zudem sind zahlreiche Freizeitmöglichkeiten in der Nähe, die für Erholung und Abenteuer sorgen.
Sonstige Angaben
allkauf heißt: Maximale Sicherheit, kurze Lieferzeiten, garantierte Fertigstellung.
Zu allen Häusern gehört:
- Energieeffizienzwand
- Echtholztreppe
- Luft-Wasser-Wärmepumpe
- Fußbodenheizung
- Be- und Entlüftungsanlage
- 3-fach verglaste Fenster inklusive Rollläden mit Aluminiumlamellen
- Lichte Raumhöhe 2,75 m
- inkl. erhöhten Fenstern und Türen
- TOXPROOF Gütesiegel - schadstoffgeprüfter Materialien
- Just-in-Time-Lieferungen
- Bemustern im eigenen Bemusterungszentrum mit Markenprodukten.
Grundriss
Grundriss
>
>
Grundriss
>
>
Adresse
56357 Obertiefenbach
Interessante Orte
Preis- und Lageinformationen
Preistrend für Bestandsimmobilien in Obertiefenbach