Charmantes Mehrfamilienhaus mit Gartenidylle und Naturteich.
Dieses gepflegte Niedrigenergiehaus mit zwei separaten Hauseingängen bietet ein stilvolles und zugleich naturnahes Wohnerlebnis für 4 Parteien. Das Haus wurde im Jahr 1999 in solider Bauweise errichtet und besticht durch seine ruhige Lage, das große Grundstück und die hochwertige Ausstattung.
- Vier großzügige 3- Zimmer Wohnungen, aufgeteilt auf zwei Hauseingänge:
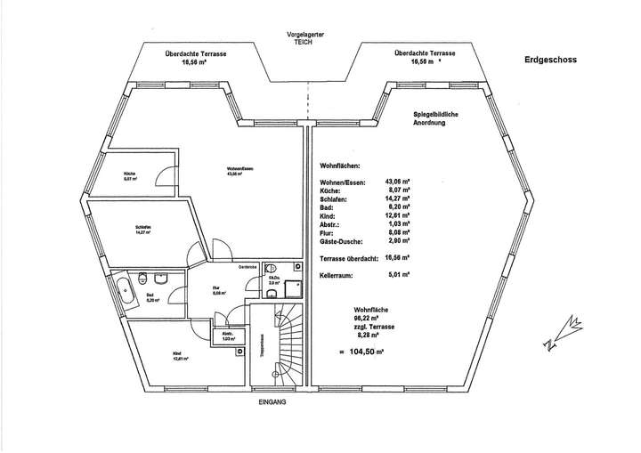
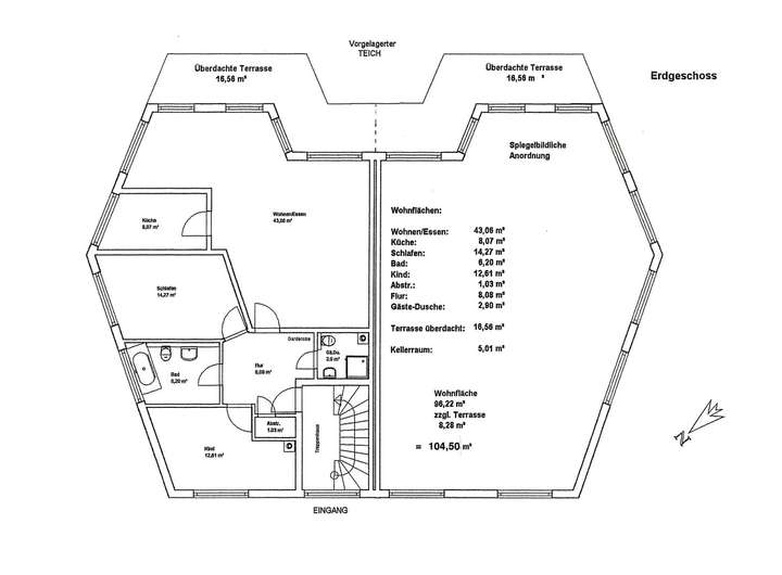
- Zwei Erdgeschosswohnungen mit je ca. 104,5 m² Wohnfläche, direktem Zugang zum Garten
- Zwei Obergeschosswohnungen mit je ca. 102,6 m² Wohnfläche, jeweils mit Balkon und herrlichem Blick in den Garten.
- Erstbezug 2000
- Moderne, energieeffiziente Wärmepumpe (neu eingebaut im Oktober 2024)
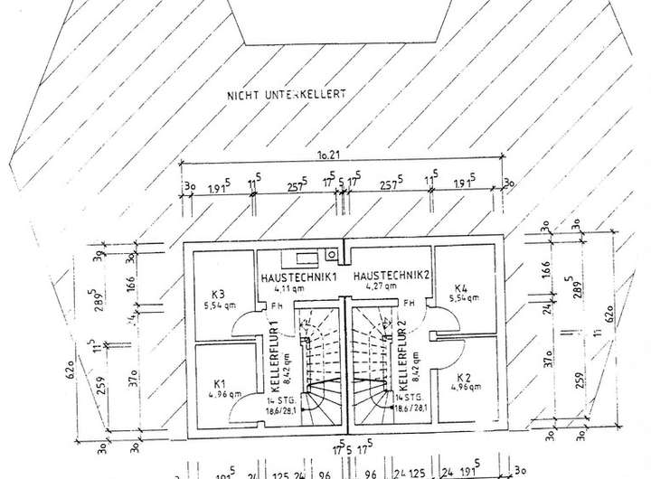
- Jede Wohnung verfügt zusätzlich über einen 5 m², abgeschlossener Kellerraum und eine eigene Garage.
- Alle Wohnungen sind vermietet. Mieteinnahmen von 57.240 p.a..
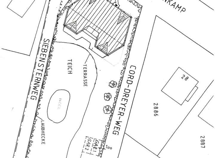
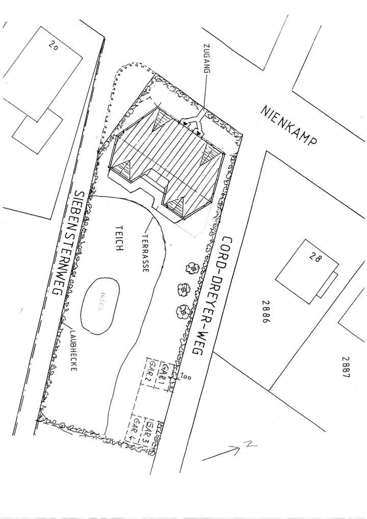
Freistehendes 4-Familien-Architektenhaus mit idyllischem Naturteich (inkl. 4 Garagen) in Niendorf
Nienkamp 22/24,
22453 Hamburg
Auf Karte anzeigen
Finanzierungszertifikat
In nur zwei Minuten zu Ihrem persönlichen Finanzierungszertifkat.
Infos
| Haustyp | Mehrfamilienhaus |
|---|---|
| Etagenzahl | 2 |
| Wohnfläche ca. | 414 m2 |
| Grundstücksfläche | 2.000 m2 |
| Bezugsfrei ab | nach Absprache |
| Zimmer | 12 |
| Badezimmer | 8 |
| Garage/Stellplatz | Garage |
| Anzahl Garage/Stellplatz | 4 |
Kosten
| Kaufpreis |
1.450.000 € |
|---|---|
| Provision | Nein |
Finanzierungsrechner:
Kaufpreis:
600.000 €
Eigenkapital:
600.000 €
Monatliche Rate
0 €
Effektiver Jahreszins
0 %
Sollzinsbindung
10 Jahre
Bausubstanz & Energieausweis
| Baujahr | 1999 |
|---|---|
| Bauphase | Haus fertig gestellt |
| Objektzustand | Gepflegt |
| Wesentliche Energieträger | Strom |
| Energieausweis | liegt vor |
| Energieausweistyp | Bedarfsausweis |
| Energieverbrauchskennwert | 57,9 kWh/(m²*a) |
| Energieeffizienzklasse | B |
57,9
kWh/(m²*a)
Energieeffizienzklasse B
- A+
- A
- B
- C
- D
- E
- F
- G
- H
- 0
- 25
- 50
- 75
- 100
- 125
- 150
- 175
- 200
- 225
- >250
Beschreibung des Objekts
Ausstattung
Balkon, Terrasse, Garten, Keller, Vollbad, Einbauküche, Teppichboden, Fliesen
Lage
Lagebeschreibung - Nienkamp 22/ 24, 22453 Hamburg-Niendorf
Das Haus befindet sich in einer ruhigen und grünen Wohnlage im beliebten Stadtteil Hamburg-Niendorf im Bezirk Eimsbüttel. Die Straße Nienkamp ist eine gepflegte, wenig befahrene Anliegerstraße, die von Einfamilien- und kleineren Mehrfamilienhäusern geprägt ist - ideal für Menschen, die eine naturnahe und dennoch gut angebundene Wohnlage suchen.
Naturnahes Wohnen in bester Nachbarschaft:
Niendorf zeichnet sich durch seine grüne Umgebung und familienfreundliche Atmosphäre aus. In unmittelbarer Nähe lädt das Niendorfer Gehege, eines der größten Waldgebiete Hamburgs, zu ausgedehnten Spaziergängen, Radtouren oder Joggingrunden ein. Auch der nahegelegene Kollauwanderweg bietet reizvolle Naturerlebnisse direkt vor der Haustür.
Zahlreiche gepflegte Gärten, ruhige Straßen und ein angenehmes nachbarschaftliches Umfeld schaffen ein entspanntes Wohnklima.
Sehr gute Infrastruktur und Anbindung:
Trotz der ruhigen Lage ist die Infrastruktur hervorragend.
Einkaufsmöglichkeiten wie das Einkaufszentrum "Tibarg" mit Supermärkten, Bäckereien, Drogerien, Apotheken und Cafés sind schnell (ca. 0,6 km) erreichbar.
Kindergärten, Schulen und Ärzte befinden sich ebenfalls in direkter Umgebung.
Die U-Bahnstation Niendorf Markt (U2) ist fußläufig erreichbar und bietet eine direkte Verbindung in die Hamburger Innenstadt.
Mehrere Buslinien ergänzen die Verkehrsanbindung.
Mit dem Auto sind die A7 sowie der Flughafen Hamburg in wenigen Minuten erreichbar.
Infrastruktur (im Umkreis von 5 km):
Apotheke, Lebensmittel-Discount, Allgemeinmediziner, Kindergarten, Grundschule, Öffentliche Verkehrsmittel
Sonstige Angaben
Heizungsart: Fußbodenheizung
Energieträger: Strom
Makleranfragen nicht erwünscht. Nach § 7 UWG sind unaufgeforderte Kontaktaufnahmen durch Makler ohne ausdrückliche Einwilligung des Empfängers verboten!
ohne-makler (OM) ist weder Anbieter noch Vermittler der Immobilie. OM betreibt eine Plattform für Immobilieneigentümer, die unter anderem die gleichzeitige Veröffentlichung einzelner Inserate auf mehreren Immobilienportalen ermöglicht. Die Inhalte dieser Inserate werden ausschließlich von Dritten verantwortet. Für die Richtigkeit, Vollständigkeit oder Rechtmäßigkeit der Angaben übernimmt OM keine Haftung. Hinweise auf mögliche Rechtsverstöße können jederzeit gemeldet werden und werden nach Prüfung umgehend bearbeitet.
Grundriss
Erdgeschoss
>
>
Dachgeschoss
>
>
Kellergeschoss
>
>
Lageplan
>
>
Grundriss
>
>
Grundriss
>
>
Adresse
Nienkamp 22/24, 22453 Hamburg
Interessante Orte
Preis- und Lageinformationen
Preistrend für Bestandsimmobilien in Niendorf