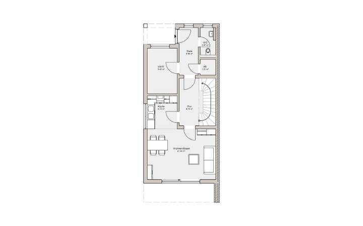
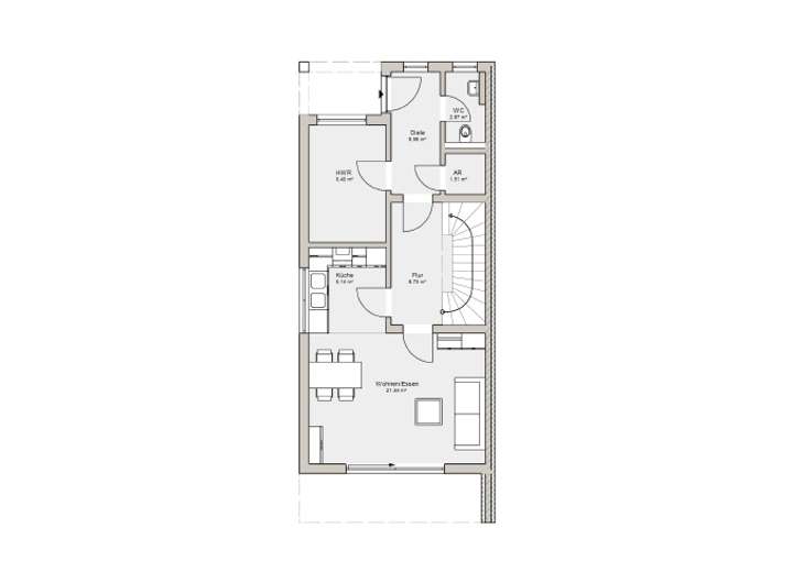
Durch einen überdachten Eingangsbereich gelangen Sie trockenen Fußes in Ihre moderne Doppelhaushälfte im Bauhausstil. Einkäufe können Sie direkt neben dem Eingang im Hauswirtschaftsraum oder im Abstellraum unterbringen. Das Massivhaus überzeugt durch eine offene Raumkonzeption von der Küche hin in den Wohn- und Essbereich. Die rechte Doppelhaushälfte verfügt über einen Erker, der die Küche und das Wohnzimmer vergrößert. Das Erdgeschoss wird ergänzt durch ein Gäste-WC im Eingangsbereich.
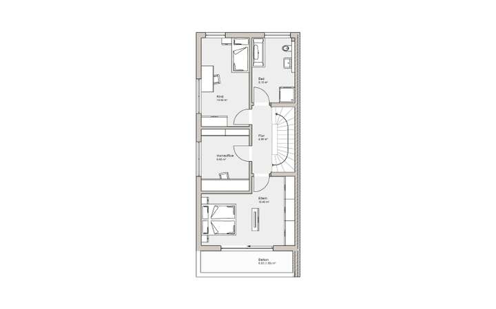
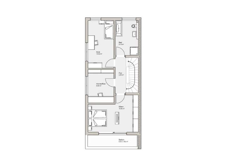
In der linken Doppelhaushälfte mit 112 Quadratmetern sind im Obergeschoss ein Elternschlafzimmer, ein Kinderzimmer, ein Home-Office und ein Badezimmer untergebracht. Das Elternschlafzimmer verfügt über einen Zugang auf den Balkon. Die rechte Doppelhaushälfte ist mit 119 Quadratmetern etwas größer und umfasst zwei Kinderzimmer, ein Elternschlafzimmer mit Ankleide sowie ein Badezimmer. Durch bodentiefe Fenster werden die Räume zur Gartenseite sowohl im Erd- als auch im Obergeschoss lichtdurchflutet. Linum ist durch seine Außenmaße ideal für schmale Grundstücke geeignet.
Dieses Haus wird nach Ihren individuellen Wünschen geplant und ausgestattet!
Exklusiver Wohnkomfort in reinster Form! Hier ist ihr Traumhaus!
65510 Hünstetten
Die vollständige Adresse der Immobilie erhalten Sie vom Anbieter.
Auf Karte anzeigen
Die vollständige Adresse der Immobilie erhalten Sie vom Anbieter.
Finanzierungszertifikat
In nur zwei Minuten zu Ihrem persönlichen Finanzierungszertifkat.
Infos
| Haustyp | Doppelhaushaelfte |
|---|---|
| Wohnfläche ca. | 112 m2 |
| Grundstücksfläche | 300 m2 |
| Zimmer | 4 |
| Schlafzimmer | 3 |
| Badezimmer | 1 |
| Anzahl Garage/Stellplatz | 2 |
Kosten
| Kaufpreis |
615.900 € |
|---|---|
| Provision | Nein |
Finanzierungsrechner:
Kaufpreis:
600.000 €
Eigenkapital:
600.000 €
Monatliche Rate
0 €
Effektiver Jahreszins
0 %
Sollzinsbindung
10 Jahre
Bausubstanz & Energieausweis
| Baujahr | 2026 |
|---|---|
| Bauphase | Haus in Planung (projektiert) |
| Objektzustand | Erstbezug |
| Qualität der Austattung | Gehoben |
| Heizungsart | Wärmepumpe |
| Wesentliche Energieträger | Strom |
| Energieausweis | liegt vor |
| Energieausweistyp | Bedarfsausweis |
| Energieverbrauchskennwert | 19,4 kWh/(m²*a) |
| Energieeffizienzklasse | A+ |
19,4
kWh/(m²*a)
Energieeffizienzklasse A+
- A+
- A
- B
- C
- D
- E
- F
- G
- H
- 0
- 25
- 50
- 75
- 100
- 125
- 150
- 175
- 200
- 225
- >250
Beschreibung des Objekts
Ausstattung
4 Zimmer, offene Küche, Diele, WC, 2x Flur, Bad, Hauswirtschaftsraum, AR, Balkon
Das gezeigte Traumhaus im Überblick:
+ Schlüsselfertiges Massivhaus im Sinne der Ausstattungsbeschreibung "Edition 25"
+ Zukunftsorientierte Energieausstattung in Form einer Luft-Wasser-Wärmepumpe und Fußbodenheizung sowie einer kontrollierten Wohnraumlüftung mit Wärmerückgewinnung
+ Inklusive Bodenplatte
Beste Markenausstattung in jedem Kern-Haus:
+ Hochwertiger Kunstharz-Außenputz für eine langlebige Fassade
+ Vollständige Badausstattung von Villeroy & Boch mit Badewanne und flacher Duschwanne sowie einer Echtglasduschkabine
+ Fliesen von Villeroy & Boch in Bad und WC
+ Haustür mit 5-fach-Sicherheitsverriegelung
+ Erstklassige Innentüren der Marke Herholz
+ Fenster mit 3-Scheiben-Wärmeschutzverglasung und Rollläden
+ Stahl-Holz-Treppe mit individueller Farbgestaltungsmöglichkeit
+ Vollständige und überdurchschnittliche Elektroausstattung inklusive Klingelanlage und Netzwerkdosen
+ Rauchmelder für Ihre Sicherheit
+ Alle Leistungen aus einer Hand
+ Alle Planungs- und Architektenleistungen
+ Einsatz regionaler Handwerksbetriebe
+ Baubegleitende 5-Phasen-TÜV-Prüfung und Blower-Door-Test
+ Individuelle Anpassung auf Ihre Bedürfnisse
+ Auf Wunsch mit Keller erhältlich
+ Auf Wunsch mit weiteren Energietechniken erhältlich
Lage
Das Baugrundstückbefindet sich in Kesselbach, einem Ortsteil der Gemeinde Hünstetten nördlich des Taunushauptkamms zwischen Limburg und der Landeshauptstadt Wiesbaden.
In geringer Entfernung zum Ort verläuft westlich die Bundesstraße 417, welche die Städte Wiesbaden und Limburg miteinander verknüpft. Die Autobahn A 3 (Frankfurt-Köln) liegt in unmittelbarer Nähe und ist durch die Auffahrten "Bad Camberg-Hünstetten" in ca. 5 km oder "Idstein" in 8 km zu erreichen. Die Landeshauptstadt Wiesbaden liegt 22 km entfernt, Mainz 26 km und Frankfurt 50 km.
Kesselbach verfügt über eine gute Infrastruktur mit Bäcker, Supermärkten, Apotheke, Optiker, Friseur, Ärzten, Banken und weiteren Restaurants.
Eine Kinderkrippe und eine Kindertagesstätte sowie eine Grundschule befindet sich im benachbarten Görsroth.
Hünstetten bietet in allen Ortsteilen zahlreiche Vereine, die für eine abwechslungsreiche Freizeitgestaltung sorgen.
Sonstige Angaben
Kern-Haus baut individuelle und massive Architektenhäuser zu einem attraktiven Preis-Leistungs-Verhältnis – und das bereits mit einer Erfahrung seit 1980. Bei Kern-Haus erhalten Sie unter anderem 10 Jahre Gewährleistung auf die wesentlichen Bauleistungen, bis zu 24 Monate Preissicherheit sowie eine dokumentierte 5-Phasen-TÜV-Prüfung während der Bauphase. Jedes Kern-Haus als Effizienzhaus 40 ist bereits QNG-zertifiziert durch die Deutsche Gesellschaft für nachhaltiges Bauen (DGNB).
40 Jahre Expertise für das massive, energieeffiziente Bauen: Kern-Haus realisiert Massivhäuser in Ziegel, Bims, Porenbeton oder Stahlbeton (DuoTherm).
Kern-Haus setzt auf eine hohe Bauqualität der Handwerker und auf eine große Auswahl starker Marken. So verwendet Kern-Haus beim Bau Ihres Hauses nur hochwertige Markenprodukte renommierter Hersteller – wie etwa Produkte von Villeroy & Boch.
Preise und Auszeichnungen von Kern-Haus:
- German Brand Award in den Jahren 2018 und 2021
- Hausbau Design Award: Sieger in den Jahren 2017, 2018, 2019, 2020, 2021, 2022 und 2023
- Deutscher Traumhauspreis: Sieger in den Jahren 2014, 2015, 2016 und 2018 und Silber 2017, 2020 und 2021
- Mittelstandspreis "Top 100" in den Jahren 2014, 2016, 2018, 2020 und 2022
- German Design Award im Jahr 2018
Weitere Informationen
Der gezeigte Preis versteht sich inklusive Grundstück und exklusive der Baunebenkosten und bezieht sich auf die Variante links des Hauses.
Grundriss
Grundriss Erdgeschoss
>
>
Grundriss Obergeschoss
>
>
Adresse
65510 Hünstetten
Interessante Orte
Preis- und Lageinformationen
Preistrend für Bestandsimmobilien in Hünstetten