Dieses charmante Einfamilienhaus in konventioneller Bauweise wurde im Jahr 1978 errichtet und liegt ruhig am Ende eines Wendehammers – in direkter Nähe zum idyllischen Forst Klövensteen.
Das großzügige Grundstück umfasst rund 1.008 m² und ist ideal nach Westen ausgerichtet – perfekte Voraussetzungen für sonnige Stunden von Mittag bis in den Abend. Mit einer Wohnfläche von ca. 199 m² bietet das Haus ausreichend Platz für die ganze Familie sowie vielfältige Möglichkeiten zur individuellen Gestaltung.
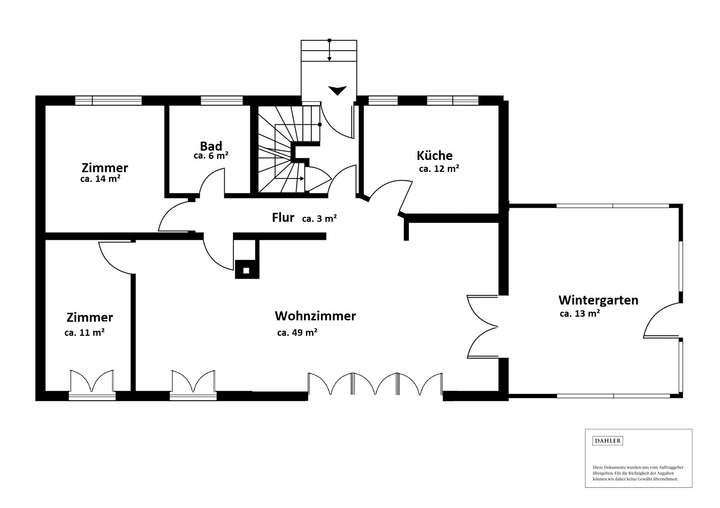
Die Raumaufteilung erstreckt sich über zwei Vollgeschosse (Erd- und Obergeschoss) und umfasst insgesamt fünf Zimmer sowie zwei weitere halbe Zimmer. Vom einladenden, hellen Flur gelangt man direkt in den offen gestalteten Wohn- und Essbereich mit ca. 49 m² Fläche. Daran schließt sich ein nach Süden ausgerichteter Wintergarten mit ca. 13 m² an – ein wunderbarer Ort zum Entspannen. Zwei weitere Räume, ideal als Schlaf- oder Arbeitszimmer nutzbar, sowie ein vorbereitetes Duschbad ergänzen das Raumangebot im Erdgeschoss. Die separate Küche ist in einem schlichten Weiß gehalten und funktional ausgestattet.
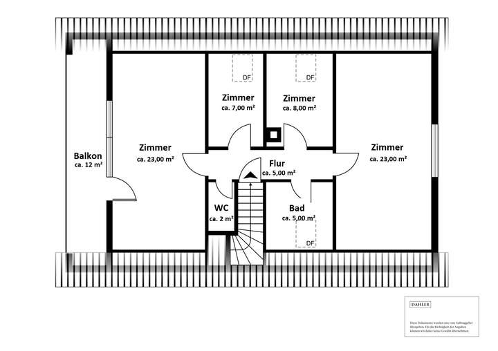
Im Obergeschoss befinden sich zwei großzügige Schlafzimmer mit jeweils ca. 23 m² – eines davon mit einem Balkon über die gesamte Zimmerbreite. Dazwischen liegen zwei kleinere Zimmer mit Blick in den Garten, die sich bei Bedarf zu einem größeren Raum zusammenlegen lassen. Ein Vollbad sowie ein separates WC sorgen auch auf dieser Ebene für Komfort.
Das Haus ist vollständig unterkellert und bietet auf ca. 100 m² zusätzliche Nutzfläche bei einer angenehmen Deckenhöhe von ca. 2,20 m. Ein praktischer Schuppen am Haus schafft weiteren Stauraum, beispielsweise für Gartengeräte. Für Fahrzeuge steht eine Doppelgarage mit elektrischem Garagentor zur Verfügung. Auch die Einfahrt ist bequem über ein elektrisches Tor zugänglich.
Beheizt wird die Immobilie über eine Gas-Zentralheizung mit Brennwerttechnik aus dem Jahr 1999.
Einfamilienhaus mit Freiraum für Ihre Wünsche – mitten im grünen Klövensteen!
22559 Hamburg
Die vollständige Adresse der Immobilie erhalten Sie vom Anbieter.
Auf Karte anzeigen
Die vollständige Adresse der Immobilie erhalten Sie vom Anbieter.
Finanzierungszertifikat
In nur zwei Minuten zu Ihrem persönlichen Finanzierungszertifkat.
Infos
| Haustyp | Einfamilienhaus |
|---|---|
| Wohnfläche ca. | 199 m2 |
| Grundstücksfläche | 1.008 m2 |
| Zimmer | 5 |
| Schlafzimmer | 4 |
| Badezimmer | 2 |
| Garage/Stellplatz | Garage |
| Anzahl Garage/Stellplatz | 1 |
Kosten
| Kaufpreis |
975.000 € |
|---|---|
| Provision |
3,57 % inkl. der gesetzl. MwSt., bezogen auf den Kaufpreis |
Finanzierungsrechner:
Kaufpreis:
600.000 €
Eigenkapital:
600.000 €
Monatliche Rate
0 €
Effektiver Jahreszins
0 %
Sollzinsbindung
10 Jahre
Bausubstanz & Energieausweis
| Baujahr | 1978 |
|---|---|
| Objektzustand | Renovierungsbedürftig |
| Heizungsart | Gas-Heizung |
| Wesentliche Energieträger | Gas |
| Energieausweis | liegt vor |
| Energieausweistyp | Verbrauchsausweis |
| Energieverbrauchskennwert | 213,4 kWh/(m²*a) |
| Energieeffizienzklasse | G |
213,4
kWh/(m²*a)
Energieeffizienzklasse G
- A+
- A
- B
- C
- D
- E
- F
- G
- H
- 0
- 25
- 50
- 75
- 100
- 125
- 150
- 175
- 200
- 225
- >250
Beschreibung des Objekts
Ausstattung
Im Erdgeschoss der angebotenen Immobilie wurden helle Fliesen verlegt, die gemeinsam mit der Fußbodenheizung für eine angenehme Wohnatmosphäre sorgen. Ein Kamin im offenen Wohn- und Essbereich schafft zusätzlich eine behagliche Stimmung – ideal für gemütliche Abende.
Die weißen Sprossenfenster mit zweifacher Verglasung, teilweise bodentief zur Gartenseite hin, lassen viel Tageslicht in die Räume und unterstreichen den charmanten Charakter des Hauses.
Im Obergeschoss sind sämtliche Zimmer mit einem hellen Laminatboden ausgestattet, der für ein freundliches und wohnliches Ambiente sorgt.
Die angrenzende Einbauküche ist in heller Optik gehalten und verfügt über hochwertige Markengeräte. Sie verbindet Funktionalität mit zeitlosem Design und fügt sich harmonisch in den Wohn- und Essbereich ein.
Lage
Das perfekte Gleichgewicht zwischen urbanem Leben und ländlicher Idylle: Willkommen in Rissen, dem charmanten Elbvorort im Westen Hamburgs. Eingebettet zwischen dem nördlichen Elbufer und dem weitläufigen Forst Klövensteen, zeigt sich die Hansestadt hier von ihrer naturnahen und besonders familienfreundlichen Seite.
Rissen besticht durch eine besondere Ruhe, die das Ankommen leicht macht. Die umliegende Natur ist dabei der wahre Hauptdarsteller: Lichtdurchflutete Wälder, mystische Moore, weite Heideflächen, eindrucksvolle Ausblicke und frische Luft – all das beginnt direkt vor Ihrer Haustür.
Kitas, Schulen sowie Einkaufsmöglichkeiten für den täglichen Bedarf befinden sich in unmittelbarer Nähe. Die kurzen Wege und die entspannte Atmosphäre ermöglichen es Kindern, sich sicher und frei zu bewegen.
Auch für sportlich Aktive bietet Rissen vielfältige Möglichkeiten – ob Reiten, Tennis, Fußball oder Fitness: Hier ist für jedes Alter etwas dabei.
Trotz der naturnahen Lage ist das Zentrum Hamburgs schnell erreichbar. Die S-Bahn-Anbindung sowie die gute Straßeninfrastruktur bringen Sie bequem und zügig ins Büro, zum Theater oder zum Shopping in die City. Zahlreiche Einrichtungen des täglichen Bedarfs wie Supermärkte, Bäckereien, Cafés, Restaurants, Apotheken, eine Buchhandlung, Postannahmestelle und ein Fitnessstudio sind fußläufig erreichbar.
Besondere Highlights wie der malerische Elbstrand Wittenbergen oder der renommierte Golfclub Falkenstein befinden sich nur wenige Minuten entfernt.
Rissen vereint das Beste aus zwei Welten – naturnahes Wohnen mit urbanem Komfort. Ein Ort zum Durchatmen und Ankommen.
Grundriss
Erdgeschoss
>
>
Obergeschoss
>
>
Untergeschoss
>
>
Adresse
22559 Hamburg
Interessante Orte
Preis- und Lageinformationen
Preistrend für Bestandsimmobilien in Rissen