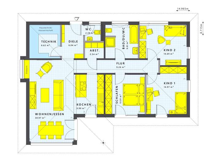
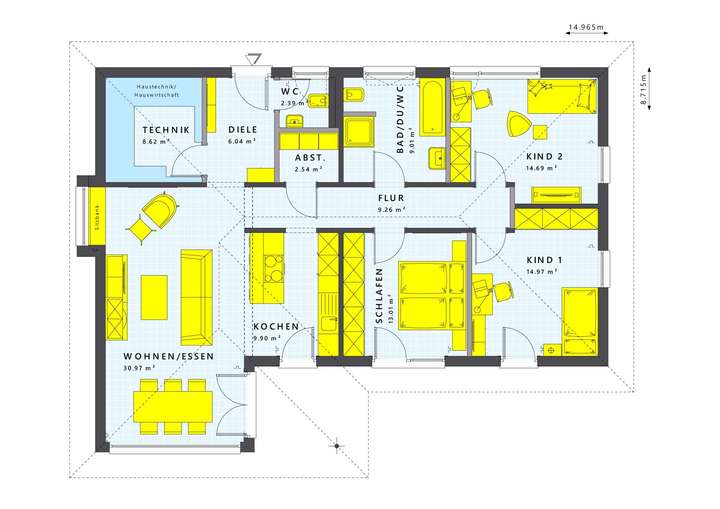
Dieser moderne Bungalow in Schellerten ist mehr als nur ein Fertighaus - es ist dein persönliches Rückzugsgebiet, das nach deinen individuellen Wünschen und Vorstellungen gestaltet wird. Mit einer großzügigen Wohnfläche von 110,44 m² auf einem 524 m² großen Grundstück bietet er dir und deiner Familie ausreichend Platz zum Leben und Entspannen. Die innovative Architektur mit zwei Querhäusern unter dem stilvollen Walmdach schafft nicht nur eine einladende Fassade, sondern auch einen charmanten Freisitz, der sich perfekt als Terrasse gestalten lässt. Der offene Wohnbereich bietet Raum für eine große Essgruppe und gemütliche Leseecken, während die beiden Schlafzimmer Rückzugsorte der Ruhe und Erholung sind.
LivingHaus unterstützt dich in allen Phasen des Bauprojekts. Mit der hochwertigen Traumküche, die individuell auf deinen Grundriss abgestimmt wird, kannst du sofort nach dem Einzug deine Kochkünste entfalten. Die moderne Technik und durchdachte Stauraumlösungen sorgen dafür, dass alles perfekt organisiert ist.
Das Living Haus Bau-Cockpit ermöglicht es dir, dein Bauprojekt ganz einfach zu verwalten. Du behältst den Überblick über Zeitpläne und Dokumente und kannst so stressfrei bauen. Die I-KON-Technologie vereint nachhaltiges Bauen mit modernster Technik, damit dein Zuhause energieeffizient und umweltfreundlich wird. Mit dem Zuhause-Darlehen hast du zudem die Möglichkeit, dein Traumhaus zu einem besonders günstigen Zinssatz zu finanzieren.
Das Zuhause-Paket sorgt dafür, dass dein Haus mit einer hochwertigen Grundausstattung geliefert wird, die moderne Böden, edle Türen und stilvolle Sanitäranlagen umfasst. Und wenn du gerne selbst Hand anlegst, hilft dir unser DIY-Ausbau-Coaching, deinen Innenausbau zu meistern. In nur drei Tagen zeigen dir Experten, wie du selbst kreativ werden kannst. Mit LivingHaus bist du bestens gerüstet, um dein individuelles Traumhaus zu verwirklichen.
Gestalte dein individuelles Traumhaus mit LivingHaus in Schellerten
31174 Schellerten
Die vollständige Adresse der Immobilie erhalten Sie vom Anbieter.
Auf Karte anzeigen
Die vollständige Adresse der Immobilie erhalten Sie vom Anbieter.
Finanzierungszertifikat
In nur zwei Minuten zu Ihrem persönlichen Finanzierungszertifkat.
Infos
| Haustyp | Bungalow |
|---|---|
| Etagenzahl | 1 |
| Wohnfläche ca. | 110 m2 |
| Nutzfläche | 110,44 m2 |
| Grundstücksfläche | 524 m2 |
| Zimmer | 3 |
| Schlafzimmer | 2 |
| Badezimmer | 1 |
Kosten
| Kaufpreis |
589.183 € |
|---|
Finanzierungsrechner:
Kaufpreis:
600.000 €
Eigenkapital:
600.000 €
Monatliche Rate
0 €
Effektiver Jahreszins
0 %
Sollzinsbindung
10 Jahre
Bausubstanz & Energieausweis
| Baujahr | 2026 |
|---|---|
| Bauphase | Haus in Planung (projektiert) |
| Qualität der Austattung | Gehoben |
| Energieausweis | liegt vor |
| Energieausweistyp | Bedarfsausweis |
| Energieverbrauchskennwert | 18,0 kWh/(m²*a) |
| Energieeffizienzklasse | A+ |
18,0
kWh/(m²*a)
Energieeffizienzklasse A+
- A+
- A
- B
- C
- D
- E
- F
- G
- H
- 0
- 25
- 50
- 75
- 100
- 125
- 150
- 175
- 200
- 225
- >250
Beschreibung des Objekts
Ausstattung
In deinem zukünftigen Zuhause erwartet dich eine durchdachte Ausstattung, die keine Wünsche offenlässt. Hochwertige Materialien und moderne Technik stehen im Mittelpunkt. Die Traumküche von Living Haus wird perfekt auf deinen Grundriss abgestimmt und ist mit innovativer Technik ausgestattet. Das Zuhause-Paket beinhaltet moderne Böden, edle Türen und stilvolle Sanitäranlagen, die alle optimal aufeinander abgestimmt sind. Du erhältst außerdem Zugang zum Living Haus Bau-Cockpit, wo du alle Bauunterlagen und Termine digital verwalten kannst. Mit der I-KON-Lösung wird dein Haus energieeffizient, und die integrierte PV-Anlage sorgt für eine nachhaltige Stromversorgung. Für den Innenausbau erhältst du Materialien wie Fliesen für das gesamte Erdgeschoss und bodengleiche Duschen mit Echtglasabtrennung. Alles wird fix und fertig geliefert, damit du sofort einziehen kannst. So wird dein "Wie ich es will Fertighaus" zur Realität.
Lage
Schellerten bietet dir eine hervorragende Lebensqualität mit einer Vielzahl an Bildungseinrichtungen, Gesundheitsangeboten, Einkaufsmöglichkeiten und Freizeitaktivitäten. In unmittelbarer Nähe findest du mehrere Kindergärten und Schulen, darunter die Grundschule Schellerten, die für ihre liebevolle Betreuung und gute Lernatmosphäre bekannt ist. Auch die weiterführenden Schulen in den angrenzenden Orten sind gut erreichbar und bieten eine umfassende Ausbildung.
Für die Gesundheitsversorgung stehen dir verschiedene Ärzte und eine Apotheke zur Verfügung. Supermärkte und Einkaufszentren sind in wenigen Minuten erreichbar, sodass du deinen täglichen Bedarf problemlos abdecken kannst. Die zentrale Lage in Niedersachsen ermöglicht dir zudem eine gute Anbindung an den öffentlichen Nahverkehr sowie die Autobahn A7, die für Pendler eine schnelle Verbindung nach Hildesheim und Hannover bietet.
In der Umgebung von Schellerten gibt es zahlreiche Freizeitangebote. Ob Wanderungen in der Natur oder sportliche Aktivitäten in örtlichen Vereinen - hier ist für jeden etwas dabei. Die schöne Landschaft lädt zu Erkundungen und Ausflügen ein, während du in der Nähe auch vielfältige kulturelle Angebote findest. Das macht Schellerten zu einem idealen Ort für Familien, Naturliebhaber und Pendler, die die Vorzüge einer ländlichen Umgebung schätzen, ohne auf die Vorzüge einer städtischen Infrastruktur verzichten zu müssen.
Grundriss
Gestaltungsbeispiel EG
>
>
Adresse
31174 Schellerten
Interessante Orte
Preis- und Lageinformationen
Preistrend für Bestandsimmobilien in Schellerten