Exklusives, denkmalgeschütztes Anwesen aus dem Jahr 1900 mit Geschichte und Charakter. Ein Ort voller Möglichkeiten: ob familiäre Nutzung als Einfamilienhaus, kombiniert mit einem repräsentativen Firmensitz, Mehrgenerationenwohnen oder als Kapitalanlage (3 Familienhaus). Hier trifft architektonische Eleganz auf eine großzügige, moderne Raumaufteilung auf einem 1.129 m² großen, grün angelegten Grundstück.
Die Highlights sind:
• klassischer, lebendiger Fassadenanblick mit dekorativen und kunstvollen Details
• ca. 294 m² Wohnfläche verteilt auf drei voneinander getrennte Wohneinheiten (gem. Teilungserklärung)
• beeindruckende Deckenhöhen bis zu 3,35 m im EG und 1.OG
• die Wohnung im Dachgeschoss imponiert durch das freigelegte Fachwerk und die offene Gestaltung
• lichtdurchflutete Wohnräume mit klassischem Jugendstilcharakter, Holzböden in den Wohnräumen und Terrazzo im Treppenhaus
• antike Kaminöfen auf zwei Ebenen
• Wellnessbereich mit Whirlpool-Badewanne, Sauna und Ruheraum im ausgebauten Gewölbekeller
• 1.129 m² parkähnliches Grundstück mit altem Baumbestand, Schwimmteich und Terrassen
• große Doppelgarage inklusive Werkstatt und Carport für 2 weitere Fahrzeuge
• Hanglage in Seeheim, in der Nähe des Goldschmidt-Parks
EXTERIEUR
Die freistehende Altbauvilla aus dem Jahr 1900 präsentiert sich mit klassischer Fassadengestaltung, markanten Giebeldächern und dekorativen Zierelementen - ein architektonisch ansprechendes Gebäude mit historischem Charakter. Die gepflegte Fassade mit Sandsteinelementen, den hölzernen Verzierungen am Giebel und der Balkone verleiht dem Haus eine besondere Präsenz und hebt es stilvoll aus der Umgebung hervor.
Das parkähnliche Grundstück umfasst 1.129 m² und ist durch einen gewachsenen Baumbestand, dichten Hecken und eine abwechslungsreiche Bepflanzung geprägt. Die Gartenfläche erstreckt sich entlang der Hausrückseite und bietet viel Platz für Ruhe, Freizeit oder individuelle Gestaltungsmöglichkeiten. Ein absolutes Highlight ist der Teichbereich, der dem Garten Struktur und Tiefe verleiht und für ein kühles Nass im Sommer sorgt.
Mehrere Sitzmöglichkeiten im Außenbereich laden zum Verweilen ein und die umliegende Vegetation sorgt für ein hohes Maß an Privatsphäre. Dank der Süd-Westausrichtung lässt sich die Sonne bis in die Abendstunden genießen.
Eine große Doppelgarage mit viel Platz, sowie ein Carport runden dieses besondere Anwesen perfekt ab.
Ein Rückzugsort für Menschen, für welche Atmosphäre und Ruhe im Fokus stehen.
Jugendstilvilla auf parkähnlichem Grundstück
64342 Seeheim-Jugenheim
Die vollständige Adresse der Immobilie erhalten Sie vom Anbieter.
Auf Karte anzeigen
Die vollständige Adresse der Immobilie erhalten Sie vom Anbieter.
Finanzierungszertifikat
In nur zwei Minuten zu Ihrem persönlichen Finanzierungszertifkat.
Infos
| Haustyp | Mehrfamilienhaus |
|---|---|
| Etagenzahl | 3 |
| Wohnfläche ca. | 294 m2 |
| Grundstücksfläche | 1.129 m2 |
| Bezugsfrei ab | nach Vereinbarung |
| Zimmer | 12 |
| Badezimmer | 3 |
| Anzahl Garage/Stellplatz | 4 |
Kosten
| Kaufpreis |
1.890.000 € |
|---|---|
| Provision |
4,76 % Die Käuferprovision beträgt 4,76% (inkl. MwSt) des beurkundeten Kaufpreises. |
Finanzierungsrechner:
Kaufpreis:
600.000 €
Eigenkapital:
600.000 €
Monatliche Rate
0 €
Effektiver Jahreszins
0 %
Sollzinsbindung
10 Jahre
Bausubstanz & Energieausweis
| Baujahr | 1900 |
|---|---|
| Letzte Sanierung | 1999 |
| Denkmalschutzobjekt | Ja |
| Objektzustand | Gepflegt |
| Qualität der Austattung | Normal |
| Heizungsart | Gas-Heizung |
| Wesentliche Energieträger | Gas |
| Energieausweis | laut Gesetz nicht erforderlich |
Beschreibung des Objekts
Ausstattung
Dieses prachtvolle Anwesen aus dem Jahr 1900 bietet drei vollständig abgeschlossene Wohneinheiten mit insgesamt ca. 294 m² Wohnfläche, verteilt auf drei Etagen.
Bereits im großzügigen Treppenhaus versprüht der Stil des Baujahres seinen Charme. Die Holzeingangstür, der Terrazzoboden, das verspielte Holzgeländer und die imposante Größe des Raums tragen dazu bei.
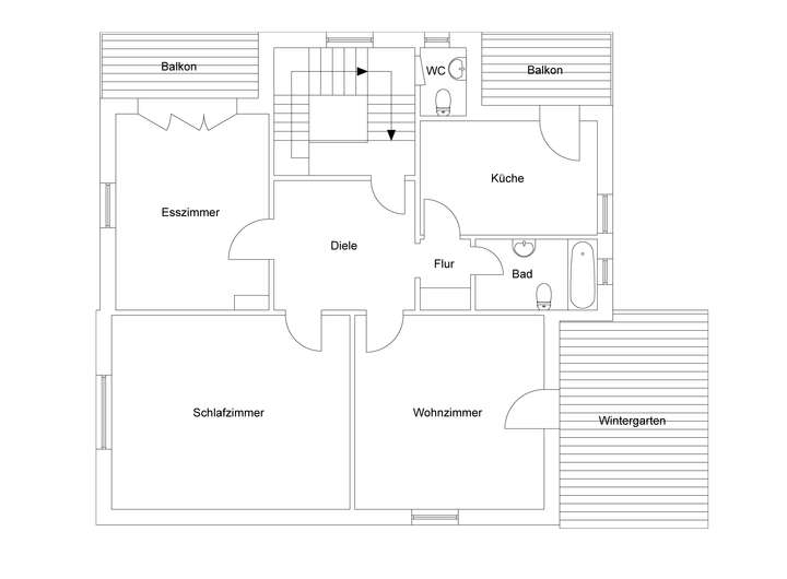
EG-Wohnung: Schon beim Betreten der ca. 129 m² großen 4-Zimmerwohnung spürt man, dass hier der Tag mit Weite und Licht beginnt. Das freundliche Entrée bietet einen Ort, an dem Schuhe unaufgeregt stehen dürfen, Jacken ihren Platz finden und der Alltag seinen Lauf nehmen kann. Ein antiker Kaminofen sorgt für das erste Aufwärmen an kalten Wintertagen.
Vom ca. 23 m² großzügig geschnittenen Wohn- oder Esszimmer als Durchgangszimmer führen zwei weitere Räume ab. Einer durch eine Stilaltbau-Doppelflügelschiebetür mit ca. 23 m² Größe und einer mit ca. 16 m² Größe. Die hohen Fenster fluten die Räume mit Tageslicht, während der Blick hinaus auf die grüne Gartenoase fällt.
Im Sommer öffnen sich hier die Türen zur Terrasse hinter dem Haus, auf der das Frühstück im Freien zur Routine werden darf. Ein Platz für lange Sommerabende, Grillrunden mit Freunden oder ruhige Momente mit einem Buch.
Ein kleiner Flur führt zu der ca. 12 m² großen Küche - abgeschirmt genug, um Ordnung zu halten, aber nah genug, um mitten im Geschehen zu bleiben. Mit ihrer klassischen Aufteilung, inklusive Kochinsel und Platz für eine kleine Essecke, ist sie ein Ort, an dem gekocht, gelacht und gelebt wird. Praktisch ergänzt wird die Küche durch eine separate Abstellkammer und ebenfalls durch einen Ausgang in den Außenbereich.
Daran angrenzend das anthrazitfarbene Tageslichtbad mit Walk-In-Dusche und Rainshower, Waschbecken, sowie WC. Für Gäste steht ein separates WC im Treppenhaus bereit.
Rechterhand am Wohnungseingang befindet sich ein weiteres ca. 16 m² großes Zimmer mit einem verwunschenen Balkon, welches als Arbeits-, Gäste- oder Schlafzimmer Verwendung finden kann und das Wohnangebot für diese Erdgeschosswohnung perfekt abrundet.
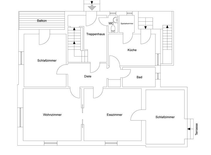
Über das einladend helle Treppenhaus mit historischem Holzgeländer, rotem Handlauf und großzügigen Fenstern gelangt man in die oberen beiden Wohnungen.
Das 1. Obergeschoss ist vom Grundriss ähnlich zur Wohnung im Erdgeschoss. Auf ca. 116 m² verteilen sich zwei Schlafzimmer, wovon eines Zugang zu einem Balkon hat, sowie ein ca. 27 m² großes Wohnzimmer mit direktem Zugang zum gläsernen Wintergarten - ein Bereich der Ruhe mit atemberaubendem Blick in die Baumkronen. Öffnet man das große Fensterschiebeelement, vereint sich der innere Lebensraum regelrecht mit dem Äußeren.
Über einen kleinen Flur erreicht man die ca. 12 m² große Küche mit einem weiteren Balkon, sowie das schwarz-weiß geflieste Tageslichtbad mit Badewanne, welches analog zur Wohnung im Erdgeschoss, durch ein separates Gäste-WC im Treppenhaus ergänzt wird.
DG-Wohnung: Ganz oben, etwas verborgen und aktuell vermietet, liegt eine ca. 49 m² große 3-Zimmerwohnung.
Zusätzlich erweitert eine rund 37 m² große Fläche mit eingeschränkter Deckenhöhe (2,10-2,20 m) das Platzangebot. Vom Flur aus gelangt man direkt in die große Küche. Von dort aus eröffnen sich alle weiteren Räumlichkeiten. Das großzügig geschnittene Wohn-Esszimmer - ein Raum mit Persönlichkeit. Die Dachschrägen, Gauben und freigelegten Holzbalken geben dem Raum Charakter, machen ihn gemütlich und weit zugleich.
Eine Teilöffnung des Spitzbodens, über eine offene Treppe erreichbar, bietet Platz für Koffer, Winterjacken oder alte Fotoalben.
Zwei weitere Räume, welche sich als Schlafzimmer anbieten und ein Duschbad, bereichern das Wohnangebot dieser Etage.
SONSTIGES
Optional besteht die Möglichkeit, anstelle des gesamten Anwesens auch nur die beiden großzügigen Wohneinheiten im EG und im 1. OG gemeinsam zu erwerben.
Lage
Im Herzen der malerischen Bergstraße, rund zehn Kilometer südlich der Wissenschaftsstadt Darmstadt, liegt Seeheim-Jugenheim - eine Gemeinde, die Naturverbundenheit, Ruhe und Lebensqualität in perfekter Weise vereint. Die Landschaft ist geprägt von sanften Höhenzügen, dichten Wäldern und weiten Feldern. Ein echtes Kleinod im Süden Hessens.
Das historische Anwesen befindet sich in sonniger ruhiger Ortsrandlage. Eingebettet in eine ruhige Villengegend und fußläufig zum Goldschmidt-Park.
Die nahegelegene Autobahn A5 verbindet den Ort zügig mit den Wirtschaftszentren Frankfurt und Mannheim. Dank eines gut ausgebauten ÖPNV-Netzes sind auch Darmstadt und die umliegenden Städte bequem mit Bus und Straßenbahn erreichbar. Der Frankfurter Flughafen liegt in komfortabler Reichweite - etwa eine halbe Stunde Fahrzeit entfernt.
Im Ortskern von Seeheim finden sich sämtliche Einrichtungen des täglichen Lebens: Einkaufsmöglichkeiten, Cafés und Restaurants. Die medizinische Versorgung ist durch mehrere Allgemein- und Fachärzte, sowie eine Apotheke gewährleistet
Auch im Bildungsbereich setzt die Gemeinde Maßstäbe: Das überregional geschätzte Schuldorf Bergstraße vereint verschiedene Schulformen unter einem Dach, von der Grundschule bis zur gymnasialen Oberstufe, und bietet mit der State International School Seeheim (SISS) auch international orientierten Familien passende Perspektiven. Der Unterricht dort orientiert sich teilweise am britischen Curriculum und ermöglicht internationale Abschlüsse, wie das IGCSE und das International Baccalaureate (IB).
Seeheim-Jugenheim steht für einen Lebensstil, der entschleunigt, ohne den Anschluss zu verlieren - ideal für alle, die Wert auf ein familienfreundliches, ruhiges Umfeld legen und dennoch mobil und gut vernetzt bleiben möchten.
Sonstige Angaben
Hinweise:
Alle Angaben sind ohne Gewähr und basieren ausschließlich auf Informationen, die uns von unserem Auftraggeber übermittelt wurden. Wir übernehmen keine Haftung für die Vollständigkeit, Richtigkeit und Aktualität dieser Angaben. Es obliegt dem Kunden die Angaben und Informationen zum Objekt auf Richtigkeit zu überprüfen. Eine Haftung für die inhaltliche Vollständigkeit und Richtigkeit der Angaben wird nur im Falle des Vorsatzes oder der groben Fahrlässigkeit übernommen. Irrtum und Zwischenverkauf vorbehalten. Die Grunderwerbsteuer, Notar- und Grundbuchkosten sind vom Käufer zu tragen. Auf Wunsch stehen wir Ihnen mit weiteren Informationen zum Objekt und zum Eigentümer gerne zur Verfügung. Die Besichtigung kann jederzeit nach Vereinbarung mit einem unserer Mitarbeiter/Beauftragten erfolgen.
Grundriss
Grundriss EG
>
>
Grundriss OG
>
>
Grundriss DG
>
>
Grundriss Keller
>
>
Adresse
64342 Seeheim-Jugenheim
Interessante Orte
Preis- und Lageinformationen
Preistrend für Bestandsimmobilien in Seeheim-Jugenheim