Dieses vollunterkellerte Ein-/Zweifamilienhaus mit unverwechselbaren Rundbogenfenstern besticht mit 8 Zimmern auf etwa 210 m² Wohnfläche und einem der größten Grundstücke in Vechelde (1.066 m²) besonders durch diese Highlights:
• Viel Platz mit einer Wohnfläche von ca. 210m²
• Zusätzlich für Wohnzwecke nutzbares Kellergeschoss (132m²) mit ca. 2,45m Raumhöhe
• Beste und ruhige Ortskernlage in Vechelde nahe großem Einkaufszentrum
• Exzellente Verkehrsanbindung nach BS, WOB, SZ und PE
• Riesiges Grundstück (1.066 m²) zur Verwirklichung Ihrer Gartenträume
• Nicht einsehbarer Süd-Garten und großzügiger Garten auf der Gebäuderückseite
• Ideal für mehrere Generationen unter einem Dach (ZFH)
• Außergewöhnliche Architektur mit Rundbögen-Fenstern
• Solide, wärmedämmende Vollklinker-Wetterschutzfassade
• Fußbodenheizung
• Alle Fenster mit moderner 2-fach-Isolier-Verglasung z.T. mit Außenrollos
• Moderne Elektroinstallation (3-adrig) mit Sicherungen nach aktuellem Standard
• Geklinkerte Garage mit zusätzlichem 2. Stellplatz auf der Zuwegung direkt vor der Haustür
• Verklinkerter Kaminofen (Kaminzimmer) mit Außen-Grillkamin (2 Terrassen)
• Zusätzlicher Stauraum im Dachboden
• Niedrigtemperatur-Kesselheizung (kein Austausch beim Kauf nötig)
• Glasfaser-DSL-Internet vorhanden
• Privatverkauf - keine Maklerprovision
Bei dieser außergewöhnlichen Immobilie in Vecheldes Ortskern-Bestlage handelt es sich um ein freistehendes Ein-/Zweifamilienhaus mit sehr viel Platz zur Verwirklichung Ihrer Wohnträume — Innen, wie Außen.
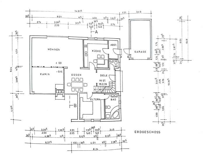
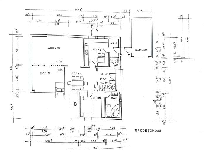
Das Objekt bietet mit min. 8 großzügigen Zimmern auf zwei Etagen auch 2 Badezimmer (EG, 1.OG) und ein separates Gäste-WC (EG).
Im Erdgeschoss erreicht man über den Eingangsbereich das Gäste-WC, den Treppenbereich und die Garderobe im Flur. Abgetrennt durch eine Tür gelangt man dann in die Küche mit separatem Abstellraum, das Esszimmer, Wohnzimmer und Kaminzimmer sowie ein Schlafzimmer mit eigenem großen Badezimmer.
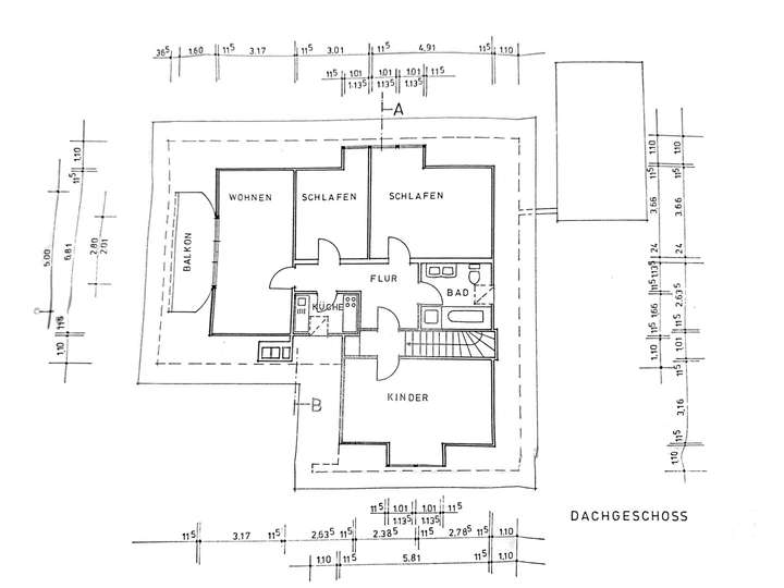
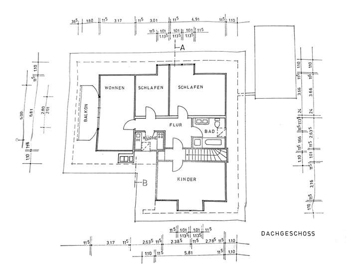
Im Obergeschoss eröffnen sich über den Flur mit Dachbodenzugang und Abstellkammer insgesamt 4 helle Zimmer (früher 3 Kinderzimmer + 1 weiteres Schlafzimmer) sowie ein großes Badezimmer und eine kleine Wohnküche.
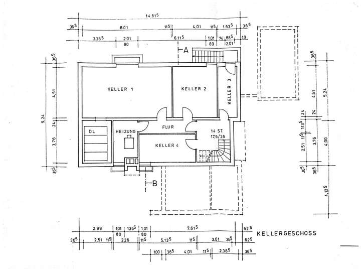
Im Keller können Sie 4 Räume mit wohntauglichen Raumhöhen von ca. 2.45m als Spiel- oder Hobbyraum, Arbeitszimmer nutzen und Dinge warm und trocken lagern. Einer dieser Räume bietet sich als Wäscheraum an, da er neben Waschbecken und Toilette auch Waschmaschinenanschlüssen sowie einen Zugang zum Garten ermöglicht.
Zusätzlich befindet sich der Heizungsraum im Keller.
Auch das dazugehörige Grundstück bietet Ihnen mit unvergleichlichen 1.066 m² viel Gestaltungsraum für Ihre Wünsche (z.B. Pool, Gartenhaus-Sauna, die eigene Gemüsezucht) und vor Allem sehr viel Platz für die Kinder zum Spielen.
Die freistehende Garage bietet Platz für Autos und Gartengeräte.
Einzigartige 8-Zimmer-Klinker-Villa (210m²) + 1.066m² Grundstück in Vecheldes Toplage zum Wachküssen
38159 Vechelde
Die vollständige Adresse der Immobilie erhalten Sie vom Anbieter.
Auf Karte anzeigen
Die vollständige Adresse der Immobilie erhalten Sie vom Anbieter.
Finanzierungszertifikat
In nur zwei Minuten zu Ihrem persönlichen Finanzierungszertifkat.
Infos
| Haustyp | Mehrfamilienhaus |
|---|---|
| Etagenzahl | 1 |
| Wohnfläche ca. | 210 m2 |
| Nutzfläche | 280 m2 |
| Grundstücksfläche | 1.066 m2 |
| Bezugsfrei ab | sofort |
| Zimmer | 8 |
| Schlafzimmer | 5 |
| Badezimmer | 3 |
| Garage/Stellplatz | Garage |
| Anzahl Garage/Stellplatz | 1 |
Kosten
| Kaufpreis |
599.000 € |
|---|---|
| Provision | Nein |
Finanzierungsrechner:
Kaufpreis:
600.000 €
Eigenkapital:
600.000 €
Monatliche Rate
0 €
Effektiver Jahreszins
0 %
Sollzinsbindung
10 Jahre
Bausubstanz & Energieausweis
| Baujahr | 1982 |
|---|---|
| Bauphase | Haus fertig gestellt |
| Objektzustand | Gepflegt |
| Heizungsart | Zentralheizung |
| Wesentliche Energieträger | Öl |
| Energieausweis | liegt vor |
| Energieausweistyp | Verbrauchsausweis |
| Energieverbrauchskennwert | 73,3 kWh/(m²*a) |
| Energieeffizienzklasse | B |
73,3
kWh/(m²*a)
Energieeffizienzklasse B
- A+
- A
- B
- C
- D
- E
- F
- G
- H
- 0
- 25
- 50
- 75
- 100
- 125
- 150
- 175
- 200
- 225
- >250
Beschreibung des Objekts
Ausstattung
Terrasse, Garten, Keller, Vollbad, Gäste-WC, Kamin, Fliesen
Lage
Das Objekt befindet sich in ruhiger und zentraler Ortskern-Bestlage direkt in Vechelde, das sich in den letzten Jahr mit rund 20.000 Einwohnern zum Zentrum der Region entwickelt hat.
So bietet Vechelde auch längst neben Kindergärten/Kitas alle Schulen von der Grundschule bis zum Gymnasium an.
Diese Vorteile zusammen mit dem in wenigen Fußminuten von der Immobilie gelegenem großen Einkaufszentrum mit REWE, dm, ALDI, LIDL, Fressnapf, JYSK, Action, Apotheke, Ärzte/Tierärzte, Fitnessstudio, Baumarkt, McDonalds und Vielem mehr lässt wirklich keine Wünsche offen.
Zudem runden nahegelegene Restaurants, Bäckereien, Ärzte, Cafés, weitere Geschäfte und Läden, zahlreiche Kindergärten und Schulen, Sportanlagen sowie der großzügige Schlosspark das breite Angebot Vecheldes nochmals weiter ab, weshalb Vechelde auch so beliebt ist.
Die Bushaltestelle "Wahler Weg" ist am Ende der Straße sehr nah und auch der Vechelder Bahnhof ist schnell erreicht. Über die unmittelbare Zufahrt auf die Umgehungsstraße B1 sind sie mit dem Auto in etwa 10 Minuten in Braunschweig und mit schnellem Autobahnanschluss auch in etwa 30min in Wolfsburg.
Der Flughafen Hannover ist in etwa 45 Minuten erreicht.
Infrastruktur (im Umkreis von 5 km):
Apotheke, Lebensmittel-Discount, Allgemeinmediziner, Kindergarten, Grundschule, Hauptschule, Realschule, Gymnasium, Gesamtschule, Öffentliche Verkehrsmittel
Sonstige Angaben
Heizungsart: Zentralheizung
Energieträger: Öl
Nach Rücksprache mit einem Energieberater besteht keinerlei zwingender oder sinnvoller Bedarf einer energetischen Modernisierung (z.B. Fassade, Fenster, Dach, etc.).
Es empfiehlt sich, die bestehende vollfunktionsfähige Niedrigtemperaturkessel-Ölheizung gegen eine Wärmpumpenheizung auszutauschen, da abzgl. der aktuellen Heizungsförderungen nur 45% der Investitionskosten selbst zu tragen wären.
Makleranfragen nicht erwünscht. Nach § 7 UWG sind unaufgeforderte Kontaktaufnahmen durch Makler ohne ausdrückliche Einwilligung des Empfängers verboten!
ohne-makler (OM) ist weder Anbieter noch Vermittler der Immobilie. OM betreibt eine Plattform für Immobilieneigentümer, die unter anderem die gleichzeitige Veröffentlichung einzelner Inserate auf mehreren Immobilienportalen ermöglicht. Die Inhalte dieser Inserate werden ausschließlich von Dritten verantwortet. Für die Richtigkeit, Vollständigkeit oder Rechtmäßigkeit der Angaben übernimmt OM keine Haftung. Hinweise auf mögliche Rechtsverstöße können jederzeit gemeldet werden und werden nach Prüfung umgehend bearbeitet.
Weitere Dokumente
Gutachten/WohnflächenberechnunGrundriss
Grundriss Erdgeschoss (EG)
>
>
Grundriss Dachgeschoss (DG)
>
>
Grundriss Kellergeschoss (KG)
>
>
Schnitt A-B
>
>
Südansicht
>
>
Ostansicht
>
>
Westansicht
>
>
Nordansicht
>
PDF
Download
>
Adresse
38159 Vechelde
Interessante Orte
Preis- und Lageinformationen
Preistrend für Bestandsimmobilien in Vechelde