Das hier angebotene Mehrfamilienhaus bietet Kapitalanlegern und Investoren eine herausragende Gelegenheit mit großem Renditepotential in bester Lage von Bad Nauheim-Rödgen.
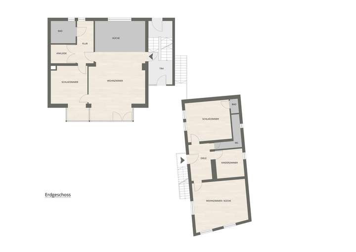
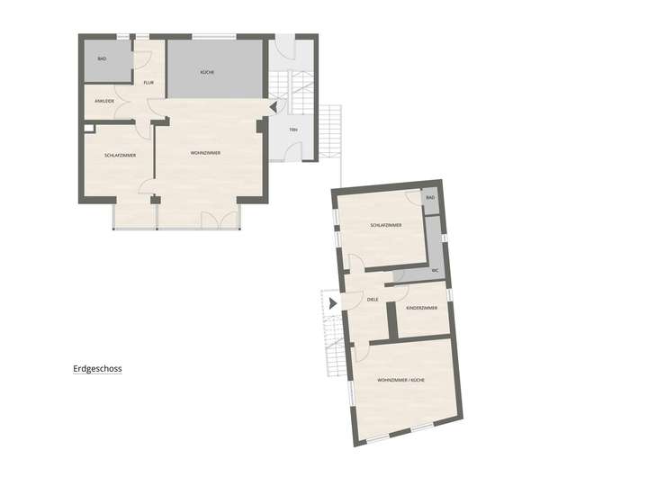
Die Immobilie umfasst zwei Wohnhäuser mit insgesamt 5 Wohneinheiten und einer Gesamtwohnfläche von ca. 325 m².
Vorderhaus: 2 Wohneinheiten / Baujahr ca. 1900 (in 2014 teilmodernisiert)
Hinterhaus: 3 Wohneinheiten / Baujahr 1993
Alle Einheiten sind vermietet, die jährliche Nettokaltmiete beträgt derzeit rund 49.560 €, was einer IST-Bruttomietrendite von 5,4% entspricht.
Der bauliche Zustand ist solide, die Ausstattung funktional und auf den langfristigen Mietwohnungsmarkt ausgerichtet. Zudem verfügt jede Wohnung über einen eigenen Außenstellplatz im Innenhof.
Die Beheizung des Vorderhauses erfolgt über eine zentrale Gasheizung (Bj. 2014). Das Hinterhaus wird durch eine zentrale Ölheizung (Bj. 1993) beheizt.
Direkt vor dem Gebäude befindet sich eine Bushaltestelle mit Stadtbusanbindung nach Bad-Nauheim. Mit dem Auto beträgt die Fahrzeit in die Stadt lediglich 2-3 Minuten, sodass durch die ruhige und dennoch verkehrsgünstige Lage eine kontinuierliche Vermietbarkeit gegeben ist.
Diese Immobilie bietet nicht nur Kapitalanlegern eine langfristig stabile Anlagemöglichkeit bei überschaubarem Instandhaltungsaufwand, Sie eignet sich auch perfekt für Immobilienhändler, da das Objekt bereits nach WEG geteilt wurde (Aufteilergeschäft möglich).
Gerne klären wir Ihre Fragen vorab, unterstützen Sie bei der Finanzierung und vereinbaren zeitnah einen Termin zur Besichtigung mit Ihnen.
Wir freuen uns auf Ihre Kontaktaufnahme.
Renditestarkes Mehrfamilienhaus mit 5 Wohneinheiten in Bad Nauheim-OT
61231 Bad Nauheim
Die vollständige Adresse der Immobilie erhalten Sie vom Anbieter.
Auf Karte anzeigen
Die vollständige Adresse der Immobilie erhalten Sie vom Anbieter.
Finanzierungszertifikat
In nur zwei Minuten zu Ihrem persönlichen Finanzierungszertifkat.
Infos
| Haustyp | Mehrfamilienhaus |
|---|---|
| Etagenzahl | 3 |
| Wohnfläche ca. | 325 m2 |
| Grundstücksfläche | 478 m2 |
| Bezugsfrei ab | sofort |
| Zimmer | 14 |
| Badezimmer | 5 |
| Anzahl Garage/Stellplatz | 5 |
Kosten
| Kaufpreis |
925.000 € |
|---|---|
| Provision |
3,57 % inkl. MwSt. |
| Mieteinnahmen | 4.130 € |
Finanzierungsrechner:
Kaufpreis:
600.000 €
Eigenkapital:
600.000 €
Monatliche Rate
0 €
Effektiver Jahreszins
0 %
Sollzinsbindung
10 Jahre
Bausubstanz & Energieausweis
| Baujahr | 1993 |
|---|---|
| Letzte Sanierung | 2014 |
| Qualität der Austattung | Normal |
| Heizungsart | Zentralheizung |
| Wesentliche Energieträger | Gas |
| Energieausweis | liegt vor |
| Energieausweistyp | Bedarfsausweis |
| Energieverbrauchskennwert | 185,6 kWh/(m²*a) |
| Energieeffizienzklasse | F |
185,6
kWh/(m²*a)
Energieeffizienzklasse F
- A+
- A
- B
- C
- D
- E
- F
- G
- H
- 0
- 25
- 50
- 75
- 100
- 125
- 150
- 175
- 200
- 225
- >250
Beschreibung des Objekts
Ausstattung
-Zwei Mehrfamilienhäuser mit insgesamt 5 Wohneinheiten (aufgeteilt nach WEG)
-Vorderhaus: 2 WE / Hinterhaus: 3 WE
-Gesamtwohnfläche: ca. 325 m²
-Grundstücksfläche: ca. 478 m²
-Baujahr: Vorderhaus: ca. 1900 (Modernisierung in 2014) / Hinterhaus 1993
-Heizung: Vorderhaus: Zentralheizung (Gas Bj. 2014) / Hinterhaus: Zentralheizung (Öl Bj. 1993)
-Voll vermietet – Jahresnettomiete ca. 49.560 €
-5 Außenstellplätze
-Ruhige Wohnlage in Bad Nauheim-Rödgen
-Attraktives Renditeobjekt für Kapitalanleger oder Aufteiler
Lage
Die Immobilie befindet sich im Bad Nauheimer Ortsteil Rödgen, einer ruhigen und gewachsenen Wohnlage mit überwiegend wohnwirtschaftlicher Nutzung. Der Stadtteil zeichnet sich durch ein angenehmes Wohnumfeld und eine gute Anbindung an das Stadtzentrum von Bad Nauheim aus.
Einkaufsmöglichkeiten, Kindergärten und Schulen sind in der näheren Umgebung vorhanden. Das Stadtzentrum mit weiteren Einrichtungen des täglichen Bedarfs, medizinischer Versorgung sowie gastronomischem Angebot ist in wenigen Minuten erreichbar.
Die Verkehrsanbindung ist sehr gut: Die Autobahnen A5 und A45 sind in kurzer Fahrzeit erreichbar und gewährleisten eine zügige Verbindung in Richtung Frankfurt am Main, Gießen und das gesamte Rhein-Main-Gebiet. Der Bahnhof Bad Nauheim bietet zusätzlich eine direkte Anbindung an den Regional- und Fernverkehr.
Durch die Kombination aus ruhiger Wohnlage, guter Infrastruktur und stetiger Nachfrage nach Wohnraum bietet der Standort langfristige Investitionssicherheit für Kapitalanleger.
Sonstige Angaben
Dieses Angebot ist freibleibend und unverbindlich, Irrtum sowie Zwischenverkauf vorbehalten. Das Objektangebot wurde von uns nach bestem Wissen sorgfältig zusammengestellt. Wir können jedoch nicht gewährleisten, dass alle Angaben vollständig und korrekt sind. Eine Gewähr dafür kann nicht übernommen werden.
Für den Fall, dass Sie diese Immobilie erwerben ist eine Käufer-Provision in Höhe von 3,57% inkl. MwSt. vom Kaufpreis, verdient und fällig bei notarieller Beurkundung. Gleiches gilt für die Verkäuferseite. Auch hier ist eine Verkäufer-Provision in Höhe von 3,57% inkl. MwSt. vom Kaufpreis, verdient und fällig bei notarieller Beurkundung.
Grundriss
Ergeschoss
>
>
Obergeschoss
>
>
Dachgeschoss
>
>
Kellergeschoss
>
>
Adresse
61231 Bad Nauheim
Interessante Orte
Preis- und Lageinformationen
Preistrend für Bestandsimmobilien in Bad Nauheim