Wohnen in der Altstadt 27: Hier entstehen in einer einzigartigen, zentralen Lage, 3 wunderschöne, großräumige Familienhäuser mit Altstadtflair.
Die durchdachte Planung ermöglicht eine großzügige Wohnfläche, die sich auf 5 bis 6 Zimmer aufteilt.
Mit diesem großzügigen Raumangebot bietet das Haus genügend Platz für individuelle Gestaltungsmöglichkeiten und Wohnkomfort, auch für die größere Familie.
Im Erdgeschoss finden sich neben den Gemeinschaftsräumen auch ein Gäste-WC, ein Hauswirtschafts- und Versorgungsraum, sowie ein individuell gestaltbarer Eingangsbereich.
Alle 3 Häuser haben im OG und DG jeweils mindestens 2 Schlafräume und jeweils ein Badezimmer. Auch hier kann nach individuellem Bedarf sowohl eine Ankleide als auch weiterer Stauraum geplant werden.
Der Dachboden bietet weitere Stau- und Lagerraum über die gesamte Hausfläche.
Eine Terrasse und ein bereits verlegter Rasen, sind im Angebot inbegriffen!
Einkaufsmöglichkeiten, Schulen und öffentliche Verkehrsmittel befinden sich in unmittelbarer Nähe.
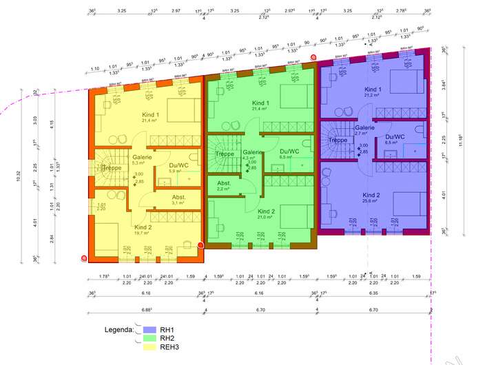
Die beigefügten Grundrisse stellen unterschiedliche Aufteilungsmöglichkeiten dar. Hier können Sie vor Baubeginn selbstverständlich noch Einfluß nehmen und Ihre individuellen Wünsche umsetzen.
Der Baubeginn ist für 2026 geplant und die Fertigstellung Anfang 2027.
Wir beraten Sie gerne! Rufen Sie uns an!
Altstadt 27 | Provisionsfrei! Familienleben in der Altstadt von Dieburg
64807 Dieburg
Die vollständige Adresse der Immobilie erhalten Sie vom Anbieter.
Auf Karte anzeigen
Die vollständige Adresse der Immobilie erhalten Sie vom Anbieter.
Finanzierungszertifikat
In nur zwei Minuten zu Ihrem persönlichen Finanzierungszertifkat.
Infos
| Haustyp | Reiheneckhaus |
|---|---|
| Etagenzahl | 3 |
| Wohnfläche ca. | 162 m2 |
| Grundstücksfläche | 260 m2 |
| Bezugsfrei ab | 2027 |
| Zimmer | 6 |
| Schlafzimmer | 5 |
| Badezimmer | 2 |
| Garage/Stellplatz | Außenstellplatz |
| Anzahl Garage/Stellplatz | 2 |
Kosten
| Kaufpreis |
739.000 € |
|---|---|
| Provision | Nein |
Finanzierungsrechner:
Kaufpreis:
600.000 €
Eigenkapital:
600.000 €
Monatliche Rate
0 €
Effektiver Jahreszins
0 %
Sollzinsbindung
10 Jahre
Bausubstanz & Energieausweis
| Baujahr | 2026 |
|---|---|
| Qualität der Austattung | Gehoben |
| Heizungsart | Fußbodenheizung |
| Energieausweis | laut Gesetz nicht erforderlich |
Beschreibung des Objekts
Ausstattung
+ Energie-Effizienz-Haus
+ 5 bis 6 Zimmer ( je nach Planung )
+ Sehr viel Tageslicht durch große Fenster
+ Großzügige Wohnfläche mit über 160 m²
+ Perfekter Grundriss für Familien mit 2 - 3 Kinder
+ 3-fach Verglasung der Fenster
+ Wärmepumpe mit Fußbodenheizung
+ Vorbereitung Photovoltaikanlage
+ Smart-Home Vorbereitung ( Tiefe Dosen für Aktoren )
+ 2 Stellplätze im Hof mit Wallbox-Anschluss ( Wallbox gegen Aufpreis )
+ Terrasse und Rasen inklusive
+ Massivbauweise
+ Individuelle Planung möglich ( begrenzter Umfang )
+ Hochwertige Bodenbeläge frei wählbar ( 40 € / m² Bruttolistenpreis)
Lage
Dieburg eine Perle im Herzen Hessens!
Dieburg ist eine charmante Kleinstadt, die Tradition und Moderne perfekt vereint. Nur 30 Autominuten von Frankfurt entfernt, erwartet Sie hier eine Ort voller Geschichte, Kultur und Lebensfreude.
Schlendern Sie durch die malerische Altstadt mit ihren liebevoll restaurierten Fachwerkhäusern und entdecken Sie die imposante Stadtmauer aus dem Mittelalter.
Von lebhaften Stadtfesten, wie dem Dieburger Weinfest bis hin zu kulturellen Highlights im Museum Schloss Fechenbach, ist hier für jeden etwas dabei.
Genießen Sie entspannte Spaziergänge im nahegelegenen Odenwald oder entlang der Gersprenz, die Dieburg einen besonderen Reiz verleiht.
Lassen Sie sich in gemütlichen Cafés, traditionellen hessischen Gaststätten oder modernen Restaurants verwöhnen – Dieburgs Gastronomie überzeugt mit Herz und Qualität.
Dieburg liegt in der Metropolregion Rhein-Main und damit ebenso verkehrsgünstig zu Darmstadt, Aschaffenburg oder der Region Bergstraße.
Ein Auswahl an Schulen, Kindergärten und Tagesbetreuung runden das Angebot and Familien ab. Der Campus Dieburg bietet zahlreiche attraktive Studiengänge an und ist neben Darmstadt ein wichtiger Studienstandort.
Grundriss
FFP ALTSTADT_27
>
>
Grundriss EG
>
>
Grundriss OG
>
>
Grundriss DG
>
>
Grundriss Spitzboden
>
>
Adresse
64807 Dieburg
Interessante Orte
Preis- und Lageinformationen
Preistrend für Bestandsimmobilien in Dieburg