Dieses Angebot zeigt ein exemplarisches, noch zu bauendes Schwabenhaus. Das Grundstück ist im angegebenen Preis bereits inklusive, sowohl das ausgewählte Haus wie auch die Ausbaustufe lassen sich selbstverständlich noch an Ihre Bedürfnisse anpassen.
Schlüsselfertig // Erfüllen Sie sich den Traum vom Eigenheim
55432 Niederburg
Die vollständige Adresse der Immobilie erhalten Sie vom Anbieter.
Auf Karte anzeigen
Die vollständige Adresse der Immobilie erhalten Sie vom Anbieter.
Finanzierungszertifikat
In nur zwei Minuten zu Ihrem persönlichen Finanzierungszertifkat.
Infos
| Haustyp | Einfamilienhaus |
|---|---|
| Wohnfläche ca. | 124 m2 |
| Nutzfläche | 61 m2 |
| Grundstücksfläche | 625 m2 |
| Zimmer | 4 |
| Schlafzimmer | 3 |
| Badezimmer | 1 |
| Anzahl Garage/Stellplatz | 1 |
Kosten
| Kaufpreis |
439.900 € |
|---|---|
| Provision | Nein |
Finanzierungsrechner:
Kaufpreis:
600.000 €
Eigenkapital:
600.000 €
Monatliche Rate
0 €
Effektiver Jahreszins
0 %
Sollzinsbindung
10 Jahre
Bausubstanz & Energieausweis
| Baujahr | 2026 |
|---|---|
| Bauphase | Haus in Planung (projektiert) |
| Qualität der Austattung | Gehoben |
| Heizungsart | Wärmepumpe |
Beschreibung des Objekts
Ausstattung
Jedes unserer Fertighäuser wird speziell für Sie geplant und ist perfekt auf die Anforderungen und Vorgaben Ihres Bauvorhabens angepasst – Bebauungspläne, eine besondere Grundstückslage und die gewünschten Eigenleistungen werden im Detail geprüft und berücksichtigt.
Jedes Schwabenhaus verfügt standardmäßig über:
- Doppel-Wärmepumpe mit 5 in 1-System: Heizen, Kühlen, Lüften, Luftreinigung und Warmwasser
- Zentrale kontrollierte Wohnraum Be- und Entlüftung mit Wärmerückgewinnung
- 3-Scheiben-Wärmeschutzglas
- elektrische Rollladensteuerung*
- Smart-Home-Technologie: Intelligentes Gebäude-Management für die Licht- und Rollladen-Steuerung*
- Schwimmender Estrich mit Wärmedämmung
- Sanitär-Objekte von Markenherstellern wie z. B. Villeroy & Boch usw. sowie Echtglas-Duschabtrennung
- 10 Jahre Gewährleistung nach BGB (üblich: 5 Jahre) und 30 Jahre Garantie auf die Grundkonstruktion
*In Verbindung mit dem Technologie + Komfort-Paket „Blue-Edition“
Diesem Angebot liegt die beliebte Schwabenhaus-Ausbaustufe "Fast-Vollendet Plus" zugrunde. Diese kann selbstverständlich noch entsprechend Ihrer geplanten Eigenleistungen angepasst werden.
Lage
Boppard, dass Grundstück liegt in Niederburg ca. 20km entfernt. Durch das QNG-Siegel für Nachhaltigkeit können Sie noch andere Förderungen in Anspruch nehmen. Ein Besuch im Schwabenhaus Frechen lohnt sich. Lassen Sie sich unverbindlich beraten, unsere Hausberater und Finanzier freuen sich auf Ihren Besuch.
Sonstige Angaben
Vereinbaren Sie einen persönlichen Beratungstermin, um über Ihren Haustraum und das angebotene Objekt zu sprechen.
Bitte beachten Sie, dass die dargestellten Bilder und Grundrisse nur beispielhaft sind und unter Umständen Sonderbauteile enthalten, die nicht im aufgerufenen Preis inkludiert sind.
Haben Sie außerdem Verständnis dafür, dass erst nach dem persönlichen Gespräch weitere Details zu dem angebotenen Grundstück bekanntgegeben werden und dass nur vollständige Anfragen bearbeitet werden können.
Anbauteile, Carport, Garage und Keller können Extras sein, die als Sonderausstattung angeboten werden. Abbildungen, Grundrisse und Flächenangaben sind beispielhaft und können Extras zeigen. Flächenangaben nach DIN 277.
Profitieren Sie jetzt von der Schwabenhaus Online Beratung und verwirklichen Sie Ihr Traumhaus https://www.schwabenhaus.de/anmeldung-hausbau-beratung-online/
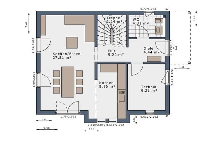
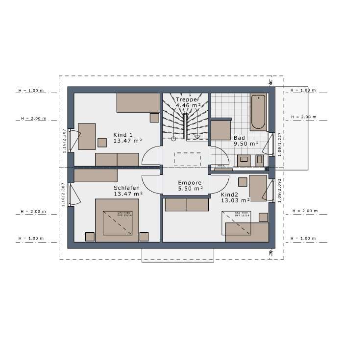
Grundriss
Erdgeschoss
>
>
Oberrgeschoss
>
>
Adresse
55432 Niederburg
Interessante Orte
Preis- und Lageinformationen
Preistrend für Bestandsimmobilien in Niederburg