Herzlich willkommen in Ihrem neuen Zuhause, das speziell für Familien und herzliche Menschen gestaltet wurde! Dieses großzügige Haus bietet nicht nur ausreichend Platz für Ihre Lieben, sondern auch eine warme und einladende Atmosphäre.
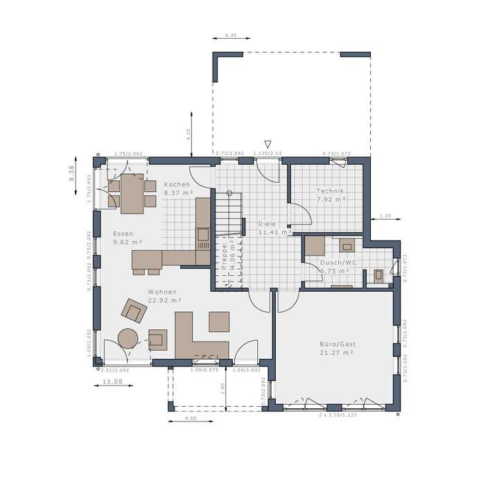
Im Erdgeschoss erwartet Sie ein geräumiges Wohnzimmer mit großen Fenstern, die viel Tageslicht hereinlassen. Die offene Küche bildet das Herz des Hauses und ist ideal für das gesellige Beisammensein. Das Esszimmer bietet Platz für gemeinsame Mahlzeiten und Feierlichkeiten.
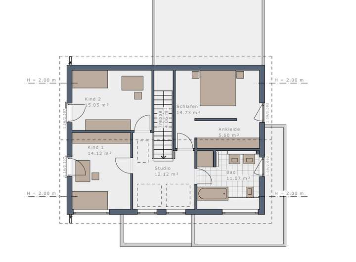
Im Obergeschoss finden Sie die Schlafzimmer, darunter ein Hauptschlafzimmer mit eigenem Bad und begehbarem Kleiderschrank, sowie weitere Zimmer für Kinder oder Gäste. Der Garten ist ein Paradies für Aktivitäten im Freien.
Wenn Sie auf der Suche nach einem Zuhause sind, das mehr als nur vier Wände bietet – ein echtes Familienheim in einer herzlichen Nachbarschaft – könnte dieses Ihr perfektes Eigenheim sein. Kontaktieren Sie uns noch heute, um eine Besichtigung zu vereinbaren!
NEU Niendorf IHR Wunsch-Schwabenhaus im Grünen, Zentral und Waldanschluss
22455 Hamburg
Die vollständige Adresse der Immobilie erhalten Sie vom Anbieter.
Auf Karte anzeigen
Die vollständige Adresse der Immobilie erhalten Sie vom Anbieter.
Finanzierungszertifikat
In nur zwei Minuten zu Ihrem persönlichen Finanzierungszertifkat.
Infos
| Haustyp | Einfamilienhaus |
|---|---|
| Wohnfläche ca. | 170 m2 |
| Nutzfläche | 0 m2 |
| Grundstücksfläche | 973 m2 |
| Zimmer | 5 |
| Schlafzimmer | 3 |
| Badezimmer | 1 |
| Anzahl Garage/Stellplatz | 1 |
Kosten
| Kaufpreis |
1.109.340 € |
|---|---|
| Provision | Nein |
Finanzierungsrechner:
Kaufpreis:
600.000 €
Eigenkapital:
600.000 €
Monatliche Rate
0 €
Effektiver Jahreszins
0 %
Sollzinsbindung
10 Jahre
Bausubstanz & Energieausweis
| Baujahr | 2026 |
|---|---|
| Bauphase | Haus in Planung (projektiert) |
| Qualität der Austattung | Gehoben |
| Heizungsart | Wärmepumpe |
Beschreibung des Objekts
Ausstattung
Kurze Bauzeiten, innovative Haustechnik, attraktive Architektur und hochwertige Manufaktur-Qualität bietet Ihnen das angebotene Schwabenhaus im “Blue-Edition” All-Inclusive-Paket:
- Bodenplatte inklusive Effizienzhaus 55 Perimeter-Dämmung unterhalb der Bodenplatte sowie stirnseitig
- Effizienzhaus 55 mit der Option zur Erweiterung auf Effizienzhaus 40 oder 40 Plus
- Klima-Komfort-Bauweise
- Zimmermannmäßiges Pfettendach
- Photovoltaik-Vorbereitung für die Ausführung einer Photovoltaik-Anlage
- Komplette Elektro-, Sanitär- und Heizungs-Installation inkl. Grundinstallation für das Schwabenhaus auf Schwabenhaus-Bodenplatte bzw. -Keller*
- Zukunftsweisende Elektro-Installation*
- Smart-Home-Technologie – Intelligentes Gebäude-Management für die Licht- und Rollladen-Steuerung*¹
- Elektrische Rollläden*¹
- Doppel-Wärmepumpe Eco+* für Heizen, Lüften, Kühlen, Luftreinigung und Warmwasser
- Hochwertige, mehrschichtige Holz-Haustür in vielfältigen Design-Lösungen, mit Sicherheitsschließzylinder, 5-fach- Sicherheits-Verriegelung und 3-Scheiben-Wärmeschutzverglasung
- Kunststoff-Fenster mit 3-Scheiben-Wärmeschutzverglasung
- Dachflächenfenster mit Kipp- und Schwingfunktion sowie elektrischen Rollläden*
- Massiv-Vollholz-Treppe
- Protect Versicherungs-Paket mit Wohngebäudeversicherung inkl. Elementarschutz, Haus- und Wohnungs-Schutzbrief, Bauleistungsversicherung und Bauherren-Haftpflichtversicherung sowie Job-Protect Versicherungs-Paket
- 10 sowie 30 Jahre Gewährleistung
*Ab Ausbaustufe "Fast-Vollendet"
Lage
NEU Niendorf IHR Schwabenhaus im Grünen, Zentral und Waldanschluss
Sonstige Angaben
In dieser Luxusimmobilie erwarten Sie unzählige Annehmlichkeiten. Ihre Suche nach dem ultimativen Luxus findet hier ihr Ende. Ein Schwabenhaus ist nicht bloß ein Haus, sondern ein Statement für Ihre Lebensqualität.
Nehmen Sie noch heute Kontakt mit uns auf, um diese einzigartige Gelegenheit wahrzunehmen.
Die dargestellten Bilder und Grundrisse sind Beispiele und können Sonderausstattungen enthalten, die nicht im Preis enthalten sind. Die Kaufnebenkosten sind nicht im Preis enthalten. Alle Angaben ohne Gewähr.
Anbauteile, Carport, Garage und Keller können Extras sein, die als Sonderausstattung angeboten werden. Abbildungen, Grundrisse und Flächenangaben sind beispielhaft und können Extras zeigen. Flächenangaben nach DIN 277.
Profitieren Sie jetzt von der Schwabenhaus Online Beratung und verwirklichen Sie Ihr Traumhaus https://www.schwabenhaus.de/anmeldung-hausbau-beratung-online/
Grundriss
Grundriss Erdgeschoss
>
>
Grundriss Obergeschoss
>
>
Adresse
22455 Hamburg
Interessante Orte
Preis- und Lageinformationen
Preistrend für Bestandsimmobilien in Niendorf