Durch seine großen und lichtdurchfluteten Räume bietet das Massivhaus Auro eine einmalige Wohlfühlatmosphäre. Der Flachdacherker des Familienhauses, der sich über zwei Vollgeschosse erstreckt, macht das Haus zu einem Architekturklassiker mit Charakter.
Für ein perfektes Entrée in das Familienhaus sorgt die geräumige Diele in Kombination mit der Treppe. Im Erdgeschoss befindet sich der helle Wohn- und Essbereich mit direkt angrenzender Küche. Das ebenfalls im Erdgeschoss befindliche Gästezimmer mit eigenem Duschbad erreicht man über den Flur, der auch den Zugang zum Hauswirtschaftsraum ermöglicht. Durch große Fenster und Türen erhält die Natur zu jeder Tageszeit Eintritt ins Haus.
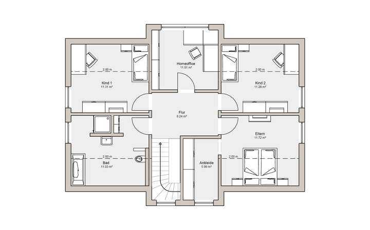
Das Dachgeschoss erstreckt sich über ca. 70 m². Darin befinden sich das Elternschlafzimmer mit angrenzender Ankleide, zwei große Kinderzimmer, ein geräumiges Home-Office und das geräumige Familienbad. Über einen Flur lassen sich alle Zimmer bequem erreichen.
Dieses Haus wird nach Ihren individuellen Wünschen geplant und ausgestattet!
Vorfreude auf das neue Zuhause in Lohrheim!
65558 Lohrheim
Die vollständige Adresse der Immobilie erhalten Sie vom Anbieter.
Auf Karte anzeigen
Die vollständige Adresse der Immobilie erhalten Sie vom Anbieter.
Finanzierungszertifikat
In nur zwei Minuten zu Ihrem persönlichen Finanzierungszertifkat.
Infos
| Haustyp | Einfamilienhaus |
|---|---|
| Wohnfläche ca. | 157 m2 |
| Grundstücksfläche | 545 m2 |
| Zimmer | 6 |
| Schlafzimmer | 3 |
| Badezimmer | 1 |
| Anzahl Garage/Stellplatz | 2 |
Kosten
| Kaufpreis |
502.500 € |
|---|---|
| Provision | Nein |
Finanzierungsrechner:
Kaufpreis:
600.000 €
Eigenkapital:
600.000 €
Monatliche Rate
0 €
Effektiver Jahreszins
0 %
Sollzinsbindung
10 Jahre
Bausubstanz & Energieausweis
| Baujahr | 2026 |
|---|---|
| Bauphase | Haus in Planung (projektiert) |
| Objektzustand | Erstbezug |
| Qualität der Austattung | Gehoben |
| Heizungsart | Wärmepumpe |
| Wesentliche Energieträger | Strom |
| Energieausweis | liegt vor |
| Energieausweistyp | Bedarfsausweis |
| Energieverbrauchskennwert | 17,9 kWh/(m²*a) |
| Energieeffizienzklasse | A+ |
17,9
kWh/(m²*a)
Energieeffizienzklasse A+
- A+
- A
- B
- C
- D
- E
- F
- G
- H
- 0
- 25
- 50
- 75
- 100
- 125
- 150
- 175
- 200
- 225
- >250
Beschreibung des Objekts
Ausstattung
6 Zimmer, offene Küche, Diele, 2 Flure, Bad, Dusche, Ankleide, Hauswirtschaftsraum
Das gezeigte Traumhaus im Überblick:
+ Schlüsselfertiges Massivhaus im Sinne der Ausstattungsbeschreibung "Edition 25"
+ Zukunftsorientierte Energieausstattung in Form einer Luft-Wasser-Wärmepumpe und Fußbodenheizung sowie einer kontrollierten Wohnraumlüftung mit Wärmerückgewinnung
+ Inklusive Bodenplatte
Beste Markenausstattung in jedem Kern-Haus:
+ Zimmermannsmäßiger Dachstuhl aus Konstruktionsvollholz
+ Dacheindeckung mit Betondachsteinen von Braas
+ Hochwertiger Kunstharz-Außenputz für eine langlebige Fassade
+ Vollständige Badausstattung von Villeroy & Boch mit Badewanne und flacher Duschwanne sowie einer Echtglasduschkabine
+ Fliesen von Villeroy & Boch in Bad und WC
+ Haustür mit 5-fach-Sicherheitsverriegelung
+ Erstklassige Innentüren der Marke Herholz
+ Fenster mit 3-Scheiben-Wärmeschutzverglasung und Rollläden
+ Stahl-Holz-Treppe mit individueller Farbgestaltungsmöglichkeit
+ Vollständige und überdurchschnittliche Elektroausstattung inklusive Klingelanlage und Netzwerkdosen
+ Rauchmelder für Ihre Sicherheit
+ Alle Leistungen aus einer Hand
+ Alle Planungs- und Architektenleistungen
+ Einsatz regionaler Handwerksbetriebe
+ Baubegleitende 5-Phasen-TÜV-Prüfung und Blower-Door-Test
+ Individuelle Anpassung auf Ihre Bedürfnisse
+ Auf Wunsch mit Keller erhältlich
+ Auf Wunsch mit weiteren Energietechniken erhältlich
Lage
Das ruhige Baugrundstück von 545 qm befindet sich im idyllisch gelegenen Lohrheim, einer Ortsgemeinde im Rhein-Lahn-Kreis und zur Verbandsgemeinde Aar-Einrich gehörend. Lohrheim erreichen Sie ganz bequem über die Bundesstraße 54 in Richtung Wiesbaden, Diez oder Limburg. Die Gemeinde ist durch ihre ruhige Lage als Wohn- und Erholungsort sehr beliebt.
Eine rege Dorfgemeinschaft mit vielfältiger Vereinsstruktur bietet Abwechslung. Neben einer Gaststätte gibt es einige klassische Handwerksbetriebe, Sport- Spiel- und Freizeitflächen sowie eine Kindertagesstätte im renovierten Dorfgemeinschaftshaus. Die Ursprünglichkeit des Dorfes wird mit den alten und liebevoll renovierten Bauernhäusern präsentiert.
Lohrheim ist umgeben von herrlicher Natur, hier kann man den Alltagsstress vergessen und die Seele baumeln lassen!
Sonstige Angaben
Kern-Haus baut individuelle und massive Architektenhäuser zu einem attraktiven Preis-Leistungs-Verhältnis – und das bereits mit einer Erfahrung seit 1980. Bei Kern-Haus erhalten Sie unter anderem 10 Jahre Gewährleistung auf die wesentlichen Bauleistungen, bis zu 24 Monate Preissicherheit sowie eine dokumentierte 5-Phasen-TÜV-Prüfung während der Bauphase. Jedes Kern-Haus als Effizienzhaus 40 ist bereits QNG-zertifiziert durch die Deutsche Gesellschaft für nachhaltiges Bauen (DGNB).
40 Jahre Expertise für das massive, energieeffiziente Bauen: Kern-Haus realisiert Massivhäuser in Ziegel, Bims, Porenbeton oder Stahlbeton (DuoTherm).
Kern-Haus setzt auf eine hohe Bauqualität der Handwerker und auf eine große Auswahl starker Marken. So verwendet Kern-Haus beim Bau Ihres Hauses nur hochwertige Markenprodukte renommierter Hersteller – wie etwa Produkte von Villeroy & Boch.
Preise und Auszeichnungen von Kern-Haus:
- German Brand Award in den Jahren 2018 und 2021
- Hausbau Design Award: Sieger in den Jahren 2017, 2018, 2019, 2020, 2021, 2022 und 2023
- Deutscher Traumhauspreis: Sieger in den Jahren 2014, 2015, 2016 und 2018 und Silber 2017, 2020 und 2021
- Mittelstandspreis "Top 100" in den Jahren 2014, 2016, 2018, 2020 und 2022
- German Design Award im Jahr 2018
Weitere Informationen
Der gezeigte Preis versteht sich inklusive Grundstück und exklusive der Baunebenkosten.
Grundriss
Grundriss Erdgeschoss
>
>
Grundriss Dachgeschoss
>
>
Grundriss Erdgeschoss
>
>
Grundriss Dachgeschoss
>
>
Adresse
65558 Lohrheim
Interessante Orte
Preis- und Lageinformationen
Preistrend für Bestandsimmobilien in Lohrheim