Großzügiges Einfamilienhaus mit 3 möglichen Wohneinheiten in der idyllischen Gemeinde Waldems-Bermbach. Dieses massiv erbaute Haus aus dem Jahr 1983 bietet auf insgesamt ca. 203 m² Wohnfläche alles, was das Herz begehrt. Die Immobilie befindet sich in einen zeitgemäßen und unrenoviertem Zustand (*) . Das Haus umfasst beeindruckende 9 Zimmer, darunter 5 Schlafzimmer und 3 Badezimmer, die ideal für eine große Familie oder das Arbeiten von zu Hause aus geeignet sind.
(Hinweis: * das Balkongeländer im Obergeschoss ist defekt und muß erneuert gesetzt werden)
Das Haus erstreckt sich über drei Ebenen:
- Erdgeschoss
- Obergeschoss und
- Dachgeschoss
und bietet zudem eine kleine 2 Zimmerwohnung (Erdgeschoss), die nicht nur flexible Nutzungsmöglichkeiten bietet, sondern auch ein attraktives Potenzial für zusätzliche Einkünfte. Die Ausstattung ist von zeitgemäßer Qualität und umfasst einen gemütlichen Kaminofen, der für wohlige Wärme sorgt.
Die großzügige Grundstücksfläche von insgesamt ca. 648 m² bietet ausreichend Platz für Freizeitaktivitäten und Erholung im eigenen Garten, der zur Nutzung bereitsteht. Eine einladende Terrasse in nordöstlicher Ausrichtung sowie ein großer Balkon bieten zusätzlichen Raum zum Entspannen und Genießen.
A U F T E I L U N G :
E R D G E S C H O S S : - 2 Zimmerwohnung mit ca. 36 m² sowie Nutzfläche von ca. 61 m²
O B E R G E S C H O S S : - 3 Zimmerwohnung mit ca. 98 m² mit Terrasse und Garten
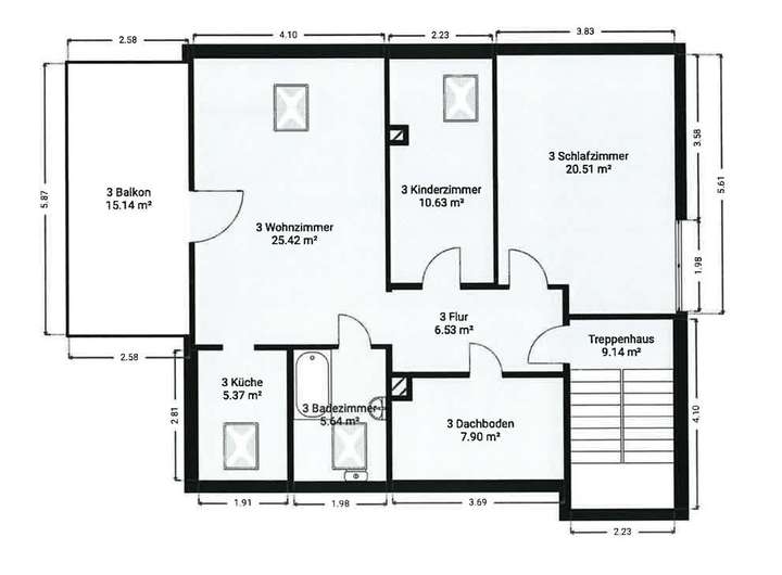
D A C H G E S C H O S S : - 3 Zimmerwohnung mit ca. 69 m² mit Balkon, sowie Nutzfläche von ca. 9 m²
Die von uns angebotene Immobilie befindet sich in schöner Ortskernlage und ist frei und ab sofort verfügbar.
H I N W E I S :
Das Haus befindet sich in einem gebrauchten Zustand und muß vom neuen Eigentümer renoviert werden.
Freistehendes Einfamilienhaus (mit 3 Wohneinheiten) und großem Gartengrundstück in Waldems-Bermbach
65529 Waldems
Die vollständige Adresse der Immobilie erhalten Sie vom Anbieter.
Auf Karte anzeigen
Die vollständige Adresse der Immobilie erhalten Sie vom Anbieter.
Finanzierungszertifikat
In nur zwei Minuten zu Ihrem persönlichen Finanzierungszertifkat.
Infos
| Haustyp | Einfamilienhaus |
|---|---|
| Etagenzahl | 2 |
| Wohnfläche ca. | 202 m2 |
| Nutzfläche | 87,54 m2 |
| Grundstücksfläche | 648 m2 |
| Bezugsfrei ab | ab sofort |
| Zimmer | 9 |
| Schlafzimmer | 5 |
| Badezimmer | 3 |
Kosten
| Kaufpreis |
379.000 € |
|---|---|
| Provision |
3,57 % vom notariellen Kaufpreis inkl. 19 % MwSt. |
Finanzierungsrechner:
Kaufpreis:
600.000 €
Eigenkapital:
600.000 €
Monatliche Rate
0 €
Effektiver Jahreszins
0 %
Sollzinsbindung
10 Jahre
Bausubstanz & Energieausweis
| Baujahr | 1983 |
|---|---|
| Objektzustand | Gepflegt |
| Qualität der Austattung | Normal |
| Heizungsart | Zentralheizung |
| Wesentliche Energieträger | Gas |
| Energieausweis | liegt vor |
| Energieausweistyp | Verbrauchsausweis |
| Energieverbrauchskennwert | 177,3 kWh/(m²*a) |
| Energieeffizienzklasse | F |
177,3
kWh/(m²*a)
Energieeffizienzklasse F
- A+
- A
- B
- C
- D
- E
- F
- G
- H
- 0
- 25
- 50
- 75
- 100
- 125
- 150
- 175
- 200
- 225
- >250
Beschreibung des Objekts
Ausstattung
- 3 Badezimmer mit Fenster, Badewanne oder Dusche, WC, türhoch gefliest
- 2 Einbauküchen
- Abstellraum
- Fliesen- und PVC-Böden
- Kabel Sat TV
- Kaminofen
- Terrasse
- Balkon
- Garten mit Gartenhütte
- ausgebauter Dachboden
Lage
Willkommen in der idyllischen Gemeinde Waldems im Ortsteil Bermbach, wo dieses charmante Einfamilienhaus mit viel Platz für eine große Familie auf Sie wartet. Die schöne Wohnlage des Hauses ermöglicht einen angenehmen Lebensstil mit kurzen Wegen zu den wichtigsten Einrichtungen des täglichen Bedarfs. Das Ortszentrum von Bermbach ist nur einen Katzensprung entfernt und bietet eine gemütliche Atmosphäre für entspannte Spaziergänge.
Für den täglichen Einkauf sind die nächstgelegenen Einkaufsmöglichkeiten in nur 3,5 Kilometern schnell erreicht. Pendler profitieren von der günstigen Distanz zur Autobahn, die lediglich 5,04 Kilometer entfernt ist, und eine unkomplizierte Anbindung an das regionale Verkehrsnetz bietet. Der öffentliche Nahverkehr ist ebenfalls bestens erreichbar, denn die nächstgelegene Bushaltestelle befindet sich in nur 0,7 Kilometern Entfernung.
Familien mit Kindern finden in der Umgebung eine breite Auswahl an Bildungseinrichtungen. Der Kindergarten liegt gerade einmal 0,24 Kilometer vom Haus entfernt, was einen sicheren und schnellen Weg für die Kleinsten garantiert. Die Grundschule ist nach nur 1,91 Kilometern erreichbar, während weiterführende Schulen wie die Hauptschule, Realschule und das Gymnasium in einer Entfernung von 4,6 Kilometern bequem zu erreichen sind.
Genießen Sie die Ruhe und Naturverbundenheit dieser einladenden Lage, gepaart mit der praktischen Nähe zu urban gedachten Einrichtungen. Waldems-Bermbach bietet eine harmonische Kombination aus dörflichem Charme und städtischer Anbindung, die das Leben hier besonders lebenswert macht.
Sonstige Angaben
ÜBER UNS:
Martin Brandt Immobilien, gegründet 1993, ist mit mehr als 32 Jahren Erfahrung einer der führenden Immobilien-Dienstleister in der Rhein-Main-Region. Wir unterstützen Sie als unabhängiger Immobilienmakler mit detaillierter Markt- und Objektkenntnis bei der schnellen und kundenorientierten Immobiliensuche und Vermittlung.
HABEN WIR IHR INTERESSE GEWECKT ?
Diese Immobilie gefällt Ihnen? Sie wünschen eine Besichtigung? Bitte nutzen Sie die elektronische Kontaktmöglichkeit auf dieser Seite und senden Sie uns Ihre Mail mit Angabe Ihres vollständigen Namens, Ihrer Telefon Nummer(n), E-Mail-Adresse und Ihres Terminwunsches. Bitte denken Sie auch an einen möglichen alternativen Termin.
B E S I C H T I G U N G S T E R M I N E :
Für weitere Informationen sowie die Vereinbarung eines Besichtigungstermins stehen wir Ihnen gerne zur Verfügung. Wir freuen uns auf Ihre e-Mail Anfrage unter: immobilien@bpi24.de
A N S P R E C H P A R T N E R :
Martin Brandt und Kerstin Brandt
M A K L E R P R O V I S I O N :
Im Falle des Zustandekommens eines Kaufvertrages, ist eine Courtage in Höhe von 3,57 % inkl. 19 % MwSt. vom vereinbarten und notariellen Kaufpreis vom Käufer an den Makler zu zahlen.
FREUNDLICHER HINWEIS :
Alle Angaben in diesem Exposé wurden sorgfältig und so vollständig wie möglich gemacht. Dennoch kann das Vorhandensein von Fehlern nicht ausgeschlossen werden. Die Angaben in diesem Exposé erfolgen daher ohne Gewähr und basieren ausschließlich auf Informationen, die uns vom Verkäufer/Vermieter bzw. von Dritten zur Verfügung gestellt wurden, so dass wir keine Gewähr für die Vollständigkeit, Richtigkeit und Aktualität dieser Angaben übernehmen können. Irrtum und Zwischenverkauf/Zwischenvermietung bleibt vorbehalten.
Grundriss
Grundriss Erdgeschoss
>
>
Grundriss 1. Stock_
>
>
Grundriss Dachgeschoss
>
>
Dachgeschoss
>
>
Erdgeschoss
>
>
Kellergeschoss
>
>
Schnitt
>
>
Straßenansicht
>
>
Gartenansicht
>
>
Seitenansicht
>
>
Ansichten
>
>
Adresse
65529 Waldems
Interessante Orte
Preis- und Lageinformationen
Preistrend für Bestandsimmobilien in Waldems