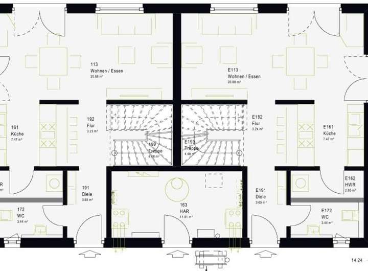
Ein Walmdach ist der absolute Hingucker, insbesondere bei einem Haus mit toskanischem Flair wie dem FamilyStyle 20.04 W: Zwei doppelstöckige Wohnungen auf insgesamt 204,24 m² Wohnfläche bilden eine perfekte Einheit unter einem Dach. Der Grundriss der spiegelbildlich angeordneten Wohneinheiten kann in der Planungsphase angepasst werden; auch Architektur-Upgrades sind möglich und verleihen dem Haus eine ganz besondere Ausstrahlung. Das FamilyStyle 20.04 W ist ein besonderes Eigenheim für mehrere Generationen, die die räumliche Nähe zueinander suchen - aber eben auch ihre Privatsphäre genießen. Beiden Wohnparteien stehen je ein Untergeschoss mit offenem Küchen-, Ess- und Wohnbereich zur Verfügung sowie das Stockwerk darüber mit Schlafzimmern und Bad. Das ist modernes Mehrgenerationen-Wohnen!
Hauspreis inkl. Grundstück! Eine attraktive Alternative zum Doppelhaus in Niedernhausen
65527 Niedernhausen
Die vollständige Adresse der Immobilie erhalten Sie vom Anbieter.
Auf Karte anzeigen
Die vollständige Adresse der Immobilie erhalten Sie vom Anbieter.
Finanzierungszertifikat
In nur zwei Minuten zu Ihrem persönlichen Finanzierungszertifkat.
Infos
| Haustyp | Mehrfamilienhaus |
|---|---|
| Etagenzahl | 2 |
| Wohnfläche ca. | 204 m2 |
| Grundstücksfläche | 660 m2 |
| Zimmer | 8 |
| Schlafzimmer | 6 |
| Badezimmer | 2 |
Kosten
| Kaufpreis |
841.000 € |
|---|
Finanzierungsrechner:
Kaufpreis:
600.000 €
Eigenkapital:
600.000 €
Monatliche Rate
0 €
Effektiver Jahreszins
0 %
Sollzinsbindung
10 Jahre
Bausubstanz & Energieausweis
| Baujahr | unbekannt |
|---|
Beschreibung des Objekts
Ausstattung
Ausstattung und im Preis enthalten:
- Grundstück
- Projektiertes Ausbauhaus mit Klima-Plus-Wand
- massa Freiraum = Wohnraumhöhe 2,75 m im EG und DG serienmäßig
- KfW Effizienzhaus 55 mit hochwertigen 3-fach-verglasten Wärmeschutzfenster
- inklusive Architekten- und Ingenieurleistungen (Genehmigungsplanung, Bauantrag,
Statik, Wärmebedarfsberechnungen usw.)
- massa Bodenplatte
Ein Keller ist gegen Aufpreis möglich!
- Bodengutachten für die Untersuchung des Baugrundes
- Luft-Wasser-Wärmepumpe (deutscher Markenhersteller)
- Fußbodenheizung
- Kontrollierte Be- und Entlüftungsanlage für perfektes Wohlfühlklima inkl.
Wärmerückgewinnung
- umfangreiche Elektroausstattung inkl. Installation
- Photovoltaikanlage
- Moderne Holztreppe in verschiedenen Farben inkl. Edelstahl-Geländerstäbe
- Alu-Rollläden für alle Fenster und moderne Haustüre zur Auswahl
- 5-fach-Versicherungsschutz (Bauleistung-, Bauherren-Haftpflicht-, Feuerrohbau- und Wohngebäudeversicherung, Einkommensschutzversicherung)
- 15 Monate Festpreisgarantie
- Bezahlung des Hauses erst nach Baufortschritt (Abnahme der Leistungen)
Der genannte Preis versteht sich zuzüglich Bemusterungspaket (komplette Innenausstattung wie z.B. Fliesen, Türen, Sanitärobjekte, Bodenbeläge, usw.), Lohnkosten für den Innenausbau, Baunebenkosten (Erdarbeiten, Hausanschluss, Baustelleneinrichtung usw.), Grunderwerbsteuer und Notarkosten.
Lage
Das interessante Grundstück befindet sich in Niedernhausen einer zentral gelegenen Stadt des Rheingau-Taunus-Kreises.
Dort finden Sie zahlreiche Einkaufs- möglichkeiten für den täglichen Bedarf.
Eine hervorragende Infrastruktur, das
wunderschön gelegene Autal, welches zum Verweilen einlädt, ebenso befindet sich hier das Niedernhausener Freibad, Aqua-Sport, Fitness und viele unter -schiedliche Freizeitangebote und
nette Lokalitäten.
Ein sehr gutes Angebot an Betreuungs-/Versorgungsangeboten und eine vorbildliche medizinische
Versorgung sind ebenfalls vorhanden. Hier dürfen Sie gerne älter werden.
In Wiesbaden locken Kultur und Abwechslung! In
Niedernhausen und Umgebung finden sich diverse Tennisplätze/-hallen und Reitstallungen vor. Nur wenige Minuten
von Niedernhausen entfernt gehört eine 18-Loch-Turnier-Golfanlage in Idstein, ein weiterer Golf platz befindet sich im
rund 16 km entfernten Hofheim, sowie Wiesbaden-Delkenheim.
Die Autobahn A3 ist in wenigen Minuten er reichbar. Ein S-
Bahnhof ist ebenfalls vorhanden, mit dem man in Kürze nach
Frankfurt oder Wiesbaden gelangt. Die Metropolen, Frankfurt,
Wiesbaden und Mainz sowie der Airport sind in nur 15-30 Minuten erreichbar.
Sonstiges
Sonstige Angaben
Dieses hochwertige Haus in modernster Bauweise schafft bleibende Werte. Unser Standard entspricht dem "KfW Effizienzhaus 55"! Das Effizienzhaus 40 und 40 Plus ist auch möglich!
Unsere zertifizierte Qualität:
- RAL-Gütezeichen von der Bundes-Gütegemeinschaft Montagebau und Fertighäuser e.V.
-Creditreform Bonitätszertifikat "Ausgezeichnete Bonität"
-DGNB Zertifikat für nachhaltiges Bauen (Deutsche Gesellschaft für nachhaltiges
Bauen)
- Urkunde der Qualitätsgemeinschaft Deutscher Fertigbau (QDF) für die Einhaltung der geforderten Gesamtqualitätsrichtlinien
- TÜV Rheinland Zertifikat für gesünderes Bauen mit dem Zertifikat für schadstoffgeprüfte Wohnhäuser
Außerdem bieten wir Ihnen auch andere Ausbaustufen an. Hierbei übernehmen wir für Sie die Koordination und die Durchführung des Ausbaus.
Nutzen Sie auch unseren Grundstücks- und Finanzierungsservice!
Rufen Sie mich an, ich helfe Ihnen gerne.
Grundriss
229396-10938-6-g
>
>
229391-10938-5-g
>
>
Adresse
65527 Niedernhausen
Interessante Orte
Preis- und Lageinformationen
Preistrend für Bestandsimmobilien in Niedernhausen