Dieses gepflegte Mehrfamilienhaus in ruhiger Lage von Hahnheim präsentiert sich als äußerst attraktive Kapitalanlage mit solider Mieterstruktur und nachhaltiger Rendite. Das Gebäude wurde 1995 kernsaniert und aufgestockt, inklusive umfassender Modernisierung von Elektrik, Sanitär, Dach und Fassade. Es beherbergt drei großzügige Wohneinheiten mit insgesamt rund 317 m² Wohnfläche auf einem Grundstück von 292 m².
Die Aufteilung ist ideal für die langfristige Vermietung:
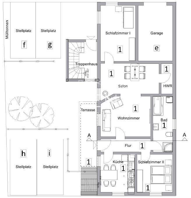
- Erdgeschosswohnung: ca. 102 m² mit Terrasse und Zugang zum Garten
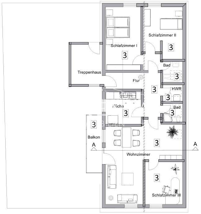
- Obergeschosswohnung: ca. 113 m² mit Balkon
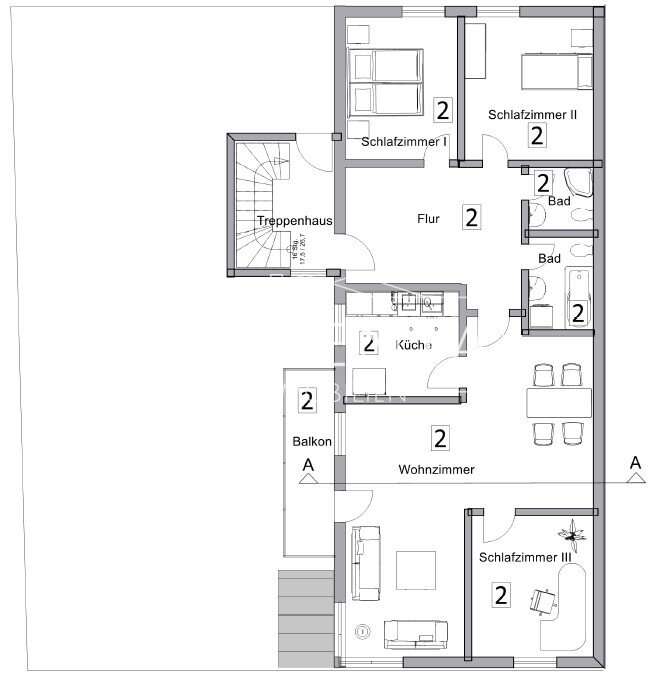
- Dachgeschosswohnung: ca. 103 m² mit Balkon und alleiniger Nutzung des ausgebauten Dachbodens
- vier Pkw-Stellplätze und eine Garage
Alle Wohnungen sind hell, gut geschnitten und verfügen über zeitgemäße Grundrisse. Das Haus ist voll unterkellert und bietet dort drei separate Abstellräume sowie die Zentralheizung mit Warmwasserspeicher. Eine Garage im Erdgeschoss sowie vier zusätzliche Stellplätze auf dem Hof runden das Angebot ab.
Der gemeinschaftliche Garten mit separatem Fahrradhaus steht allen Mietern zur Verfügung und wird regelmäßig gepflegt. Die Immobilie überzeugt durch ihre solide Bauweise, eine funktionale Ausstattung und stabile Mieteinnahmen - ein echtes Rundum-sorglos-Paket für Kapitalanleger.
Die Bilder zeigen die Wohnung im Dachgeschoss.
Attraktives Mehrfamilienhaus in Hahnheim
55278 Hahnheim
Die vollständige Adresse der Immobilie erhalten Sie vom Anbieter.
Auf Karte anzeigen
Die vollständige Adresse der Immobilie erhalten Sie vom Anbieter.
Finanzierungszertifikat
In nur zwei Minuten zu Ihrem persönlichen Finanzierungszertifkat.
Infos
| Haustyp | Mehrfamilienhaus |
|---|---|
| Etagenzahl | 3 |
| Wohnfläche ca. | 317 m2 |
| Grundstücksfläche | 292 m2 |
| Zimmer | 11 |
| Schlafzimmer | 8 |
| Badezimmer | 5 |
| Anzahl Garage/Stellplatz | 5 |
Kosten
| Kaufpreis |
648.500 € |
|---|---|
| Provision | Nein |
| Mieteinnahmen | 3.415 € |
Finanzierungsrechner:
Kaufpreis:
600.000 €
Eigenkapital:
600.000 €
Monatliche Rate
0 €
Effektiver Jahreszins
0 %
Sollzinsbindung
10 Jahre
Bausubstanz & Energieausweis
| Baujahr | 1995 |
|---|---|
| Qualität der Austattung | Normal |
| Heizungsart | Gas-Heizung |
| Wesentliche Energieträger | Gas |
| Energieausweis | liegt vor |
| Energieausweistyp | Bedarfsausweis |
| Energieverbrauchskennwert | 74,0 kWh/(m²*a) |
| Energieeffizienzklasse | B |
74,0
kWh/(m²*a)
Energieeffizienzklasse B
- A+
- A
- B
- C
- D
- E
- F
- G
- H
- 0
- 25
- 50
- 75
- 100
- 125
- 150
- 175
- 200
- 225
- >250
Beschreibung des Objekts
Ausstattung
- Grundstücksgröße: ca. 292 m²
- Wohnfläche gesamt: ca. 318 m²
- Kernsanierung und Aufstockung 1995
- Vollwärmeschutzfassade
- Dach und Dachboden gedämmt
- Zentralheizung mit Warmwasserspeicher (Baujahr 1995, einzelne Komponenten modernisiert)
- Voll unterkellert mit drei separaten Kellerräumen
- Garage im Erdgeschoss
- Vier Außenstellplätze auf dem Hof
- Gemeinschaftsgarten mit Fahrradhaus
- EG mit Terrasse, OG und DG jeweils mit Balkon
- DG mit alleiniger Nutzung des Dachbodens
- Ruhige Lage in einer Sackgasse
Lage
Das Mehrfamilienhaus befindet sich in einer verkehrsberuhigten Straße in Hahnheim, einer beliebten Wohngemeinde im rheinhessischen Selztal zwischen Mainz und Worms. Die Umgebung ist geprägt von gepflegten Wohnhäusern, viel Grün und einem hohen Freizeitwert.
Hahnheim bietet eine hervorragende Infrastruktur: Einkaufsmöglichkeiten, Kindergärten, eine Grundschule sowie Bus- und Bahnanschlüsse sind im Ort oder in unmittelbarer Nähe vorhanden. Über die B420 und die A63 erreichen Sie Mainz, Alzey und Worms in jeweils rund 20-30 Minuten.
Die ruhige Lage in Verbindung mit der guten Erreichbarkeit macht den Standort besonders attraktiv für Pendler und Familien - und sorgt für eine langfristig stabile Vermietbarkeit.
Sonstige Angaben
- Gesamte monatliche Kaltmiete: 3.415 EUR für drei Wohnungen, Stellplätze und Garage
- Jahresnettokaltmiete: 40.980EUR
- Grundstücksfläche: 292 m²
- voll unterkellert mit drei abschließbaren Kellerräumen
- Wohnungen bereits nach WEG per Teilungserklärung geteilt
- Energieausweis: Energieklasse B
- Solide Rendite und weiteres Wertsteigerungspotenzial
- Kein Instandhaltungsstau, regelmäßig gepflegt
- Gute Mieterstruktur, stabile Einnahmen
- Mit einer aktuellen Jahresnettokaltmiete von rund 40.980EUR und dem gepflegten Gesamtzustand bietet diese Immobilie eine attraktive Renditechance bei gleichzeitig geringem Verwaltungsaufwand - ideal für Kapitalanleger, die Wert auf Sicherheit und Nachhaltigkeit legen.
Grundriss
Grundriss EG
>
>
Grundriss OG
>
>
Grundriss DG
>
>
Adresse
55278 Hahnheim
Interessante Orte
Preis- und Lageinformationen
Preistrend für Bestandsimmobilien in Hahnheim