Willkommen in Ihrem neuen Zuhause in Hünstetten / Wallrabenstein, einer charmanten Doppelhaushälfte, die Sie auf ganzer Linie überzeugen wird! Dieses massiv gebaute Haus aus dem Jahr 1990 präsentiert sich nach einer vollständigen Renovierung in einem hervorragenden Zustand und bietet Ihnen die ideale Gelegenheit, in eine ruhige und idyllische Wohngegend zu ziehen.
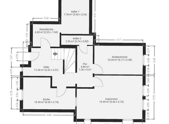
Das Haus erstreckt sich über zwei Etagen und bietet auf einer Wohnfläche von ca. 111 m² genügend Platz für Ihre Familie. Zur Verfügung stehen Ihnen vier gut geschnittene Zimmer, darunter drei komfortable Schlafzimmer, die Ihnen und Ihrer Familie ausreichend Rückzugsmöglichkeiten gewähren. Die Ausstattung in guter Qualität umfasst stilvolle Fliesenböden, die ein modernes Wohnambiente vermitteln.
Das Highlight dieser modernen Immobilie ist die traumhafte Wohnlage, direkt am Feldrand und das schöne Grundstück von ca. 308 m², das Ihnen nicht nur eine unbebaubare Aussicht schenkt, sondern auch Platz für Outdoor-Aktivitäten und Erholung bietet. Genießen Sie die sonnigen Tage im eigenen Garten, ideal für schöne Stunden im Freien oder entspannte Abendstunden.
Die schöne Wohnküche mit eigenen Essbereich ist noch frei zur individuellen Gestaltung und bietet Ihnen die Möglichkeit, Ihre persönlichen Vorstellungen zu verwirklichen. Ein Tageslichtbad mit Badewanne und moderner Ausstattung rundet das Angebot ab und sorgt für Ihr tägliches Wohlbefinden.
Der Hauswirtschaftsraum und ein separater Kellerraum im Eingangsgeschoss von ca. 16 m² bieten zusätzlichen Stauraum für all Ihre Bedürfnisse.
G Ä S T E - W C :
Darüber hinaus besteht noch die Möglichkeit im Hauswirtschaft ein kleines Gäste WC einzurichten. Die Anschlüsse hierfür sind bereits vorhanden.
Diese gepflegte Doppelhaushälfte (mit WEG Teilung) ist ab sofort verfügbar und könnte schon bald Ihr neues Zuhause sein. Zögern Sie nicht, uns für eine Besichtigung zu kontaktieren und lassen Sie sich von diesem liebevoll gestalteten Eigenheim begeistern.
Moderne Doppelhaushälfte in schöner Wohnlage von Hünstetten-Wallrabenstein
65510 Hünstetten
Die vollständige Adresse der Immobilie erhalten Sie vom Anbieter.
Auf Karte anzeigen
Die vollständige Adresse der Immobilie erhalten Sie vom Anbieter.
Finanzierungszertifikat
In nur zwei Minuten zu Ihrem persönlichen Finanzierungszertifkat.
Infos
| Haustyp | Doppelhaushaelfte |
|---|---|
| Etagenzahl | 2 |
| Wohnfläche ca. | 110 m2 |
| Nutzfläche | 15,6 m2 |
| Grundstücksfläche | 307,5 m2 |
| Bezugsfrei ab | ab sofort |
| Zimmer | 4 |
| Schlafzimmer | 3 |
| Badezimmer | 1 |
| Garage/Stellplatz | Außenstellplatz |
| Anzahl Garage/Stellplatz | 2 |
Kosten
| Kaufpreis |
288.800 € |
|---|---|
| Provision |
3,57 % vom notariellen Kaufpreis inkl. 19 % MwSt. |
Finanzierungsrechner:
Kaufpreis:
600.000 €
Eigenkapital:
600.000 €
Monatliche Rate
0 €
Effektiver Jahreszins
0 %
Sollzinsbindung
10 Jahre
Bausubstanz & Energieausweis
| Baujahr | 1990 |
|---|---|
| Objektzustand | Vollständig Renoviert |
| Qualität der Austattung | Normal |
| Heizungsart | Nachtspeicherofen |
| Wesentliche Energieträger | Strom |
| Energieausweis | liegt vor |
| Energieausweistyp | Verbrauchsausweis |
| Energieverbrauchskennwert | 126,7 kWh/(m²*a) |
| Energieeffizienzklasse | D |
126,7
kWh/(m²*a)
Energieeffizienzklasse D
- A+
- A
- B
- C
- D
- E
- F
- G
- H
- 0
- 25
- 50
- 75
- 100
- 125
- 150
- 175
- 200
- 225
- >250
Beschreibung des Objekts
Ausstattung
Willkommen in Ihrer neuen Wohnoase, wo Komfort und Praktikabilität im Vordergrund stehen. Dieses durchdachte Zuhause bietet alles, was Sie für ein entspanntes und sorgenfreies Leben benötigen.
Beginnen wir mit dem modernen Badezimmer, das nicht nur über ein großes Fenster für viel natürliches Licht und gute Belüftung verfügt, sondern auch mit einer geräumigen Badewanne und einer WC-Anlage ausgestattet ist. Die türhoch gefliesten Wände machen die Reinigung zum Kinderspiel und sorgen für ein frisches, hygienisches Ambiente.
Die Küche ist derzeit leer (ohne Einbauten) und perfekt für alle, die ihre Traumküche gestalten möchten. Hier haben Sie die Freiheit, Ihre individuelle Küche nach Ihrem Geschmack und Bedarf zu kreieren. Von modernen Geräten bis hin zu maßgefertigten Schränken – die Möglichkeiten sind grenzenlos.
Ein praktischer Abstellraum bietet zusätzlichen Stauraum und ist ideal, um Haushaltsgeräte, Vorräte oder andere Gegenstände außerhalb Ihres Wohnbereichs sicher zu verstauen.
Die robusten und pflegeleichten Fliesenböden sind nicht nur stilvoll, sondern auch widerstandsfähig gegen Abnutzung und Kratzer, was sie zur perfekten Wahl für ein langlebiges und pflegeleichtes Zuhause macht.
Für Ihre Unterhaltung bietet der vorhandene Kabel-Sat-TV-Anschluss Zugang zu einer Vielzahl von Sendern, sodass Sie stets besten Empfang und eine große Auswahl an Programmen genießen können.
Ein besonderes Highlight ist der sonnige Garten. Genießen Sie gemütliche Nachmittage im Freien, umgeben von Natur, oder gestalten Sie Ihren persönlichen Outdoor-Rückzugsort.
Zwei verfügbare Stellplätze sorgen dafür, dass Ihre Fahrzeuge immer sicher und in der Nähe geparkt sind, was zusätzlichen Komfort und Sicherheit gewährleistet.
Die derzeit verbaute effiziente Elektro Nachtspeicherheizung versorgt Ihr Zuhause zuverlässig mit Wärme und unterstützt gleichzeitig energieeffizientes Heizen.
F Ö R D E R U N G :
Der Einbau einer neuen Wärmenpumpenheizung wird vom Land Hessen gefördert.
Lage
Diese charmante Doppelhaushälfte befindet sich in dem malerischen Ortsteil Wallrabenstein der Gemeinde Hünstetten, eingebettet in die idyllische Landschaft des Taunus in Deutschland. Die besondere Wohnlage des Hauses direkt am Feldrand, ist ideal für Familien und Berufspendler gleichermaßen. In nur 300 Metern Entfernung erreichen Sie das belebte Zentrum von Wallrabenstein, das mit zahlreichen Einkaufsmöglichkeiten (EDEKA Markt) und gastronomischen Angeboten aufwartet.
Die hervorragende Anbindung an die Autobahn, die lediglich 3,57 Kilometer entfernt liegt, ermöglicht eine zügige Verbindung zu den umliegenden Städten und macht das Pendeln besonders angenehm. Der öffentliche Nahverkehr ist ebenfalls gut erreichbar; eine Bushaltestelle befindet sich nur 380 Meter vom Haus entfernt.
Für Familien mit Kindern bietet die Umgebung zahlreiche Bildungs- und Betreuungseinrichtungen. Der Wallrabensteiner Kindergarten ist nur 680 Meter entfernt, während die Grund-, Haupt-, Real- und Gymnasialschulen alle in einer Entfernung von etwa 620 Metern liegen und somit leicht zu Fuß oder mit dem Fahrrad erreichbar sind.
Diese besondere Wohnlage direkt am Feldrand vereint die Ruhe und Beschaulichkeit des Landlebens mit der Nähe zu urbanen Annehmlichkeiten und komfortablen Verkehrsanbindungen, was sie zu einem idealen Lebensmittelpunkt für verschiedenste Lebensstile macht.
Sonstige Angaben
ÜBER UNS:
Martin Brandt Immobilien, gegründet 1993, ist mit mehr als 32 Jahren Erfahrung einer der führenden Immobilien-Dienstleister in der Rhein-Main-Region. Wir unterstützen Sie als unabhängiger Immobilienmakler mit detaillierter Markt- und Objektkenntnis bei der schnellen und kundenorientierten Immobiliensuche und Vermittlung.
HABEN WIR IHR INTERESSE GEWECKT ?
Diese Immobilie gefällt Ihnen? Sie wünschen eine Besichtigung? Bitte nutzen Sie die elektronische Kontaktmöglichkeit auf dieser Seite und senden Sie uns Ihre Mail mit Angabe Ihres vollständigen Namens, Ihrer Telefon Nummer(n), E-Mail-Adresse und Ihres Terminwunsches. Bitte denken Sie auch an einen möglichen alternativen Termin.
V E R H A N D L U N G E N :
Sind ausschließlich über uns zu führen.
B E S I C H T I G U N G S T E R M I N E :
Für weitere Informationen sowie die Vereinbarung eines Besichtigungstermins stehen wir Ihnen gerne zur Verfügung. Wir freuen uns auf Ihre e-Mail Anfrage unter: immobilien@bpi24.de
A N S P R E C H P A R T N E R :
Martin Brandt und Kerstin Brandt
M A K L E R P R O V I S I O N :
Im Falle des Zustandekommens eines Kaufvertrages, ist eine Courtage in Höhe von 3,57 % inkl. 19 % MwSt. vom vereinbarten und notariellen Kaufpreis vom Käufer an den Makler zu zahlen.
FREUNDLICHER HINWEIS :
Alle Angaben in diesem Exposé wurden sorgfältig und so vollständig wie möglich gemacht. Dennoch kann das Vorhandensein von Fehlern nicht ausgeschlossen werden. Die Angaben in diesem Exposé erfolgen daher ohne Gewähr und basieren ausschließlich auf Informationen, die uns vom Verkäufer/Vermieter bzw. von Dritten zur Verfügung gestellt wurden, so dass wir keine Gewähr für die Vollständigkeit, Richtigkeit und Aktualität dieser Angaben übernehmen können. Irrtum und Zwischenverkauf/Zwischenvermietung bleibt vorbehalten.
Weitere Dokumente
Energieausweis des HausesGrundriss
Eingangsgeschoss
>
>
Erdgeschoss
>
>
Erdgeschoss
>
>
Eingangsgeschoss
>
>
Freiflächenplan A
>
>
Freiflächenplan mit Teilung
>
>
Adresse
65510 Hünstetten
Interessante Orte
Preis- und Lageinformationen
Preistrend für Bestandsimmobilien in Hünstetten