Verkauft wird ein großzügiges Reihenhaus aus dem Baujahr 2005 in guter und ruhiger Lage von Griesheim!
Die insgesamt ca. 280 m² reine Wohnfläche verteilen sich auf 4 Wohnetagen.
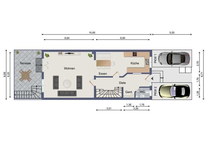
Das Erdgeschoss dieser attraktiven Liegenschaft verfügt über einen großen und hellen Wohnbereich mit separater Essecke, offene Küche, Diele mit Garderobe und ein separates WC. Die im Jahr 2020 erneuerte Terrasse lässt sich wunderbar aus dem Wohnzimmer erreichen. Die hochwertige Einbauküche mit Miele-Elektrogeräten ist im Kaufpreis inbegriffen. Diese Etage wird über eine Fußbodenheizung beheizt. Der schöne Kaminofen sorgt insbesondere in der kälteren Jahreszeit für eine gemütliche Atmosphäre und dient zudem als weitere, natürliche Heizquelle.
Über eine Natursteininnentreppe lässt sich das Obergeschoss gut erreichen.
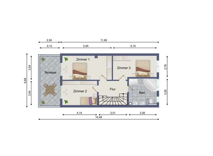
Auf dieser Ebene befinden sich 3 flexibel nutzbare Zimmer, Flur, Tageslichtbad mit Dusche und Wanne und eine großzügige Loggia.
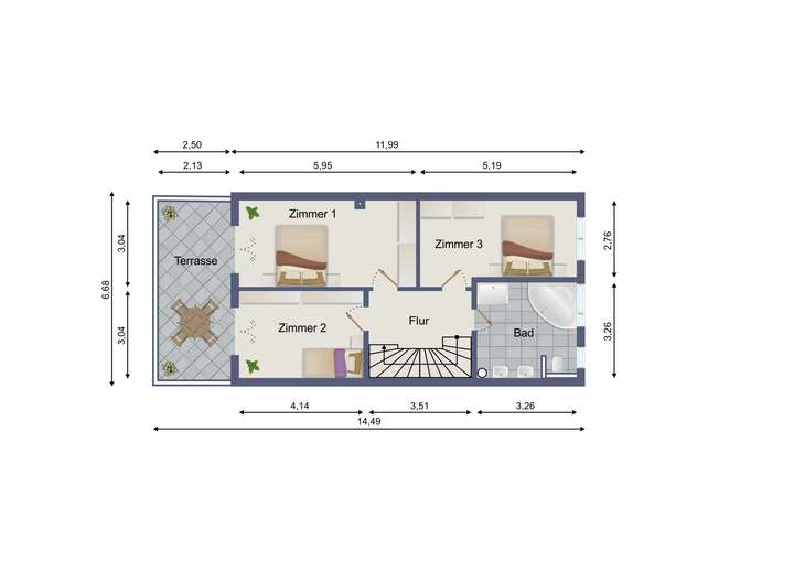
Das 2.Obergeschoss beinhaltet 2 flexibel nutzbare Zimmer, Flur, ein weiteres Tageslichtbad mit Dusche und Wanne sowie einen Balkon.
Noch nicht genug? Dann geht es weiter in das ausgebaute Dachgeschoss. Hier befinden sich 1 Wohnraum und ein kleiner Heizungsraum.
Das Untergeschoss dieser außergewöhnlich großen Immobilie wurde offiziell für Wohnzwecke ausgebaut und ist entweder über das interne Treppenhaus oder über einen separaten Außenzugang erreichbar.
Dieser ca. 73 m² große Bereich kann aber auch gut als Hobbyfläche, Büro, Gästebereich oder teilweise auch als Nutzfläche genutzt werden. Diese Ebene verfügt über einen großen Wohnbereich, Küche, Schlafzimmer, Flur und ein weiteres Badezimmer und wird derzeit als Wohnraum genutzt.
Auch die hier installierte Einbauküche mit Elektrogeräten ist im Kaufpreis bereits inbegriffen.
Das gesamte Objekt wird über eine Gas-Zentralheizung der Marke Buderus beheizt.
Größtenteils wurde der Boden im Haus mit einem hochwertigen Naturstein verlegt.
Unmittelbar vor dem Haus befinden sich 2 PKW-Stellplätze auf dem eigenen Grundstück.
Für weitere Objektinformationen stehen wir Ihnen gerne auch persönlich zur Verfügung.
Besichtigungstermine können flexibel nach Absprache vereinbart werden.
Über 280 m² Wohnfläche in Griesheim bei Darmstadt zu verkaufen
64347 Griesheim
Die vollständige Adresse der Immobilie erhalten Sie vom Anbieter.
Auf Karte anzeigen
Die vollständige Adresse der Immobilie erhalten Sie vom Anbieter.
Finanzierungszertifikat
In nur zwei Minuten zu Ihrem persönlichen Finanzierungszertifkat.
Infos
| Haustyp | Reihenmittelhaus |
|---|---|
| Etagenzahl | 4 |
| Wohnfläche ca. | 280 m2 |
| Nutzfläche | 25 m2 |
| Grundstücksfläche | 198 m2 |
| Bezugsfrei ab | Nach Absprache |
| Zimmer | 9,5 |
| Schlafzimmer | 7 |
| Badezimmer | 3 |
| Garage/Stellplatz | Außenstellplatz |
| Anzahl Garage/Stellplatz | 2 |
Kosten
| Kaufpreis |
799.000 € |
|---|---|
| Provision |
3,57 % inkl. MwSt. Käuferprovision inklusive Mehrwertsteuer und fällig mit Zustandekommen eines notariellen Kaufvertrages. Der Immobilienmakler hat einen provisionspflichtigen Maklervertrag mit dem Verkäufer in gleicher Höhe abgeschlossen. |
Finanzierungsrechner:
Kaufpreis:
600.000 €
Eigenkapital:
600.000 €
Monatliche Rate
0 €
Effektiver Jahreszins
0 %
Sollzinsbindung
10 Jahre
Bausubstanz & Energieausweis
| Baujahr | 2005 |
|---|---|
| Bauphase | Haus fertig gestellt |
| Objektzustand | Gepflegt |
| Qualität der Austattung | Gehoben |
| Heizungsart | Gas-Heizung |
| Wesentliche Energieträger | Gas |
| Energieausweis | liegt zur Besichtigung vor |
Beschreibung des Objekts
Ausstattung
Extravagantes Reihenhaus in guter Lage!
- Massivbau
- Baujahr 2005
- Ca. 280 m² reine Wohnfläche!
- 9,5 Zimmer
- Keller
- Kaminofen im Wohnbereich
- 2 PKW-Stellplätze inbegriffen
- Hochwertige Einbauküche mit Miele Elektrogeräten inbegriffen
- Ausgebautes Dachgeschoss
- Wohnraum im Souterrain mit Küche und Badezimmer
- 3 Bäder mit Dusche und Wanne
- Exklusiver Natursteinboden
- Terrasse im EG
- Loggia im OG
- Balkon im 2.OG
- Gas-Zentralheizung Buderus
- Elektrische Rollos
- Fußbodenheizung im EG
Das gesamte Anwesen befindet sich in einem sehr gepflegten Zustand und kann aufgrund der besonderen Größe und der praktischen Aufteilung auch wunderbar als Mehrgenerationenhaus genutzt werden.
Lage
Ein optimaler Standort für Familien!
Dieses schöne Haus befindet sich in einer verkehrsberuhigten Straße in fast direkter Feldrandlage von Griesheim.
Die Stadt Griesheim verfügt über ein ideale Verkehrsanbindung sowohl an Autobahnen (A 5 / A 67) als auch an öffentliche Verkehrsmittel. Frankfurt, Darmstadt, Wiesbaden, Heidelberg, Mannheim, Mainz, etc. sind gut und schnell zu erreichen.
In Griesheim sind neben rund 80 Fach- und Einzelhandelsgeschäften auch Gaststätten, Cafés und Dienstleistungsbetriebe gelegen. Zudem befinden sich hier alle wichtigen Einrichtungen des täglichen Lebens wie Banken, Post, Rathaus, Schule, Kirche und eine Vielzahl an medizinischen Einrichtungen.
In der Stadt gibt es zahlreiche Kindertagesstätten, 3 Grundschulen, eine Schule für Lernhilfe und eine weiterführende Schule, die Kindern und Jugendlichen ihre Schulausbildung bis zum Abitur ermöglichen. Weitere Schulen mit verschiedenen Ausrichtungen und Abschlussmöglichkeiten, sowie Universität/Hochschule, stehen im benachbarten Darmstadt zur Verfügung. Mit der Straßenbahnanbindung kommen die Schüler schnell zur Schule und wieder nach Hause.
Viele Sportstätten, Joggingstrecken und zwei Schwimmbäder laden zur sportlichen Betätigung ein. Im gesamten Stadtgebiet warten perfekt ausgestattete Spielplätze auf die Kinder.
Sonstige Angaben
HINWEIS ZUM GELDWÄSCHEGESETZ (GWG) Gesetzliche Pflichten für Immobilienmakler nach dem GWG gemäß §2 Absatz 1 Nr. 10 GWG. Nach diesem Gesetz ist jeder Immobilienmakler verpflichtet, bei Kontaktaufnahme die Identität des Kunden festzustellen. d.h. Ausweispapiere zu kopieren oder zu fotografieren und 5 Jahre aufzubewahren. Für weitere Informationen stehen wir Ihnen gern zur Verfügung.
Grundriss
Erdgeschoss
>
>
1.Obergeschoss
>
>
2.Obergeschoss
>
>
Souterrain
>
PDF
Download
>
PDF Download
PDF Download
PDF Download
Adresse
64347 Griesheim
Interessante Orte
Preis- und Lageinformationen
Preistrend für Bestandsimmobilien in Griesheim