Willkommen in Ihrem neuen Zuhause!
Das gepflegte freistehende Einfamilienwohnhaus mit einseitiger Grenzbebauung (Westseite) befindet sich auf einem ca. 397 qm großen Grundstück, und eignet sich in idealer Weise für die kleine Familie und Paare.
Die Raumaufteilung gestaltet sich wie folgt:
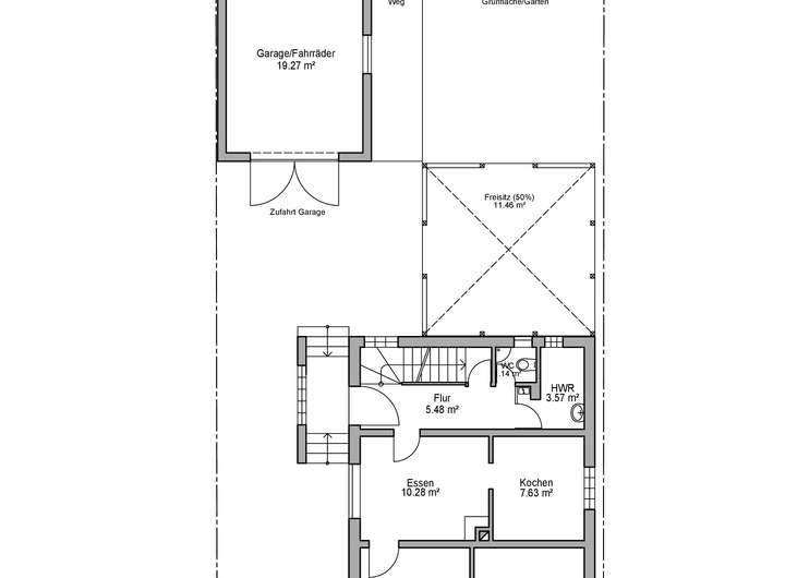
Im Erdgeschoss befinden sich neben einem Gäste-WC mit Fenster auch ein Hauswirtschaftsraum mit Waschmaschinenanschluss und Tageslicht. Die Küche schließt direkt an das Esszimmer an und bietet kurze Wege im Alltag. Zwei weitere, hell gestaltete Wohnräume sorgen für eine angenehme Wohnatmosphäre und flexible Nutzungsmöglichkeiten – etwa als Wohnzimmer, Familienraum oder Arbeitszimmer. Vom zentralen Flur aus führt eine Treppe sowohl in den Keller als auch in das Obergeschoss. Ein direkter Zugang in den Garten besteht von dieser Ebene nicht.
Zusammenfassung Erdgeschoss:
• Gäste-WC mit Fenster
• Hauswirtschaftsraum mit Waschmaschinenanschluss
• Küche
• Esszimmer
• Zwei Wohnräume
• Zugang zu Keller und Obergeschoss vom Flur aus
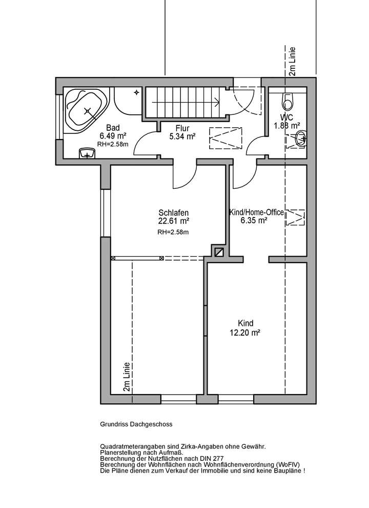
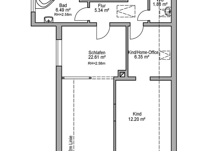
Im Dachgeschoss befindet sich der private Rückzugsbereich des Hauses. Hier stehen ein modernes Badezimmer mit Eckbadewanne und Dusche, ein separates WC mit Dachflächenfenster, ein kleines Durchgangszimmer das sich ideal als Homeoffice eignet, sowie zwei weitere großzügige Schlaf- Kinderzimmer zur Verfügung. Vom Flur aus eröffnet ein bodentiefes Fenster einen schönen Blick in den südlich ausgerichteten Garten.
Zusammenfassung Dachgeschoss:
• Modernes Badezimmer mit Eckbadewanne und Dusche
• Separates WC mit Dachflächenfenster
• Kleines Durchgangszimmer (Büro)
• Zwei weitere großzügige Wohn- Schlafräume
• Bodentiefes Fenster mit schönem Blick in den Garten
Als Bodenbelag wurden im Haus Fliesen und Laminat verlegt.
Der Keller ist teilunterkellert, nicht unterteilt und verfügt über eine Nutzfläche von ca. 30 m². Hier ist auch die Gas-Zentralheizung mit Warmwassergewinnung untergebracht (Viessmann Rexola-biferral, Bj. 1993). Das Fundament (Kellerwände) ist baujahrestypisch aus Bruchsteinen errichtet, welche je nach Witterung etwas "schwitzen" (Grundfeuchte), von daher ist eine gewisse Ausblühung normal.
Grundstück:
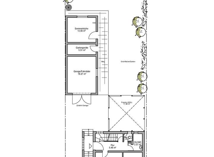
Auf dem nach Süden ausgerichteten Grundstück befindet sich direkt hinter dem Haus ein großzügiger überdachter Freisitz mit ca. 23 qm. Hinter der Garage befinden sich noch ein Geräteraum sowie ein großer Abstellraum welcher als Werkstatt und/oder Sommerküche mit Strom- und Wasseranschluss genutzt wurde, jeweils mit separatem Zugang. Der großzügige Innenhof ist gekiest, die Abgeschlossenheit zur Straße erfolgt über ein Holztor.
Bickenbach, mit etwas Glück schon zu Weihnachten im eigenen Zuhause!
Hügelstraße 15,
64404 Bickenbach
Auf Karte anzeigen
Finanzierungszertifikat
In nur zwei Minuten zu Ihrem persönlichen Finanzierungszertifkat.
Infos
| Haustyp | Einfamilienhaus |
|---|---|
| Wohnfläche ca. | 121 m2 |
| Nutzfläche | 68 m2 |
| Grundstücksfläche | 397 m2 |
| Bezugsfrei ab | sofort |
| Zimmer | 6 |
| Schlafzimmer | 3 |
| Badezimmer | 1 |
| Garage/Stellplatz | Garage |
| Anzahl Garage/Stellplatz | 1 |
Kosten
| Kaufpreis |
369.000 € |
|---|---|
| Provision |
1,78 % inkl. 19 % MwSt. vom beurkundeten Kaufpreis. Die Käufer-Provision ist verdient und fällig mit notarieller Beurkundung. Der Immobilienmakler hat einen provisionspflichtigen Maklervertrag in gleicher Höhe mit dem Verkäufer abgeschlossen (§ 656 c BGB). |
Finanzierungsrechner:
Kaufpreis:
600.000 €
Eigenkapital:
600.000 €
Monatliche Rate
0 €
Effektiver Jahreszins
0 %
Sollzinsbindung
10 Jahre
Bausubstanz & Energieausweis
| Baujahr | 1930 |
|---|---|
| Letzte Sanierung | 2012 |
| Objektzustand | Gepflegt |
| Qualität der Austattung | Einfach |
| Heizungsart | Zentralheizung |
| Wesentliche Energieträger | Erdgas schwer |
| Energieausweis | liegt vor |
| Energieausweistyp | Bedarfsausweis |
| Energieverbrauchskennwert | 222,5 kWh/(m²*a) |
| Energieeffizienzklasse | G |
222,5
kWh/(m²*a)
Energieeffizienzklasse G
- A+
- A
- B
- C
- D
- E
- F
- G
- H
- 0
- 25
- 50
- 75
- 100
- 125
- 150
- 175
- 200
- 225
- >250
Beschreibung des Objekts
Ausstattung
Zusammenfassung:
Objekttyp: freistehendes Einfamilienwohnhaus mit einseitiger Grenzbebauung (West-Seite)
Wohnfläche gesamt ca.: 121 qm
Wohn- Schlafzimmer: 6
Bäder: 1
G-WC: 2
Nutzfläche ca.: 68 m²
Kellerräume: 1
Garage/Stellplätze: 1 / 1
Nebenräume: Gartengeräteraum, Abstellraum/Werkstatt/Sommerküche
Grundstücksfläche ca.: 397 m² (BRW = 650,- EUR/qm)
Bezugsfrei ab: kurzfristig
Baujahr: 1930
Objektzustand: gepflegt (in Teilen renovierungsbedürftig)
Ausstattung: einfach bis normal
Anlagentechnik: 1993
Heizungsart: Gas-Zentralheizung mit WW-Aufbereitung (Viessmann)
Energieausweis: 222,47 kWh/(m²•a) = G (Bedarfsausweis)
Bauplanungsrecht: § 34 BauGB (umgebene Bebauung)
Internetverfügbarkeit: Glasfaserlehrrohr bereits im Haus; zudem bis zu 175 MBit/s (Telekom); Breitbandkabel bis zu 1.000 Mbit/s (Vodafone); Quelle: Internet
Auflistung durchgeführter Modernisierungsmaßnahmen:
• Fenster 1990
• Gas-HZ 1993
• Sanitäranlagen 1995 + 2008
• Bodenbeläge 2003
• Dachboden- und Dachschrägendämmung 2012
Lage
Wohnen, wo andere Urlaub machen – an der Hessischen Bergstraße.
Bickenbach ist eine charmante Gemeinde mit rund 6.200 Einwohnern und liegt idyllisch an der vorderen Bergstraße, zwischen den wirtschaftsstarken Metropolregionen Rhein-Main und Rhein-Neckar. Bickenbach verbindet eine ruhige Wohnatmosphäre mit der Nähe zu den Städten Darmstadt, Frankfurt, Heidelberg und Mannheim.
Das Einfamilienhaus befindet sich in ruhiger und zentraler Wohnlage in einem gewachsenen Wohngebiet, das überwiegend von Ein- und Zweifamilienhäusern geprägt ist und durch eine angenehme, familienfreundliche Nachbarschaft überzeugt.
Die Ortsmitte von Bickenbach mit Einkaufsmöglichkeiten für den täglichen Bedarf, Ärzten, Apotheken, Restaurants, Kindergärten und einer Grundschule ist in wenigen Minuten fußläufig erreichbar. Weiterführende Schulen befinden sich in den benachbarten Gemeinden Seeheim-Jugenheim und Zwingenberg, die bequem mit dem Fahrrad, Bus oder Auto erreichbar sind.
Der Freizeitwert der Region ist ausgesprochen hoch. In der unmittelbaren Umgebung laden der Erlensee und die landschaftlich reizvolle Umgebung der Bergstraße zu Spaziergängen, Wanderungen und Radtouren ein. Sportbegeisterte finden im Ort zahlreiche Vereine, Sportanlagen, eine Kegelbahn im Bürgerhaus sowie ein aktives Vereinsleben. Mehrere Restaurants und Cafés sorgen für kulinarische Abwechslung und gemütliche Begegnungen.
Dank der guten Verkehrsanbindung – mit einem eigenen Bahnhof (Strecke Frankfurt / Heidelberg) und der nahegelegenen Autobahn A5 – sind die umliegenden Städte schnell erreichbar. So verbindet Bickenbach ruhiges, naturnahes Wohnen mit urbaner Erreichbarkeit – ideal für Familien, Berufspendler und alle, die eine ausgewogene Lebensqualität schätzen.
Sonstige Angaben
Fazit:
Dieses charmante Einfamilienhaus in zentraler Lage von Bickenbach verbindet Wohnen in angenehmer Nachbarschaft mit guter Infrastruktur
und hervorragender Verkehrsanbindung. Der sonnige Garten, das vorhandene Potenzial und die massive Bauweise machen das Haus zu einer attraktiven Gelegenheit für alle, die Wert auf ein gemütliches Zuhause in zentraler und naturnaher Umgebung legen.
Im Alleinvermittlungsauftrag!
Alle Angaben erfolgen nach bestem Wissen, jedoch ohne Gewähr für die Richtigkeit/Vollständigkeit und beruhen auf Aussagen des Verkäufers, für deren Inhalt die Fa. Thomas Wolf Immobilien keine Haftung übernimmt.
Grundriss
Freiflächenplan_V2220
>
>
GR-EG_Gebäude_V2220
>
>
GR-EG_V2220
>
>
GR-DG_V2220
>
>
GR-KG_V2220
>
>
Adresse
Hügelstraße 15, 64404 Bickenbach
Interessante Orte
Preis- und Lageinformationen
Preistrend für Bestandsimmobilien in Bickenbach