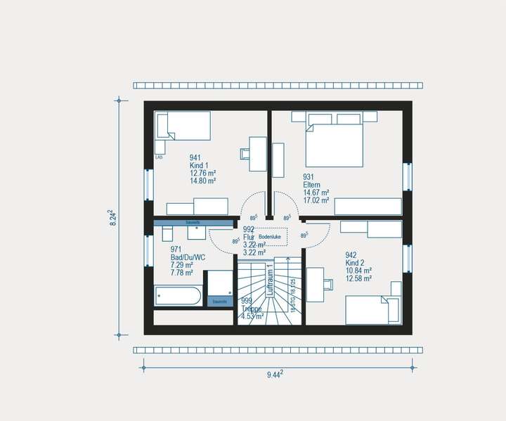
Mit dem Aktionshaus PLACE 4 von allkauf wird Ihr frei stehendes Einfamilienhaus in Usingen Wirklichkeit. Das Aktionshaus wird ganz nach Ihren individuellen Wünschen und Vorstellungen geplant. Dieses charmante Zuhause bietet Ihnen auf zwei Etagen eine großzügige Wohnfläche von 123,32 m², verteilt auf 4 Zimmer, darunter 3 Schlafzimmer, die ausreichend Platz für Ihre Familie bieten. Das Badezimmer ist ein wahres Highlight mit Dusche, Wanne und Fenster, ergänzt durch ein praktisches Gäste-WC. Die gehobene Ausstattung sorgt für ein angenehmes Wohngefühl und lässt keine Wünsche offen.
Genießen Sie die zahlreichen Vorteile der hochwertigen Bodenbeläge: Fliesen sind nicht nur pflegeleicht, sondern auch langlebig; Laminat sorgt für eine warme Atmosphäre und ist ebenfalls einfach zu reinigen; Linoleum ist besonders umweltfreundlich und ideal für Allergiker. Die moderne Wärmepumpe als Heizsystem garantiert Ihnen eine effiziente und kostensparende Beheizung des Hauses, was dem Niedrigenergie-Standard zugutekommt und gleichzeitig die Umwelt schont.
Das Grundstück mit einer Fläche von 405,00 m² befindet sich in einer ruhigen Wohngegend im Stadtzentrum von Usingen, was Ihnen eine hervorragende Infrastruktur mit Einkaufsmöglichkeiten, Schulen und Freizeitaktivitäten in der Nähe bietet. Genießen Sie die Vorzüge einer zentralen Lage, die gleichzeitig Rückzugsmöglichkeiten bietet.
allkauf heißt: Maximale Sicherheit, kurze Lieferzeiten, garantierte Fertigstellung. Bei uns können Sie sicher sein, dass Ihr Traum vom Eigenheim ohne unerwartete Überraschungen verwirklicht wird. Zu allen Häusern gehört:
- Energieeffizienzwand
- Echtholztreppe
- Luft-Wasser-Wärmepumpe
- Fußbodenheizung
- Be- und Entlüftungsanlage
- 3-fach verglaste Fenster inklusive Rollläden mit Aluminiumlamellen
- Lichte Raumhöhe 2,75 m
- inkl. erhöhten Fenstern und Türen
- TOXPROOF Gütesiegel - schadstoffgeprüfter Materialien
- Just-in-Time-Lieferungen
- Bemustern im eigenen Bemusterungszentrum mit Markenprodukten
Sie profitieren von unserem Dienstleistungspaket Active Time für Ambitionierte, in dem wir Estrich, Sanitär, Heizung und Elektroinstallation übernehmen. Die Wahl zur Eigenverantwortung im Trockenbau bleibt Ihnen überlassen. Vereinbaren Sie noch heute Ihren Termin zur Planung Ihres allkauf Traumhauses!
Natürlich sind auch andere Ausbaustufen möglich!
+++ Aktionshaus in attraktiver ruhiger Lage von Usingen +++
61250 Usingen
Die vollständige Adresse der Immobilie erhalten Sie vom Anbieter.
Auf Karte anzeigen
Die vollständige Adresse der Immobilie erhalten Sie vom Anbieter.
Finanzierungszertifikat
In nur zwei Minuten zu Ihrem persönlichen Finanzierungszertifkat.
Infos
| Haustyp | Einfamilienhaus |
|---|---|
| Etagenzahl | 2 |
| Wohnfläche ca. | 123 m2 |
| Grundstücksfläche | 405 m2 |
| Bezugsfrei ab | 11/2026 |
| Zimmer | 4 |
| Schlafzimmer | 3 |
| Badezimmer | 1 |
Kosten
| Kaufpreis |
490.512 € |
|---|
Finanzierungsrechner:
Kaufpreis:
600.000 €
Eigenkapital:
600.000 €
Monatliche Rate
0 €
Effektiver Jahreszins
0 %
Sollzinsbindung
10 Jahre
Bausubstanz & Energieausweis
| Baujahr | 2026 |
|---|---|
| Bauphase | Haus in Planung (projektiert) |
| Qualität der Austattung | Gehoben |
| Heizungsart | Wärmepumpe |
| Energieausweis | liegt zur Besichtigung vor |
Beschreibung des Objekts
Ausstattung
- Hochwertige Bodenbeläge: Fliesen, Laminat, Linoleum
- Moderne Wärmepumpe als Heizsystem
- Niedrigenergie-Standard
- Badezimmer mit Dusche, Wanne und Fenster, zusätzliches Gäste-WC
- Gehobene Ausstattung
- 3 Schlafzimmer
- 4.0 Zimmer insgesamt
Lage
- Zentrale Lage in Usingen
- Ruhige Wohngegend
- Gute Infrastruktur mit Einkaufsmöglichkeiten
- Nahe Schulen und Freizeitaktivitäten
Das Grundstück erwerben Sie direkt vom Eigentümer, nicht von allkauf.
Btte haben Sie Verständnis, dass wir keine Aussagen über Namen und genaue Lage vor einem persönlichen Termin erteilen. Gerne erläutere ich Ihnen meine professionelle Vorgehensweise zum Traumhaus.
Sonstige Angaben
allkauf heißt:
Maximale Sicherheit, kurze Lieferzeiten, garantierte Fertigstellung.
Zu allen Häusern gehört:
- Energieeffizienzwand
- Echtholztreppe
- Luft-Wasser-Wärmepumpe
- Fußbodenheizung
- Be- und Entlüftungsanlage
- 3-fach verglaste Fenster inklusive Rollläden mit Aluminiumlamellen
- Lichte Raumhöhe 2,75 m
- inkl. erhöhten Fenstern und Türen
- TOXPROOF Gütesiegel - schadstoffgeprüfter Materialien
- Just-in-Time-Lieferungen
- Bemustern im eigenen Bemusterungszentrum mit Markenprodukten
Grundriss
Grundriss
>
>
Grundriss
>
>
Adresse
61250 Usingen
Interessante Orte
Preis- und Lageinformationen
Preistrend für Bestandsimmobilien in Usingen