Willkommen in Ihrem neuen Zuhause in Waldems / Niederems!
Dieses charmante Einfamilienhaus, gebaut im Jahr 1957, verzaubert durch seine ruhige Lage und die herrliche Aussicht in die Ferne. Auf einem großzügigen Grundstück von ca. 1.958 m² bietet dieses Anwesen nicht nur viel Platz im Freien zur Gartennutzung, sondern auch eine perfekte Rückzugsoase mit all den Annehmlichkeiten, die Sie sich wünschen.
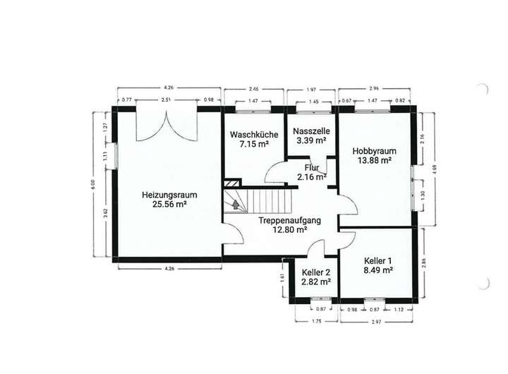
Das massiv gebaute Haus verfügt über zwei Etagen und bietet Ihnen auf ca. 143 m² Wohnfläche und zusätzlichen ca. 87 m² Nutzfläche genügend Raum für individuelle Gestaltungsmöglichkeiten. Mit insgesamt 6 Zimmern, darunter 3 Schlafzimmer, und 2 Badezimmern ist dieses Haus ideal für Familien geeignet. Besonders praktisch ist das zusätzliche Gäste-WC.
Der Wohnbereich besticht durch eine gemütliche Atmosphäre, die durch den vorhandenen Kamin zusätzlich unterstrichen wird. Die Böden variieren zwischen Fliesen, Teppich und Parkett und bieten somit eine interessante Vielfalt. Die Einbauküche (Eiche Natur) ist funktional und fügt sich harmonisch in den Wohnraum ein.
Besonders hervorzuheben sind die großzügigen Außenbereiche: Eine Terrasse und ein Balkon bieten reichlich Platz zum Entspannen und laden zur Nutzung des Gartens ein.
Der großzügige Keller und der Dachboden (nicht gedämmt) erweitern die Lagermöglichkeiten und unterstützen die Organisation im Alltag. Das Haus wird durch eine effiziente Öl-Zentralheizung von der Firma Viessman Öl beheizt. Diese Immobilie verbindet Funktionalität mit stilvollem Design und bietet Ihnen ein einzigartiges Wohngefühl.
Die Verfügbarkeit ist flexibel und nach Vereinbarung, sodass Sie Ihre individuellen Pläne problemlos umsetzen können. Wenn Sie auf der Suche nach einem gepflegten Rückzugsort im Grünen sind, der Raum für die ganze Familie bietet, dann könnte dieses Einfamilienhaus in Waldems / Niederems genau das Richtige für Sie sein.
Lassen Sie sich bei einem Besichtigungstermin von diesem besonderen Objekt begeistern!
Charmantes Einfamilienhaus mit Waldgrundstück ca. 1.958 m² in Traumlage von Waldems-Niederems
65529 Waldems
Die vollständige Adresse der Immobilie erhalten Sie vom Anbieter.
Auf Karte anzeigen
Die vollständige Adresse der Immobilie erhalten Sie vom Anbieter.
Finanzierungszertifikat
In nur zwei Minuten zu Ihrem persönlichen Finanzierungszertifkat.
Infos
| Haustyp | Einfamilienhaus |
|---|---|
| Etagenzahl | 2 |
| Wohnfläche ca. | 143 m2 |
| Nutzfläche | 87,09 m2 |
| Grundstücksfläche | 1.958 m2 |
| Bezugsfrei ab | nach Vereinbarung |
| Zimmer | 6 |
| Schlafzimmer | 3 |
| Badezimmer | 2 |
| Garage/Stellplatz | Außenstellplatz |
| Anzahl Garage/Stellplatz | 2 |
Kosten
| Kaufpreis |
497.000 € |
|---|---|
| Provision |
3,57 % vom notariellen Kaufpreis inkl. 19 % MwSt. |
Finanzierungsrechner:
Kaufpreis:
600.000 €
Eigenkapital:
600.000 €
Monatliche Rate
0 €
Effektiver Jahreszins
0 %
Sollzinsbindung
10 Jahre
Bausubstanz & Energieausweis
| Baujahr | 1957 |
|---|---|
| Objektzustand | Gepflegt |
| Qualität der Austattung | Normal |
| Heizungsart | Zentralheizung |
| Wesentliche Energieträger | Öl |
| Energieausweis | liegt vor |
| Energieausweistyp | Verbrauchsausweis |
| Energieverbrauchskennwert | 218,4 kWh/(m²*a) |
| Energieeffizienzklasse | G |
218,4
kWh/(m²*a)
Energieeffizienzklasse G
- A+
- A
- B
- C
- D
- E
- F
- G
- H
- 0
- 25
- 50
- 75
- 100
- 125
- 150
- 175
- 200
- 225
- >250
Beschreibung des Objekts
Ausstattung
- Bad (1) mit Fenster, Dusche und WC
- Bad (2) mit Fenster, Wanne und WC
- Gäste-WC
- Einbauküche
- Fliesen, Teppichboden und Parkett
- Sat TV (Internetverbindung (aktuell Vodafone) mit bis zu 10000 Mbit/s)
- Glasfaserkabel noch nicht vorhanden
- Kamin
- Terrasse
- Balkon
- Zisterne für Gartenbewässerung vorhanden
- Garage + zwei PKW-Stellplätze
- Dachboden (nicht gedämmt)
- Zentralheizung (Öl)
Lage
Das charmante Einfamilienhaus befindet sich in der idyllischen Gemeinde Waldems, im malerischen Ortsteil Niederems, eingebettet in die herrliche Landschaft des Taunus.
Diese ruhige Lage bietet eine perfekte Balance zwischen Natur und städtischer Erreichbarkeit. In der Umgebung finden Sie weitläufige Wälder und Grünflächen, die zu Spaziergängen und aktiven Freizeitgestaltungen einladen. Die Gemeinde zeichnet sich durch ihre freundliche und familiäre Atmosphäre aus, ideal für alle, die dem Trubel der Stadt entfliehen möchten und dennoch eine gute Anbindung an größere Städte wünschen.
Die nächstgelegenen Städte wie Idstein und Usingen (Verbindung: Bundesstraße B 275) mit umfassender Infrastruktur sind schnell erreichbar. Die nächstgelegenen Kindergärten finden Sie in Waldems in den Ortsteilen direkt in Niederems, Steinfischbach und Esch.
Die Lage ist nicht nur ideal für Familien, sondern auch für Naturliebhaber und alle, die eine ruhige und harmonische Wohngegend schätzen.
Sonstige Angaben
ÜBER UNS:
Martin Brandt Immobilien, gegründet 1993, ist mit mehr als 32 Jahren Erfahrung einer der führenden Immobilien-Dienstleister in der Rhein-Main-Region. Wir unterstützen Sie als unabhängiger Immobilienmakler mit detaillierter Markt- und Objektkenntnis bei der schnellen und kundenorientierten Immobiliensuche und Vermittlung.
HABEN WIR IHR INTERESSE GEWECKT ?
Diese Immobilie gefällt Ihnen? Sie wünschen eine Besichtigung? Bitte nutzen Sie die elektronische Kontaktmöglichkeit auf dieser Seite und senden Sie uns Ihre Mail mit Angabe Ihres vollständigen Namens, Ihrer Telefon Nummer(n), E-Mail-Adresse und Ihres Terminwunsches. Bitte denken Sie auch an einen möglichen alternativen Termin.
V E R H A N D L U N G E N :
Sind ausschließlich über uns zu führen.
B E S I C H T I G U N G S T E R M I N E :
Für weitere Informationen sowie die Vereinbarung eines Besichtigungstermins stehen wir Ihnen gerne zur Verfügung. Wir freuen uns auf Ihre e-Mail Anfrage unter: immobilien@bpi24.de
A N S P R E C H P A R T N E R :
Martin Brandt und Kerstin Brandt
M A K L E R P R O V I S I O N :
Im Falle des Zustandekommens eines Kaufvertrages, ist eine Courtage in Höhe von 3,57 % inkl. 19 % MwSt. vom vereinbarten und notariellen Kaufpreis vom Käufer an den Makler zu zahlen.
FREUNDLICHER HINWEIS :
Alle Angaben in diesem Exposé wurden sorgfältig und so vollständig wie möglich gemacht. Dennoch kann das Vorhandensein von Fehlern nicht ausgeschlossen werden. Die Angaben in diesem Exposé erfolgen daher ohne Gewähr und basieren ausschließlich auf Informationen, die uns vom Verkäufer/Vermieter bzw. von Dritten zur Verfügung gestellt wurden, so dass wir keine Gewähr für die Vollständigkeit, Richtigkeit und Aktualität dieser Angaben übernehmen können. Irrtum und Zwischenverkauf/Zwischenvermietung bleibt vorbehalten.
Weitere Dokumente
EnergieausweisGrundriss
Grundriss Erdgeschoss
>
>
Grundriss Dachgeschoss
>
>
Grundriss Kellergeschoss
>
>
Adresse
65529 Waldems
Interessante Orte
Preis- und Lageinformationen
Preistrend für Bestandsimmobilien in Waldems