Dieses liebevoll gepflegte Architektenhaus aus dem Jahr 1976 mit heller Klinkerfassade und den grünen Sprossenfenstern ist ein Zuhause zum Verlieben. Das große Haus überzeugt durch eine offene Bauweise im Fachwerkstil und bietet mit seiner durchdachten Raumaufteilung viel Platz für kleine und große Familien. Das ca. 1.947 m² große Grundstück liegt zurückversetzt von der Straße und ist nicht einsehbar. Die optimale Ausrichtung und die Größe des Grundstücks lassen keine Wünsche offen, ob einfach Entspannen auf der sonnigen und windgeschützten Terrasse oder am Gartenteich, zum Fußballspielen oder Höhlenbauen, hier ist Platz für alle. Neben der Großzügigkeit im Haus auf den oberen Etagen findet sich im Untergeschoss ein besonderes Highlight: der große Wellnessbereich mit Pool, XL-Dusche, Sauna und großer Schiebetür, die direkt in den Garten führt. Darüber hinaus bietet das Untergeschoss Platz für einen großen Hobbyraum, zusätzliche Abstellflächen sowie Technikräume für Pool und Heizung. Eine Doppelgarage mit Wallbox für E-Autos sowie ein separater Abstellraum für Fahrräder und ein Carport ergänzen das Angebot. Das Objekt verbindet Wohnkomfort mit Privatsphäre in naturnaher Lage – ideal für anspruchsvolle Käufer.
Architektenhaus auf großem Grundstück
22359 Hamburg
Die vollständige Adresse der Immobilie erhalten Sie vom Anbieter.
Auf Karte anzeigen
Die vollständige Adresse der Immobilie erhalten Sie vom Anbieter.
Finanzierungszertifikat
In nur zwei Minuten zu Ihrem persönlichen Finanzierungszertifkat.
Infos
| Haustyp | Einfamilienhaus |
|---|---|
| Wohnfläche ca. | 339 m2 |
| Nutzfläche | 82 m2 |
| Grundstücksfläche | 1.947 m2 |
| Bezugsfrei ab | nach Vereinbarung |
| Zimmer | 7 |
| Schlafzimmer | 7 |
| Badezimmer | 4 |
Kosten
| Kaufpreis |
1.850.000 € |
|---|---|
| Provision |
3,57 % inkl. MwSt. |
Finanzierungsrechner:
Kaufpreis:
600.000 €
Eigenkapital:
600.000 €
Monatliche Rate
0 €
Effektiver Jahreszins
0 %
Sollzinsbindung
10 Jahre
Bausubstanz & Energieausweis
| Baujahr | 1976 |
|---|---|
| Objektzustand | Gepflegt |
| Wesentliche Energieträger | Öl |
| Energieausweis | liegt vor |
| Energieausweistyp | Verbrauchsausweis |
| Energieverbrauchskennwert | 224,2 kWh/(m²*a) |
| Energieeffizienzklasse | G |
224,2
kWh/(m²*a)
Energieeffizienzklasse G
- A+
- A
- B
- C
- D
- E
- F
- G
- H
- 0
- 25
- 50
- 75
- 100
- 125
- 150
- 175
- 200
- 225
- >250
Beschreibung des Objekts
Ausstattung
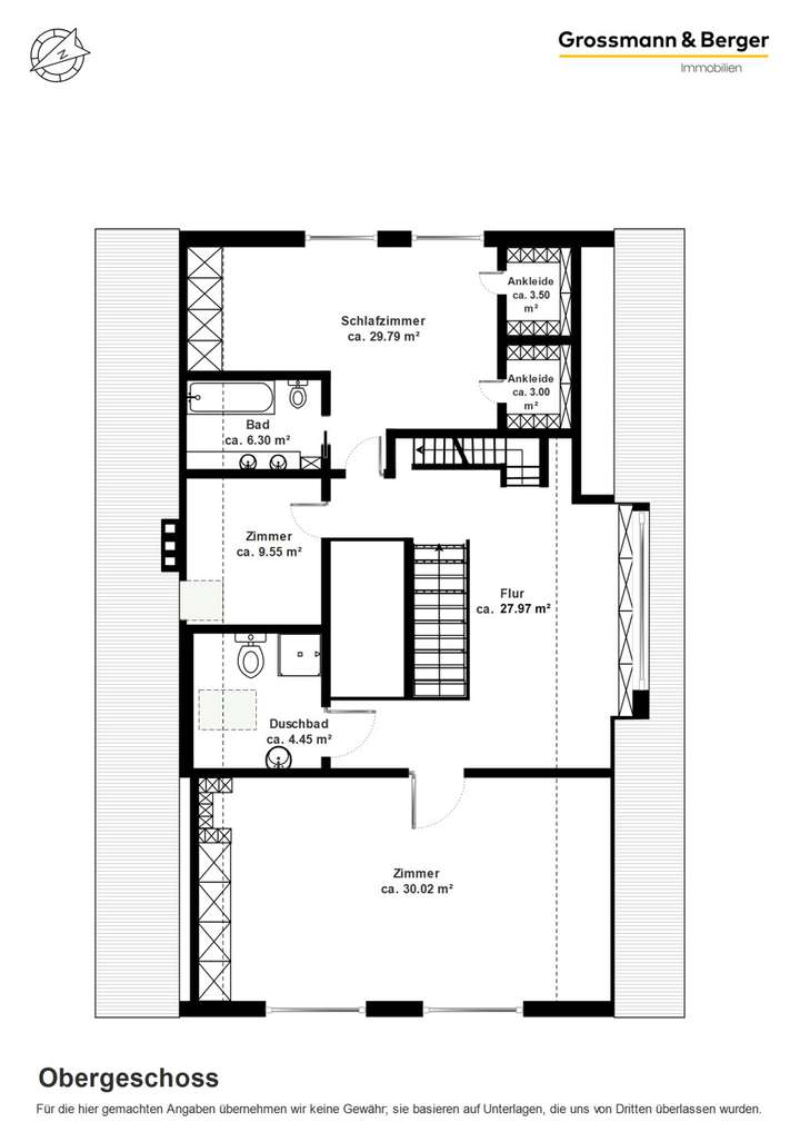
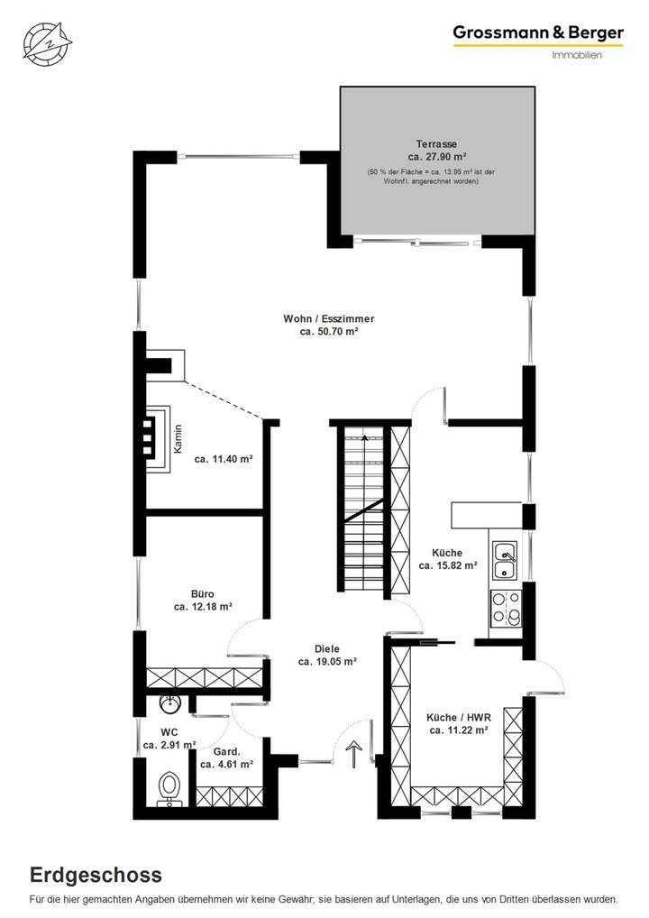
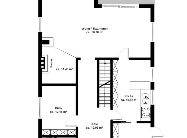
Dieses großzügige Einfamilienhaus überzeugt mit einer Wohnfläche von ca. 339 m² sowie ca. 82 m² zusätzlicher Nutzfläche und bietet dank seiner durchdachten Raumaufteilung viel Platz für komfortables Wohnen. Das lichtdurchflutete Entree mit einer Galerieebene im Obergeschoss vermittelt ein offenes Wohngefühl. Es unterstreicht die Großzügigkeit des Hauses und schafft eine besondere Atmosphäre. Das Herzstück des Hauses ist das weitläufige Wohn- und Esszimmer mit einer gemütlichen Kaminecke – perfekt für entspannte Stunden im Familienkreis oder gesellige Abende mit Freunden. Die Küche, an die direkt angrenzend sich der große Hauswirtschaftsraum befindet – ist bestens ausgestattet und bietet Platz für eine zusätzliche Sitzecke. Im Erdgeschoss befinden sich außerdem ein Arbeitszimmer, das Gäste-WC sowie die Garderobe. Im ersten Obergeschoss liegen das großzügige Masterschlafzimmer mit einem komfortablen Bad en Suite, ein zweites großes Zimmer, ein modernes Duschbad sowie ein halbes Zimmer, das sich als Ankleide oder weiteres Büro eignet. Das ausgebaute Dachgeschoss bietet Platz für zwei weitere große Zimmer, ein Duschbad sowie einen Abstellraum – eine perfekte Ebene für die größeren Kinder oder Gäste.
Lage
Die Immobilie befindet sich im beliebten Stadtteil Volksdorf - einer der begehrtesten Lagen im Nordosten von Hamburg. Volksdorf bietet eine hervorragende Infrastruktur mit guter Anbindung an die Hamburger Innenstadt und ist besonders bei Familien sehr beliebt. Mehrere Kindergärten, die Grundschule Eulenkrug sowie alle weiterführenden Schulen sind in der unmittelbaren Umgebung ansässig und gut mit dem Fahrrad zu erreichen. Sämtliche Geschäfte des täglichen Bedarfs, ein vielfältiges Angebot an Restaurants und Ärzte verschiedener Fachrichtungen befinden sich zentral im Ortskern von Volksdorf. Ein großes Angebot an verschiedenen Vereinen wie zum Beispiel Reit-, Tennis-, Hockey- sowie Fußballvereinen ist ebenfalls in Volksdorf ansässig und bietet ein vielfältiges Programm für Klein und Groß an. Die Hamburger Innenstadt lässt sich mit dem Auto oder komfortabel mit der U-Bahn von der Station U1 Buchenkamp oder mit der Regionalbahn von Ahrensburg aus erreichen. Das Zentrum vom nahegelegenen Ahrensburg ist in ca. 6 bis 8 Minuten mit dem Auto zu erreichen. Zum Flughafen Hamburg-Fuhlsbüttel fahren Sie ca. 20 bis 25 Minuten mit einem PKW.
Grundriss
Grundriss EG
>
>
Grundriss OG
>
>
Grundriss DG
>
>
Grundriss UG
>
>
Adresse
22359 Hamburg
Interessante Orte
Preis- und Lageinformationen
Preistrend für Bestandsimmobilien in Volksdorf