Willkommen in Hamburg-Rahlstedt! Dieses großzügige Ein- oder Zweifamilienhaus bietet rund 172 m² Wohnfläche und ein außergewöhnlich großes Grundstück von über 1.200 m² – ein echtes Paradies für Familien, Gartenfreunde und Naturliebhaber.
Grundstück: Es besteht die Möglichkeit eine angrenzende Obstwiese (633 m²) zusätzlich zu erwerben.
Das Haus aus dem Jahr 1971 wurde in konventioneller Massivbauweise erstellt, wurde voll unterkellert und bietet viel Raum für Ihre individuellen Modernisierungsideen.
Hier wohnen Sie ruhig, grün und doch stadtnah – mit Platz zum Durchatmen, Leben und Wachsen.
Das Haus ist modernisierungsbedürftig. Der Kaufpreis liegt ca. 40.000,- Euro unter dem Bodenrichtwert des Gutachterauschusses Hamburg.
Für diese Immobilie gilt der Bebauungsplan Rahlstedt 92. Die Erstellung eines weiteren Baukörpers auf dem Grundstück ist nicht zulässig. Ein entsprechender Vorbescheid wurde abgelehnt.
Familienidylle im Grünen – großes Ein- bis Zweifamilienhaus mit Traumgarten
22147 Hamburg
Die vollständige Adresse der Immobilie erhalten Sie vom Anbieter.
Auf Karte anzeigen
Die vollständige Adresse der Immobilie erhalten Sie vom Anbieter.
Finanzierungszertifikat
In nur zwei Minuten zu Ihrem persönlichen Finanzierungszertifkat.
Infos
| Haustyp | Einfamilienhaus |
|---|---|
| Etagenzahl | 2 |
| Wohnfläche ca. | 172 m2 |
| Grundstücksfläche | 1.227 m2 |
| Zimmer | 8 |
| Badezimmer | 2 |
| Anzahl Garage/Stellplatz | 1 |
Kosten
| Kaufpreis |
599.990 € |
|---|---|
| Provision |
3,57 %inkl. MwSt |
Finanzierungsrechner:
Kaufpreis:
600.000 €
Eigenkapital:
600.000 €
Monatliche Rate
0 €
Effektiver Jahreszins
0 %
Sollzinsbindung
10 Jahre
Bausubstanz & Energieausweis
| Baujahr | 1971 |
|---|---|
| Bauphase | Haus fertig gestellt |
| Objektzustand | Renovierungsbedürftig |
| Qualität der Austattung | Einfach |
| Heizungsart | Zentralheizung |
| Wesentliche Energieträger | Gas |
| Energieausweis | liegt vor |
| Energieausweistyp | Bedarfsausweis |
| Energieverbrauchskennwert | 223,0 kWh/(m²*a) |
| Energieeffizienzklasse | G |
223,0
kWh/(m²*a)
Energieeffizienzklasse G
- A+
- A
- B
- C
- D
- E
- F
- G
- H
- 0
- 25
- 50
- 75
- 100
- 125
- 150
- 175
- 200
- 225
- >250
Beschreibung des Objekts
Ausstattung
2 Bäder
Einbauküche
Terrasse und Balkon.
Gaszentralheizung (Baujahr 1989)
Vollkeller mit Außentreppe
Lage
Die Straße ist überwiegend von Wohnhäusern geprägt. Es ist eine eher ruhige Wohngegend, die besonders bei Familien beliebt ist. Grünflächen und kleinere Parks sind in der näheren Umgebung vorhanden und bieten Möglichkeiten zur Naherholung.
Entlang der angrenzenden Straßen finden sich diverse Geschäfte des täglichen Bedarfs, wie Supermärkte, Bäcker, Apotheken und kleinere Einzelhandelsgeschäfte. Auch Dienstleistungsbetriebe wie Ärzte, Friseure und Werkstätten sind hier ansässig. Für größere Einkäufe ist das Rahlstedt Center in wenigen Minuten mit dem Auto oder öffentlichen Verkehrsmitteln erreichbar.
Verkehrsanbindung: Die Anbindung an den öffentlichen Nahverkehr ist gut. Mehrere Buslinien verkehren vor der Haustür und ermöglichen eine schnelle Verbindung zu den umliegenden Stadtteilen und dem Rahlstedter Zentrum. Die U-Bahn-Haltestelle Oldenfelde (U1) ist in nur etwa 13 Gehminuten erreichbar und bietet eine direkte Verbindung in die Hamburger Innenstadt. Mit dem Auto ist die Innenstadt ebenfalls gut erreichbar, und die Bundesstraße B75 liegt in der Nähe, was eine gute Anbindung an das überregionale Straßennetz gewährleistet.
Umgebung: In der näheren Umgebung befinden sich Schulen, Kindergärten und diverse Freizeiteinrichtungen. Das Naturschutzgebiet Stellmoorer Tunneltal ist nicht weit entfernt und lädt zu Spaziergängen und Radtouren ein. Auch Sportvereine und andere kulturelle Angebote sind in Rahlstedt gut vertreten.
Zusammenfassend lässt sich sagen, dass die Lage in in Hamburg-Rahlstedt eine angenehme Wohnatmosphäre mit guter Infrastruktur und Verkehrsanbindung bietet. Die Nähe zu Grünflächen und die überwiegend ruhige Wohnbebauung machen sie besonders attraktiv für Menschen, die eine Balance zwischen urbanem Leben und naturnaher Umgebung suchen.
Sonstige Angaben
Benötigen Sie eine Finanzierung ?
Sprechen Sie uns bitte gerne an, denn wir verfügen über ausgezeichnete Kontakte zu Banken und Finanzierungsvermittlern. Profitieren auch Sie von unseren persönlichen Kontakten und Erfahrungen.
Beabsichtigen Sie Ihre Immobilie zu verkaufen ?
Gerne erstellt Ihnen unser „Diplom-Sachverständiger (DIA) für die Bewertung bebauter und unbebauter Grundstücke, für Mieten und Pachten“ eine kostenlose Marktwertermittlung für Ihre Immobilie unter Berücksichtigung der aktuellen Marktsituation. Gerne unterstützen wir Sie – auf Wunsch – auch bei Ihrem Verkauf.
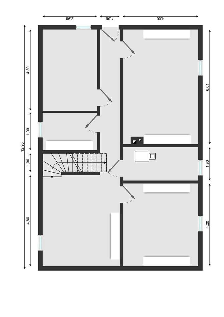
Grundriss
Kellergeschoss.jpg
>
>
Erdschoss.jpg
>
>
Dachgeschoss.jpg
>
>
Flurkarte.jpg
>
>
Gutschein für Wertermittlung
>
>
Adresse
22147 Hamburg
Interessante Orte
Preis- und Lageinformationen
Preistrend für Bestandsimmobilien in Rahlstedt