In der charmanten Altstadt von Usingen-Eschbach, fußläufig zu Grundschule, Kindergarten, Bäcker und Metzger befindet sich dieses nicht alltägliche Anwesen. Viele weitere Einkaufsmöglichkeiten und Infrastruktur finden sich in wenigen Autominuten in Usingen.
Die Lage besticht durch die nette Nachbarschaft, die funktionierende Gemeinschaft innerhalb des Ortes, in der Kinder noch behütet und in direkter Nähe zur Natur aufwachsen können und die gleichzeitige Nähe zur Rhein-Main-Metropole Frankfurt am Main, deren Zentrum innerhalb von 35 Minuten mit dem PKW erreichbar ist.
Das Haus, welches ursprünglich um 1900 und zwischen 1946-1953 um-/ausgebaut wurde, präsentiert sich heute in einem gepflegten und weitestgehend modernisierten Zustand.
Zwischen 2010 und 2015 sind umfangreiche Modernisierungs- und Renovierungsarbeiten erfolgt: so wurden die Heizung inkl. der Heizkörper, die Fenster, die Treppe ins Dachgeschoss, das Bad und die Küche und in diesem Zuge auch die Elektroleitungen und Wasserrohre erneuert, das Dach gedämmt sowie die Terrassen gefliest und der Hof neu gepflastert.
Das Haus mit ca. 166m² Wohnfläche verfügt über 2 Schlafzimmer, einen großen Wohn-Essbereich und ein großes Büro. Das Büro im Erdgeschoss ließe sich durch den Einbau einer Treppe mit dem Wohnbereich im Obergeschoss verbinden.
Ein besonderes Highlight sind die beiden Terrassen! Die größere von beiden erstreckt sich mit ca. 55m² über zwei Ebenen, ist komplett überdacht und lädt so in geschützter Atmosphäre zum Verweilen in Freien und geselligen Stunden ein.
Die Nutzungsmöglichkeiten sind vielseitig: Familienleben, Kapitalanlage oder ein Zuhause mit Home-Office. Der bereits vorhandene Glasfaseranschluss sorgt für schnelles Internet.
Eine Garage mit elektrischem Sektionaltor und ein weiterer Stellplatz im abgeschlossenen Hof runden das Angebot ab. Die Immobilie ist ab Dezember dieses Jahres verfügbar.
Verpassen Sie auch nicht die Chance auf eine Besichtigung und vereinbaren Sie am Besten direkt einen Termin mit uns, wir freuen uns auf Ihren Anruf!
Charmantes Zuhause im Herzen der Altstadt – mit ansprechender, großer Dachterrasse und Garage
61250 Usingen
Die vollständige Adresse der Immobilie erhalten Sie vom Anbieter.
Auf Karte anzeigen
Die vollständige Adresse der Immobilie erhalten Sie vom Anbieter.
Finanzierungszertifikat
In nur zwei Minuten zu Ihrem persönlichen Finanzierungszertifkat.
Infos
| Haustyp | Besondere Immobilie |
|---|---|
| Etagenzahl | 2 |
| Wohnfläche ca. | 166 m2 |
| Nutzfläche | 74 m2 |
| Grundstücksfläche | 160 m2 |
| Bezugsfrei ab | 1.12.2025 |
| Zimmer | 4 |
| Schlafzimmer | 3 |
| Badezimmer | 1 |
| Garage/Stellplatz | Außenstellplatz |
| Anzahl Garage/Stellplatz | 1 |
Kosten
| Kaufpreis |
299.000 € |
|---|---|
| Provision |
Käuferprovision beträgt 3,57 % (inkl. MwSt.) des beurkundeten Kaufpreises |
Finanzierungsrechner:
Kaufpreis:
600.000 €
Eigenkapital:
600.000 €
Monatliche Rate
0 €
Effektiver Jahreszins
0 %
Sollzinsbindung
10 Jahre
Bausubstanz & Energieausweis
| Baujahr | 1920 |
|---|---|
| Letzte Sanierung | 2015 |
| Bauphase | Haus fertig gestellt |
| Objektzustand | Gepflegt |
| Qualität der Austattung | Normal |
| Heizungsart | Zentralheizung |
| Wesentliche Energieträger | Öl |
| Energieausweis | liegt vor |
| Energieausweistyp | Verbrauchsausweis |
| Energieverbrauchskennwert | 145,9 kWh/(m²*a) |
| Energieeffizienzklasse | E |
145,9
kWh/(m²*a)
Energieeffizienzklasse E
- A+
- A
- B
- C
- D
- E
- F
- G
- H
- 0
- 25
- 50
- 75
- 100
- 125
- 150
- 175
- 200
- 225
- >250
Beschreibung des Objekts
Ausstattung
- 2-fach verglaste weiße Kunststofffenster
- Einbauküche
- Einbaugarderobenschrank mit Spiegelfronten
- Einbaustrahler im Wohnbereich
- Plissees and den Fenstern im Wohnbereich
- schöne Holztreppe ins Dachgeschoss
- 1 Bad und Gäste-WC
- große überdachte Dachterrasse
- großer Büroraum im Erdgeschoss (von außen zugänglich)
- Garage mit elektrischem Sektionaltor und ein weiterer Stellplatz im abgeschlossenen Hof
Lage
Usingen befindet sich inmitten der wunderschönen Natur des Hochtaunus. Die Region wird zu allen Jahreszeiten insbesondere von den Frankfurter Bürgern auf der Suche nach Erholung und Ruhe frequentiert. SIE haben hingegen die Möglichkeit, hier zu leben.
Usingen besteht aus den Stadtteilen Usingen (Zentrum), Eschbach, Kransberg, Merzhausen, Michelbach, Wernborn und Wilhelmsdorf und verfügt, wie auch die benachbarten Gemeinden Wehrheim und Neu-Anspach, über eine gute Infrastruktur.
Es gibt vielfältige Einkaufsmöglichkeiten, Ärzte, Apotheken sowie ein Krankenhaus. Der hochmoderne Neubau der Hochtaunus-Kliniken an der Weilburger Straße, sämtliche Schulformen und Kindergärten sind fußläufig erreichbar.
In Verbindung mit der Nähe zu Bad Homburg und Frankfurt am Main bieten sich hervorragende Freizeit- und Kulturmöglichkeiten. Für Sportler und Naturliebhaber ist Usingen ebenso das ideale Domizil wie für gestresste Manager, die am Wochenende die Ruhe genießen möchten.
Die Lage dieser Immobilie zeichnet sich insbesondere durch die direkte Nähe zur Natur und die gepflegte Nachbarschaft aus.
Usingen verfügt über eine Bahnverbindung (Taunusbahn) nach Friedrichsdorf (ca. 23 Min.), Bad Homburg (ca. 28 Minuten) und Frankfurt (ca. 47 Minuten). Die etwa 30km entfernte Frankfurter Innenstadt erreichen Sie über die A5 oder A661 in nur einer halben Stunde Fahrtzeit. In etwa 25 Fahrminuten erreicht man zudem Bad Camberg mit der Auffahrt zur A3.
Sonstige Angaben
GELDWÄSCHE: Als Immobilienmaklerunternehmen ist die von Poll Immobilien GmbH nach § 2 Abs. 1 Nr. 14 und § 11 Abs. 1, 2 Geldwäschegesetz (GwG) dazu verpflichtet, bei der Begründung einer Geschäftsbeziehung die Identität des Vertragspartners festzustellen und zu überprüfen, bzw. sobald ein ernsthaftes Interesse an der Durchführung des Immobilienkaufvertrages besteht. Hierzu ist es erforderlich, dass wir nach § 11 Abs. 4 GwG die relevanten Daten Ihres Personalausweises festhalten (wenn Sie als natürliche Person handeln) – beispielsweise mittels einer Kopie. Bei einer juristischen Person benötigen wir eine Kopie des Handelsregisterauszugs, aus welchem der wirtschaftlich Berechtigte hervorgeht. Das Geldwäschegesetz sieht vor, dass der Makler die Kopien bzw. Unterlagen fünf Jahre aufbewahren muss. Als unser Vertragspartner haben Sie auch eine Mitwirkungspflicht nach § 11 Abs. 6 GwG.
HAFTUNG: Wir weisen darauf hin, dass die von uns weitergegebenen Objektinformationen, Unterlagen, Pläne etc. vom Verkäufer bzw. Vermieter stammen. Eine Haftung für die Richtigkeit oder Vollständigkeit der Angaben übernehmen wir daher nicht. Es obliegt daher unseren Kunden, die darin enthaltenen Objektinformationen und Angaben auf ihre Richtigkeit hin zu überprüfen. Alle Immobilienangebote sind freibleibend und vorbehaltlich Irrtümer, Zwischenverkauf- und Vermietung oder sonstiger Zwischenverwertung.
UNSER SERVICE FÜR SIE ALS EIGENTÜMER:
Planen Sie den Verkauf oder die Vermietung Ihrer Immobilie, so ist es für Sie wichtig, deren Marktwert zu kennen. Lassen Sie kostenfrei und unverbindlich den aktuellen Wert Ihrer Immobilie professionell durch einen unserer Immobilienspezialisten einschätzen. Unser bundesweites und internationales Netzwerk ermöglicht es uns, Verkäufer bzw. Vermieter und Interessenten bestmöglich zusammenzuführen.
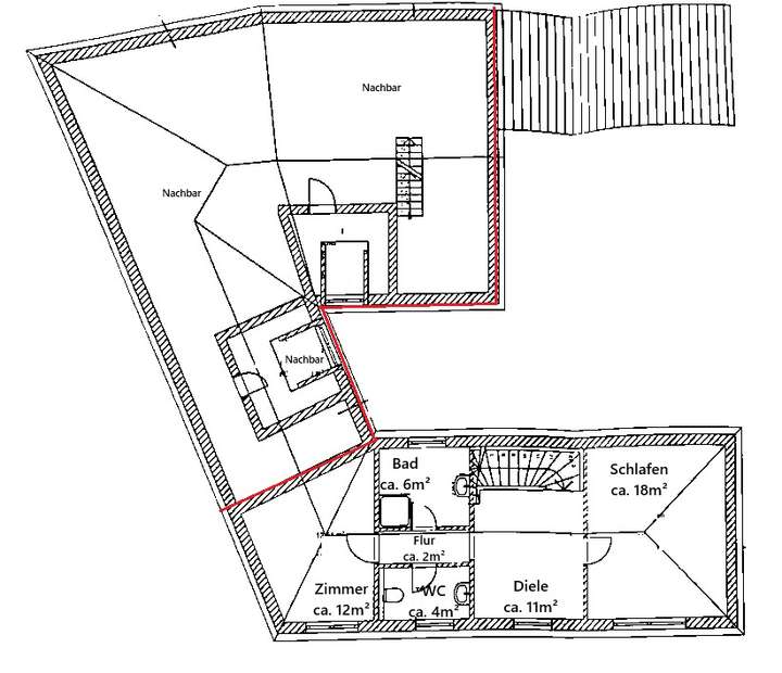
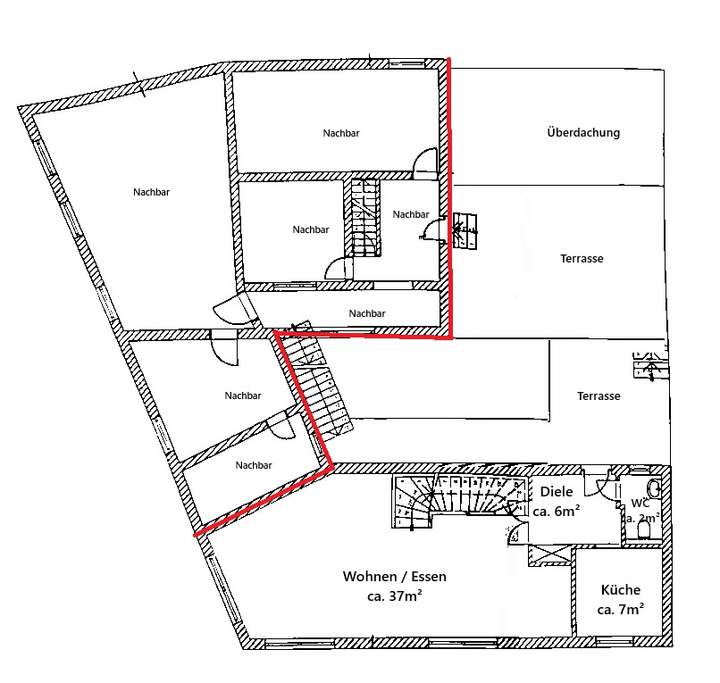
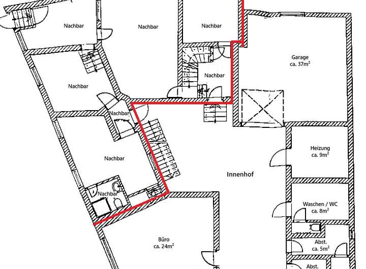
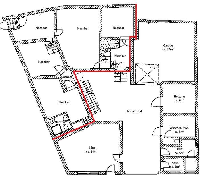
Grundriss
Erdgeschoss
>
>
Obergeschoss
>
>
Dachgeschoss
>
>
Untergeschoss
>
>
Adresse
61250 Usingen
Interessante Orte
Preis- und Lageinformationen
Preistrend für Bestandsimmobilien in Usingen