Entdecken Sie Ihr neues Zuhause in Kamp-Bornhofen: Ein großzügiges Mehrfamilienhaus, das nach Ihren Wünschen und Vorstellungen projektiert wird. Mit einer beeindruckenden Wohnfläche von 239,85 m² auf einem 678 m² großen Grundstück bietet dieses Haus ausreichend Platz für Familienleben und individuelle Entfaltung. Das durchdachte Konzept erstreckt sich über zwei Etagen und umfasst insgesamt 8 Zimmer, die flexibel genutzt werden können. Hier erleben Sie nicht nur modernes Wohnen, sondern auch die Freiheit, Ihr Zuhause ganz nach Ihren Vorstellungen zu gestalten. Arbeiten Sie zusammen mit uns an einem Raumkonzept, das Ihre persönlichen Wünsche berücksichtigt und Ihnen ein behagliches Zuhause bietet.
Ihr Traum vom Mehrfamilienhaus - Individuell geplant und perfekt umgesetzt!
56341 Kamp-Bornhofen
Die vollständige Adresse der Immobilie erhalten Sie vom Anbieter.
Auf Karte anzeigen
Die vollständige Adresse der Immobilie erhalten Sie vom Anbieter.
Finanzierungszertifikat
In nur zwei Minuten zu Ihrem persönlichen Finanzierungszertifkat.
Infos
| Haustyp | Mehrfamilienhaus |
|---|---|
| Etagenzahl | 2 |
| Wohnfläche ca. | 239 m2 |
| Grundstücksfläche | 678 m2 |
| Zimmer | 8 |
Kosten
| Kaufpreis |
493.899 € |
|---|
Finanzierungsrechner:
Kaufpreis:
600.000 €
Eigenkapital:
600.000 €
Monatliche Rate
0 €
Effektiver Jahreszins
0 %
Sollzinsbindung
10 Jahre
Bausubstanz & Energieausweis
| Baujahr | 2026 |
|---|---|
| Bauphase | Haus in Planung (projektiert) |
Beschreibung des Objekts
Ausstattung
Dieses Mehrfamilienhaus überzeugt durch seine hochwertigen baulichen und technischen Details. Es ist ausgestattet mit einer Energieeffizienzwand, einer Echtholztreppe, einer Luft-Wasser-Wärmepumpe und einer Fußbodenheizung, die für ein angenehmes Raumklima sorgt. Zudem garantiert die Be- und Entlüftungsanlage frische Luft und Wohlbefinden. Die 3-fach verglasten Fenster mit Aluminiumlamellen-Rollläden sorgen für optimalen Schallschutz und Energieeffizienz. Die lichte Raumhöhe von 2,75 m verleiht dem Haus eine helle und freundliche Atmosphäre. Zudem erhält Ihr neues Zuhause das TOXPROOF Gütesiegel, was schadstoffgeprüfte Materialien garantiert. Wir legen höchsten Wert auf Qualität und Nachhaltigkeit und bieten Ihnen zahlreiche Inklusivleistungen im Basispreis.
Lage
Das Mehrfamilienhaus befindet sich in einem ruhigen Wohngebiet in Kamp-Bornhofen, das sich ideal für Familien und Naturliebhaber eignet. Die Umgebung bietet eine gute Infrastruktur mit Schulen, Einkaufsmöglichkeiten und Ärzten in der Nähe. Genießen Sie die Vorzüge der Natur und erkunden Sie die Freizeitmöglichkeiten, die Ihnen die umliegende Landschaft bietet - ob Wandern, Radfahren oder einfach entspannen im Grünen.
Sonstige Angaben
allkauf heißt: Maximale Sicherheit, kurze Lieferzeiten, garantierte Fertigstellung. Wer sich den Traum von den eigenen vier Wänden erfüllen möchte, sieht oftmals vielen Unsicherheiten entgegen. Wir bieten: kurze Lieferzeiten, Liefergarantie, garantierte Sicherheit, Festpreisgarantie, Fertigstellungsgarantie. Zu allen Häusern gehört:
- Energieeffizienzwand
- Echtholztreppe
- Luft-Wasser-Wärmepumpe
- Fußbodenheizung
- Be- und Entlüftungsanlage
- 3-fach verglaste Fenster inklusive Rollläden mit Aluminiumlamellen
- Lichte Raumhöhe 2,75 m
- inkl. erhöhten Fenstern und Türen
- TOXPROOF Gütesiegel - schadstoffgeprüfter Materialien
- Just-in-Time-Lieferungen
- Bemustern im eigenen Bemusterungszentrum mit Markenprodukten
Ob Einfamilienhaus, Doppelhaus oder Bungalow - bei allkauf finden Sie Ihr Traumhaus! Vereinbaren Sie noch heute Ihren Termin zur Planung Ihres allkauf Traumhauses.
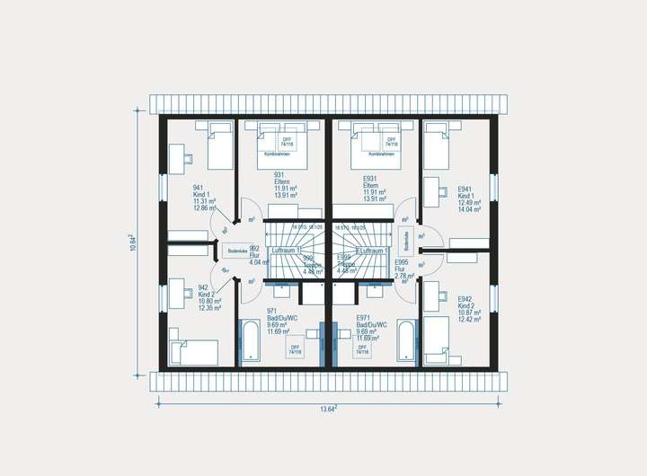
Grundriss
Grundriss
>
>
Grundriss
>
>
Adresse
56341 Kamp-Bornhofen
Interessante Orte
Preis- und Lageinformationen
Preistrend für Bestandsimmobilien in Kamp-Bornhofen