Entdecken Sie Ihr neues Zuhause im Herzen von Oberfischbach, wo ein vielseitiges Mehrfamilienhaus auf Sie wartet. Mit 8 Zimmern und einer großzügigen Wohnfläche von 239,85 m² bietet dieses projektiertes Haus nicht nur viel Platz für Familien, sondern auch die Möglichkeit, individuelle Wünsche und Vorstellungen bei der Gestaltung zu berücksichtigen. Das durchdachte Projekt-/Bau-Konzept ermöglicht es Ihnen, entweder den Innenausbau selbst in die Hand zu nehmen oder sich von unseren erfahrenen Profis unterstützen zu lassen. So wird Ihr neues Zuhause zu einem Ort, der Ihre Persönlichkeit widerspiegelt.
Ihr modernes Mehrfamilienhaus in Oberfischbach - Raum für Ihre Träume!
56370 Rettert
Die vollständige Adresse der Immobilie erhalten Sie vom Anbieter.
Auf Karte anzeigen
Die vollständige Adresse der Immobilie erhalten Sie vom Anbieter.
Finanzierungszertifikat
In nur zwei Minuten zu Ihrem persönlichen Finanzierungszertifkat.
Infos
| Haustyp | Mehrfamilienhaus |
|---|---|
| Etagenzahl | 2 |
| Wohnfläche ca. | 239 m2 |
| Grundstücksfläche | 579 m2 |
| Zimmer | 8 |
Kosten
| Kaufpreis |
474.912 € |
|---|
Finanzierungsrechner:
Kaufpreis:
600.000 €
Eigenkapital:
600.000 €
Monatliche Rate
0 €
Effektiver Jahreszins
0 %
Sollzinsbindung
10 Jahre
Bausubstanz & Energieausweis
| Baujahr | 2026 |
|---|---|
| Bauphase | Haus in Planung (projektiert) |
Beschreibung des Objekts
Ausstattung
Dieses Mehrfamilienhaus begeistert mit hochwertigen baulichen und technischen Details. Zu den Highlights zählen:
- Energieeffizienzwand für optimale Wärmeisolierung
- Echtholztreppe für ein stilvolles Ambiente
- Luft-Wasser-Wärmepumpe zur effizienten Beheizung
- Fußbodenheizung für ein angenehmes Raumklima
- Be- und Entlüftungsanlage für frische Luft
- 3-fach verglaste Fenster inklusive Rollläden mit Aluminiumlamellen
- Lichte Raumhöhe von 2,75 m sorgt für ein großzügiges Raumgefühl
- TOXPROOF Gütesiegel - schadstoffgeprüfte Materialien
Bei allkauf legen wir großen Wert auf Qualität und Nachhaltigkeit, damit Sie sich in Ihrem neuen Zuhause rundum wohlfühlen.
Lage
Das Mehrfamilienhaus befindet sich in einem ruhigen Wohngebiet in Oberfischbach, das durch eine hervorragende Infrastruktur besticht. Hier profitieren Sie von einer guten Anbindung an öffentliche Verkehrsmittel, Einkaufsmöglichkeiten sowie Schulen und Kindergärten in der Nähe. Für Ihre Freizeitgestaltung stehen Ihnen zahlreiche Parks und Grünflächen zur Verfügung, die zum Entspannen und Verweilen einladen.
Sonstige Angaben
allkauf heißt: Maximale Sicherheit, kurze Lieferzeiten, garantierte Fertigstellung. Bei uns sind Sie in besten Händen, denn wir bieten Ihnen die Möglichkeit, Ihr Traumhaus nach Ihren Wünschen zu gestalten. Zu allen Häusern gehört:
- Energieeffizienzwand
- Echtholztreppe
- Luft-Wasser-Wärmepumpe
- Fußbodenheizung
- Be- und Entlüftungsanlage
- 3-fach verglaste Fenster inklusive Rollläden mit Aluminiumlamellen
- Lichte Raumhöhe 2,75 m
- inkl. erhöhten Fenstern und Türen
- TOXPROOF Gütesiegel - schadstoffgeprüfter Materialien
- Just-in-Time-Lieferungen
- Bemustern im eigenen Bemusterungszentrum mit Markenprodukten
Vereinbaren Sie noch heute Ihren Termin zur Planung Ihres allkauf Traumhauses!
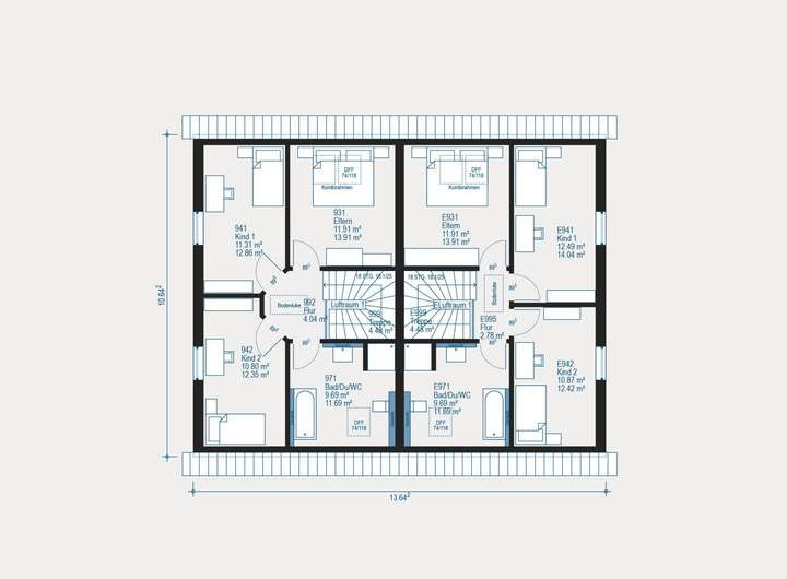
Grundriss
Grundriss
>
>
Grundriss
>
>
Adresse
56370 Rettert
Interessante Orte
Preis- und Lageinformationen
Preistrend für Bestandsimmobilien in Rettert