Willkommen in Ihrem neuen Mehrfamilienhaus in Holzappel, wo Ihre Wünsche und Vorstellungen im Mittelpunkt stehen! Auf einem großzügigen Grundstück von 654 m² bieten wir Ihnen eine moderne, projektiert gestaltete Wohnfläche von 239.85 m², die auf zwei Etagen verteilt ist. Dieses Haus, mit insgesamt 8 Zimmern, bietet ausreichend Platz für Familien und ist der perfekte Ort, um Ihre Träume zu verwirklichen. Ob für die eigene Familie oder als Investition - hier finden Sie ein Zuhause, das behaglich und einladend ist.
Ihr individuelles Mehrfamilienhaus in Holzappel - Ein Zuhause für die ganze Familie!
56379 Holzappel
Die vollständige Adresse der Immobilie erhalten Sie vom Anbieter.
Auf Karte anzeigen
Die vollständige Adresse der Immobilie erhalten Sie vom Anbieter.
Finanzierungszertifikat
In nur zwei Minuten zu Ihrem persönlichen Finanzierungszertifkat.
Infos
| Haustyp | Mehrfamilienhaus |
|---|---|
| Etagenzahl | 2 |
| Wohnfläche ca. | 239 m2 |
| Grundstücksfläche | 654 m2 |
| Zimmer | 8 |
Kosten
| Kaufpreis |
508.077 € |
|---|
Finanzierungsrechner:
Kaufpreis:
600.000 €
Eigenkapital:
600.000 €
Monatliche Rate
0 €
Effektiver Jahreszins
0 %
Sollzinsbindung
10 Jahre
Bausubstanz & Energieausweis
| Baujahr | 2026 |
|---|---|
| Bauphase | Haus in Planung (projektiert) |
Beschreibung des Objekts
Ausstattung
Das Mehrfamilienhaus überzeugt durch hochwertige bauliche und technische Details, die Ihnen höchsten Komfort bieten. Dazu gehören unter anderem:
- Energieeffizienzwand für optimale Dämmung
- Echtholztreppe für stilvolles Wohnen
- Luft-Wasser-Wärmepumpe zur Energieeinsparung
- Fußbodenheizung für ein angenehmes Raumklima
- Be- und Entlüftungsanlage für frische Luft
- 3-fach verglaste Fenster inklusive Rollläden mit Aluminiumlamellen
- Lichte Raumhöhe von 2,75 m für ein großzügiges Raumgefühl
- Schadstoffgeprüfte Materialien mit dem TOXPROOF Gütesiegel
Profitieren Sie von der hohen Bauqualität und dem durchdachten Design!
Lage
Das Mehrfamilienhaus befindet sich in einer ruhigen und familienfreundlichen Wohngegend in Holzappel. Hier genießen Sie die Vorzüge eines idyllischen Umfeldes mit einer hervorragenden Infrastruktur. Einkaufsmöglichkeiten, Schulen und Freizeitangebote sind in unmittelbarer Nähe. Zudem gibt es zahlreiche Möglichkeiten für sportliche Aktivitäten und entspannende Spaziergänge in der Natur.
Sonstige Angaben
allkauf heißt: Maximale Sicherheit, kurze Lieferzeiten, garantierte Fertigstellung. Wir bieten Ihnen kurze Lieferzeiten, Liefergarantie, garantierte Sicherheit, Festpreisgarantie und Fertigstellungsgarantie.
Zu allen Häusern gehört:
- Energieeffizienzwand
- Echtholztreppe
- Luft-Wasser-Wärmepumpe
- Fußbodenheizung
- Be- und Entlüftungsanlage
- 3-fach verglaste Fenster inklusive Rollläden mit Aluminiumlamellen
- Lichte Raumhöhe 2,75 m
- inkl. erhöhten Fenstern und Türen
- TOXPROOF Gütesiegel - schadstoffgeprüfter Materialien
- Just-in-Time-Lieferungen
- Bemustern im eigenen Bemusterungszentrum mit Markenprodukten
Vereinbaren Sie noch heute Ihren Termin zur Planung Ihres allkauf Traumhauses!
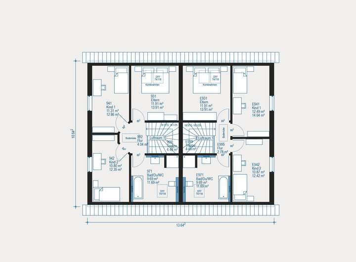
Grundriss
Grundriss
>
>
Grundriss
>
>
Adresse
56379 Holzappel
Interessante Orte
Preis- und Lageinformationen
Preistrend für Bestandsimmobilien in Holzappel