Willkommen in Ihrem neuen Mehrfamilienhaus, das speziell nach Ihren Vorstellungen und Wünschen projektiert wird. Mit großzügigen 8 Zimmern und einer beeindruckenden Wohnfläche von 239,85 m² auf einem 590 m² großen Grundstück, bietet dieses zweigeschossige Haus ausreichend Platz für Familien oder als Investmentobjekt. Lassen Sie Ihrer Kreativität freien Lauf und gestalten Sie Ihr neues Zuhause nach Ihren individuellen Vorstellungen.
Das Bau-Konzept von allkauf ist darauf ausgelegt, Ihnen die Möglichkeit zu geben, aktiv am Innenausbau mitzuwirken oder auf die Unterstützung unserer Fachleute zurückzugreifen. Egal, ob Sie sich für das Dienstleistungspaket "VIELBESCHÄFTIGTE", "AMBITIONIERTE" oder "HEIMWERKER" entscheiden, wir stehen Ihnen jederzeit zur Seite.
Ihr individueller Wohntraum in Balduinstein: Mehrfamilienhaus nach Ihren Wünschen
65558 Burgschwalbach
Die vollständige Adresse der Immobilie erhalten Sie vom Anbieter.
Auf Karte anzeigen
Die vollständige Adresse der Immobilie erhalten Sie vom Anbieter.
Finanzierungszertifikat
In nur zwei Minuten zu Ihrem persönlichen Finanzierungszertifkat.
Infos
| Haustyp | Mehrfamilienhaus |
|---|---|
| Etagenzahl | 2 |
| Wohnfläche ca. | 239 m2 |
| Grundstücksfläche | 590 m2 |
| Zimmer | 8 |
Kosten
| Kaufpreis |
479.959 € |
|---|
Finanzierungsrechner:
Kaufpreis:
600.000 €
Eigenkapital:
600.000 €
Monatliche Rate
0 €
Effektiver Jahreszins
0 %
Sollzinsbindung
10 Jahre
Bausubstanz & Energieausweis
| Baujahr | 2026 |
|---|---|
| Bauphase | Haus in Planung (projektiert) |
Beschreibung des Objekts
Ausstattung
Das Mehrfamilienhaus überzeugt durch hochwertige Bautechnik und Ausstattung.
- Energieeffizienzwand
- Echtholztreppe
- Luft-Wasser-Wärmepumpe
- Fußbodenheizung
- Be- und Entlüftungsanlage
- 3-fach verglaste Fenster inklusive Rollläden mit Aluminiumlamellen
- Lichtdurchflutete Räume mit einer Raumhöhe von 2,75 m
- Schadstoffgeprüfte Materialien (TOXPROOF Gütesiegel)
- Bemusterungsmöglichkeiten im eigenen Bemusterungszentrum mit Markenprodukten
Genießen Sie höchste Qualität und nachhaltige Bauweise in Ihrem neuen Zuhause.
Lage
Das Mehrfamilienhaus befindet sich in dem ruhigen Wohngebiet von Balduinstein. Die Lage bietet eine hervorragende Infrastruktur mit Einkaufsmöglichkeiten, Schulen und Ärzten in unmittelbarer Nähe. Zudem haben Sie Zugang zu vielfältigen Freizeitmöglichkeiten in der Umgebung, die zur Erholung und Entspannung einladen.
Sonstige Angaben
allkauf heißt: Maximale Sicherheit, kurze Lieferzeiten, garantierte Fertigstellung.
Zu allen Häusern gehört:
- Energieeffizienzwand
- Echtholztreppe
- Luft-Wasser-Wärmepumpe
- Fußbodenheizung
- Be- und Entlüftungsanlage
- 3-fach verglaste Fenster inklusive Rollläden mit Aluminiumlamellen
- Lichte Raumhöhe 2,75 m
- inkl. erhöhten Fenstern und Türen
- TOXPROOF Gütesiegel - schadstoffgeprüfter Materialien
- Just-in-Time-Lieferungen
- Bemustern im eigenen Bemusterungszentrum mit Markenprodukten
Vereinbaren Sie noch heute Ihren Termin zur Planung Ihres allkauf Traumhauses.
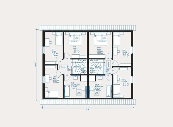
Grundriss
Grundriss
>
>
Grundriss
>
>
Adresse
65558 Burgschwalbach
Interessante Orte
Preis- und Lageinformationen
Preistrend für Bestandsimmobilien in Burgschwalbach