Dieses großzügige Mehrfamilienhaus in Gückingen wird ganz nach Ihren Vorstellungen realisiert. Mit insgesamt 8 Zimmern und einer beeindruckenden Wohnfläche von 239,85 m² auf einem großzügigen Grundstück von 666 m², bietet es Ihnen und Ihrer Familie viel Platz für individuelle Entfaltung. Das Projekt wird in zwei Etagen ausgeführt, wobei jede Etage optimal genutzt wird und eine harmonische Raumaufteilung ermöglicht. Ihre Wünsche stehen im Mittelpunkt - wir von allkauf realisieren Ihr Traumhaus genau nach Ihren Vorstellungen.
Ihr Traum vom Mehrfamilienhaus in Gückingen - individuell gestaltet und nachhaltig gebaut!
65558 Gückingen
Die vollständige Adresse der Immobilie erhalten Sie vom Anbieter.
Auf Karte anzeigen
Die vollständige Adresse der Immobilie erhalten Sie vom Anbieter.
Finanzierungszertifikat
In nur zwei Minuten zu Ihrem persönlichen Finanzierungszertifkat.
Infos
| Haustyp | Mehrfamilienhaus |
|---|---|
| Etagenzahl | 2 |
| Wohnfläche ca. | 239 m2 |
| Grundstücksfläche | 666 m2 |
| Zimmer | 8 |
Kosten
| Kaufpreis |
508.809 € |
|---|
Finanzierungsrechner:
Kaufpreis:
600.000 €
Eigenkapital:
600.000 €
Monatliche Rate
0 €
Effektiver Jahreszins
0 %
Sollzinsbindung
10 Jahre
Bausubstanz & Energieausweis
| Baujahr | 2026 |
|---|---|
| Bauphase | Haus in Planung (projektiert) |
Beschreibung des Objekts
Ausstattung
Das Mehrfamilienhaus überzeugt durch hochwertige bauliche und technische Details. Die Energieeffizienzwand sorgt für eine optimale Dämmung, während die Fußbodenheizung und die Luft-Wasser-Wärmepumpe für ein angenehmes Raumklima sorgen. 3-fach verglaste Fenster inklusive Rollläden mit Aluminiumlamellen garantieren besten Schallschutz und Energieeffizienz. Zudem erhalten Sie eine Echtholztreppe, eine Be- und Entlüftungsanlage sowie eine lichte Raumhöhe von 2,75 m, die für ein großzügiges Raumgefühl sorgt. Alle Materialien sind schadstoffgeprüft und tragen das TOXPROOF Gütesiegel, was Ihnen höchste Qualität garantiert.
Lage
Das Mehrfamilienhaus befindet sich in einem ruhigen und familienfreundlichen Wohngebiet in Gückingen. Hier profitieren Sie von einer ausgezeichneten Infrastruktur mit Schulen, Einkaufsmöglichkeiten und öffentlichen Verkehrsanbindungen in unmittelbarer Nähe. Freizeitmöglichkeiten wie Parks und Sporteinrichtungen sind ebenfalls gut erreichbar und tragen zur hohen Lebensqualität bei.
Sonstige Angaben
allkauf bedeutet für Sie maximale Sicherheit und kurze Lieferzeiten. Wir garantieren die Fertigstellung Ihres Hauses zu einem festen Preis, sodass Sie sich entspannt auf Ihr neues Zuhause freuen können. Zu allen Häusern gehört:
- Energieeffizienzwand
- Echtholztreppe
- Luft-Wasser-Wärmepumpe
- Fußbodenheizung
- Be- und Entlüftungsanlage
- 3-fach verglaste Fenster inklusive Rollläden mit Aluminiumlamellen
- Lichte Raumhöhe 2,75 m
+ inkl. erhöhten Fenstern und Türen
- TOXPROOF Gütesiegel - schadstoffgeprüfter Materialien
- Just-in-Time-Lieferungen
- Bemustern im eigenen Bemusterungszentrum mit Markenprodukten
Mit unseren drei Dienstleistungspaketen für VIELBESCHÄFTIGTE, AMBITIONIERTE und HEIMWERKER haben Sie die Möglichkeit, den Innenausbau nach Ihren Wünschen zu gestalten oder die Unterstützung unserer Profis in Anspruch zu nehmen. Lassen Sie sich von unseren kompetenten Verkaufsberatern persönlich beraten!
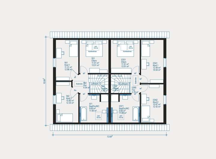
Grundriss
Grundriss
>
>
Grundriss
>
>
Adresse
65558 Gückingen
Interessante Orte
Preis- und Lageinformationen
Preistrend für Bestandsimmobilien in Gückingen