Das FAMILIENHAUS:
Gemütlich wohnen in Hamburg.
Das klassische Familienhaus ist immer noch der beliebtestes Haustyp beim Neubau.
Das Haus verleiht seinen Bauherren einen
besonderen Charakter und sorgt gleichzeitig für ein warmes Baugefühl bei unseren Bauherren. Unser
Familienhaus ist sowohl in der Putzvariante als auch in der Verblendvariante ein echtes Schmuckstück.
Sie können es wahlweise mit Satteldach oder Krüppelwalmdach planen.
FAMILIENHAUS 140-2/Verblendvariante
(verklinkert) als freistehendes Einfamilienhaus in gehobener
Ausstattung als KfW-Effizinenzhaus 40.
Perfekt für die ganze Familie. Gebaut in norddeutscher Art und
Tradition Massiv Stein auf Stein. Hier erwarten Sie ca. 118,48m²
Wohnfläche auf 2 Etagen mit folgender Aufteilung:
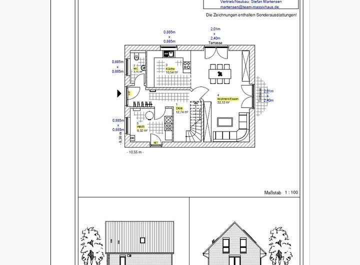
Im EG:
-- Großes Wohn/Esszimmer
-- Küche (wahlweise offen
oder geschlossen)
-- HWR/TECHNIKRAUM,
-- Gäste-WC und
-- Flur/Diele
Im DG:
-- 3Schlafräume
-- Vollbad
-- Flur
Wohntraum du kannst loslegen und Sie sind dabei!
NEU...BEZAHLBAR...WUNDERBAR! Team-Massivhaus baut IHR Familienhaus NEU in bester Ausstattung!
22417 Hamburg
Die vollständige Adresse der Immobilie erhalten Sie vom Anbieter.
Auf Karte anzeigen
Die vollständige Adresse der Immobilie erhalten Sie vom Anbieter.
Finanzierungszertifikat
In nur zwei Minuten zu Ihrem persönlichen Finanzierungszertifkat.
Infos
| Haustyp | Einfamilienhaus |
|---|---|
| Etagenzahl | 2 |
| Wohnfläche ca. | 118 m2 |
| Nutzfläche | 134,4 m2 |
| Grundstücksfläche | 425 m2 |
| Zimmer | 4 |
| Schlafzimmer | 3 |
| Badezimmer | 1 |
Kosten
| Kaufpreis |
600.300 € |
|---|---|
| Provision |
8.925 3,57% Maklercourtage allein auf den Kaufpreis Baugrundstück und NICHT uaf den Neubau selbst! |
Finanzierungsrechner:
Kaufpreis:
600.000 €
Eigenkapital:
600.000 €
Monatliche Rate
0 €
Effektiver Jahreszins
0 %
Sollzinsbindung
10 Jahre
Bausubstanz & Energieausweis
| Baujahr | 2026 |
|---|---|
| Bauphase | Haus in Planung (projektiert) |
| Objektzustand | Nach Vereinbarung |
| Qualität der Austattung | Gehoben |
| Heizungsart | Wärmepumpe |
| Wesentliche Energieträger | expose.parameter.energySourcesEnev2014.HEAT_SUPPLY |
Beschreibung des Objekts
Ausstattung
Unser FAMILIENHAUS 140-2 als KfW-Effizienzhaus 40 (förderfähig)!
INKLUSIVE folgender Ausstattung:
-- Luft-Wasser Wärmepumpe BOSCH
-- Fußbodenheizung im EG + OG
mit Einzelraumsteuerung
-- Erhöhter Dämmumg
-- Zentrale Wohnraumbelüftungsanlage
mit kontrollierter Wärmerückgewinnung
Marke: WOLF
-- Giebelzierbänder an beiden
Giebelseiten mit jeweils
3 Schichten und 2 x 8,0m
-- Elektrisch bedienbaren
Rollläden im gesamten Haus
-- Individuelle Fensterausstattung
für besonders viel Licht- und
Raumgefühl
Bei TEAM-Massivhaus sind wir in den malerischen Landschaften
Schleswig-Holsteins sowie im urbanen Raum Hamburgs aktiv, um individuelle
Wohnträume zu erfüllen.
Diese beiden Regionen bieten eine einzigartige Mischung aus natürlicher Schönheit und städtischem Leben, was sie zu idealen Standorten für Dein
zukünftiges Zuhause macht. Ob Du die Ruhe und die Nähe zur Natur in Schleswig-
Holstein bevorzugst oder das lebendige, kulturelle Angebot Hamburgs schätzt.
TEAM-Massivhaus steht bereit
dein Bauvorhaben mit höchster Qualität und persönlicher Beratung zu realisieren.
TEAM-Massivhaus...Kompetenz und Leidenschaft im Bauwesen!!!
Als Marktführer und als TEAM stehen wir für Innovationen und sorgen dafür, das
Kundenwünsche nicht nur erfüllt, sondern übertroffen werden.
Die Leidenschaft für das Bauhandwerk und das Streben nach Perfektion prägen
die Philosophie von TEAM-Massivhaus und garantieren die Realisierung von
Wohnträumen auf höchstem Niveau.
Ein sehr schickes Eigenheim in gehobener Ausstattung.
Lage
Wir beziehen uns hier auf den vorderen Grundstücksanteil mit ca. 425 m² Größe eines insgesamt ca. 1.100 m² großen Grundstücks im Hamburger Stadtteil Langenhorn.
Hamburg-Langenhorn liegt im nördlichen Stadtgebiet der Freien und Hansestadt Hamburg, im Bezirk Hamburg-Nord. Der Stadtteil zählt zu den bevorzugten Wohnlagen für Familien, Berufspendler und Ruhesuchende gleichermaßen.
Sonstige Angaben
Überzeugende Vorteile:
1. Individuelle Planung
Jedes Bauvorhaben beginnt mit einer Vision. Unsere Experten setzen sich mit Dir zusammen, um Deine Träume und Wünsche in maßgeschneiderte Baupläne zu übersetzen. Dein Zuhause soll so einzigartig sein wie Du selbst.
2. Massivbauweise Stein auf Stein
Wir bauen auf Langlebigkeit und Qualität Unsere Massivbauweise garantiert Stabilität, hervorragende Dämmwerte
und eine nachhaltige Bauweise, die Dein
Zuhause für die Zukunft rüstet.
3. Schlüsselfertige Häuser on der
ersten Skizze bis zum Einzug kümmern wir uns
darum. Unsere schlüsselfertigen Lösungen bieten Dir ein sorgenfreies Bauvorhaben, bei dem Du entspannt dem Tag
der Schlüsselübergabe entgegensehen kannst.
4. Alles aus einer Hand
Vergiss die Koordination zahlreicher Dienstleister. Bei uns erhältst Du alle Leistungen aus einer Hand, was den Bauprozess nicht nur effizienter, sondern auch transparenter macht.
5. Festpreisgarantie 15 MONATE!!!!
Überraschungen bei den Kosten? Nicht mit uns.
Unsere Festpreisgarantie gibt Dir finanzielle Sicherheit und Planbarkeit von Beginn an.
6. Fertigstellungsgarantie
Wir stehen zu unserem Wort. Die termingerechte Fertigstellung
ist garantiert!
Weitere Dokumente
Hausbaukatalog TEAM-MassivhausAllgemeine Baubeschreibung_TEA
STANDARD-Haustürenkatalog_TEAM
Visitenkarte Stefan Martensen
Grundriss
Entwurfsplanung Grundriss EG_F
>
>
Entwurfsplanung Grundriss DG_F
>
>
Grundrissbeispiel EG+OG_EFH 14
>
>
Adresse
22417 Hamburg
Interessante Orte
Preis- und Lageinformationen
Preistrend für Bestandsimmobilien in Langenhorn