Dieses liebevoll gestaltete Einfamilienhaus vereint modernes Wohnen mit einem durchdachten Raumkonzept und schafft damit den idealen Ort für Geborgenheit und Lebensfreude. Schon beim Betreten spürt man, wie harmonisch sich die Räume aneinanderfügen und wie viel Wert hier auf ein wohnliches Ambiente gelegt wurde.
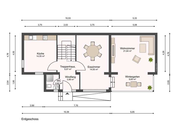
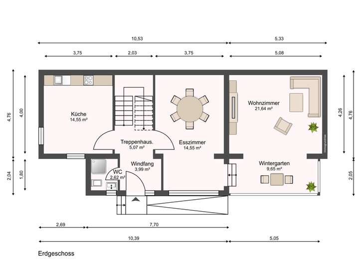
Das Erdgeschoss empfängt Sie mit einem einladenden Eingangsbereich und führt weiter in die stilvolle Einbauküche, die keine Wünsche offen lässt. Der gegenüberliegende Essbereich bietet Platz für gemeinsame Mahlzeiten und gesellige Stunden, während das helle, großzügige Wohnzimmer durch seine Offenheit und den direkten Zugang zum Außenbereich überzeugt. Hier ist Wohlfühlen vorprogrammiert – die vielen Fenster des Wintergartens sorgen für Licht, Leichtigkeit und eine freundliche Atmosphäre. Abgerundet wird das Raumangebot durch ein separates Gäste-WC, das zusätzlichen Komfort für Familien und Besucher schafft.
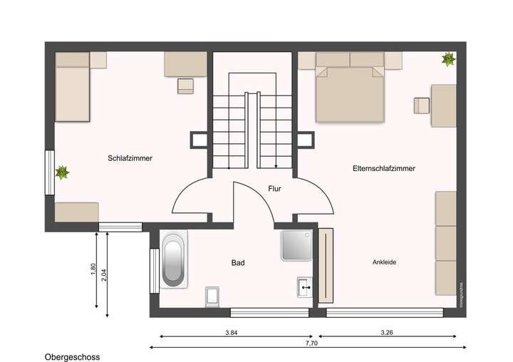
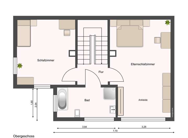
Im Obergeschoss befindet sich der harmonisch geschnittene Familienbereich mit einem gemütlichen Elternschlafzimmer, sowie einem weiteren Zimmer das sich ideal als Studio oder Arbeitsbereich eignet. Das ansprechend gestaltete Badezimmer fügt sich nahtlos in das Gesamtkonzept ein.
Das Dachgeschoss eröffnet zusätzliche Möglichkeiten für individuelles Wohnen: Hier steht ein weiterer Raum zur Verfügung, der sich wunderbar als Kinderzimmer, Gästezimmer oder Hobbyzimmer nutzen lässt. Und sollte der Platz einmal knapp werden: das Dachgeschoss verfügt noch über eine weitere Ausbaureserve. Damit bietet das Haus viel Platz, um sich den eigenen Bedürfnissen und Lebensphasen individuell anzupassen.
Zusätzlich verfügt das Anwesen noch über einen angrenzenden Schuppen, welcher weiteren Platz bietet.
Der Außenbereich fügt sich harmonisch in das Gesamtkonzept ein: Der Garten lädt zum Entspannen, Spielen oder geselligem Beisammensein ein und bietet ausreichend Raum für persönliche Gestaltungsideen.
Dieses Wohnhaus ist mehr als nur eine Ort zum Wohnen – es ist ein Ort zum Ankommen, Wohlfühlen und Wachsen.
***Ein ruhiger Platz für die ganze Familie***
56357 Nochern
Die vollständige Adresse der Immobilie erhalten Sie vom Anbieter.
Auf Karte anzeigen
Die vollständige Adresse der Immobilie erhalten Sie vom Anbieter.
Finanzierungszertifikat
In nur zwei Minuten zu Ihrem persönlichen Finanzierungszertifkat.
Infos
| Haustyp | Einfamilienhaus |
|---|---|
| Wohnfläche ca. | 158 m2 |
| Grundstücksfläche | 586 m2 |
| Zimmer | 5 |
| Badezimmer | 1 |
Kosten
| Kaufpreis |
220.000 € |
|---|---|
| Provision |
3,57% inkl. MwSt. Käuferprovision |
Finanzierungsrechner:
Kaufpreis:
600.000 €
Eigenkapital:
600.000 €
Monatliche Rate
0 €
Effektiver Jahreszins
0 %
Sollzinsbindung
10 Jahre
Bausubstanz & Energieausweis
| Baujahr | 1908 |
|---|---|
| Heizungsart | Zentralheizung |
| Wesentliche Energieträger | Gas |
| Energieausweis | liegt vor |
| Energieausweistyp | Bedarfsausweis |
| Energieverbrauchskennwert | 263,8 kWh/(m²*a) |
| Energieeffizienzklasse | H |
263,8
kWh/(m²*a)
Energieeffizienzklasse H
- A+
- A
- B
- C
- D
- E
- F
- G
- H
- 0
- 25
- 50
- 75
- 100
- 125
- 150
- 175
- 200
- 225
- >250
Beschreibung des Objekts
Ausstattung
-Kunststofffenster 3-fach verglast
-Moderner Vinylboden
-Heizung. Gasheizung aus 2013, Firma Weißhaupt
- Schuppen
Lage
Das Wohnhaus befindet sich in Ortsrandlage der ländlichen Weinbau-Gemeinde Nochern, auf der Höhe und im Herzen des „UNESCO Welterbe Oberes Mittelrheintal“.
Nochern hat knapp 500 Einwohner und legt großen Wert auf die Gemeinschaft und das Miteinander. Einen Gasthof gibt es im Ort.
In nur wenigen Minuten ist man mit dem PKW auf der B42 Richtung Koblenz unterwegs oder am Bahnhof.
Kindergarten und Grundschule befinden sich in den umliegenden Nachbargemeinden. Weiterführende Schule befinden sich in St. Goarshausen (ca. 4 km), Nastätten (13 km) oder Lahnstein (26 km).
Kleine Einkaufs- und Dienstleitungsmöglichkeiten gibt es im 4 km entfernten St. Goarshausen, mehr davon im Mittelzentrum Nastätten, mit dem PKW schnell erreichbar.
Sonstige Angaben
Gefällt Ihnen unser Angebot? Dann zögern Sie nicht und melden sich bei uns.
Wir zeigen Ihnen das Anwesen in einem gemeinsamen Termin vor Ort und begleiten Sie bei den folgenden Schritten zum Kauf Ihres eigenen Zuhauses.
Sie haben Fragen zur Finanzierung oder suchen einen Finanzierungspartner? Auch hier stehen wir Ihnen gerne zur Seite.
Oder haben Sie gleichzeitig eine Immobilie zum Verkauf? Wir kümmern uns darum!
Wir haben dieses Exposé mit Sorgfalt und nach bestem Wissen erstellt. Das Angebot erfolgt freibleibend, alle Angaben beruhen auf uns erteilten Informationen von Dritten.
Zwischenverkauf und Irrtum bleiben vorbehalten.
Wir weisen darauf hin, dass vorhandene Grundrisse nicht maßstabsgetreu sind, Maße, Angaben und Details abweichen können. Für die Richtigkeit, Vollständigkeit und Aktualität der Angaben können wir keine Gewähr übernehmen, auch nicht für mögliche Folgenutzungen der Immobilie.
Die Funktionsfähigkeit der technischen Anlagen haben wir bestmöglich erfragt, können jedoch im Einzelfall hierfür keine Gewähr übernehmen.
Selbstverständlich erhalten Sie bei näherem Interesse die Möglichkeit, das Haus durch Experten Ihrer Wahl ausführlich prüfen und begutachten zu lassen. Für die Klärung Ihrer offenen Fragen stehen wir Ihnen gerne zur Verfügung.
Doch nicht die richtige Immobilie? Dann schauen Sie sich unser weiteres Angebot an: www.zimmermann-immobilien.eu
Grundriss
45105_747244_1971012_98-1156_S
>
>
45105_754636_1986984_98-1156_S
>
>
45105_747244_1971014_98-1156_S
>
>
Adresse
56357 Nochern
Interessante Orte
Preis- und Lageinformationen
Preistrend für Bestandsimmobilien in Nochern