Die DOPPELHAUSHÄLFTE:
Gemütlich wohnen in Hamburg.
Die klassische Doppelhaushälfte ist immer noch einer der beliebtesten Haustypen beim Neubau.
Die Doppelhaushälfte verleiht seinen Bauherren einen
besonderen Charakter und sorgt gleichzeitig für ein warmes Baugefühl bei unseren Bauherren. Unser
Familienhaus ist sowohl in der Putzvariante als auch in der Verblendvariante ein echtes Schmuckstück.
Sie können es wahlweise mit Satteldach oder Krüppelwalmdach planen.
DOPPELHAUSHÄLFTE 120/Verblendvariante
(verklinkert) in gehobener
Ausstattung als KfW-Effizinenzhaus 40.
Perfekt für die ganze Familie. Gebaut in norddeutscher Art und
Tradition Massiv Stein auf Stein. Hier erwarten Sie ca. 105m²
Wohnfläche auf 2 Etagen mit folgender Aufteilung:
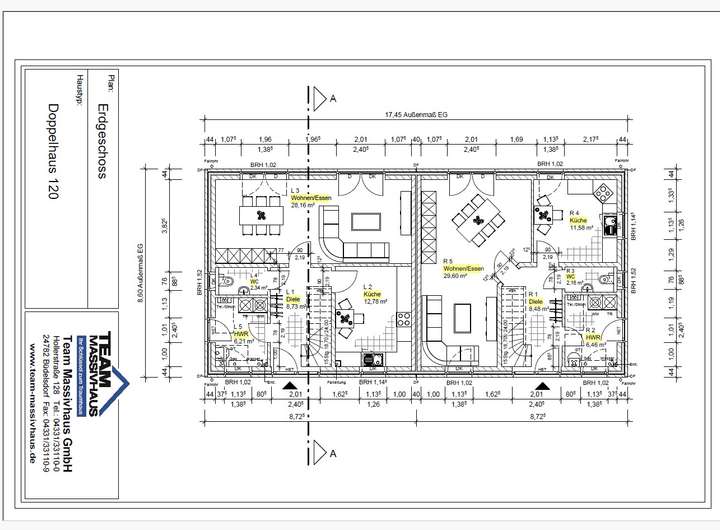
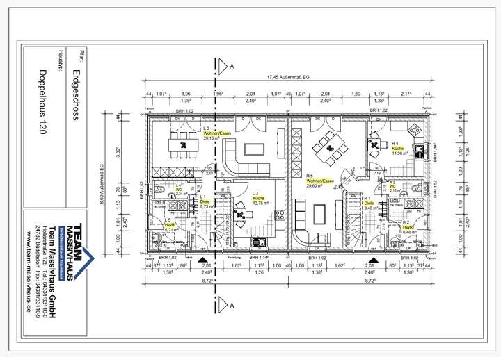
Im EG:
-- Großes Wohn/Esszimmer
-- Küche (wahlweise offen
oder geschlossen)
-- HWR/TECHNIKRAUM,
-- Gäste-WC und
-- Flur/Diele
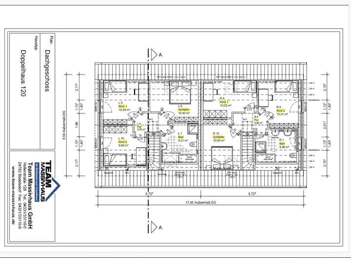
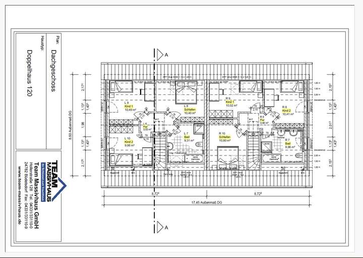
Im DG:
-- 3Schlafräume
-- Vollbad
-- Flur
Wohntraum du kannst loslegen und Sie sind dabei!
TEAM-Massivhaus & Rahlstedt! Zwei die zueinander passen. DHH Neubau als KfW-40
22149 Hamburg
Die vollständige Adresse der Immobilie erhalten Sie vom Anbieter.
Auf Karte anzeigen
Die vollständige Adresse der Immobilie erhalten Sie vom Anbieter.
Finanzierungszertifikat
In nur zwei Minuten zu Ihrem persönlichen Finanzierungszertifkat.
Infos
| Haustyp | Doppelhaushaelfte |
|---|---|
| Etagenzahl | 2 |
| Wohnfläche ca. | 103 m2 |
| Nutzfläche | 116,41 m2 |
| Grundstücksfläche | 422 m2 |
| Zimmer | 4 |
| Schlafzimmer | 3 |
| Badezimmer | 1 |
Kosten
| Kaufpreis |
695.900 € |
|---|---|
| Provision |
12.745,- € 3,57% Maklercourtage allein auf den Kaufpreis Baugrundstück. Nicht auf den Neubau! |
Finanzierungsrechner:
Kaufpreis:
600.000 €
Eigenkapital:
600.000 €
Monatliche Rate
0 €
Effektiver Jahreszins
0 %
Sollzinsbindung
10 Jahre
Bausubstanz & Energieausweis
| Baujahr | 2026 |
|---|---|
| Bauphase | Haus in Planung (projektiert) |
| Objektzustand | Nach Vereinbarung |
| Qualität der Austattung | Gehoben |
| Heizungsart | Wärmepumpe |
| Wesentliche Energieträger | expose.parameter.energySourcesEnev2014.HEAT_SUPPLY |
Beschreibung des Objekts
Ausstattung
Unsere DOPPELHAUSHÄLFTE 120 als KfW-Effizienzhaus 40 (förderfähig)!
INKLUSIVE folgender Ausstattung:
-- Luft-Wasser Wärmepumpe BOSCH
-- Fußbodenheizung im EG + OG
mit Einzelraumsteuerung
-- Erhöhter Dämmung in der Außenwand
und unterhalb der Fundamentsohle
-- Zentrale Wohnraumbelüftungsanlage
mit kontrollierter Wärmerückgewinnung
Marke: WOLF
-- Elektrisch bedienbaren
Rollläden im gesamten Haus
-- Tondachpfannen in verschiedenen
wählbar
-- Dachunterschläge aus profilierten
PVC-Kunststoffprofilen
-- Heruntergezogener Eingangsbereich
/ 1-2 Reihen Dachpfannen
Bei TEAM-Massivhaus sind wir in den malerischen Landschaften
Schleswig-Holsteins sowie im urbanen Raum Hamburgs aktiv, um individuelle
Wohnträume zu erfüllen.
Diese beiden Regionen bieten eine einzigartige Mischung aus natürlicher Schönheit und städtischem Leben, was sie zu idealen Standorten für Dein
zukünftiges Zuhause macht. Ob Du die Ruhe und die Nähe zur Natur in Schleswig-
Holstein bevorzugst oder das lebendige, kulturelle Angebot Hamburgs schätzt.
TEAM-Massivhaus steht bereit
dein Bauvorhaben mit höchster Qualität und persönlicher Beratung zu realisieren.
TEAM-Massivhaus...Kompetenz und Leidenschaft im Bauwesen!!!
Als Marktführer und als TEAM stehen wir für Innovationen und sorgen dafür, das
Kundenwünsche nicht nur erfüllt, sondern übertroffen werden.
Die Leidenschaft für das Bauhandwerk und das Streben nach Perfektion prägen
die Philosophie von TEAM-Massivhaus und garantieren die Realisierung von
Wohnträumen auf höchstem Niveau.
Ein sehr schickes Eigenheim in gehobener Ausstattung.
Lage
Baugrundstück in gefragter Lage von Hamburg-Rahlstedt!
Hier können Sie sich wohlfühlen.
Sonstige Angaben
Überzeugende Vorteile:
1. Individuelle Planung
Jedes Bauvorhaben beginnt mit einer Vision. Unsere Experten setzen sich mit Dir zusammen, um Deine Träume und Wünsche in maßgeschneiderte Baupläne zu übersetzen. Dein Zuhause soll so einzigartig sein wie Du selbst.
2. Massivbauweise Stein auf Stein
Wir bauen auf Langlebigkeit und Qualität Unsere Massivbauweise garantiert Stabilität, hervorragende Dämmwerte
und eine nachhaltige Bauweise, die Dein
Zuhause für die Zukunft rüstet.
3. Schlüsselfertige Häuser on der
ersten Skizze bis zum Einzug kümmern wir uns
darum. Unsere schlüsselfertigen Lösungen bieten Dir ein sorgenfreies Bauvorhaben, bei dem Du entspannt dem Tag
der Schlüsselübergabe entgegensehen kannst.
4. Alles aus einer Hand
Vergiss die Koordination zahlreicher Dienstleister. Bei uns erhältst Du alle Leistungen aus einer Hand, was den Bauprozess nicht nur effizienter, sondern auch transparenter macht.
5. Festpreisgarantie 15 MONATE!!!!
Überraschungen bei den Kosten? Nicht mit uns.
Unsere Festpreisgarantie gibt Dir finanzielle Sicherheit und Planbarkeit von Beginn an.
6. Fertigstellungsgarantie
Wir stehen zu unserem Wort. Die termingerechte Fertigstellung
ist garantiert!
Weitere Dokumente
Hausbaukatalog TEAM-MassivhausAllgemeine Baubeschreibung_TEA
STANDARD-Haustürenkatalog_TEAM
Grundriss
Entwurfsplanung Grundriss DG
>
>
Entwurfsplanung Grundriss EG
>
>
Grundrissbeispiel EG
>
>
Grundrissbeispiel DG
>
>
Screenshot 2025-01-27 190136
>
>
Adresse
22149 Hamburg
Interessante Orte
Preis- und Lageinformationen
Preistrend für Bestandsimmobilien in Rahlstedt