Die Wohnfläche von 76 m² erstreckt sich über das Erd- und Obergeschoss dieses gemütlichen Endreihenhauses aus dem Jahr 1960 und überzeugt durch eine gute Raumaufteilung mit viel Potenzial zur individuellen Gestaltung. Zusätzlich erweitern der ausgebaute Spitzboden sowie die Vollunterkellerung das Platzangebot um wertvollen Nutzraum und schaffen damit deutlich mehr Möglichkeiten für Wohnen, Arbeiten und Hobby.
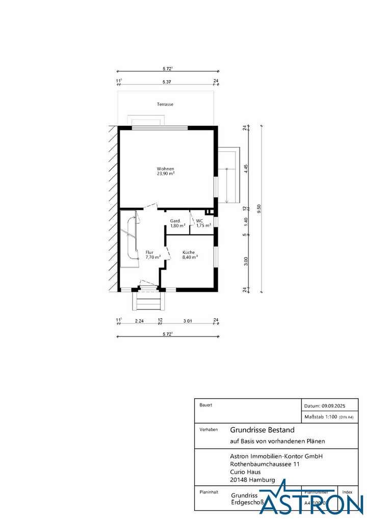
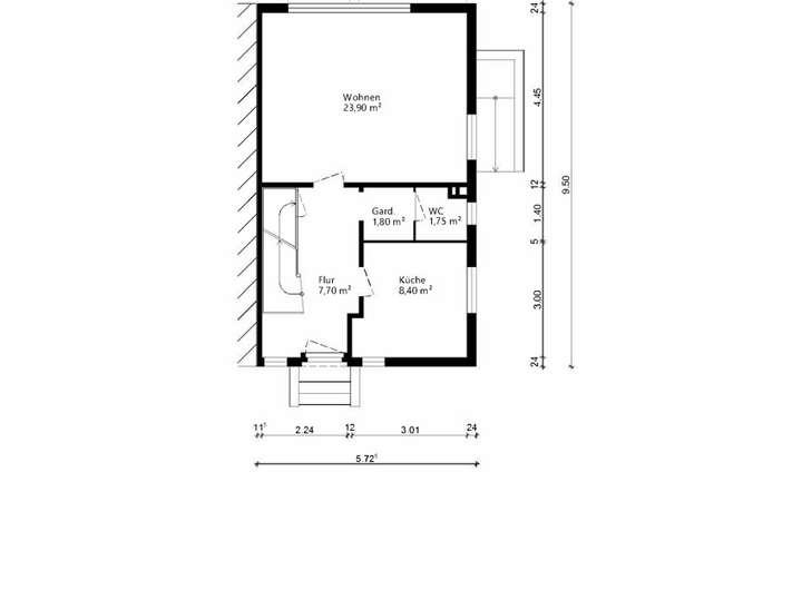
Im Erdgeschoss befinden sich eine separate Küche mit heller Einbauküche, ein großzügiges Wohnzimmer sowie ein Gäste-WC, das vor etwa fünf Jahren modernisiert wurde. Vom Wohnbereich gelangen Sie auf die sonnige Terrasse mit Markise und in den gepflegten Garten. Ein weiterer Sitzplatz an der Hausseite bietet an warmen Tagen einen angenehmen Rückzugsort im Schatten, während eine kleine Grünfläche vor dem Haus den Außenbereich abrundet.
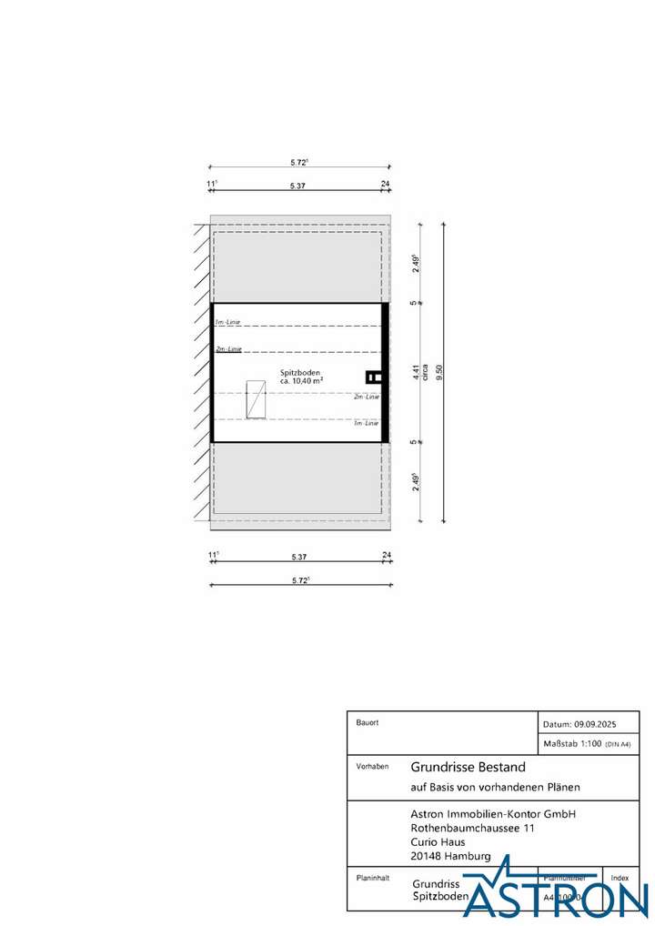
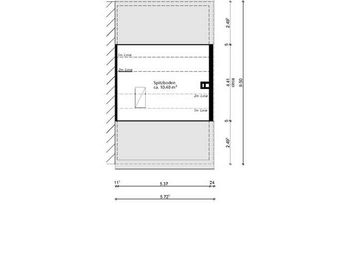
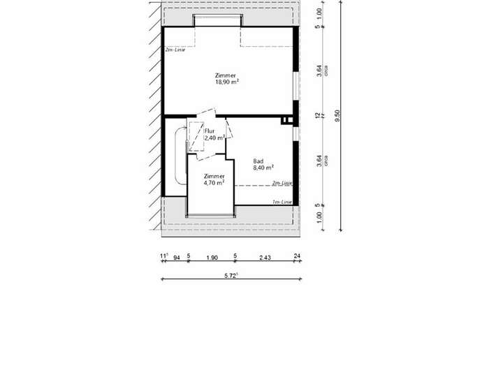
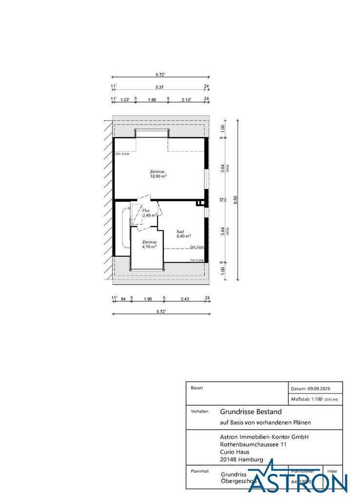
Im Obergeschoss erwarten Sie ein großes Tageslichtbad mit Dusche und Badewanne, ein gemütliches Schlafzimmer sowie ein halbes Zimmer, das sich ideal als Homeoffice oder Ankleidezimmer eignet. Über eine Wendeltreppe gelangen Sie in den ausgebauten Spitzboden, der zusätzlichen Raum als Schlafplatz, Hobbyraum oder Arbeitsbereich bietet.
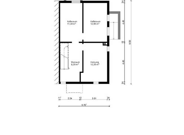
Der vollunterkellerte Bereich verfügt über einen separaten Außenzugang und eignet sich ideal für Abstell- und Hobbyflächen oder – mit entsprechenden Maßnahmen – zur Schaffung zusätzlichen Wohnraums. Elektrische und manuelle Rollläden im Erd- und Obergeschoss sorgen für Komfort. Beheizt wird das Haus über eine eigene Gasheizung (Baujahr 2000). Eine Außengarage sowie zwei Stellplätze direkt davor runden das Angebot ab.
Auch wenn Modernisierungen anstehen, bietet diese Immobilie eine ideale Basis, um ein Zuhause ganz nach Ihren Vorstellungen zu gestalten – mit viel Raum für eigene Ideen und persönliche Wohnträume.
Vereinbaren Sie gern einen Besichtigungstermin und lassen Sie sich vor Ort begeistern!
Gemütliches Endreihenhaus mit viel Potenzial im begehrten Hamburg-Niendorf
22455 Hamburg
Die vollständige Adresse der Immobilie erhalten Sie vom Anbieter.
Auf Karte anzeigen
Die vollständige Adresse der Immobilie erhalten Sie vom Anbieter.
Finanzierungszertifikat
In nur zwei Minuten zu Ihrem persönlichen Finanzierungszertifkat.
Infos
| Haustyp | Reiheneckhaus |
|---|---|
| Etagenzahl | 2 |
| Wohnfläche ca. | 76 m2 |
| Nutzfläche | 132,05 m2 |
| Grundstücksfläche | 246 m2 |
| Zimmer | 2,5 |
| Schlafzimmer | 1 |
| Badezimmer | 1 |
| Garage/Stellplatz | Garage |
| Anzahl Garage/Stellplatz | 1 |
Kosten
| Kaufpreis |
470.000 € |
|---|---|
| Provision |
Die Maklerprovision beträgt insgesamt 3,57 % des Kaufpreises (inkl. gesetzlicher Mehrwertsteuer). |
Finanzierungsrechner:
Kaufpreis:
600.000 €
Eigenkapital:
600.000 €
Monatliche Rate
0 €
Effektiver Jahreszins
0 %
Sollzinsbindung
10 Jahre
Bausubstanz & Energieausweis
| Baujahr | 1960 |
|---|---|
| Objektzustand | Renovierungsbedürftig |
| Heizungsart | Gas-Heizung |
| Wesentliche Energieträger | Gas |
| Energieausweis | liegt vor |
| Energieausweistyp | Bedarfsausweis |
| Energieverbrauchskennwert | 293,6 kWh/(m²*a) |
| Energieeffizienzklasse | H |
293,6
kWh/(m²*a)
Energieeffizienzklasse H
- A+
- A
- B
- C
- D
- E
- F
- G
- H
- 0
- 25
- 50
- 75
- 100
- 125
- 150
- 175
- 200
- 225
- >250
Beschreibung des Objekts
Ausstattung
- Sonnige Terrasse mit gepflegtem Garten
- Markise für angenehmen Schatten
- Praktischer Geräteschuppen im Garten
- Zusätzliche Grünfläche vor dem Haus
- helle Einbauküche mit Elektrogeräten, Geschirrspüler neu in 2023
- Außenrollläden, teilweise elektrisch bedienbar
- Modernisiertes Gäste-WC (ca. 5 Jahre alt)
- Großzügiges Tageslichtbad mit Badewanne und Dusche (2000 erneuert)
- Vollunterkellert mit separatem Außenzugang
- Eigene Gasheizung (Baujahr 2000)
- Außengarage sowie zwei zusätzliche Stellplätze direkt davor
Lage
Die Immobilie liegt in einem ruhigen und grünen Wohngebiet des beliebten Stadtteils Niendorf. Einkaufsmöglichkeiten, Supermärkte, Cafés, Restaurants sowie Schulen, Kindergärten und medizinische Einrichtungen befinden sich in der direkten Umgebung. Das Tibarg-Center mit seinem vielfältigen Angebot ist schnell erreichbar.
Die Verkehrsanbindung ist hervorragend: Die U-Bahnlinie U2 (Haltestelle „Niendorf Nord“) liegt nur etwa 100 m entfernt und verbindet den Stadtteil in wenigen Minuten mit der Hamburger Innenstadt. Ergänzt wird das Angebot durch mehrere Buslinien (Metrobus 24 sowie die Linien 174, 191, 604 und 613), die eine schnelle Verbindung in die umliegenden Stadtteile schaffen. Über die nahegelegene Autobahn A7 besteht zudem eine sehr gute Anbindung an das Umland.
In unmittelbarer Nähe befindet sich außerdem das Sportzentrum Sachsenweg (N.T.S.V.), das ein breites Spektrum an Sport- und Freizeitmöglichkeiten bietet.
Besonders hervorzuheben ist auch die Nähe zum Niendorfer Gehege, einem der größten Wald- und Naherholungsgebiete Hamburgs. Hier bieten weitläufige Spazier- und Radwege, Reitmöglichkeiten und Spielplätze einen hohen Freizeit- und Erholungswert.
Sonstige Angaben
Laut Teilungserklärung ist dem Endreihenhaus eine rechnerische Grundstücksfläche von ca. 246 m² zugeordnet. Diese Fläche ergibt sich aus den Miteigentumsanteilen an der insgesamt 3.056 m² großen Grundstücksanlage.
Das monatliche Wohngeld beträgt ca. 200,- EUR. Strom, Gas und Wasser werden separat und direkt mit den Versorgern abgerechnet.
Die vorgeschriebene Dichtheitsprüfung wurde bereits durchgeführt.
Grundriss
01 Grundriss Kellergeschoss
>
>
02 Grundriss Erdgeschoss
>
>
03 Grundriss Obergeschoss
>
>
04 Grundriss Spitzboden
>
>
Adresse
22455 Hamburg
Interessante Orte
Preis- und Lageinformationen
Preistrend für Bestandsimmobilien in Niendorf