Dieses Objekt in Waldböckelheim ist für alle interessant, die auf der Suche nach einem bezahlbaren Haus mit solider Bausubstanz und vielseitigem Nutzungsspielraum sind. Das zweigeschossige Wohnhaus mit angeschlossener ehemaliger Gaststätte steht auf einer Grundstücksfläche von rund 217 m² und verfügt über eine klar strukturierte Raumaufteilung. Es bietet die ideale Grundlage für individuelle Umbaupläne. Ob als zukünftiges Zuhause mit Werkstatt oder Büro im Erdgeschoss, als Kombination aus Wohnen und Selbstständigkeit oder als Basis für ein langfristiges Sanierungsprojekt – das Gebäude hält mehr bereit, als man auf den ersten Blick vermutet.
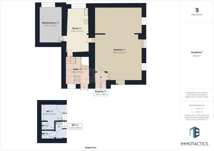
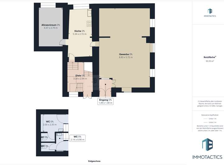
Im Erdgeschoss befindet sich die ehemalige Gaststätte mit Schankbereich und Sitznischen. Sie eignet sich ideal für eine künftige gewerbliche oder kreative Nutzung. Ein Sanitärbereich mit getrennten Damen- und Herren-WCs ist vorhanden. Dazu kommen eine Küche mit angrenzendem Allzweckraum, die beide ebenfalls Potenzial für Lagerflächen, eine Werkstatt oder einen Ausbau bieten. Der Zugang erfolgt über einen separaten Eingangsbereich mit Windfang und Treppenhaus, was eine klare Trennung zwischen Arbeit und Wohnen ermöglicht. Dieser gewerblich genutzte Teil verfügt insgesamt über 95 m².
Die Wohneinheit im Obergeschoss besitzt auf 84 m² Wohnfläche zwei geräumige Schlafzimmer, ein Wohnzimmer, eine Küche und ein Tageslichtbad.
Die durchdachten Grundrisse ermöglichen bei einer Sanierung unterschiedliche Konzepte – vom klassischen Familienwohnen bis zur offenen Gestaltung mit integriertem Arbeitsbereich.
Das Haus ist teilunterkellert, aufgeteilt in zwei große Kellerräume und bieten reichlich Platz für Lagerung, Hobbys oder als Werkstattfläche.
Der Innenhof mit Natursteinmauer wirkt ruhig und geschützt. Ob als kleine Sitzecke, Abstellfläche oder grüner Rückzugsort genutzt – hier lässt sich mit wenig Aufwand ein funktionaler Außenbereich schaffen.
Die Immobilie ist insgesamt renovierungsbedürftig. Dies betrifft sowohl die Ausstattung als auch die energetische und technische Ausstattung. Für Käufer, die selbst mit anpacken oder handwerklich begabt sind bietet das Objekt eine gute Grundlage für individuelle Lösungen.
Fazit: Substanz statt Schein – und jede Menge Spielraum für eigene Pläne!
Dieses Haus richtet sich an Menschen, die nicht nach einer makellosen Fassade suchen, sondern nach echtem Entwicklungspotenzial. Wer bereit ist, Arbeit zu investieren, erhält keine Standardimmobilie, sondern ein Objekt mit klarer Struktur, solider Basis und vielseitiger Nutzbarkeit. Ob als Wohndomizil mit Werkstatt, als Kombination aus Leben und kleinem Gewerbe oder als Projekt mit langfristiger Perspektive – hier lässt sich mit einem klugen Sanierungskonzept viel erreichen.
Die Lage bietet funktionale Vorteile, die Raumaufteilung ist praxisnah und der Preis eröffnet Spielräume. Das Beste daran ist, dass die Gestaltung ganz in Ihrer Hand liegt. Es gibt keinen vorgefertigten Stil und keine starren Vorgaben, sondern Sie können die Immobilie genau so gestalten, wie Sie es sich vorstellen.
Wenn Sie ein realistisches Objekt mit ehrlichem Charakter suchen, bei dem sich Aufwand und Wertentwicklung in einem gesunden Verhältnis begegnen, ist dieses Haus einen genaueren Blick wert.
Objektunterlagen liegen altersbedingt nur in eingeschränkter Form vor – gerne stellen wir Ihnen alle verfügbaren Informationen zur Verfügung.
Solides Wohnhaus mit ehemaliger Gaststätte, Innenhof & Gestaltungsspielraum in Waldböckelheim
55596 Waldböckelheim
Die vollständige Adresse der Immobilie erhalten Sie vom Anbieter.
Auf Karte anzeigen
Die vollständige Adresse der Immobilie erhalten Sie vom Anbieter.
Finanzierungszertifikat
In nur zwei Minuten zu Ihrem persönlichen Finanzierungszertifkat.
Infos
| Haustyp | Einfamilienhaus |
|---|---|
| Etagenzahl | 2 |
| Wohnfläche ca. | 84 m2 |
| Nutzfläche | 95 m2 |
| Grundstücksfläche | 217 m2 |
| Bezugsfrei ab | nach Absprache |
| Zimmer | 5 |
| Schlafzimmer | 2 |
| Badezimmer | 1 |
| Anzahl Garage/Stellplatz | 2 |
Kosten
| Kaufpreis |
99.000 € |
|---|---|
| Provision |
3,57% inkl. gesetzlicher Umsatzsteuer. |
Finanzierungsrechner:
Kaufpreis:
600.000 €
Eigenkapital:
600.000 €
Monatliche Rate
0 €
Effektiver Jahreszins
0 %
Sollzinsbindung
10 Jahre
Bausubstanz & Energieausweis
| Baujahr | 1900 |
|---|---|
| Bauphase | Haus fertig gestellt |
| Objektzustand | Renovierungsbedürftig |
| Qualität der Austattung | Normal |
| Heizungsart | Nachtspeicherofen |
| Wesentliche Energieträger | Strom |
| Energieausweis | liegt vor |
| Energieausweistyp | Bedarfsausweis |
| Energieverbrauchskennwert | 325,9 kWh/(m²*a) |
| Energieeffizienzklasse | H |
325,9
kWh/(m²*a)
Energieeffizienzklasse H
- A+
- A
- B
- C
- D
- E
- F
- G
- H
- 0
- 25
- 50
- 75
- 100
- 125
- 150
- 175
- 200
- 225
- >250
Beschreibung des Objekts
Ausstattung
Allgemeine Merkmale
Zweigeschossiges Wohnhaus mit solider Bausubstanz
Grundstücksfläche: ca. 217 m²
Ehemalige Gaststätte im Erdgeschoss (ca. 50 m²)
Separater Eingangsbereich mit Windfang und Treppenhaus
unterkellert mit zwei großen Kellerräumen
Innenhof mit Natursteinmauer
Wohnbereich (Obergeschoss)
Zwei geräumige Schlafzimmer
Wohnzimmer
Einbauküche
Tageslichtbad
Zwei Dielenbereiche mit Stauraum
Gewerblich nutzbarer Bereich (Erdgeschoss)
Ehemaliger Schankraum mit Sitznischen
Getrennte Damen- und Herren-WCs
Einbauküche mit angrenzendem Allzweckraum
Separater Zugang (ideal für gewerbliche oder kreative Nutzung)
Ruhiger, geschützter Innenhof
Außenbereich
Ruhiger, geschützter Innenhof
Gestaltungspotenzial als Sitzecke, Rückzugsort oder Abstellfläche
Besonderheiten & Nutzungspotenzial
Vielseitige Nutzungsmöglichkeiten
Wohnen mit integrierter Werkstatt
Kombination aus Wohnen & Selbstständigkeit
Umgestaltung zu reinem Wohnobjekt mit offenem Grundriss
Gute Basis für individuelle Sanierungskonzepte
Keine starren Vorgaben bei Gestaltung
Lage
Eingebettet in die sanft geschwungenen Hügel des südlichen Rheinland-Pfalz erwartet Sie Waldböckelheim – ein malerischer Ort, der ländliche Idylle und alltagsnahe Infrastruktur in harmonischem Einklang vereint. Die Gemeinde gehört zur Verbandsgemeinde Rüdesheim im Landkreis Bad Kreuznach und bietet mit ihrer naturnahen Umgebung und familienfreundlichen Atmosphäre den idealen Rückzugsort für alle, die Ruhe und Lebensqualität schätzen.
Die direkte Umgebung überzeugt durch ihre ausgezeichnete Anbindung: In wenigen Minuten erreichen Sie die Bundesstraße B41, die Sie zügig in Richtung Bad Kreuznach, Kirn oder Idar-Oberstein bringt. Auch die Autobahn A61 ist über die umliegenden Zufahrten gut erreichbar – ideal für Pendler oder Berufstätige mit regionalem Aktionsradius. Wer den öffentlichen Nahverkehr bevorzugt, profitiert von regelmäßigen Busverbindungen sowie dem nahegelegenen Bahnhof in Bad Sobernheim.
Für den täglichen Bedarf ist bestens gesorgt: Einkaufsmöglichkeiten, Bäckereien, Ärzte, Apotheken und Banken sind in kurzer Distanz erreichbar. Familien mit Kindern finden in Waldböckelheim eine moderne Kindertagesstätte sowie eine gut ausgestattete Grundschule vor. Weiterführende Schulen befinden sich in den Nachbargemeinden und sind bequem mit dem Schulbus erreichbar.
Auch das Freizeitangebot lässt keine Wünsche offen: Die Region ist bekannt für ihre malerischen Wanderwege, reizvollen Weinberge und vielfältigen Radstrecken entlang der Nahe. Ob entspannter Spaziergang im Grünen, sportliche Aktivitäten im Verein oder gesellige Stunden in den ortsansässigen Weingütern – hier lebt man naturnah, aktiv und mit einem ausgeprägten Gemeinschaftsgefühl.
Waldböckelheim ist ein Ort, der gleichermaßen für Familien, Ruhesuchende wie auch naturverbundene Individualisten attraktiv ist – ein Stück Rheinland-Pfalz, das durch Lebensqualität, Charme und eine intakte Dorfgemeinschaft begeistert.
Sonstige Angaben
Die in unserem Exposé enthaltenen Aussagen basieren ausschließlich auf Informationen, die uns vom Verkäufer und von Handwerkern zur Verfügung gestellt wurden.
Wir übernehmen daher keine Gewähr für die Vollständigkeit und Richtigkeit der Angaben.
Das Immobilienangebot ist freibleibend.
Irrtum und Zwischenverkauf bleiben vorbehalten.
Weitere Details zum Objekt erläutern wir Ihnen gerne bei einem Besichtigungstermin.
Wir bitten um Ihr Verständnis dafür, dass wir nur Anfragen mit vollständigen Adressdaten inklusive Vor- und Zuname, Anschrift, Telefon-/Mobilnummer und Email Adresse bearbeiten können.
Sie suchen nach der passenden Finanzierung? Wir finden sie!
Als ungebundene Finanzierungsvermittler vergleichen wir über 900 Banken und finden einen optimalen Kredit für Sie.
Sparen Sie Geld und Zeit! Mit Sicherheit günstiger als Ihre Hausbank.
Informieren Sie sich jetzt hier, kostenfrei und unverbindlich über Finanzierungsmöglichkeiten zu dieser Immobilie. Fördermittelberatung inklusive.
Wir freuen uns auf den Kontakt zu Ihnen.
Immotactics GmbH
0671 – 20272030
info@immotactics.de
Grundriss
Keller
>
>
Gewerbe Erdgeschoss
>
>
Grundriss OG
>
>
Adresse
55596 Waldböckelheim
Interessante Orte
Preis- und Lageinformationen
Preistrend für Bestandsimmobilien in Waldböckelheim