Zum Verkauf steht ein gepflegtes Mehrfamilienhaus mit insgesamt sechs Wohneinheiten in gefragter Lage von Frankfurt-Bornheim. Das Gebäude ist Teil einer Wohnanlage (insgesamt 87 WHG) aus dem Jahr 1998 und bereits nach WEG aufgeteilt – für jede Einheit existiert ein eigenes Grundbuchblatt.
Fünf der sechs Wohnungen sind derzeit leerstehend und bieten damit hervorragende Möglichkeiten zur individuellen Gestaltung, Eigennutzung oder Neuvermietung. Die Wohnungsgrößen liegen zwischen ca. 66 m² und 71 m². Jede Einheit verfügt über einen Balkon oder eine Terrasse, Tageslichtbäder sowie Laminatböden.
Zum Haus gehören außerdem:
- Drei Duplex-Stellplätze in der Tiefgarage, den jeweiligen Wohnungen zugeordnet
- Ein Garten, der dem Haus zugeordnet ist
- Kellerabteile für jede Wohnung
- Hohe Rücklage der WEG
Das Objekt ist Teil einer größeren Wohnungseigentümergemeinschaft (WEG) und überzeugt durch seine solide Bauweise, gute Aufteilung und attraktive Lage mit hervorragender Anbindung an die Innenstadt.
Ob als Kapitalanlage mit Neuvermietungspotenzial oder als Projekt für Aufteiler und Entwickler – dieses Objekt bietet vielfältige Nutzungsmöglichkeiten in einem der beliebtesten Stadtteile Frankfurts.
Attraktives Mehrfamilienhaus in Bornheim – 5 von 6 Wohnungen frei, in ETW aufgeteilt
60385 Frankfurt am Main
Die vollständige Adresse der Immobilie erhalten Sie vom Anbieter.
Auf Karte anzeigen
Die vollständige Adresse der Immobilie erhalten Sie vom Anbieter.
Finanzierungszertifikat
In nur zwei Minuten zu Ihrem persönlichen Finanzierungszertifkat.
Infos
| Haustyp | Mehrfamilienhaus |
|---|---|
| Etagenzahl | 3 |
| Wohnfläche ca. | 408 m2 |
| Nutzfläche | 95 m2 |
| Grundstücksfläche | 4.233 m2 |
| Bezugsfrei ab | ab sofort |
| Zimmer | 12 |
| Schlafzimmer | 6 |
| Badezimmer | 6 |
| Garage/Stellplatz | Duplex |
| Anzahl Garage/Stellplatz | 3 |
Kosten
| Kaufpreis |
2.040.000 € |
|---|---|
| Preis für Garage/Stellplatz | 60.000 € |
| Provision |
Käuferprovision 5,95 % (inkl. 19% MwSt.) vom Kaufpreis |
Finanzierungsrechner:
Kaufpreis:
600.000 €
Eigenkapital:
600.000 €
Monatliche Rate
0 €
Effektiver Jahreszins
0 %
Sollzinsbindung
10 Jahre
Bausubstanz & Energieausweis
| Baujahr | 1998 |
|---|---|
| Objektzustand | Gepflegt |
| Qualität der Austattung | Normal |
| Heizungsart | Zentralheizung |
| Wesentliche Energieträger | Gas |
| Energieausweis | laut Gesetz nicht erforderlich |
Beschreibung des Objekts
Ausstattung
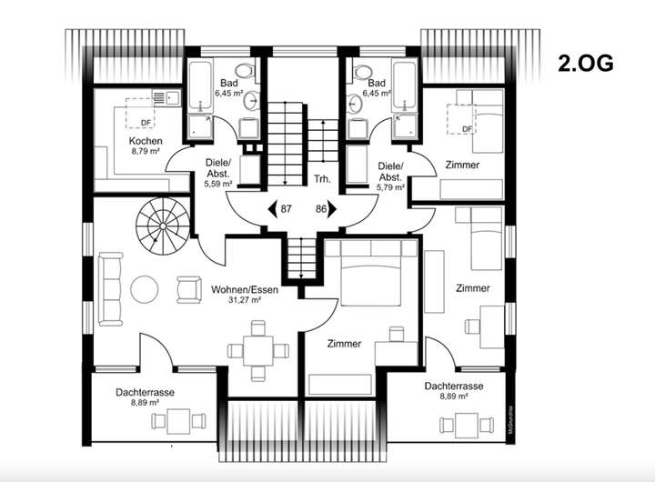
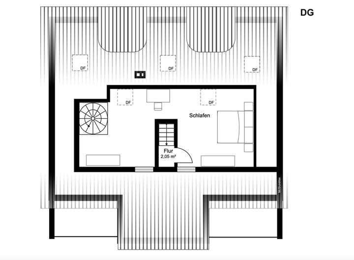
- Sechs Wohneinheiten mit jeweils 2 Zimmern
- Wohnungsgrößen zwischen ca. 66 m² und 71 m²
- Jede Wohnung mit Balkon oder Terrasse
- Tageslichtbäder in allen Einheiten
- Treppenhaus mit natürlicher Belichtung
- Gepflegter, trockener Keller mit separaten Abstellräumen
- Gaszentralheizung
- Drei Duplex-Stellplätze in der Tiefgarage
- Bereits aufgeteilt in sechs Grundbuchblätter
Lage
Bornheim liegt hoch im Trend. Hier lebt es sich entspannt, beschaulich. Flanieren Sie die längste Einkaufsstraße Frankfurts entlang und kehren Sie in einer der vielen Kneipen auf einen „Ebbelwoi“, wie das Traditionsgetränk auf hessisch heißt, ein. Die Farbe Grün findet man hier nicht nur in den zahlreichen Parks und Grünanlagen – das Motto des Stadtteils heißt: Lust am Leben – Willkommen in Bornheim!
Die Infrastruktur ist hervorragend. Hier finden Sie alles an einem Ort, wie Supermärkte, Drogerien und Discounter. Aber auch Arztpraxen und Apotheken. Bornheim befindet sich im Osten der Stadt Frankfurt und gehört zum Ortsbezirk.
Bornheim/Ostend. Hier gibt es eine gute Anbindung an den öffentlichen Nahverkehr, die Bundesstraßen 3 und 8, sowie die Autobahn 661, die mit den Bundesautobahnen 3 und 5 einen Ring um die Stadt Frankfurt bildet. Man ist also schnell im Stadtzentrum, aber auch genauso schnell draußen im grünen Taunusgebirge.
.
Sonstige Angaben
Für Besichtigungen stehen wir Ihnen jederzeit gerne unter vorheriger Terminvereinbarung zur Verfügung.
Unser Angebot erfolgt freibleibend. Alle Angaben basieren auf erteilten Informationen der Eigentümer. Wir haften nicht für die Richtigkeit und Vollständigkeit der von uns weitergegebenen Informationen und Unterlagen. Dieses Exposé stellt kein Vertragsangebot dar. Es dient lediglich dazu, allgemeine Informationen zum Objekt zur Verfügung zu stellen. Das Exposé ist nicht Bestandteil eines Mietvertrages. Weder die VermieterIn noch die Anjia Immobilien GmbH & Co.KG oder deren Mitarbeiter sind im Rahmen des Exposés berechtigt, wie auch immer geartete Zusicherungen, Garantien, Auskünfte, Beschaffenheitsangaben oder öffentliche Äußerungen hinsichtlich des Objektes zu geben. Diese können nur Gegenstand eines noch zu verhandelnden Mietvertrages sein.
Im Exposé erwähntes bzw. abgebildetes Inventar ist nur im Mietpreis enthalten, sofern dies im Mietvertrag auch schriftlich vereinbart wird.
Geldwäsche
Als Immobilienmaklerunternehmen ist die Anjia Immobilien GmbH & Co. KG nach §§ 1, 2 Abs.1 Nr.10, 4 Abs.3 Geldwäschegesetz (GwG) dazu verpflichtet, vor Begründung einer Geschäftsbeziehung die Identität des Vertragspartners festzustellen und zu überprüfen. Hierzu ist es erforderlich, dass wir die relevanten Daten Ihres Personalausweises festhalten – beispielsweise mittels einer Kopie. Das Geldwäschegesetz (GwG) sieht vor, dass der Makler die Kopien bzw. Unterlagen fünf Jahre aufbewahren muss.
Grundriss
Grundriss EG
>
>
Adresse
60385 Frankfurt am Main
Interessante Orte
Preis- und Lageinformationen
Preistrend für Bestandsimmobilien in Bornheim