Ihr Traum vom eigenen Garten: Charmante DHH auf privatem Grundstück im Westen Hamburgs
Willkommen in Ihrem Refugium im Westen Hamburgs, wo geräumiges Wohnen, grüne Idylle und urbaner Komfort perfekt verschmelzen.
Fakten & Eckdaten
Objektart: Doppelhaushälfte mit Garten und Stellplätzen
Wohnfläche: ca. 96,65 Quadratmeter
Nutzfläche: ca. 71,35 Quadratmeter (Keller ca. 50 Quadratmeter, Bodenraum ca. 21,35 Quadratmeter)
Zimmer: 3
Grundstücksfläche: ca. 315 Quadratmeter
Baujahr: ca. 1990
Kaufpreis: 569.000 € zzgl. 3,57 % Maklerprovision (inkl. MwSt.)
Lage und Umfeld
Diese Immobilie befindet sich in einer ruhigen und begehrten Wohngegend im Westen von Hamburg. Sie bietet eine ideale Ausgangsbasis für Familien, die Wert auf eine hohe Lebensqualität legen. Die Umgebung ist von grüner Idylle geprägt und bietet dennoch eine gute Anbindung an die städtischen Annehmlichkeiten.
Die Immobilie im Detail
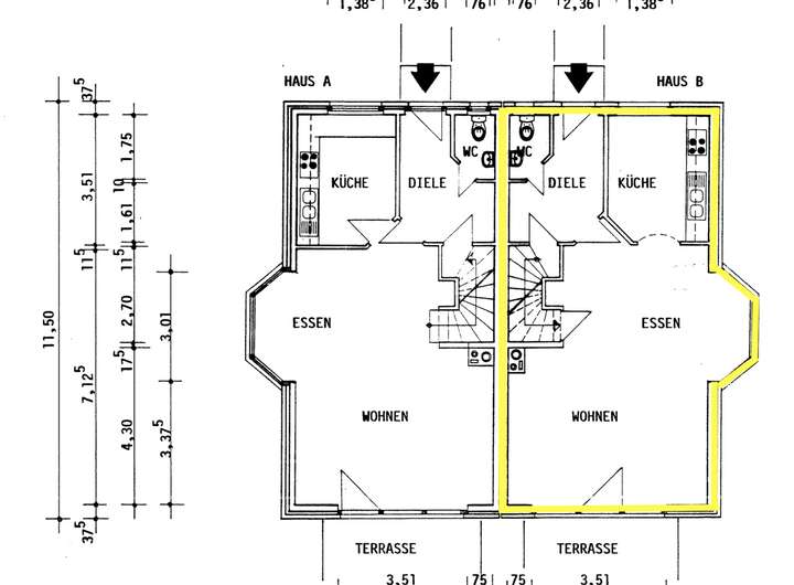
Diese charmante Doppelhaushälfte bietet Ihnen eine flexible Raumaufteilung. Im Erdgeschoss finden Sie einen lichtdurchfluteten Wohn- und Essbereich, der durch einen Erker und einen einladenden Kamin eine besondere Atmosphäre schafft. Die angrenzende Einbauküche bietet ausreichend Platz für Ihre kulinarischen Ideen. Vom Wohnbereich gelangen Sie direkt auf die Terrasse und in den liebevoll angelegten Garten – Ihr persönliches Paradies im Grünen. Elektrische Rollläden an der Fensterfront zum Garten sorgen für zusätzlichen Komfort.
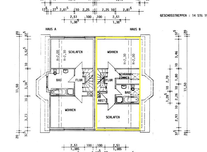
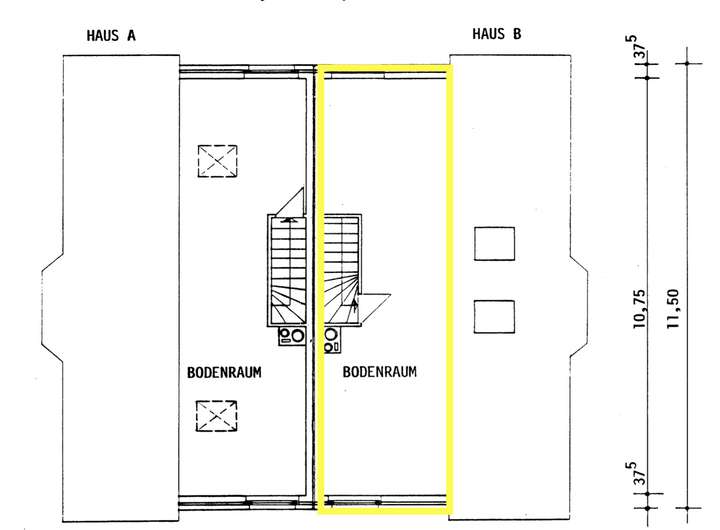
Im Obergeschoss befinden sich zwei gemütliche Schlafzimmer und ein Bad mit Wanne und Dusche. Der voll nutzbare Spitzboden bietet zudem flexible Möglichkeiten, wie z.B. ein Home-Office oder einen Hobbyraum.
Das Haus ist voll unterkellert und überzeugt mit praktischen Räumen: Ein Heizungsraum (mit Gastherme aus 2023), eine Waschküche mit Anschluss für eine Waschmaschine, ein weiteres Badezimmer sowie ein zusätzlicher Kellerraum und ein kleiner Gemeinschaftskellerraum. Zwei Außenstellplätze direkt am Haus runden das Angebot ab.
Haben wir Ihr Interesse geweckt? Kontaktieren Sie uns für eine persönliche Besichtigung. Wir freuen uns darauf, Ihnen dieses besondere Objekt zu zeigen!
Gestalten Sie Ihr Zuhause – DHH auf eigenem Grundstück mit Potenzial
22549 Hamburg
Die vollständige Adresse der Immobilie erhalten Sie vom Anbieter.
Auf Karte anzeigen
Die vollständige Adresse der Immobilie erhalten Sie vom Anbieter.
Finanzierungszertifikat
In nur zwei Minuten zu Ihrem persönlichen Finanzierungszertifkat.
Infos
| Haustyp | Doppelhaushaelfte |
|---|---|
| Etagenzahl | 2 |
| Wohnfläche ca. | 96 m2 |
| Nutzfläche | 71,3 m2 |
| Grundstücksfläche | 315 m2 |
| Zimmer | 3 |
| Schlafzimmer | 2 |
| Badezimmer | 1 |
| Garage/Stellplatz | Außenstellplatz |
| Anzahl Garage/Stellplatz | 2 |
Kosten
| Kaufpreis |
569.000 € |
|---|---|
| Provision |
3,57% inkl. MwSt. (19%). Fällig mit Kaufvertragsabschluss |
Finanzierungsrechner:
Kaufpreis:
600.000 €
Eigenkapital:
600.000 €
Monatliche Rate
0 €
Effektiver Jahreszins
0 %
Sollzinsbindung
10 Jahre
Bausubstanz & Energieausweis
| Baujahr | 1990 |
|---|---|
| Heizungsart | Zentralheizung |
| Wesentliche Energieträger | Gas |
| Energieausweis | liegt vor |
| Energieausweistyp | Bedarfsausweis |
| Energieverbrauchskennwert | 158,0 kWh/(m²*a) |
| Energieeffizienzklasse | E |
158,0
kWh/(m²*a)
Energieeffizienzklasse E
- A+
- A
- B
- C
- D
- E
- F
- G
- H
- 0
- 25
- 50
- 75
- 100
- 125
- 150
- 175
- 200
- 225
- >250
Beschreibung des Objekts
Ausstattung
- Baujahr ca. 1990
- Ca. 168 Quadratmeter Wohn- und Nutzfläche
- Ca. 315 Quadratmeter Grundstück (kein Erbpacht)
- Offen gestalteter Wohn- und Essbereich mit Erker und Kamin
- Einbauküche
- Gäste-WC
- 2 Schlafzimmer
- Badezimmer mit Badewanne und Dusche
- Spitzboden
- Keller mit Waschküche, Badezimmer, Heizungsraum und Kellerraum
- Gastherme (Baujahr 2023)
- Elektrische Außenrollläden (Terrassentür und Fenster zum Garten)
- Großzügige Terrasse
- Schöner Garten
- Außenstellplatz für 2 PKW
- kleiner Gemeinschaftskellerraum
Lage
Leben im grünen Herzen mit urbaner Anbindung
Die Doppelhaushälfte besticht durch ihre ideale Lage, die sowohl Ruhe und Natur als auch eine hervorragende Anbindung an das urbane Leben bietet.
Natur und Freizeit:
Der nahegelegene Bornpark lädt mit seinem Spielplatz und unter anderem einer Hundeauslauffläche zu erholsamen Stunden im Grünen ein.
Ein idyllischer Angelsee in unmittelbarer Nähe bietet Angelfreunden ein perfektes Refugium.
Der Volkspark mit dem Volksparkstadion und der Barclayscard Arena ist in nur 8 Autominuten erreichbar und bietet vielfältige Sport- und Freizeitangebote. Auch die Trabrennbahn Bahrenfeld ist nicht weit entfernt.
Infrastruktur und Nahversorgung:
Ein fußläufig erreichbarer Busbahnhof gewährleistet eine optimale Anbindung an den öffentlichen Nahverkehr.
Geschäfte des täglichen Bedarfs wie ein Penny-Markt und ein Lidl sind bequem zu Fuß erreichbar.
Eine Tankstelle, ein Bistro, ein Döner-Imbiss und eine Konditorei befinden sich in unmittelbarer Nähe und sorgen für kulinarische Vielfalt.
Eine Charging Station für Elektroautos ist ebenfalls fußläufig erreichbar.
Das Stadtzentrum von Schenefeld ist nur 5 Autominuten entfernt und bietet zusätzliche Einkaufsmöglichkeiten.
Das Elbe Einkaufszentrum, ein beliebtes Einkaufsziel, ist in 10 Autominuten erreichbar.
Verkehrsanbindung:
Die Hamburger Innenstadt mit dem Jungfernstieg ist in ca. 25 Autominuten oder 40 Minuten mit den öffentlichen Verkehrsmitteln erreichbar.
Der Hamburger Flughafen ist nur 20 Autominuten entfernt.
Weitere Vorzüge:
Die Metropole Hamburg bietet eine umfassende Infrastruktur mit zahlreichen Krankenhäusern, Arztpraxen und weiteren Annehmlichkeiten.
Diese Lagebeschreibung verdeutlicht, dass der Engelbrechtweg in Lurup eine optimale Balance zwischen naturnahem Wohnen und urbaner Lebensqualität bietet.
Sonstige Angaben
Alle Angaben ohne Gewähr. Die Inhalte dieses Exposés stammen vom Anbieter. Für Daten Dritter übernehmen wir keine Haftung. Das Angebot ist nur für Sie bestimmt und darf nicht an Dritte weitergegeben werden. Eine Weitergabe verpflichtet zur Zahlung von Schadenersatz, falls ein Dritter dadurch zum Vertragsabschluss kommt und dieses Angebot provisionspflichtig ist. Die Grunderwerbsteuer, Notar- und Grundbuchkosten sind vom Käufer zu tragen.
Weitere Dokumente
EnergieausweisEngelbrechtw...Adresse
22549 Hamburg
Interessante Orte
Preis- und Lageinformationen
Preistrend für Bestandsimmobilien in Lurup