Diese außergewöhnliche, um 1910 in zweigeschossiger Bauweise errichtete Backsteinvilla besticht durch ihren historischen Charme und präsentiert sich mit einem nahezu vollständig erhaltenen originalen äußeren Erscheinungsbild. Auch im Inneren überzeugt die Immobilie mit einer weitgehend erhaltenen Originalausstattung – die bewahrten Details erzählen die Geschichte eines Hauses, das seinen ursprünglichen Charakter bis heute bewahrt hat.
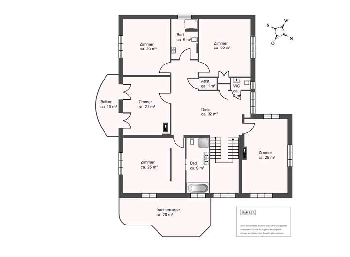
Mit einer Wohnfläche von ca. 490 m² und insgesamt zwölf Zimmern bietet das Anwesen vielfältige Nutzungsmöglichkeiten – sowohl für Familien als auch für teilgewerbliche Zwecke. Die Raumaufteilung ist großzügig und repräsentativ. Das Dachgeschoss bietet zudem noch eine Ausbaureserve.
Seit 2010 wurden umfassende Sanierungsarbeiten durchgeführt. Zu den getätigten Investitionen zählen:
* Alarmsystem installiert, Fenster mit Sicherheitsglas und Alarmkontakten ausgestattet
* Erneuerung der Haustechnik inklusive Wasser-, Heizungs- und Elektroinstallationen
* Modernisierung der Bäder inklusive neuer Fliesen und Armaturen
* Maßgefertigte Tischlerarbeiten: Wandpaneele im Treppenhaus, Bücherregal im Wohnbereich und Heizungsverkleidungen gemäß Denkmalschutz
Ein weiteres Highlight ist das weitläufige Grundstück in attraktiver Lage - der Alsterlauf stellt die südliche Grundstücksgrenze dar. Es handelt sich um ein ca. 10.000 m² großes Gesamtgrundstück innerhalb einer Wohnungseigentümergemeinschaft (WEG). Der Villa ist ein Sondernutzungsrecht an rund 6.500 m² zugewiesen, das exklusiv genutzt werden kann. Der Garten ist großzügig angelegt und verfügt über eine weitläufige Rasenfläche, alten Baumbestand sowie verschiedene immergrüne Anpflanzungen. Die sonnige Terrasse mit Ausrichtung gen Süden und herrlichem Blick ins Grüne lädt zum Verweilen ein. Das Gelände ist teils terrassiert und fällt in Richtung Alsterlauf ab. Die Uferböschung ist natürlich bewachsen, in der Uferzone sind teichartige Wasserflächen zu finden. Die elektrische Grundstückstoranlage und eine Alarmanlage sorgen für die Sicherheit des Anwesens, verschiedene Stellplätze ergänzen zusätzlich den attraktiven Gesamteindruck.
Das monatlich zu entrichtende Wohngeld beträgt € 621,-. Die Pflege der gemeinschaftlichen Außenanlagen und auch der Winterdienst werden selbstverständlich von Fachfirmen verantwortet.
Diese Villa im hervorragenden Zustand ist ein echtes Unikat – ein seltenes Zeugnis vergangener Baukunst und ideal für Liebhaber historischer Architektur, die das Besondere suchen. Im Jahr 1998 wurde das Gebäude in die Hamburger Denkmalliste eingetragen.
Wer das Besondere sucht: Historische Backsteinvilla am Alsterlauf
22391 Hamburg
Die vollständige Adresse der Immobilie erhalten Sie vom Anbieter.
Auf Karte anzeigen
Die vollständige Adresse der Immobilie erhalten Sie vom Anbieter.
Finanzierungszertifikat
In nur zwei Minuten zu Ihrem persönlichen Finanzierungszertifkat.
Infos
| Haustyp | Villa |
|---|---|
| Wohnfläche ca. | 490 m2 |
| Nutzfläche | 312 m2 |
| Grundstücksfläche | 6.500 m2 |
| Zimmer | 12 |
Kosten
| Kaufpreis |
2.950.000 € |
|---|---|
| Provision |
3,57% inkl. gesetzl. MwSt. Käuferprovision bezogen auf den Kaufpreis |
Finanzierungsrechner:
Kaufpreis:
600.000 €
Eigenkapital:
600.000 €
Monatliche Rate
0 €
Effektiver Jahreszins
0 %
Sollzinsbindung
10 Jahre
Bausubstanz & Energieausweis
| Baujahr | 1910 |
|---|---|
| Denkmalschutzobjekt | Ja |
| Objektzustand | Gepflegt |
| Heizungsart | Zentralheizung |
| Wesentliche Energieträger | Öl |
| Energieausweis | laut Gesetz nicht erforderlich |
Beschreibung des Objekts
Ausstattung
* originale Vertäfelungen und Fliesen in der Eingangshalle
* Parkettböden, Pitchpinedielen, originale Türen, Heizkörperverkleidungen und Stuck aus der Ursprungszeit
* originales Treppenhaus
* alte Bodenfliesen in der Küche
* Marmorkamine und kunstvolle Kachelöfen
* historische Details wurden liebevoll mit modernen Elementen kombiniert
* drei Bäder, davon ein Bad en Suite
* moderne und hochwertige Badausstattung mit u.a. Walk in -Dusche, echtem Kieselboden in der Dusche, Handtuchheizkörper, Naturstein u.v.m.
* separates Gäste-WC
* teilweise elektrische Außenjalousien
* hochwertige Netzwerkverkabelung in fast allen Räumen
* Vollkeller mit einer Deckenhöhe von ca. 2,30 m
* Ölzentralheizung von Viessmann aus dem Jahr 2000
Lage
Die angebotene Villa befindet sich in dem beliebten Hamburger Stadtteil Poppenbüttel. Grünes und ruhiges Wohnen verbindet sich hier mit einer guten Infrastruktur.
Das überregional bekannte Alstertal Einkaufszentrum mit über 240 Fachgeschäften, welches eine gern genutzte Alternative zur Hamburger Innenstadt darstellt, ist in unmittelbarer Nähe.
In der Umgebung befinden sich mehrere Bildungseinrichtungen, darunter die Grundschule Müssenredder, das Carl-von-Ossietzky-Gymnasium und das Heinrich-Heine-Gymnasium sowie diverse Kindergärten. Alle sind gut erreichbar mit dem Auto, zu Fuß oder öffentlichen Verkehrsmitteln.
Der nahe gelegene Alsterlauf lädt mit seinen zahlreichen Wanderwegen zu traumhaften Freizeitaktivitäten wie z.B. Spaziergänge, Rad- und Bootstouren. Sport- und Wellnessclubs wie UHC, MeridianSpa und Aspria Alstertal befinden sich in der Nähe. Der Golfclub Treudelberg ist in etwa fünf Minuten mit dem Auto erreichbar.
Die Hamburger Innenstadt und der Flughafen Fuhlsbüttel sind mit dem Auto über den Ring 3 schnell erreichbar. Eine gute Anbindung an den öffentlichen Nahverkehr besteht ebenfalls. Die nächstgelegene Bushaltestelle ist fußläufig nur ca. zwei Minuten entfernt und lässt die S-Bahn-Station Poppenbüttel mit u.a. direktem Anschluss zum Flughafen schnell und bequem erreichen.
Sonstige Angaben
Die vom Käufer im Falle eines Ankaufs an die DAHLER & COMPANY Alstertal GmbH & Co. KG zu zahlende Provision beträgt 3,57 % inkl. der gesetzl. MwSt. bezogen auf den Kaufpreis.
Grundriss
Erdgeschoss
>
>
1. Obergeschoss
>
>
Dachgeschoss
>
>
Untergeschoss
>
>
Adresse
22391 Hamburg
Interessante Orte
Preis- und Lageinformationen
Preistrend für Bestandsimmobilien in Poppenbüttel