Dieses gepflegte Einfamilienhaus befindet sich in ruhiger Randlage von Alzey-Schaffhausen, in unmittelbarer Nähe zum Unternehmen Eli Lilly. Das Haus steht auf einem großzügigen Grundstück mit 1.027 m² und bietet viel Platz für Familien, Gartenliebhaber.
Die Immobilie überzeugt durch ihre solide Bauweise.Aufgrund des Baujahres empfiehlt sich eine Renovierung, um das Haus an moderne Wohnansprüche anzupassen.
Das Gebäude ist voll unterkellert und bietet zudem Ausbaumöglichkeiten im Untergeschoss – beispielsweise zur Einliegerwohnung, dank separatem Zugang.
Einfamilienhaus mit großem Grundstück, Garage und Ausbaupotenzial in Alzey-Schafhausen
Kartenberger Weg 17,
55232 Alzey
Auf Karte anzeigen
Finanzierungszertifikat
In nur zwei Minuten zu Ihrem persönlichen Finanzierungszertifkat.
Infos
| Haustyp | Einfamilienhaus |
|---|---|
| Etagenzahl | 2 |
| Wohnfläche ca. | 130 m2 |
| Nutzfläche | 75 m2 |
| Grundstücksfläche | 1.027 m2 |
| Bezugsfrei ab | sofort |
| Zimmer | 4 |
| Schlafzimmer | 3 |
| Badezimmer | 2 |
| Garage/Stellplatz | Garage |
| Anzahl Garage/Stellplatz | 3 |
Kosten
| Kaufpreis |
394.500 € |
|---|---|
| Preis für Garage/Stellplatz | 0 € |
| Provision |
14.000€ Die Käuferprovision in Höhe von 3,57 % ist fällig und zahlbar nach Abschluss des notariellen Kaufvertrags. Ein Vertrag mit gleichem Inhalt wurde mit dem Verkäufer geschlossen. |
Finanzierungsrechner:
Kaufpreis:
600.000 €
Eigenkapital:
600.000 €
Monatliche Rate
0 €
Effektiver Jahreszins
0 %
Sollzinsbindung
10 Jahre
Bausubstanz & Energieausweis
| Baujahr | 1977 |
|---|---|
| Letzte Sanierung | 1994 |
| Bauphase | Haus fertig gestellt |
| Objektzustand | Gepflegt |
| Qualität der Austattung | Normal |
| Heizungsart | Gas-Heizung |
| Wesentliche Energieträger | Gas |
| Energieausweis | liegt zur Besichtigung vor |
Beschreibung des Objekts
Ausstattung
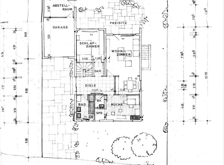
Erdgeschoss (EG):
2 helle Zimmer
Küche mit angrenzender Speisekammer
Tageslichtbad mit Wanne und Dusche
Abstellkammer
Dachgeschoss (DG):
2 Schlafzimmer
Duschbad
Speicher
Kellergeschoss (KG):
2 Zimmer (Ausbaupotenzial zur Einliegerwohnung)
2 weitere Kellerräume
Heizraum
Außenbereich:
Große Terrasse mit Blick in den Garten
Garage mit angrenzendem Werkstattbereich
Großzügiger Garten mit vielfältigen Nutzungsmöglichkeiten
Lage
Die Immobilie befindet sich in Alzey-Schaffhausen, einem Stadtteil von Alzey, in ruhiger Randlage.
Die Nähe zu Eli Lilly macht das Objekt besonders interessant für Beschäftigte des Unternehmens.
Einkaufsmöglichkeiten, Schulen, Kindergärten sowie Bus- und Bahnanschlüsse sind in wenigen Minuten erreichbar.
Die Verkehrsanbindung an die A61 und A63 ist hervorragend – Mainz, Worms und Kaiserslautern sind gut erreichbar.
Weitere Dokumente
PläneAdresse
Kartenberger Weg 17, 55232 Alzey
Interessante Orte
Preis- und Lageinformationen
Preistrend für Bestandsimmobilien in Alzey