Für Bauherren, die das Besondere lieben: Das Massivhaus Aura bietet pure Entfaltung für die gesamte Familie. Große und lichtdurchflutete Räume bieten eine unverwechselbare Wohlfühl-Atmosphäre.
Im Erdgeschoss befindet sich der helle Wohn- und Essbereich mit offener Küche. Durch einen Flur gelangt man in das Gästezimmer. Praktisch ist das direkt angrenzende Duschbad für den Gast. Das Lifestyle-Haus Aura ist ein Haus für Gartenfreunde: In diesem Haus kommen Sie aus allen Räumen im Erdgeschoss direkt in den Garten.
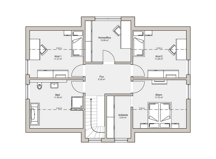
Das Dachgeschoss bietet zwei große Kinderzimmer, ein Home-Office und das Eltern-Schlafzimmer mit separater Ankleide. Das Badezimmer wird aufgrund der Größe und Aufteilung schnell zur individuellen Wellness-Landschaft.
Ein Familienhaus mit besonderer Ausstrahlung!
Dieses Haus wird nach Ihren individuellen Wünschen geplant und ausgestattet!
Vereinbaren Sie einen Termin und besuchen unser Musterhaus Aura in Ransbach-Baumbach!
Klassisches Wohnkonzept in Frücht!
56132 Frücht
Die vollständige Adresse der Immobilie erhalten Sie vom Anbieter.
Auf Karte anzeigen
Die vollständige Adresse der Immobilie erhalten Sie vom Anbieter.
Finanzierungszertifikat
In nur zwei Minuten zu Ihrem persönlichen Finanzierungszertifkat.
Infos
| Haustyp | Einfamilienhaus |
|---|---|
| Wohnfläche ca. | 159 m2 |
| Grundstücksfläche | 640 m2 |
| Zimmer | 6 |
| Schlafzimmer | 5 |
| Badezimmer | 1 |
| Anzahl Garage/Stellplatz | 2 |
Kosten
| Kaufpreis |
501.900 € |
|---|---|
| Provision | Nein |
Finanzierungsrechner:
Kaufpreis:
600.000 €
Eigenkapital:
600.000 €
Monatliche Rate
0 €
Effektiver Jahreszins
0 %
Sollzinsbindung
10 Jahre
Bausubstanz & Energieausweis
| Baujahr | 2026 |
|---|---|
| Bauphase | Haus in Planung (projektiert) |
| Objektzustand | Erstbezug |
| Qualität der Austattung | Gehoben |
| Heizungsart | Wärmepumpe |
| Wesentliche Energieträger | Strom |
| Energieausweis | liegt vor |
| Energieausweistyp | Bedarfsausweis |
| Energieverbrauchskennwert | 19,0 kWh/(m²*a) |
| Energieeffizienzklasse | A+ |
19,0
kWh/(m²*a)
Energieeffizienzklasse A+
- A+
- A
- B
- C
- D
- E
- F
- G
- H
- 0
- 25
- 50
- 75
- 100
- 125
- 150
- 175
- 200
- 225
- >250
Beschreibung des Objekts
Ausstattung
6 Zimmer, Küche, Diele, Dusche, 2 x Flur, Bad, Ankleide, Hauswirtschaftsraum
Das gezeigte Traumhaus im Überblick:
+ Schlüsselfertiges Massivhaus im Sinne der Ausstattungsbeschreibung "Edition 25"
+ Zukunftsorientierte Energieausstattung in Form einer Luft-Wasser-Wärmepumpe und Fußbodenheizung sowie einer kontrollierten Wohnraumlüftung mit Wärmerückgewinnung
+ Inklusive Bodenplatte
Beste Markenausstattung in jedem Kern-Haus:
+ Zimmermannsmäßiger Dachstuhl aus Konstruktionsvollholz
+ Dacheindeckung mit Betondachsteinen von Braas
+ Hochwertiger Kunstharz-Außenputz für eine langlebige Fassade
+ Vollständige Badausstattung von Villeroy & Boch mit Badewanne und flacher Duschwanne sowie einer Echtglasduschkabine
+ Fliesen von Villeroy & Boch in Bad und WC
+ Haustür mit 5-fach-Sicherheitsverriegelung
+ Erstklassige Innentüren der Marke Herholz
+ Fenster mit 3-Scheiben-Wärmeschutzverglasung und Rollläden
+ Stahl-Holz-Treppe mit individueller Farbgestaltungsmöglichkeit
+ Vollständige und überdurchschnittliche Elektroausstattung inklusive Klingelanlage und Netzwerkdosen
+ Rauchmelder für Ihre Sicherheit
+ Alle Leistungen aus einer Hand
+ Alle Planungs- und Architektenleistungen
+ Einsatz regionaler Handwerksbetriebe
+ Baubegleitende 5-Phasen-TÜV-Prüfung und Blower-Door-Test
+ Individuelle Anpassung auf Ihre Bedürfnisse
+ Auf Wunsch mit Keller erhältlich
+ Auf Wunsch mit weiteren Energietechniken erhältlich
Lage
Das Baugrundstück von ca. 640 Quadratmetern befindet sich am Ortsrand von Frücht.
Der idyllische Ort Frücht ist eine Ortsgemeinde im Rhein-Lahn-Kreis und gehört der Verbandsgemeinde Bad Ems-Nassau an.
Über die Bundesstraße 260 erreichen Sie den Ort, in der Ortsmitte befindet sich eine Bushaltestelle.
Nächste Einkaufsmöglichkeiten bestehen im nahe gelegenen Bad Ems und Lahnstein. Die Jüngsten der Gemeinde Frücht können den Kindergarten fußläufig besuchen. Für Abwechslung in der Freizeit sorgen der Tennisverein, Turn- und Spielverein, ein Madolinenclub und der Heimatverein.
Erkunden Sie die Lahn mit dem Kanu oder radeln auf den zahlreichen Lahntalradwegen.
Entdecken Sie in Frücht einen neuen Lebensraum für sich und Ihre Familie!
Sonstige Angaben
Kern-Haus baut individuelle und massive Architektenhäuser zu einem attraktiven Preis-Leistungs-Verhältnis – und das bereits mit einer Erfahrung seit 1980. Bei Kern-Haus erhalten Sie unter anderem 10 Jahre Gewährleistung auf die wesentlichen Bauleistungen, bis zu 24 Monate Preissicherheit sowie eine dokumentierte 5-Phasen-TÜV-Prüfung während der Bauphase. Jedes Kern-Haus als Effizienzhaus 40 ist bereits QNG-zertifiziert durch die Deutsche Gesellschaft für nachhaltiges Bauen (DGNB).
40 Jahre Expertise für das massive, energieeffiziente Bauen: Kern-Haus realisiert Massivhäuser in Ziegel, Bims, Porenbeton oder Stahlbeton (DuoTherm).
Kern-Haus setzt auf eine hohe Bauqualität der Handwerker und auf eine große Auswahl starker Marken. So verwendet Kern-Haus beim Bau Ihres Hauses nur hochwertige Markenprodukte renommierter Hersteller – wie etwa Produkte von Villeroy & Boch.
Preise und Auszeichnungen von Kern-Haus:
- German Brand Award in den Jahren 2018 und 2021
- Hausbau Design Award: Sieger in den Jahren 2017, 2018, 2019, 2020, 2021, 2022 und 2023
- Deutscher Traumhauspreis: Sieger in den Jahren 2014, 2015, 2016 und 2018 und Silber 2017, 2020 und 2021
- Mittelstandspreis "Top 100" in den Jahren 2014, 2016, 2018, 2020 und 2022
- German Design Award im Jahr 2018
Weitere Informationen
Der gezeigte Preis versteht sich inklusive Grundstück und exklusive der Baunebenkosten.
Grundriss
Grundriss Erdgeschoss
>
>
Grundriss Dachgeschoss
>
>
Adresse
56132 Frücht
Interessante Orte
Preis- und Lageinformationen
Preistrend für Bestandsimmobilien in Frücht