Dieses Einfamilienhaus mit Einliegerwohnung wurde 2006 in massiver Bauweise errichtet und überzeugt mit 185 m² Wohnfläche auf einem 554 m² großen Grundstück. Vor dem Haus stehen vier Stellplätze sowie ein Carport zur Verfügung. Das Gebäude ist vollständig gedämmt, wird mit Gas beheizt und verfügt zusätzlich über eine Photovoltaikanlage aus dem Jahr 2022 mit 7,47 kWp und einem zehn Kilowatt Speicher. In den letzten Jahren wurden zahlreiche Modernisierungen durchgeführt: 2022 entstand ein neues Gäste-WC im Erdgeschoss, 2024 folgte die Sanierung der Bäder im Obergeschoss und in der Einliegerwohnung, zudem wurden sämtliche Innentüren ausgetauscht und der Bodenbelag im Erdgeschoss erneuert.
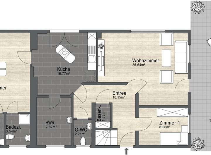
Im Eingangsbereich des Haupthauses befindet sich ein Büro, über einen kleinen Flur gelangt man in den Wohnbereich mit Klimaanlage und Zugang auf die Terrasse mit Blick in den Garten. Von hier erreicht man auch die großzügig angelegten Hobbyräume. Die Küche aus 2008 ist mit modernen Geräten ausgestattet und grenzt an einen praktischen Hauswirtschaftsraum. Über die Küche besteht der direkte Zugang zur Einliegerwohnung, die vollständig autark ist und sich auch hervorragend für eine gewerbliche Nutzung eignet. Aktuell bietet sie einen großen Raum mit Klimaanlage, ein Badezimmer mit Dusche sowie einen Abstellraum, der bei Bedarf in ein weiteres Zimmer aufgeteilt werden kann.
Im Obergeschoss des Haupthauses erwarten Sie ein großes Schlafzimmer, ein Kinderzimmer sowie ein Durchgangszimmer, das in ein weiteres Kinderzimmer mit Klimaanlage führt. Das modernisierte Badezimmer mit großer, ebenerdiger Dusche ist an eine Ankleide mit Waschmaschinenanschluss angebunden.
Das Grundstück ist pflegeleicht angelegt und bietet hinter dem Carport einen Anbau, der derzeit als Fitnessraum genutzt wird und mit modernen Elektroheizkörpern ausgestattet ist. Ein weiterer Abstellraum sowie zusätzlicher Stauraum im Dachstuhl des Haupthauses runden das Platzangebot ab.
Das Haus präsentiert sich in einem bezugsfertigen Zustand und vereint modernes Wohnen mit vielseitigen Nutzungsmöglichkeiten – ideal für Familien, Mehrgenerationen oder die Verbindung von Wohnen und Arbeiten.
Ruhig, naturnah und bestens angebunden: Familien willkommen in Vordorf
38533 Vordorf
Die vollständige Adresse der Immobilie erhalten Sie vom Anbieter.
Auf Karte anzeigen
Die vollständige Adresse der Immobilie erhalten Sie vom Anbieter.
Finanzierungszertifikat
In nur zwei Minuten zu Ihrem persönlichen Finanzierungszertifkat.
Infos
| Haustyp | Einfamilienhaus |
|---|---|
| Wohnfläche ca. | 185 m2 |
| Grundstücksfläche | 554 m2 |
| Bezugsfrei ab | nach Vereinbarung |
| Zimmer | 6 |
| Schlafzimmer | 5 |
| Badezimmer | 2 |
| Garage/Stellplatz | Carport |
| Anzahl Garage/Stellplatz | 5 |
Kosten
| Kaufpreis |
447.000 € |
|---|---|
| Provision |
3,57 % Käuferprovision inkl. gesetzl. MwSt. Die Käufer-Provision beträgt 3,57% vom Kaufpreis inkl. MwSt. Die Käufer-Provision ist verdient und fällig mit notarieller Beurkundung. Der Immobilienmakler hat einen provisionspflichtigen Maklervertrag in gleicher Höhe mit dem Verkäufer abgeschlossen. |
Finanzierungsrechner:
Kaufpreis:
600.000 €
Eigenkapital:
600.000 €
Monatliche Rate
0 €
Effektiver Jahreszins
0 %
Sollzinsbindung
10 Jahre
Bausubstanz & Energieausweis
| Baujahr | 2006 |
|---|---|
| Objektzustand | Modernisiert |
| Heizungsart | Gas-Heizung |
| Wesentliche Energieträger | Gas |
| Energieausweis | liegt vor |
| Energieausweistyp | Verbrauchsausweis |
| Energieverbrauchskennwert | 76,2 kWh/(m²*a) |
| Energieeffizienzklasse | C |
76,2
kWh/(m²*a)
Energieeffizienzklasse C
- A+
- A
- B
- C
- D
- E
- F
- G
- H
- 0
- 25
- 50
- 75
- 100
- 125
- 150
- 175
- 200
- 225
- >250
Beschreibung des Objekts
Ausstattung
• Eigentumsgrundstück
• Massivbau 2006, Anbau 2009
• PV Anlage 7,47 kwP
• moderne Einbauküche
• 4 Schlafzimmer
• Einliegerwohnung mit Bad und Abstellraum
• Hauptbad mit Dusche
• Gäste-WC
• 2-fach verglaste Fenster (tlw. mit Außenrollläden)
• Gasheizung
• Carport und 4+ Außenstellplätze
• Spitzboden als Lagerfläche
• Glasfaseranschluss
• großzügiger Garten mit Hobbyräumen
Lage
Vordorf liegt im Landkreis Gifhorn, im südlichen Zipfel der Samtgemeinde Papenteich, und zählt heutzutage etwa 3.100 Einwohner.  Die Gemeinde umfasst die Ortsteile Vordorf, Rethen und Eickhorst und grenzt direkt an die Stadt Braunschweig – das schafft eine reizvolle Verbindung zwischen ruhigem Landleben und guter Erreichbarkeit städtischer Angebote. 
Für Familien bietet Vordorf eine ausgesprochen attraktive Umgebung. Die Gemeinde gehört zu einem bevorzugten Wohngebiet südlich des Landkreises, in landschaftlich schön gelegener Umgebung mit grünen Feldern, sanften Hügeln und Spazierwegen – ideal, um mit Kindern draußen aktiv zu sein.  In unmittelbarer Nähe existieren Kindergärten und seit 2023 ein Waldkindergarten sowie eine Grundschule (Margret-und-Rolf-Rettich-Schule) – wichtig, damit die Kleinsten kurze Wege haben.  Für weiterführende Schulen fahren viele Familien nach Meine, Gifhorn oder Braunschweig, die mit dem Auto oder öffentlichen Verkehrsmitteln gut erreichbar sind.
Die verkehrliche Anbindung ist ein weiterer Pluspunkt. Durch die Nähe zu Braunschweig und Anschluss an überregionale Straßen ist man rasch in den Städten, aber zugleich entfernt vom hektischen Stadttrubel.  Für Familien ist das besonders angenehm: man genießt Ruhe und Freiraum, hat aber Schulen, Einkaufsmöglichkeiten und Freizeitangebote in erreichbarer Nähe.
Auch das soziale Leben spielt eine Rolle: Vordorf verfügt über ein aktives Dorfleben, Vereine und Gemeinschaftsprojekte, eine städtische Infrastruktur in erreichbarer Nähe und Angebote für Kinder und Eltern – z. B. das Elternprogramm (PEP) der Samtgemeinde Papenteich unterstreicht die familienorientierte Ausrichtung. 
Zusammengefasst: Vordorf ist für Familien eine ideale Kombination aus naturnahem Wohnen, infrastruktureller Anbindung und guter sozialer Struktur – ein Ort, in dem Kinder wachsen und Familien leben können, ohne auf städtischen Komfort zu verzichten.
Sonstige Angaben
Gerne sind wir für weitere Fragen und Informationen unter Tel. 05361/83446-70 erreichbar.
Bei Kauf verpflichtet sich der Käufer an die Kristin Krumm Immobilien GmbH eine Maklerprovision in der angegebenen Höhe nach notariellem Kaufvertrag zu leisten. Durch Ihre Objektanfrage bestätigen Sie die Vereinbarung und Anerkennung dieser Maklercourtage.
Anfragen über die Immobilienportale werden nur mit vollständiger Adresse und Telefonnummer bearbeitet.
HAFTUNGSAUSSCHLUSS: Alle Angaben stammen vom Eigentümer. Trotz regelmäßiger Prüfung von Daten, Bildern und Informationen übernehmen wir keine Haftung für die Richtigkeit der Angaben. Ebenso wenig für die Verfügbarkeit des Angebotes.
Es gelten unsere Allgemeinen Geschäftsbedingungen.
Grundriss
Grundriss Erdgeschoss
>
>
Grundriss Obergeschoss
>
>
Adresse
38533 Vordorf
Interessante Orte
Preis- und Lageinformationen
Preistrend für Bestandsimmobilien in Vordorf