Dieses charmante Reihenendhaus in Darmstadt-Eberstadt bietet mit 112 m² Wohnfläche und einem Grundstück von 342 m², zzgl. einer 16 m² Garage auf der gegenüberliegenden Straßenseite, ideale Voraussetzungen für Familien oder Paare, die sich ihren Wohntraum verwirklichen möchten. Das im Jahr 1970 erbaute Haus überzeugt durch seine großzügige Raumaufteilung und bietet vielfältige Gestaltungsmöglichkeiten.
Bereits beim Betreten des Hauses empfängt Sie im Erdgeschoss ein freundlicher Eingangsbereich, von dem aus Sie in das praktische Gäste-WC gelangen. Herzstück des Hauses ist das lichtdurchflutete Wohnzimmer, das mit einem stilvollen Parkettboden ausgestattet ist und durch die großen Fenster einen schönen Blick in den Garten ermöglicht. Die Küche ist praktisch geschnitten und bietet alle Voraussetzungen für die Zubereitung gemeinsamer Mahlzeiten. Direkt gegenüber liegt das separate Esszimmer, das eine gemütliche Umgebung für das gesellige Beisammensein schafft.
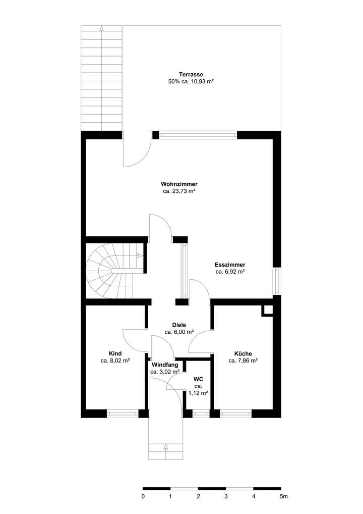
In der oberen Etage stehen Ihnen insgesamt vier helle Zimmer zur Verfügung, die ganz nach Ihren Wünschen als Schlafzimmer, Kinderzimmer, Arbeits- oder Gästezimmer genutzt werden können. Das Tageslichtbad überzeugt mit klassischer Ausstattung, einem Heizkörper sowie einer zusätzlichen elektrischen Fußbodenheizung, die an kühlen Tagen für wohlige Wärme sorgt.
Das Haus wird über Fernwärme beheizt und verfügt zudem über eine moderne Entkalkungsanlage, die die Wasserqualität im gesamten Haus verbessert. Ein weiterer Pluspunkt: Die Immobilie ist vollunterkellert und bietet dadurch nicht nur reichlich Stauraum, sondern auch einen direkten Treppenzugang vom Keller in den Garten – praktisch und komfortabel zugleich.
Der Außenbereich des Hauses lädt mit einer Terrasse und einem sonnigen Garten zum Entspannen und Verweilen im Freien ein. Er eröffnet vielfältige Möglichkeiten, um eine grüne Oase nach den eigenen Vorstellungen zu gestalten – sei es mit Blumen, Beeten oder einer modernen Lounge-Ecke.
Dieses Reihenendhaus bietet ein großzügiges Platzangebot und eine klar strukturierte Raumaufteilung. In der ruhigen, gewachsenen Lage von Darmstadt-Eberstadt profitieren Sie von einer harmonischen Verbindung aus städtischer Nähe, naturnaher Umgebung und guter Infrastruktur.
Wir freuen uns auf Ihre Anfrage!
Familienfreundliches Reihenendhaus mit hervorragender Anbindung in Darmstadt-Eberstadt
64297 Darmstadt
Die vollständige Adresse der Immobilie erhalten Sie vom Anbieter.
Auf Karte anzeigen
Die vollständige Adresse der Immobilie erhalten Sie vom Anbieter.
Finanzierungszertifikat
In nur zwei Minuten zu Ihrem persönlichen Finanzierungszertifkat.
Infos
| Haustyp | Reiheneckhaus |
|---|---|
| Wohnfläche ca. | 112 m2 |
| Grundstücksfläche | 358 m2 |
| Zimmer | 6 |
| Schlafzimmer | 4 |
| Badezimmer | 1 |
| Garage/Stellplatz | Garage |
| Anzahl Garage/Stellplatz | 1 |
Kosten
| Kaufpreis |
495.000 € |
|---|---|
| Provision |
3.57 % inkl. gesetzl. MwSt. |
Finanzierungsrechner:
Kaufpreis:
600.000 €
Eigenkapital:
600.000 €
Monatliche Rate
0 €
Effektiver Jahreszins
0 %
Sollzinsbindung
10 Jahre
Bausubstanz & Energieausweis
| Baujahr | 1970 |
|---|---|
| Objektzustand | Renovierungsbedürftig |
| Wesentliche Energieträger | Fernwärme |
| Energieausweis | liegt vor |
| Energieausweistyp | Bedarfsausweis |
| Energieverbrauchskennwert | 234,7 kWh/(m²*a) |
| Energieeffizienzklasse | G |
234,7
kWh/(m²*a)
Energieeffizienzklasse G
- A+
- A
- B
- C
- D
- E
- F
- G
- H
- 0
- 25
- 50
- 75
- 100
- 125
- 150
- 175
- 200
- 225
- >250
Beschreibung des Objekts
Ausstattung
Abstellkammer
Arbeitszimmer
Einbauküche
Blick ins Grüne
Parkett
Teppich
Fliesen
Vollunterkellert
Lage
Eberstadt, ein beliebter und gewachsener Stadtteil im Süden von Darmstadt, zeichnet sich durch eine angenehme Wohnatmosphäre, gute Infrastruktur und die direkte Nähe zur Natur aus.
Alle Einrichtungen des täglichen Bedarfs wie Supermärkte oder Bäckereien sind in wenigen Minuten erreichbar. Auch Kindergärten, Schulen und verschiedene Freizeit- und Sportangebote, darunter das Mühltalbad, befinden sich in der Umgebung und machen den Standort besonders familienfreundlich.
Die Anbindung an den öffentlichen Nahverkehr ist sehr gut: Straßenbahn- und Bushaltestellen liegen in der Nähe, und der Eberstädter Bahnhof ist mit dem Auto oder Fahrrad schnell erreichbar. Von hier bestehen direkte Zugverbindungen in die Darmstädter Innenstadt sowie in das gesamte Rhein-Main-Gebiet. Ebenfalls liegt die Autobahnauffahrt auf die A5 oder A67 nur etwa 900 Meter entfernt, sodass auch umliegende Städte wie Frankfurt am Main oder Heidelberg bequem erreichbar sind.
Ein weiterer Pluspunkt ist die Nähe zur Natur: Der Odenwald und die Bergstraße liegen praktisch vor der Haustür und bieten zahlreiche Möglichkeiten für Spaziergänge, Radtouren und Erholung im Grünen. Gleichzeitig profitieren Sie von einer sehr guten städtischen Infrastruktur.
Damit verbindet die Lage der Immobilie komfortable Erreichbarkeit, ruhiges Wohnen und naturnahe Lebensqualität – ideal für Familien, Berufspendler und Naturliebhaber.
Sonstige Angaben
Der Makler-Vertrag mit uns und/oder unserem Beauftragten kommt durch die Beauftragung der Maklertätigkeit in Textform (z.B. E-Mail mit Bestätigung der gewollten Inanspruchnahme) zustande. Die Höhe der Courtage richtet sich nach den ab dem 23.12.2020 in Kraft getretenen gesetzlichen Regelungen zur Teilung der Maklercourtage. Hiernach wird die Courtage regelmäßig für beide Parteien (Eigentümer und Käufer) jeweils in Höhe von 3 % zuzüglich Umsatzsteuer in jeweils geltender Höhe, derzeit also insgesamt 3,57 % des Kaufpreises einschließlich Umsatzsteuer bei notariellem Vertragsabschluss verdient und fällig. Die Höhe der Bruttocourtage unterliegt einer Anpassung bei Steuersatzänderung, Grunderwerbssteuer, Notar- und Gerichtskosten trägt der Käufer.
Grundriss
Kellergeschoss
>
>
Erdgeschoss
>
>
Obergeschoss
>
>
Adresse
64297 Darmstadt
Interessante Orte
Preis- und Lageinformationen
Preistrend für Bestandsimmobilien in Eberstadt