Kurz vor Berne, am südlichsten Zipfel von Sase in absolut ruhiger Umgebung liegt diese 95m² große Doppelhaushälfte.
Das Erdgeschoss besteht aus einem offenen Wohn-Esszimmer, einem Flur, der Küche sowie einem Gäste-WC.
Das Wohn-Esszimmer als auch die Küche haben jeweils Zugang zu einer Terrasse. So haben sie tagsüber immer einen sonnigen Platz unter freiem Himmel.
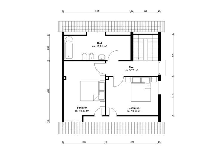
Direkt vom Eingang gelangen Sie ins Obergeschoss, wo sich aktuell zwei Schlafzimmer sowie ein geräumiges Badezimmer befinden. Aufgrund des hohen bisher ungenutzten Spitzbodens besteht hier Ausbaupotenzial.
Zur Geschichte: die beiden Haushälften liegen noch auf einem Flurstück, das zum Verkauf geteilt wird. Es ist angedacht, das aktuell 1138m² große Gesamtgrundstück in zwei Grundstücke zu teilen, sodass hier 688m² angeboten werden. Auch die linke Haushälfte steht über Wohntalent Immobilien zum Verkauf.
Küche, Badezimmer und Heizung (Niedertemperaturgerät und DLE 2014) wurden in der Vergangenheit bereits getauscht und sind voll benutzbar. Das Dach ist aus dem Ursprungsbaujahr, die Fenster aus den 1970er Jahren. Alles in allem besteht Handlungsbedarf, um heutige Energiestandards zu erreichen.
Auf dem Grundstück stehen noch eine Garage sowie ein in den 1970er Jahren errichteter Pavillon, der hohe Aufenthalts- und Nutzungsmöglichkeiten bieten kann.
Doppelhaushälfte mit gr. Grundstück Sasel Süd - zum Sanieren
22159 Hamburg
Die vollständige Adresse der Immobilie erhalten Sie vom Anbieter.
Auf Karte anzeigen
Die vollständige Adresse der Immobilie erhalten Sie vom Anbieter.
Finanzierungszertifikat
In nur zwei Minuten zu Ihrem persönlichen Finanzierungszertifkat.
Infos
| Haustyp | Doppelhaushaelfte |
|---|---|
| Wohnfläche ca. | 95 m2 |
| Nutzfläche | 20 m2 |
| Grundstücksfläche | 688 m2 |
| Bezugsfrei ab | sofort |
| Zimmer | 3 |
| Schlafzimmer | 2 |
| Badezimmer | 2 |
| Garage/Stellplatz | Garage |
| Anzahl Garage/Stellplatz | 1 |
Kosten
| Kaufpreis |
459.000 € |
|---|---|
| Provision |
13770€ §% inkl. MwSt. vom beurkundeten Kaufpreis. Verdient und fällig mit Beurkundung des notariellen Kaufvertrags. |
Finanzierungsrechner:
Kaufpreis:
600.000 €
Eigenkapital:
600.000 €
Monatliche Rate
0 €
Effektiver Jahreszins
0 %
Sollzinsbindung
10 Jahre
Bausubstanz & Energieausweis
| Baujahr | 1956 |
|---|---|
| Objektzustand | Renovierungsbedürftig |
| Qualität der Austattung | Einfach |
| Heizungsart | Zentralheizung |
| Wesentliche Energieträger | Gas |
| Energieausweis | liegt vor |
| Energieausweistyp | Bedarfsausweis |
| Energieverbrauchskennwert | 282,5 kWh/(m²*a) |
Beschreibung des Objekts
Lage
Dieses ruhige Haus/ Grundstück liegt umgeben von Siedlungshäusern der 30er, 50er und 60er Jahre in der südlichsten Straße Sasels zu Berne. Aktuell werden viele Häuser neugebaut und die Bewohnerschaft verjüngt sich.
Ruhige Nachbarschaft sowie die direkte Nähe zu See, Wiesen und dem Berner Wald bieten Naherholung vor der eigenen Haustür.
Sonstige Angaben
Sollten wir ihr Interesse geweckt haben, bieten wir ihnen gerne eine Besichtigung zu Ihrem Wunschtermin an. Selbstverständlich nur Einzelbesichtigungen.
Sie erreichen uns unter 04102-218 39 80 (Büro) sowie gerne auch unter 0176-999 888 77 in der Zeit von 9-18Uhr.
Bitte haben Sie Verständnis dafür, dass wir nur Anfragen mit vollständigen Kontaktangaben (Name, Adresse und Telefonnummer) beantworten.
Nur Einzelbesichtigungen. Bei den angegebenen Wohn- und Nutzflächen handelt es sich um ca. Maße und wurden uns von Dritten zur Verfügung gestellt. Wir weisen ausdrücklich darauf hin, dass die genannte Wohn- und Nutzfläche von der DIN-Wohnflächenberechnung abweichen kann. Alle Maße sind ca.-Maße und bei Bedarf vor Ort zu prüfen.
Die Angaben in diesem Exposé erfolgen daher ohne jede Gewähr. Maßgeblich sind die im Kaufvertrag geschlossenen Vereinbarungen. Wir bitten um Ihr Verständnis.
Die Verkaufsaufgabe wurde nach bestem Wissen sorgfältig zusammengestellt. Unser Exposé beruht auf den Angaben unserer Auftraggeber. Eine Haftung hierfür kann daher nicht übernommen werden.
Die Provision beträgt 3 % inkl. MwSt. je Käufer und Verkäufer auf den Verkaufspreis.
Adresse
22159 Hamburg
Interessante Orte
Preis- und Lageinformationen
Preistrend für Bestandsimmobilien in Sasel