Charmante, teils sanierte Hofreite mit 5 Wohneinheiten in ruhiger Lage von Ober-Ramstadt / Ober-Modau
Diese im Jahr 2016 teils neu erbaute und teils liebevoll sanierte ehemalige Hofreite vereint historischen Charme mit modernem Wohnkomfort. Auf einer großzügigen Wohnfläche von rund 470 m² und einem Grundstück von ca. 890 m² bietet das Anwesen vielfältige Nutzungsmöglichkeiten – ideal für Mehrgenerationen-Wohnen, als Mehrfamilienhaus oder zur Kombination von Wohnen und Arbeiten.
Die insgesamt 5 separaten Wohneinheiten sind hell und freundlich gestaltet. Große Fensterflächen sorgen für viel Tageslicht und schaffen eine angenehme Wohnatmosphäre.
Ein besonderes Highlight ist die wunderschön umgebaute Scheune mit ihrer beeindruckenden Raumhöhe – perfekt für alle, die das Besondere lieben.
Auch der Außenbereich lädt zum Verweilen ein: Eine gepflegte Anlage mit Sauna und großzügigem Grillplatz bietet Raum für entspannte Stunden im Freien mit Familie und Freunden.
Die Lage in Ober-Modau ist ruhig und dennoch zentral. Einkaufsmöglichkeiten, Schulen und öffentliche Verkehrsmittel befinden sich in unmittelbarer Nähe. Die Umgebung bietet zudem viele Möglichkeiten für Natur- und Freizeitaktivitäten – ideal für Naturliebhaber.
Im hinteren Bereich des Anwesens gab es vor einiger Zeit einen Wasserschaden. Die betroffenen Wandbereiche sind getrocknet, jedoch werden weitere Sanierungsarbeiten nicht mehr durchgeführt – diese können vom Käufer individuell übernommen und nach eigenen Vorstellungen umgesetzt werden.
Dieses Anwesen bietet eine seltene Gelegenheit, ein Stück Geschichte mit modernem Komfort zu verbinden und dabei Raum für persönliche Gestaltungsideen zu haben.
Kurzinfos:
• Wohnfläche: ca. 460 m²
• Grundstück: ca. 890 m²
• 5 Wohneinheiten
• Teils Neubau, teils Sanierung (2016)
• Highlights: umgebaute Scheune, Aussen-Sauna, Grillplatz
• Ruhige, zentrale Lage in Ober-Ramstadt / Ober-Modau
• Wasserschaden im hinteren Bereich: Sanierungsarbeiten laufen
Wunderschöne, sanierte Hofreite mit 5 Wohnungen in Modau | Ober-Ramstadt
64372 Ober-Ramstadt
Die vollständige Adresse der Immobilie erhalten Sie vom Anbieter.
Auf Karte anzeigen
Die vollständige Adresse der Immobilie erhalten Sie vom Anbieter.
Finanzierungszertifikat
In nur zwei Minuten zu Ihrem persönlichen Finanzierungszertifkat.
Infos
| Haustyp | Mehrfamilienhaus |
|---|---|
| Wohnfläche ca. | 460 m2 |
| Grundstücksfläche | 890 m2 |
| Bezugsfrei ab | nach Vereinbarung |
| Zimmer | 12 |
Kosten
| Kaufpreis |
1.450.000 € |
|---|---|
| Provision |
3,95 inkl. MwSt. |
Finanzierungsrechner:
Kaufpreis:
600.000 €
Eigenkapital:
600.000 €
Monatliche Rate
0 €
Effektiver Jahreszins
0 %
Sollzinsbindung
10 Jahre
Bausubstanz & Energieausweis
| Baujahr | 2016 |
|---|---|
| Letzte Sanierung | 2016 |
| Objektzustand | Saniert |
| Qualität der Austattung | Gehoben |
| Energieausweis | liegt zur Besichtigung vor |
Beschreibung des Objekts
Ausstattung
+ Vollständig, modern sanierte Hofreite aus 2016
+ Liebhaber Objekt mit guter Renditemöglichkeit
+ 5 moderne Wohneinheiten ( 4 davon vermietet )
+ 460 m² Wohnfläche
+ 890 m² Grundstücksfläche
+ Sehr schöne Außenanlage / Innenhof
+ 6 Stellplätze
+ Flüssiggas Heizung
+ Traumhafter Scheuenumbau mit 170 m² Wohnfläche und Aussensauna. Bezugsfrei!
Lage
Das Mehrfamilienhaus befindet sich in Ober-Ramstadt, einem idyllischen Stadtteil im Odenwald. Bekannt für seine grünen Hügel und Wälder bietet dieser Stadtteil eine ruhige und entspannte Lebensqualität. Die unmittelbare Umgebung zeichnet sich durch Einfamilienhäuser und Gärten aus, die eine friedliche Wohngegend schaffen. Dennoch sind Geschäfte und Restaurants nur einen kurzen Spaziergang entfernt, was den Bewohnern eine gute Anbindung an die Infrastruktur bietet.
Die Region um Ober-Ramstadt und Darmstadt ist vor allem für ihre landschaftliche Vielfalt und ihre kulturellen Angebote bekannt. Der Odenwald lockt mit zahlreichen Wander- und Radwegen sowie mit traditionellen Festen und Märkten. Zudem bietet die nähere Umgebung viele Ausflugsmöglichkeiten zu Burgen, Schlössern und Weinbergen, die das kulturelle Erbe der Region widerspiegeln. Insgesamt bietet die Region eine gelungene Mischung aus Natur, Kultur und urbanem Leben, die sie zu einem attraktiven Wohnort macht.
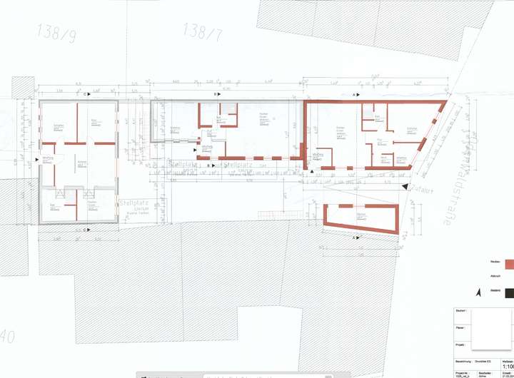
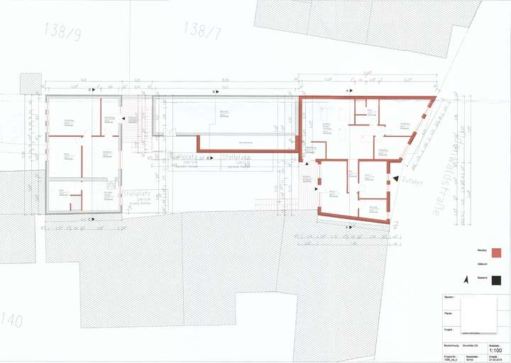
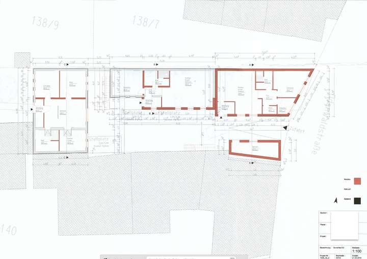
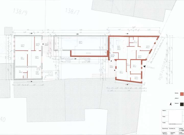
Grundriss
Grundriss 1
>
>
Grundriss 2
>
>
Ansicht 1
>
>
Ansicht 2
>
>
Adresse
64372 Ober-Ramstadt
Interessante Orte
Preis- und Lageinformationen
Preistrend für Bestandsimmobilien in Ober-Ramstadt