Dieses großzügige Einfamilienwohnhaus mit Einliegerwohnung bietet eine Wohnfläche von ca. 215m² und eine zusätzliche wohnwirtschaftliche Nutzfläche von ca. 226m². Das im Jahr 1980 erbaute Haus befindet sich auf einem ca. 635 m² großen, gepflegten Grundstück in einer ruhigen, verkehrsberuhigten Straße mit einer gewachsenen und angenehmen Nachbarschaft.
Die Immobilie überzeugt durch eine durchdachte Raumaufteilung, moderne Ausstattungsdetails und vielfältige Nutzungsmöglichkeiten – ideal geeignet für Familien, Mehrgenerationenwohnen oder eine teilweise Vermietung.
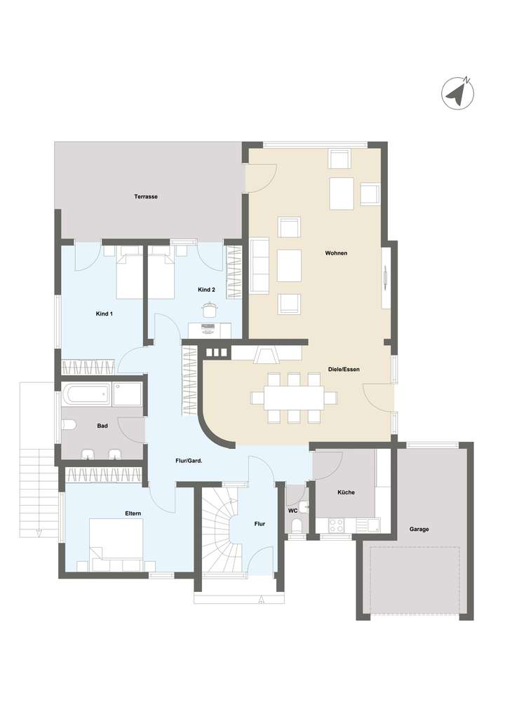
Im Erdgeschoss erwartet Sie ein heller und weitläufiger Wohn- und Essbereich mit Kamin und direktem Zugang zur großen Terrasse und dem liebevoll eingewachsenen Garten. Die moderne Einbauküche ist mit allen gängigen Elektrogeräten ausgestattet. Ein Gäste-WC sowie ein stilvolles und modernes Badezimmer mit Badewanne und bodentiefer Dusche ergänzen das Raumangebot. Zusätzlich stehen ein Schlafzimmer sowie zwei weitere Zimmer zur Verfügung, die flexibel als Kinderzimmer, Büro oder Gästezimmer genutzt werden können. Von beiden Zimmern sowie vom Wohnzimmer aus haben Sie Zugang zur großzügigen Terrasse – ideal für entspannte Stunden im Freien.
Im Dachgeschoss befindet sich eine weitere Wohneinheit mit großzügigem Wohn- und Essbereich, der durch viel Tageslicht und den direkten Zugang zur sonnigen Loggia besticht. Die separate Küche, ein Gäste-WC sowie ein modernes Badezimmer mit Wanne, bodentiefer Dusche und Waschmaschinenanschluss bieten hohen Wohnkomfort. Drei gut geschnittene Schlafzimmer schaffen Raum für vielfältige Nutzung – ob als Kinderzimmer, Büro oder Gästebereich. Diese Wohneinheit ist vermietet.
Das Untergeschoss beherbergt eine mögliche Einliegerwohnung mit separatem Eingang. Sie verfügt über einen offenen Wohn- und Essbereich, ein Schlafzimmer sowie ein modernes Duschbad. Darüber hinaus bietet das Untergeschoss einen komfortablen Wellnessbereich mit großer Regendusche, Sauna und separatem WC. Ein Waschraum, ein zusätzlicher Kellerraum sowie ein Hobbyraum sorgen für viel Stauraum und Raum zur freien Entfaltung.
Zum Haus gehören eine Garage sowie ein Carport. Diese Immobilie vereint großzügiges Wohnen mit hoher Flexibilität und einer attraktiven Lage – ein ideales Zuhause für Familien oder zur Kombination aus Wohnen und Arbeiten.
Familientraum in ruhiger Straße – großzügig, idyllisch, zukunftsfähig
63486 Bruchköbel
Die vollständige Adresse der Immobilie erhalten Sie vom Anbieter.
Auf Karte anzeigen
Die vollständige Adresse der Immobilie erhalten Sie vom Anbieter.
Finanzierungszertifikat
In nur zwei Minuten zu Ihrem persönlichen Finanzierungszertifkat.
Infos
| Haustyp | Einfamilienhaus |
|---|---|
| Wohnfläche ca. | 441 m2 |
| Nutzfläche | 81 m2 |
| Grundstücksfläche | 635 m2 |
| Bezugsfrei ab | 31.12.2025 |
| Zimmer | 11 |
| Schlafzimmer | 7 |
| Badezimmer | 3 |
| Anzahl Garage/Stellplatz | 3 |
Kosten
| Kaufpreis |
885.000 € |
|---|---|
| Provision |
3.57 % inkl. gesetzl. MwSt. |
Finanzierungsrechner:
Kaufpreis:
600.000 €
Eigenkapital:
600.000 €
Monatliche Rate
0 €
Effektiver Jahreszins
0 %
Sollzinsbindung
10 Jahre
Bausubstanz & Energieausweis
| Baujahr | 1979 |
|---|---|
| Objektzustand | Gepflegt |
| Heizungsart | Fußbodenheizung |
| Wesentliche Energieträger | Öl |
| Energieausweis | liegt vor |
| Energieausweistyp | Bedarfsausweis |
| Energieverbrauchskennwert | 119,8 kWh/(m²*a) |
| Energieeffizienzklasse | D |
119,8
kWh/(m²*a)
Energieeffizienzklasse D
- A+
- A
- B
- C
- D
- E
- F
- G
- H
- 0
- 25
- 50
- 75
- 100
- 125
- 150
- 175
- 200
- 225
- >250
Beschreibung des Objekts
Ausstattung
Einbauküche
Parkett
Fliesen
Kamin
Lage
Bruchköbel – Da will ich leben! So lautet der Slogan der Stadt – mit Recht, denn hier lässt es sich gut leben. Gerade für junge Familien bietet die Stadt mit ihren Stadtteilen Butterstadt, Niederissigheim, Oberissigheim und Roßdorf sehr viel. Kindergärten in allen Stadtteilen, drei Grundschulen, eine integrierte Gesamtschule mit einem benachbarten Oberstufengymnasium decken alle Bedürfnisse Ihrer Kinder ab. Zahlreiche Vereine, Sportanlagen, Kulturangebote und ein Frei- und Hallenbad lassen keine Wünsche offen. Hier finden Sie eine sehr gute Infrastruktur, die alle Bedürfnisse ihrer Bewohner abdeckt. Ärzte, Therapeuten, Apotheken etc. sind in ausreichender Anzahl vorhanden. Eine Kleinstadt mit historischem Stadtkern, mit ihren ca. 22.000 Einwohnern, verfügt über einen städtischen Charakter, jedoch in ländlicher Idylle. Dennoch liegt Bruchköbel verkehrsgünstig, die BAB A66/A45 mit Verbindung nach Frankfurt, Hanau, Gelnhausen, Aschaffenburg und Offenbach ist nur ca. 5 Autominuten entfernt. Bruchköbel hat einen Bahnhof, der im Tarifgebiet des Rhein-Main-Verkehrsverbundes (RMV) angebunden ist und in ca. 5 Min. den Hanauer Hauptbahnhof, mit S-Bahn IC und ICE Anschlüssen erreichen. Regelmäßige Busverbindungen nach Hanau runden die Mobilität, auch ohne Auto, ab.
Sonstige Angaben
Der Makler-Vertrag mit uns und/oder unserem Beauftragten kommt durch die Bestätigung der Inanspruchnahme unserer Maklertätigkeit in Textform zustande, wie z.B. insbesondere die Unterschrift des Suchkundenvertrages und/oder des Objekt-Exposés. Die Höhe der Courtage richtet sich nach den ab dem 23.12.2020 in Kraft getretenen gesetzlichen Regelungen zur Teilung der Maklercourtage. Hiernach wird die Courtage regelmäßig für beide Parteien (Eigentümer und Käufer) 3 % auf den Kaufpreis zuzüglich Umsatzsteuer in jeweils geltender Höhe betragen, derzeit also insgesamt 3,57% des Kaufpreises einschließlich Umsatzsteuer und ist bei notariellem Vertragsabschluss verdient und fällig. Die Höhe der Bruttocourtage unterliegt einer Anpassung bei Steuersatzänderung. Grunderwerbssteuer, Notar- und Gerichtskosten trägt der Käufer. Alle Angaben sind ohne Gewähr und basieren ausschließlich auf Informationen, die uns von unserem Auftraggeber übermittelt wurden. Wir übernehmen keine Gewähr für die Vollständigkeit, Richtigkeit und Aktualität dieser Angaben. Zwischenverkauf bleibt vorbehalten. Sollte das von uns nachgewiesene Objekt bereits bekannt sein, teilen Sie uns dieses bitte unverzüglich mit. Die Weitergabe dieses Exposees an Dritte ohne unsere Zustimmung löst gegebenenfalls Courtage- bzw. Schadensersatzansprüche aus. Im Übrigen gelten die beigefügten allgemeinen Geschäftsbedingungen für die Rechtsbeziehung zwischen Ihnen und der EV SR Immobilien GmbH.
Grundriss
Erdgeschoss
>
>
Dachgeschoss
>
>
Untergeschoss
>
>
Adresse
63486 Bruchköbel
Interessante Orte
Preis- und Lageinformationen
Preistrend für Bestandsimmobilien in Bruchköbel