Der freistehende Winkelbungalow befindet sich in ruhiger Wohnlage in Idstein/Walsdorf.
Direkt am Ortsrand gelegen, umgeben von Wiesen und Feldern und fernab des Großstadtlärms lässt sich hier ein Ruhepol für die ganze Familie einrichten, an dem man zur Ruhe kommen und Kräfte tanken kann.
Das Haus (massives Kellergeschoss verbunden mit Streif-Fertighaus im Erdgeschoss) wurde 1972 auf dem 637 m² großem Grundstück errichtet. Im Jahr 1994 wurde die Wohnfläche um einen Wintergarten erweitert. Somit verfügt das Wohnhaus über eine Wohnfläche von ca. 154 m², die sich auf dem gesamten Erdgeschoss verteilt. Hinzu kommt bewohnbare Fläche, die sich im Kellergeschoss der Immobilie befindet und auch über einen separaten Zugang betreten werden kann.
Der Wohnbereich ist mit unterschiedlichen Bodenbelägen (Parkett, Fliese, Laminat, Teppich) ausgestattet. Der Kachelofen im Wohn- & Esszimmer sowie der Kaminofen im Wintergarten sorgen für Behaglichkeit.
Die Immobilie ist mit einer Einbauküche ausgestattet und verfügt über ein Tageslichtbadezimmer mit Badewanne und Dusche sowie einem Gäste-WC in der Diele.
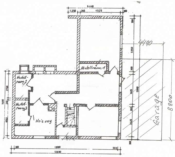
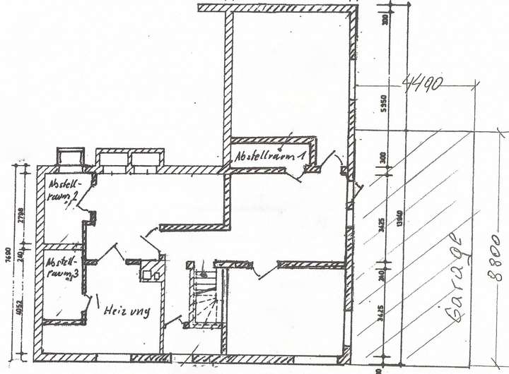
Das Haus ist vollständig unterkellert und bietet zu den wohnlich nutzbaren Räumen mit kleinem Duschbadezimmer weitere kleinere Kellerräume und den Heizungsraum. Die Immobilie wird mit einer Gas-Zentralheizung geheizt.
Eine Gartenhütte und ein Geräteschuppen bieten weiteren Stauraum. Außerdem befindet sich hinter der Garage weitere Nutzfläche um dort bspw. Holz für die Kaminöfen trocken zu lagern.
Eine Garage unterhalb des Wintergartens mit Zugang zum Garten und zum Kellergeschoss runden dieses Immobilienangebot ab.
Verschaffen Sie sich Ihren eigenen Eindruck und vereinbaren Sie sogleich einen Besichtigungstermin!
Gerne zeigen wir Ihnen die Immobilie bei einer Besichtigung.
Wir freuen uns auf Ihre Anfrage
Ihr Team von Kuhlmann & Rosenschon Immobilien
Winkelbungalow mit Wintergarten in Idstein/Walsdorf
65510 Idstein
Die vollständige Adresse der Immobilie erhalten Sie vom Anbieter.
Auf Karte anzeigen
Die vollständige Adresse der Immobilie erhalten Sie vom Anbieter.
Finanzierungszertifikat
In nur zwei Minuten zu Ihrem persönlichen Finanzierungszertifkat.
Infos
| Haustyp | Einfamilienhaus |
|---|---|
| Wohnfläche ca. | 154 m2 |
| Grundstücksfläche | 637 m2 |
| Bezugsfrei ab | Nach Vereinbarung |
| Zimmer | 5 |
| Garage/Stellplatz | Garage |
| Anzahl Garage/Stellplatz | 1 |
Kosten
| Kaufpreis |
459.000 € |
|---|---|
| Provision |
3,57 % inkl. MwSt. |
Finanzierungsrechner:
Kaufpreis:
600.000 €
Eigenkapital:
600.000 €
Monatliche Rate
0 €
Effektiver Jahreszins
0 %
Sollzinsbindung
10 Jahre
Bausubstanz & Energieausweis
| Baujahr | 1972 |
|---|---|
| Heizungsart | Zentralheizung |
| Wesentliche Energieträger | Gas |
| Energieausweis | liegt vor |
| Energieausweistyp | Bedarfsausweis |
| Energieverbrauchskennwert | 164,4 kWh/(m²*a) |
| Energieeffizienzklasse | F |
164,4
kWh/(m²*a)
Energieeffizienzklasse F
- A+
- A
- B
- C
- D
- E
- F
- G
- H
- 0
- 25
- 50
- 75
- 100
- 125
- 150
- 175
- 200
- 225
- >250
Beschreibung des Objekts
Ausstattung
Die Liegenschaft verfügt u.a. über folgende Ausstattungsmerkmale:
- Parkettboden
- Teppichboden
- Laminat
- Fliesen
- Einbauschränke
- Einbauküche
- Wintergarten
- Kachelofen
- Kaminofen
- TGL-Badezimmer mit Badewanne und Dusche
- Gäste-WC
- Gas-Zentralheizung
- Garten
- Gartenhütte
- Carport
- Garage
- u.v.m.
Lage
Das Haus liegt in Walsdorf, einem charmanten Ortsteil von Idstein im Taunus. Hier genießen Sie eine ruhige, naturnahe Umgebung mit guter Anbindung an die A3 und kurze Wege nach Wiesbaden, Frankfurt und Limburg.
Walsdorf bietet eine familienfreundliche Nachbarschaft, Kindergärten, Schulen sowie Einkaufsmöglichkeiten in der Nähe. Die historische Altstadt von Idstein mit ihren Kultur- und Freizeitangeboten ist schnell erreichbar. Die Umgebung lädt mit Feldern und Wäldern zu Freizeitaktivitäten und Erholung ein – ideal für Familien und Naturliebhaber.
Grundriss
Grundriss - Erdgeschoss
>
>
Grundriss - Wintergarten
>
>
Grundriss - Kellergeschoss
>
>
Adresse
65510 Idstein
Interessante Orte
Preis- und Lageinformationen
Preistrend für Bestandsimmobilien in Idstein