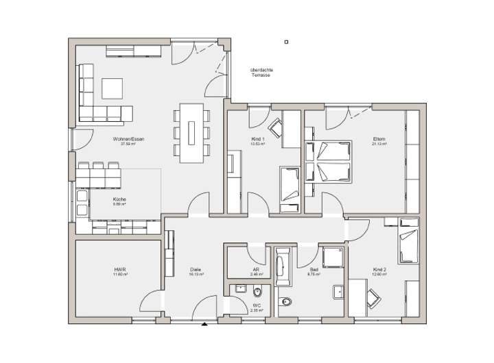
Kern-Haus bietet mit dem Bungalow Balance ein Traumhaus mit vielen Qualitäten - und alles auf einer Ebene. Der praktisch geschnittene Grundriss bietet zwei Kinderzimmer, ein Schlafzimmer und ein großes Wohn- und Esszimmer mit offener Küche. Eine bedachte Terrasse lädt zum Genießen und Entspannen mit Freunden ein.
Große Fensterflächen, die für lichtdurchflutete Wohnräume sorgen, schenken der Fassade ein ganz besonderes Aussehen.
Dieses Haus wird nach Ihren individuellen Wünschen geplant und ausgestattet!
Barrierefreies Wohnen im Bungalow in Gemmerich!
56357 Gemmerich
Die vollständige Adresse der Immobilie erhalten Sie vom Anbieter.
Auf Karte anzeigen
Die vollständige Adresse der Immobilie erhalten Sie vom Anbieter.
Finanzierungszertifikat
In nur zwei Minuten zu Ihrem persönlichen Finanzierungszertifkat.
Infos
| Haustyp | Bungalow |
|---|---|
| Wohnfläche ca. | 136 m2 |
| Grundstücksfläche | 580 m2 |
| Zimmer | 4 |
| Schlafzimmer | 3 |
| Badezimmer | 1 |
| Anzahl Garage/Stellplatz | 2 |
Kosten
| Kaufpreis |
451.000 € |
|---|---|
| Provision | Nein |
Finanzierungsrechner:
Kaufpreis:
600.000 €
Eigenkapital:
600.000 €
Monatliche Rate
0 €
Effektiver Jahreszins
0 %
Sollzinsbindung
10 Jahre
Bausubstanz & Energieausweis
| Baujahr | 2026 |
|---|---|
| Bauphase | Haus in Planung (projektiert) |
| Objektzustand | Erstbezug |
| Qualität der Austattung | Gehoben |
| Heizungsart | Wärmepumpe |
| Wesentliche Energieträger | Strom |
| Energieausweis | liegt vor |
| Energieausweistyp | Bedarfsausweis |
| Energieverbrauchskennwert | 21,4 kWh/(m²*a) |
| Energieeffizienzklasse | A+ |
21,4
kWh/(m²*a)
Energieeffizienzklasse A+
- A+
- A
- B
- C
- D
- E
- F
- G
- H
- 0
- 25
- 50
- 75
- 100
- 125
- 150
- 175
- 200
- 225
- >250
Beschreibung des Objekts
Ausstattung
4 Zimmer, offene Küche, Diele, Bad, WC, Hauswirtschaftsraum, Abstellraum
Das gezeigte Traumhaus im Überblick:
+ Schlüsselfertiges Massivhaus im Sinne der Ausstattungsbeschreibung "Edition 25"
+ Zukunftsorientierte Energieausstattung in Form einer Luft-Wasser-Wärmepumpe und Fußbodenheizung sowie einer kontrollierten Wohnraumlüftung mit Wärmerückgewinnung
+ Inklusive Bodenplatte
Beste Markenausstattung in jedem Kern-Haus:
+ Zimmermannsmäßiger Dachstuhl aus Konstruktionsvollholz
+ Dacheindeckung mit Betondachsteinen von Braas
+ Hochwertiger Kunstharz-Außenputz für eine langlebige Fassade
+ Vollständige Badausstattung von Villeroy & Boch mit Badewanne und flacher Duschwanne sowie einer Echtglasduschkabine
+ Fliesen von Villeroy & Boch in Bad und WC
+ Haustür mit 5-fach-Sicherheitsverriegelung
+ Erstklassige Innentüren der Marke Herholz
+ Fenster mit 3-Scheiben-Wärmeschutzverglasung und Rollläden
+ Vollständige und überdurchschnittliche Elektroausstattung inklusive Klingelanlage und Netzwerkdosen
+ Rauchmelder für Ihre Sicherheit
+ Alle Leistungen aus einer Hand
+ Alle Planungs- und Architektenleistungen
+ Einsatz regionaler Handwerksbetriebe
+ Baubegleitende 5-Phasen-TÜV-Prüfung und Blower-Door-Test
+ Individuelle Anpassung auf Ihre Bedürfnisse
+ Auf Wunsch mit Keller erhältlich
+ Auf Wunsch mit weiteren Energietechniken erhältlich
Lage
Dieses schöne Baugrundstück befindet sich im Neubaugebiet, welches Sie über ein Bewerberverfahren bei der Gemeinde erwerben können, in Gemmerich, einer Ortsgemeinde, die zur Verbandsgemeinde Nassau gehört und etwa in der Mitte von Koblenz, Montabaur und Wiesbaden liegt.
Aus Richtung Wiesbaden erreichen Sie Gemmerich über die B 260 (Bäderstraße) und B 274. Von der Autobahn A 3, Ausfahrt Diez, über die B 274 Richtung St. Goarshausen. Von Koblenz aus, über die B 42 bis Braubach und dann Richtung Wiesbaden.
Direkt neben dem Kindergarten, der von hier aus fußläufig in nur wenigen Minuten zu erreichen ist, befindet sich auch ein Spielplatz mit zahlreichen Kletter- und Turngeräten. Im Ort gibt es einen Dorfladen mit vielen Produkten für den täglichen Bedarf, vom Frühstück bis zu Abendessen. Das gemütliche Kaffeestübchen lädt zum Verweilen bei einer Tasse Kaffee und frischen Backwaren ein. In Gemmerich gibt es einen Allgemeinmediziner, das Gemeinschaftsklinikum Mittelrhein befindet sich in Nastätten, dem Zentrum des blauen Ländchens.
Die Gemmericher Grillhütte liegt idyllisch am Waldrand Richtung Eschbach bzw. St. Goarshausen direkt neben dem angrenzenden Sportplatz. Auf dem Gelände befinden sich die Grillhütte als Haupthaus, eine Feuerstelle und eine zusätzliche kleinere Hütte.
Entdecken Sie einen neuen Lebensraum für sich und Ihre Familie in Gemmerich!
Sonstige Angaben
Kern-Haus baut individuelle und massive Architektenhäuser zu einem attraktiven Preis-Leistungs-Verhältnis – und das bereits mit einer Erfahrung seit 1980. Bei Kern-Haus erhalten Sie unter anderem 10 Jahre Gewährleistung auf die wesentlichen Bauleistungen, bis zu 24 Monate Preissicherheit sowie eine dokumentierte 5-Phasen-TÜV-Prüfung während der Bauphase. Jedes Kern-Haus als Effizienzhaus 40 ist bereits QNG-zertifiziert durch die Deutsche Gesellschaft für nachhaltiges Bauen (DGNB).
40 Jahre Expertise für das massive, energieeffiziente Bauen: Kern-Haus realisiert Massivhäuser in Ziegel, Bims, Porenbeton oder Stahlbeton (DuoTherm).
Kern-Haus setzt auf eine hohe Bauqualität der Handwerker und auf eine große Auswahl starker Marken. So verwendet Kern-Haus beim Bau Ihres Hauses nur hochwertige Markenprodukte renommierter Hersteller – wie etwa Produkte von Villeroy & Boch.
Preise und Auszeichnungen von Kern-Haus:
- German Brand Award in den Jahren 2018 und 2021
- Hausbau Design Award: Sieger in den Jahren 2017, 2018, 2019, 2020, 2021, 2022 und 2023
- Deutscher Traumhauspreis: Sieger in den Jahren 2014, 2015, 2016 und 2018 und Silber 2017, 2020 und 2021
- Mittelstandspreis "Top 100" in den Jahren 2014, 2016, 2018, 2020 und 2022
- German Design Award im Jahr 2018
Weitere Informationen
Der gezeigte Preis versteht sich inklusive Grundstück und exklusive der Baunebenkosten.
Grundriss
Grundriss Erdgeschoss
>
>
Adresse
56357 Gemmerich
Interessante Orte
Preis- und Lageinformationen
Preistrend für Bestandsimmobilien in Gemmerich