Dieses einzigartige Einfamilienhaus, ursprünglich 1938 erbaut und in den Jahren 1959/1964 erweitert, verbindet klassischen Charme mit komfortabler Ausstattung. Auf einem großzügigen Grundstück von 1.155 m², direkt am idyllischen Niendorfer Gehege gelegen, genießen Sie absolute Ruhe in einer Sackgassenlage – ein perfekter Rückzugsort mitten in der Natur.
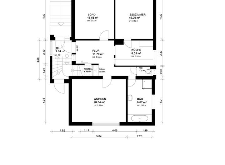
Die Wohnfläche von ca. 145,49 m² verteilt sich auf drei Ebenen. Im Erdgeschoss befinden sich die Küche, ein Badezimmer, das großzügige Wohnzimmer sowie ein Büro, das sich ideal zum Arbeiten von zu Hause eignet. Im Obergeschoss erwarten Sie ein weiteres Badezimmer und zwei großzügige Schlafzimmer sowie ein halbes Zimmer, das vielfältig genutzt werden kann. Das Dachgeschoss bietet ein Studio und ein zusätzliches Zimmer, perfekt als Atelier, Hobbyraum oder weiteres Schlafzimmer. Teilbereiche der Wohnung sind mit Echtholz-Parkettboden ausgestattet, der den Räumen Wärme und Charakter verleiht.
Die Immobilie ist unterkellert und verfügt über eine integrierte Garage, die zusätzlichen Komfort bietet. Dank einer neuen Gasheizung aus dem Jahr 2020 und einer komplett erneuerten Elektrik profitieren Sie von modernem Wohnkomfort.
Dieses Haus ist ideal für Familien oder Naturliebhaber, die ein geräumiges Zuhause in ruhiger, exklusiver Lage suchen. Eine seltene Gelegenheit, die Sie sich nicht entgehen lassen sollten!
Hamburg - Niendorf | Charmantes EFH auf idyllischem Grundstück direkt am Niendorfer Gehege
22453 Hamburg
Die vollständige Adresse der Immobilie erhalten Sie vom Anbieter.
Auf Karte anzeigen
Die vollständige Adresse der Immobilie erhalten Sie vom Anbieter.
Finanzierungszertifikat
In nur zwei Minuten zu Ihrem persönlichen Finanzierungszertifkat.
Infos
| Haustyp | Einfamilienhaus |
|---|---|
| Wohnfläche ca. | 145 m2 |
| Nutzfläche | 105,18 m2 |
| Grundstücksfläche | 1.155 m2 |
| Bezugsfrei ab | sofort |
| Zimmer | 6,5 |
| Schlafzimmer | 3 |
| Badezimmer | 2 |
| Garage/Stellplatz | Garage |
Kosten
| Kaufpreis |
719.000 € |
|---|---|
| Provision |
3,57 % inkl. ges. MwSt. |
Finanzierungsrechner:
Kaufpreis:
600.000 €
Eigenkapital:
600.000 €
Monatliche Rate
0 €
Effektiver Jahreszins
0 %
Sollzinsbindung
10 Jahre
Bausubstanz & Energieausweis
| Baujahr | 1938 |
|---|---|
| Objektzustand | Gepflegt |
| Qualität der Austattung | Normal |
| Heizungsart | Zentralheizung |
| Wesentliche Energieträger | Erdgas leicht |
| Energieausweis | liegt vor |
| Energieausweistyp | Bedarfsausweis |
| Energieverbrauchskennwert | 171,8 kWh/(m²*a) |
| Energieeffizienzklasse | F |
171,8
kWh/(m²*a)
Energieeffizienzklasse F
- A+
- A
- B
- C
- D
- E
- F
- G
- H
- 0
- 25
- 50
- 75
- 100
- 125
- 150
- 175
- 200
- 225
- >250
Beschreibung des Objekts
Ausstattung
- Baujahr 1938, Anbau 1959/ 1964
- Grundstücksgröße: 1.155 m²
- Wohnfläche: ca. 145,49 m²
- Grundstück direkt am Niendorfer Gehege gelegen
- Sackgassenlage
- neue Gasheizung aus dem Jahr 2020
- Elektrik im Jahr 2018 erneuert
- teilweise Echtholz-Parkettfußboden
- Unterkellert mit integrierter Garage (zusätzliche Nutzfläche von ca. 105,18 m²)
Lage
Die Immobilie befindet sich in einem der begehrtesten Wohnviertel im Westen Hamburgs, in einer ruhigen Sackgasse, die nur Anliegerverkehr aufweist. Besonders attraktiv ist die direkte Lage am Niendorfer Gehege – ein weitläufiges Wald- und Naherholungsgebiet, das Spaziergänge, Joggingrunden und Naturerlebnisse buchstäblich vor der Haustür ermöglicht.
Trotz der idyllischen Lage ist die Anbindung an die Stadt ausgezeichnet: Buslinien und eine nahegelegene S-Bahn-Station gewährleisten schnelle Verbindungen in die Hamburger Innenstadt und zu den umliegenden Stadtteilen. Mit dem Auto sind die Hauptverkehrsstraßen Hamburgs unkompliziert erreichbar.
Für den täglichen Bedarf ist alles in kurzer Reichweite: Einkaufsmöglichkeiten, Schulen, Kindergärten und medizinische Versorgung sind bequem erreichbar. Cafés, Restaurants und Freizeitangebote runden das attraktive Wohnumfeld ab.
Die Lage vereint somit ein besonders naturnahes, familienfreundliches Wohnen mit Ruhe, Privatsphäre und gleichzeitig optimaler städtischer Anbindung – ideal für alle, die Lebensqualität und Naturverbundenheit schätzen.
Sonstige Angaben
Rechtshinweis/Haftungsausschluss:
Dieses Exposé wurde mit größtmöglicher Sorgfalt zusammengestellt. Trotzdem kann keine Haftung für die Richtigkeit, Vollständigkeit und Aktualität der Angaben übernommen werden. Alle Angaben erfolgen ohne Gewähr. Die Darstellungen sind unverbindlich und dienen lediglich der Information. Rechte Dritter sind vorbehalten. Jegliche Haftung für Schäden, die direkt oder indirekt aus der Verwendung dieses Exposés entstehen, ist ausgeschlossen. Die Angaben zum Objekt erfolgen im Namen unseres Auftraggebers und dienen zur Erstinformation.
Grundriss
Grundriss-EG
>
>
Adresse
22453 Hamburg
Interessante Orte
Preis- und Lageinformationen
Preistrend für Bestandsimmobilien in Niendorf