Diese wunderschöne Immobilie von 1912 ist wirklich etwas Besonderes. Die hohen Decken und großzügigen Räume bieten ein sehr hohes und angenehmes Aufenthaltspotenzial.
Insgesamt verfügt die gepflegte Immobilie über acht hübsche und geräumige Zimmer, mehrere Kellerräume, ein Nebengebäude und eine Garage.
Die diesem Exposé beigefügte Liegenschaftskarte enthalten Beispiele für die angedachte Aufteilung. Es ist denkbar durch den Erwerb weiterer Grundstücksfläche den Kaufgegenstand zu vergrößern.
Großzügige Zimmer und viel Platz! Charmantes Haus + Nebengebäube, ruhig gelegen mitten in Wendeburg!
38176 Wendeburg
Die vollständige Adresse der Immobilie erhalten Sie vom Anbieter.
Auf Karte anzeigen
Die vollständige Adresse der Immobilie erhalten Sie vom Anbieter.
Finanzierungszertifikat
In nur zwei Minuten zu Ihrem persönlichen Finanzierungszertifkat.
Infos
| Haustyp | Einfamilienhaus |
|---|---|
| Etagenzahl | 2 |
| Wohnfläche ca. | 250 m2 |
| Nutzfläche | 244 m2 |
| Grundstücksfläche | 750 m2 |
| Zimmer | 8 |
| Schlafzimmer | 6 |
| Badezimmer | 2 |
| Garage/Stellplatz | Garage |
| Anzahl Garage/Stellplatz | 6 |
Kosten
| Kaufpreis |
299.000 € |
|---|---|
| Provision |
3,57 % inkl Mehrwertsteuer |
Finanzierungsrechner:
Kaufpreis:
600.000 €
Eigenkapital:
600.000 €
Monatliche Rate
0 €
Effektiver Jahreszins
0 %
Sollzinsbindung
10 Jahre
Bausubstanz & Energieausweis
| Baujahr | 1912 |
|---|---|
| Objektzustand | Gepflegt |
| Qualität der Austattung | Normal |
| Heizungsart | Öl-Heizung |
| Wesentliche Energieträger | Öl |
| Energieausweis | liegt vor |
| Energieausweistyp | Bedarfsausweis |
| Energieverbrauchskennwert | 317,2 kWh/(m²*a) |
| Energieeffizienzklasse | H |
317,2
kWh/(m²*a)
Energieeffizienzklasse H
- A+
- A
- B
- C
- D
- E
- F
- G
- H
- 0
- 25
- 50
- 75
- 100
- 125
- 150
- 175
- 200
- 225
- >250
Beschreibung des Objekts
Ausstattung
- ca. 750 m² Eigentumsgrundstück (ca. 650m² grün in beigefügter Liegenschaftskarte markiert + 100 m² anteilige Zufahrt)
- Erwerb zusätzlicher Grundstückfläche denkbar.
- ca. 250 m² Wohnfläche
- ca. 244 m² Nutzfläche
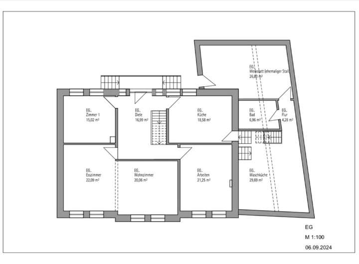
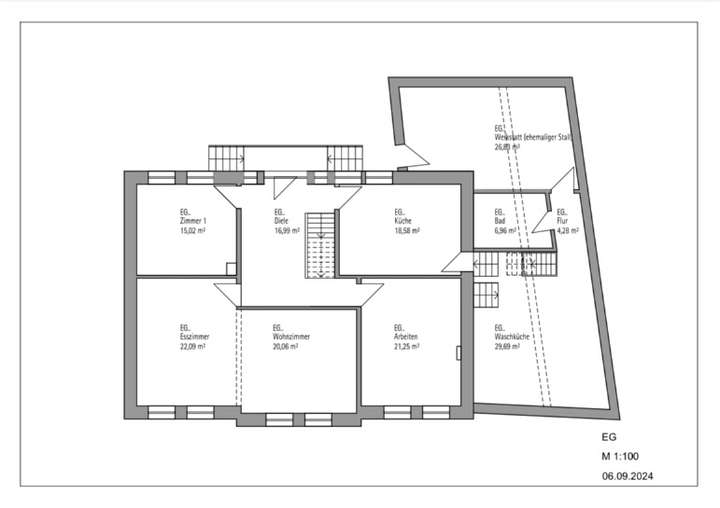
Im Erdgeschoss von ca. 136 m²
- geräumige Wohnküche (ca. 18 m²)
- Schlaf- / (Arbeits-) zimmer 1 (ca. 15 m²)
- großes Wohn- & Esszimmer (ca. 42 m²)
- Schlaf- / (Arbeits-) zimmer 2 (ca. 21 m²)
- große Diele
- Duschbad
- Waschküche von ca. 26 m²
- Werkstatt von ca. 29 m², Deckenhöhe ü 3 m
- Terrasse von ca. 40 m²
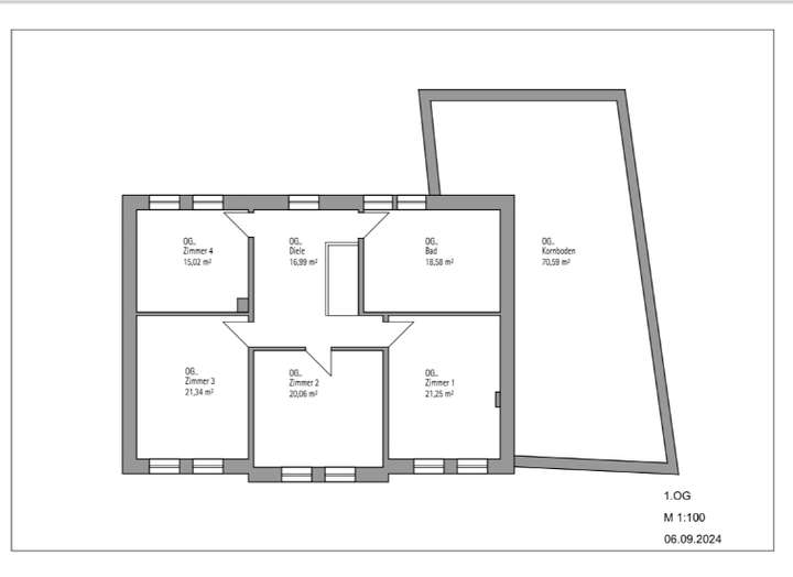
Im Obergeschoss von ca. 114 m²
- großes Bad mit Badewanne & Dusche (ca. 18 m²)
- Schlafzimmer 3 (ca. 15 m²)
- Schlafzimmer 4 (ca. 21 m²)
- Schlafzimmer 5 (ca. 20 m²)
- Schlafzimmer 6 (ca. 21 m²)
- großer Flur
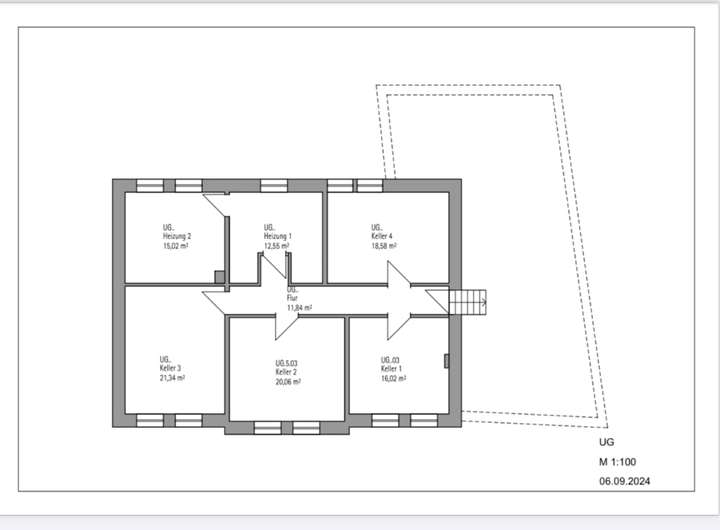
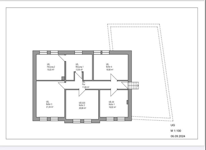
Im Keller von ca. 117 m²:
- Kellerraum 1
- Kellerraum 2
- Kellerraum 3
- Kellerraum 4
- Heizungsraum 1
- Heizungsraum 2
- Flur
Im Dachboden von ca. 70 m²
- Ausbau denkbar
Weitere Details:
- Kamin
- Glasfaseranschluss
- Stuckdecken
- Räucherkammer
- Garage
Lage
Das Grundstück liegt in einer ruhigen Seitenstraße in begehrter & zentraler Lage von Wendeburg.
Wendeburg ist eine Gemeinde im Landkreis Peine in Niedersachsen am nordwestlichen Rand von Braunschweig. Die Landschaft ist von der Landwirtschaft geprägt und wird von weitläufigen Landschaftsschutzgebieten umgeben. Zahlreiche Waldgebiete laden zu ausgiebigen Wander- oder Fahrradtouren ein.
Das Auezentrum ist nur ca. 5 Minuten fußläufig entfernt. Neben Apotheken, diversen Lebensmittelmärkten und Bäckern, Kindergärten, Grundschule, Oberschule, Jugendtreff, verschiedene Ärzte, Physiotherapiepraxis, Fitnessstudio, Frisör, Poststelle, Freibad, Spielplätze, Walderlebnispfad, Rathaus der Gemeinde Wendeburg, freiwillige Feuerwehr uvm. bietet Wendeburg - Wendezelle eine nahe Anbindung nach Braunschweig, Peine und Gifhorn.
Infrastruktur (im Umkreis von 5 km):
Mit dem Auto benötigt man ca. 10- 15 Minuten in die Peiner Innenstadt. Nach Vechelde sind es ca. 10 Minuten.
Optimale Anbindung in alle Richtungen nach Braunschweig (ca. 15-20 min) , Salzgitter (ca. 25 min) oder Hannover (ca. 40 min).
Sonstige Angaben
Das vom Käufer und Verkäufer der Immobilie zu zahlende Maklerhonorar beträgt jeweils 3,57 % inklusive der gesetzlichen Mehrwertsteuer vom notariellen Kaufpreis und ist mit Unterzeichnung des Kaufvertrages zur Zahlung fällig. Alle Daten in diesem Exposé beruhen auf Angaben des Verkäufers - Die Objektangaben wurden mit großer Sorgfalt zusammengestellt. Für die Richtigkeit der Verkäufer-, Anbieter- und Angebotsangaben können wir keine Haftung übernehmen. Irrtümer bleiben vorbehalten.
Sie denken selbst über die Veräußerung Ihrer Immobilie nach - oder möchten einfach nur wissen, was diese wert ist? Bei uns erhalten Sie kostenlos eine professionelle Einschätzung! Gehen Sie hierzu auf: www.dionesta.de oder kontaktieren Sie uns.
Grundriss
Grundriss EG
>
>
Grundriss OG
>
>
Grundriss Keller
>
>
Adresse
38176 Wendeburg
Interessante Orte
Preis- und Lageinformationen
Preistrend für Bestandsimmobilien in Wendeburg